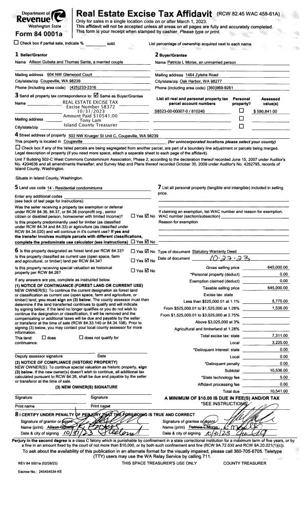
Property
Account |
| Property ID: | 224705 | Abbreviated Legal Description: | CAMANO WEST LOT 44 |
| Geographic ID: | S6285-00-00044-0 | Agent Code: | |
| Type: | Real | | |
| Tax Area: | 510 - APPRAISER-Stan/Cam Schl Dist, improved & 1 acre or less | Land Use Code | 11 |
| Open Space: | N | DFL | N |
| Historic Property: | N | Remodel Property: | N |
| Multi-Family Redevelopment: | N | | |
| Township: | | Section: | |
| Range: | |
Location |
| Address: | 248 HENNING DR CAMANO ISLAND, WA 98282 | Mapsco: | |
| Neighborhood: | North Camano | Map ID: | 574 |
| Neighborhood CD: | 06-C |
Owner |
| Name: | MACDONALD, ANN MARIE | Owner ID: | 313475 |
| Mailing Address: | 248 HENNING DR CAMANO ISLAND, WA 98282 | % Ownership: | 100.0000000000% |
| | | Exemptions: | |
Taxes and Assessment Details
Values
| (+) Improvement Homesite Value: | + | $0 | |
| (+) Improvement Non-Homesite Value: | + | $276,239 | |
| (+) Land Homesite Value: | + | $0 | |
| (+) Land Non-Homesite Value: | + | $360,000 | |
| (+) Curr Use (HS): | + | $0 | $0 |
| (+) Curr Use (NHS): | + | $0 | $0 |
| | | -------------------------- | |
| (=) Market Value: | = | $636,239 | |
| (–) Productivity Loss: | – | $0 | |
| | | -------------------------- | |
| (=) Subtotal: | = | $636,239 | |
| (+) Senior Appraised Value: | + | $0 | |
| (+) Non-Senior Appraised Value: | + | $636,239 | |
| | | -------------------------- | |
| (=) Total Appraised Value: | = | $636,239 | |
| (–) Senior Exemption Loss: | – | $0 | |
| (–) Exemption Loss: | – | $0 | |
| | | -------------------------- | |
| (=) Taxable Value: | = | $636,239 | |
Taxing Jurisdiction
| Owner: | MACDONALD, ANN MARIE | | |
| % Ownership: | 100.0000000000% | | |
| Total Value: | $636,239 | | |
| Tax Area: | 510 - APPRAISER-Stan/Cam Schl Dist, improved & 1 acre or less |
| CF | Conservation Futures | 0.0316035091 | $636,239 | $636,239 | $20.11 | | |
| EMS1 | Fire & Rescue Dist #1 Camano GEN (EMS) | 0.3677864386 | $636,239 | $636,239 | $234.00 | | |
| FIRE1 | Fire & Rescue Dist #1 Camano GEN | 1.2502910536 | $636,239 | $636,239 | $795.48 | | |
| FIRE1BOND | Fire & Rescue Dist #1 Camano BOND | 0.1570001679 | $636,239 | $636,239 | $99.89 | | |
| CE | County Current Expense | 0.3708482477 | $636,239 | $636,239 | $235.95 | | |
| CR | County Roads | 0.4584763726 | $636,239 | $636,239 | $291.70 | | |
| LCIB | Library Sno-Isle BOND (Camano Island) | 0.0396325772 | $636,239 | $636,239 | $25.22 | | |
| LIB | Library Sno-Isle GEN | 0.3153421757 | $636,239 | $636,239 | $200.63 | | |
| SCH205_401 | School 205-401 Enrichment | 1.2698420524 | $636,239 | $636,239 | $807.92 | | |
| SCH205BOND | School 205-401 BOND | 0.9396497583 | $636,239 | $636,239 | $597.84 | | |
| ST | State School | 1.3035497053 | $636,239 | $636,239 | $829.37 | | |
| ST2 | State School Part 2 | 0.8169543533 | $636,239 | $636,239 | $519.78 | | |
| | Total Tax Rate: | 7.3209764117 | | | | | |
| | | | | Taxes w/Current Exemptions: | $4,657.89 | | |
| | | | | Taxes w/o Exemptions: | $4,657.89 | | |
Improvement / Building
| Improvement #1: | RESIDENTIAL | State Code: | Y | 1856.0 sqft | Value: | $276,239 |
| Bathrooms: | 1.5 | Bedrooms: | 2 | | Ceiling: | BEAM PAINTED | Exterior Wall/Cover: | WOOD SIDING | | Floor Covering: | VINYL TILE/CARP 20-80 | Floor Structure: | WOOD W/SUBFLOOR | | Foundation: | CONCRETE | Heating: | WALL HEAT ELECTRIC | | Interior Finish: | DRYWALL PAINT | Plumbing Fixture Cnt: | 10 | | Roof Slope: | 4" IN 12" | Roof Structure/Cover: | BEAM ASPHALT |
|
| | Type | Description | Class CD | Sub Class CD | Year Built | Area |
| | BAS | BASE/MAIN FLOOR | 3 | 0 | 1988 | 1152.0 |
| | OP1 | OPEN PORCH SLAB | 3 | 0 | 1988 | 192.0 |
| | OCP | OPEN CARPORT | 3 | 0 | 1988 | 360.8 |
| | OWP | OPEN WOOD PORCH W/STEPS | 3 | 0 | 1988 | 102.0 |
| | ENP | ENCLOSED PORCH | 3 | 0 | 1988 | 272.0 |
| | DWN | DOWNSTAIRS LIVING AREA | 3 | 0 | 1988 | 704.0 |
| | OWC | OPEN WOOD PORCH W/STEPS/ROOF/C | 3 | 0 | 1988 | 160.0 |
| | OWP | OPEN WOOD PORCH W/STEPS | 3 | 0 | 1988 | 160.0 |
| | UTY | STORAGE/UTILITY | 3 | 0 | 1988 | 96.0 |
Sketch
Property Image
Land
| 1 | 13 | SQ (06001-08000) | 0.0000 | 0.00 | 0.00 | 0.00 | 1.00 | $360,000 | $0 |
Roll Value History
| 2026 | N/A | N/A | N/A | N/A | N/A |
| 2025 | $276,239 | $360,000 | $0 | $636,239 | $636,239 |
| 2024 | $274,889 | $360,000 | $0 | $634,889 | $634,889 |
| 2023 | $278,495 | $360,000 | $0 | $638,495 | $638,495 |
| 2022 | $230,589 | $260,000 | $0 | $490,589 | $490,589 |
| 2021 | $203,142 | $200,000 | $0 | $403,142 | $403,142 |
| 2020 | $198,257 | $180,000 | $0 | $378,257 | $378,257 |
| 2019 | $148,551 | $210,000 | $0 | $358,551 | $358,551 |
| 2018 | $149,019 | $180,000 | $0 | $329,019 | $329,019 |
| 2017 | $149,660 | $130,000 | $0 | $279,660 | $279,660 |
| 2016 | $147,001 | $130,000 | $0 | $277,001 | $277,001 |
| 2015 | $148,935 | $92,800 | $0 | $241,735 | $241,735 |
| 2014 | $150,869 | $92,800 | $0 | $243,669 | $243,669 |
| 2013 | $152,804 | $92,800 | $0 | $245,604 | $245,604 |
| 2012 | $154,736 | $92,800 | $0 | $247,536 | $247,536 |
| 2011 | $156,671 | $116,000 | $0 | $272,671 | $272,671 |
| 2010 | $162,012 | $116,000 | $0 | $278,012 | $278,012 |
| 2009 | $169,075 | $200,000 | $0 | $369,075 | $369,075 |
Deed and Sales History
| 1 | 07/29/2024 | PRD | Personal Representatives Deed | MACDONALD, JOHN S | MACDONALD, ANN MARIE | | | $0.00 | 60918 | 4575755 |
| 2 | 11/03/2009 | QCD | Quit Claim Deed | MACDONALD, JOHN S | MACDONALD, JOHN S | | | $0.00 | 92678 | 4263030 |
| 3 | 09/24/2009 | OTHER | Other - Misc. Documents | MACDONALD, JOHN S | MACDONALD, JOHN S | | | $0.00 | 81375 | 0 |
| 4 | 08/01/1985 | WD | Warranty Deed | JONSON, GOSTA | MACDONALD, JOHN S | | | $15,500.00 | 52305 | 85009038 |
| 5 | 01/01/1900 | OTHER | Other - Misc. Documents | JONSON, GOSTA | JONSON, GOSTA | | | $0.00 | 0 | 0 |
| 6 | 01/01/1900 | WD | Warranty Deed | Unknown | JONSON, GOSTA | | | $0.00 | 52305 | 85009038 |
Payout Agreement
| No payout information available.. |