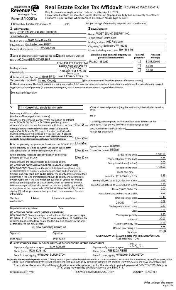
Property
Account |
| Property ID: | 224732 | Abbreviated Legal Description: | CAMANO WEST LOT 47 TGW PT LOT 48 LY S OF FOLL DESC LN: BG NECR SD LOT 48 S14*W23.21'TPB SD LN N75*W122.32'TO WLN LOT 48 & TERM LN |
| Geographic ID: | S6285-00-00047-0 | Agent Code: | |
| Type: | Real | | |
| Tax Area: | 510 - APPRAISER-Stan/Cam Schl Dist, improved & 1 acre or less | Land Use Code | 11 |
| Open Space: | N | DFL | N |
| Historic Property: | N | Remodel Property: | N |
| Multi-Family Redevelopment: | N | | |
| Township: | | Section: | |
| Range: | |
Location |
| Address: | 266 HENNING DR CAMANO IS, WA 98282 | Mapsco: | |
| Neighborhood: | North Camano | Map ID: | 574 |
| Neighborhood CD: | 06-C |
Owner |
| Name: | LATIMER, DEAN B | Owner ID: | 310450 |
| Mailing Address: | JOY L LATIMER 266 HENNING DR CAMANO ISLAND, WA 98282 | % Ownership: | 100.0000000000% |
| | | Exemptions: | |
Taxes and Assessment Details
Values
| (+) Improvement Homesite Value: | + | $0 | |
| (+) Improvement Non-Homesite Value: | + | $269,745 | |
| (+) Land Homesite Value: | + | $0 | |
| (+) Land Non-Homesite Value: | + | $450,000 | |
| (+) Curr Use (HS): | + | $0 | $0 |
| (+) Curr Use (NHS): | + | $0 | $0 |
| | | -------------------------- | |
| (=) Market Value: | = | $719,745 | |
| (–) Productivity Loss: | – | $0 | |
| | | -------------------------- | |
| (=) Subtotal: | = | $719,745 | |
| (+) Senior Appraised Value: | + | $0 | |
| (+) Non-Senior Appraised Value: | + | $719,745 | |
| | | -------------------------- | |
| (=) Total Appraised Value: | = | $719,745 | |
| (–) Senior Exemption Loss: | – | $0 | |
| (–) Exemption Loss: | – | $0 | |
| | | -------------------------- | |
| (=) Taxable Value: | = | $719,745 | |
Taxing Jurisdiction
| Owner: | LATIMER, DEAN B | | |
| % Ownership: | 100.0000000000% | | |
| Total Value: | $719,745 | | |
| Tax Area: | 510 - APPRAISER-Stan/Cam Schl Dist, improved & 1 acre or less |
| CF | Conservation Futures | 0.0316035091 | $719,745 | $719,745 | $22.75 | | |
| EMS1 | Fire & Rescue Dist #1 Camano GEN (EMS) | 0.3677864386 | $719,745 | $719,745 | $264.71 | | |
| FIRE1 | Fire & Rescue Dist #1 Camano GEN | 1.2502910536 | $719,745 | $719,745 | $899.89 | | |
| FIRE1BOND | Fire & Rescue Dist #1 Camano BOND | 0.1570001679 | $719,745 | $719,745 | $113.00 | | |
| CE | County Current Expense | 0.3708482477 | $719,745 | $719,745 | $266.92 | | |
| CR | County Roads | 0.4584763726 | $719,745 | $719,745 | $329.99 | | |
| LCIB | Library Sno-Isle BOND (Camano Island) | 0.0396325772 | $719,745 | $719,745 | $28.53 | | |
| LIB | Library Sno-Isle GEN | 0.3153421757 | $719,745 | $719,745 | $226.97 | | |
| SCH205_401 | School 205-401 Enrichment | 1.2698420524 | $719,745 | $719,745 | $913.96 | | |
| SCH205BOND | School 205-401 BOND | 0.9396497583 | $719,745 | $719,745 | $676.31 | | |
| ST | State School | 1.3035497053 | $719,745 | $719,745 | $938.22 | | |
| ST2 | State School Part 2 | 0.8169543533 | $719,745 | $719,745 | $588.00 | | |
| | Total Tax Rate: | 7.3209764117 | | | | | |
| | | | | Taxes w/Current Exemptions: | $5,269.25 | | |
| | | | | Taxes w/o Exemptions: | $5,269.25 | | |
Improvement / Building
| Improvement #1: | RESIDENTIAL | State Code: | Y | 2954.0 sqft | Value: | $269,745 |
| Bathrooms: | 3 | Bedrooms: | 3 | | Ceiling: | DRYWALL PAINTED | Cooling: | HEAT PUMP/CONV/V | | Exterior Wall/Cover: | CEMENT FIBER | Floor Covering: | CARPET/VINYL 60-40 | | Floor Structure: | WOOD W/SUBFLOOR | Foundation: | CONCRETE | | Interior Finish: | DRYWALL PAINT | Plumbing Fixture Cnt: | 16 | | Roof Slope: | 5" IN 12" | Roof Structure/Cover: | CJ ASPHALT |
|
| | Type | Description | Class CD | Sub Class CD | Year Built | Area |
| | BAS | BASE/MAIN FLOOR | 4 | 0 | 2022 | 1798.8 |
| | UB8 | BASEMENT UNFINISHED 8" | 4 | 0 | 2022 | 635.0 |
| | AGR | ATTACHED GARAGE | 4 | 0 | 2022 | 806.0 |
| | DWN | DOWNSTAIRS LIVING AREA | 4 | 0 | 2022 | 1155.2 |
| | OP4 | OPEN PORCH W/CEILING-ROOF | 4 | 0 | 2022 | 561.0 |
| | OWP | OPEN WOOD PORCH W/STEPS | 4 | 0 | 2022 | 182.0 |
| | OWC | OPEN WOOD PORCH W/STEPS/ROOF/C | 4 | 0 | 2022 | 365.0 |
| | OP4 | OPEN PORCH W/CEILING-ROOF | 4 | 0 | 2022 | 72.0 |
Sketch
Property Image
Land
| 1 | 15 | SQ (12001-21780) | 0.0000 | 0.00 | 0.00 | 0.00 | 1.00 | $450,000 | $0 |
Roll Value History
| 2026 | N/A | N/A | N/A | N/A | N/A |
| 2025 | $269,745 | $450,000 | $0 | $719,745 | $719,745 |
| 2024 | $272,578 | $450,000 | $0 | $722,578 | $722,578 |
| 2023 | $277,534 | $450,000 | $0 | $727,534 | $727,534 |
| 2022 | $10,000 | $230,000 | $0 | $240,000 | $240,000 |
| 2021 | $0 | $200,000 | $0 | $200,000 | $200,000 |
| 2020 | $0 | $160,000 | $0 | $160,000 | $160,000 |
| 2019 | $0 | $160,000 | $0 | $160,000 | $160,000 |
| 2018 | $0 | $100,000 | $0 | $100,000 | $100,000 |
| 2017 | $0 | $100,000 | $0 | $100,000 | $100,000 |
| 2016 | $0 | $100,000 | $0 | $100,000 | $100,000 |
| 2015 | $0 | $83,520 | $0 | $83,520 | $83,520 |
| 2014 | $0 | $83,520 | $0 | $83,520 | $83,520 |
| 2013 | $0 | $83,520 | $0 | $83,520 | $83,520 |
| 2012 | $0 | $83,520 | $0 | $83,520 | $83,520 |
| 2011 | $0 | $104,400 | $0 | $104,400 | $104,400 |
| 2010 | $0 | $104,400 | $0 | $104,400 | $104,400 |
| 2009 | $0 | $150,000 | $0 | $150,000 | $150,000 |
| 2008 | $0 | $270,000 | $0 | $270,000 | $270,000 |
| 2007 | $0 | $270,000 | $0 | $270,000 | $270,000 |
Deed and Sales History
| 1 | 10/23/2023 | QCD | Quit Claim Deed | SAMORA, JOY LYNN | LATIMER, DEAN B | | | $0.00 | 58310 | 4566004 |
| 2 | 09/30/2020 | QCD | Quit Claim Deed | CLYMER, RONALD D | SAMORA, JOY LYNN | | | $0.00 | 45115 | 4498694 |
| 3 | 09/01/1993 | OTHER | Other - Misc. Documents | CLYMER, RONALD D | CLYMER, RONALD D | | | $0.00 | 65580 | 93018482 |
| 4 | 09/01/1993 | WD | Warranty Deed | CLYMER, RONALD D | CLYMER, RONALD D | | | $17,000.00 | 33558 | 93018481 |
| 5 | 05/01/1979 | OTHER | Other - Misc. Documents | Unknown | CLYMER, RONALD D | | | $14,000.00 | 92120 | 351978 |
Payout Agreement
| No payout information available.. |