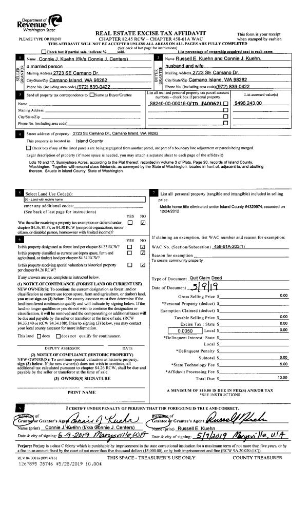
Property
Account |
| Property ID: | 225517 | Abbreviated Legal Description: | CAMPBELLS GLEN LOTS 11 & 12 |
| Geographic ID: | S6295-00-00011-0 | Agent Code: | |
| Type: | Real | | |
| Tax Area: | 710 - APPRAISER-S Whid Schl Dist, outside Langley, improved & 1 acre or less | Land Use Code | 11 |
| Open Space: | N | DFL | N |
| Historic Property: | N | Remodel Property: | N |
| Multi-Family Redevelopment: | N | | |
| Township: | | Section: | |
| Range: | |
Location |
| Address: | 4152 SKYE PL CLINTON, WA 98236 | Mapsco: | |
| Neighborhood: | Cycle 4 | Map ID: | 805 |
| Neighborhood CD: | 4 |
Owner |
| Name: | KUCHI, PRASHANT | Owner ID: | 303428 |
| Mailing Address: | ANNIE BARBARA ROBERTS WESCOTT 4152 SKY PL CLINTON, WA 98236 | % Ownership: | 100.0000000000% |
| | | Exemptions: | |
Taxes and Assessment Details
Values
| (+) Improvement Homesite Value: | + | $0 | |
| (+) Improvement Non-Homesite Value: | + | $389,200 | |
| (+) Land Homesite Value: | + | $0 | |
| (+) Land Non-Homesite Value: | + | $230,000 | |
| (+) Curr Use (HS): | + | $0 | $0 |
| (+) Curr Use (NHS): | + | $0 | $0 |
| | | -------------------------- | |
| (=) Market Value: | = | $619,200 | |
| (–) Productivity Loss: | – | $0 | |
| | | -------------------------- | |
| (=) Subtotal: | = | $619,200 | |
| (+) Senior Appraised Value: | + | $0 | |
| (+) Non-Senior Appraised Value: | + | $619,200 | |
| | | -------------------------- | |
| (=) Total Appraised Value: | = | $619,200 | |
| (–) Senior Exemption Loss: | – | $0 | |
| (–) Exemption Loss: | – | $0 | |
| | | -------------------------- | |
| (=) Taxable Value: | = | $619,200 | |
Taxing Jurisdiction
| Owner: | KUCHI, PRASHANT | | |
| % Ownership: | 100.0000000000% | | |
| Total Value: | $619,200 | | |
| Tax Area: | 710 - APPRAISER-S Whid Schl Dist, outside Langley, improved & 1 acre or less |
| CF | Conservation Futures | 0.0316035091 | $619,200 | $619,200 | $19.57 | | |
| FIRE3 | Fire & Rescue Dist #3 S Whidbey GEN | 1.2004855531 | $619,200 | $619,200 | $743.34 | | |
| HOBOND | Hospital BOND | 0.1910887512 | $619,200 | $619,200 | $118.32 | | |
| HOGEN | Hospital GEN | 0.3902502903 | $619,200 | $619,200 | $241.64 | | |
| CE | County Current Expense | 0.3708482477 | $619,200 | $619,200 | $229.63 | | |
| CR | County Roads | 0.4584763726 | $619,200 | $619,200 | $283.89 | | |
| ISLANDEMS | Hospital GEN (EMS) | 0.5000000000 | $619,200 | $619,200 | $309.60 | | |
| LIB | Library Sno-Isle GEN | 0.3153421757 | $619,200 | $619,200 | $195.26 | | |
| PORTWHID | Port of S Whidbey GEN | 0.1094540357 | $619,200 | $619,200 | $67.77 | | |
| SCH206BOND | School 206 BOND | 0.3161759235 | $619,200 | $619,200 | $195.78 | | |
| SCH206MO | School 206 Enrichment | 0.4547169547 | $619,200 | $619,200 | $281.56 | | |
| ST | State School | 1.3035497053 | $619,200 | $619,200 | $807.16 | | |
| ST2 | State School Part 2 | 0.8169543533 | $619,200 | $619,200 | $505.86 | | |
| SWHIDPRBD | P & R S Whidbey BOND | 0.0152817568 | $619,200 | $619,200 | $9.46 | | |
| SWHIDPRBD2 | P & R S Whidbey BOND2 | 0.0138911264 | $619,200 | $619,200 | $8.60 | | |
| SWHIDPRMT | P & R S Whidbey GEN | 0.2053334452 | $619,200 | $619,200 | $127.14 | | |
| | Total Tax Rate: | 6.6934522006 | | | | | |
| | | | | Taxes w/Current Exemptions: | $4,144.58 | | |
| | | | | Taxes w/o Exemptions: | $4,144.58 | | |
Improvement / Building
| Improvement #1: | RESIDENTIAL | State Code: | Y | 1778.0 sqft | Value: | $389,200 |
| Bathrooms: | 2 | Bedrooms: | 3 | | Ceiling: | DRYWALL PAINTED | Cooling: | HEAT PUMP/CONV/V | | Exterior Wall/Cover: | CEMENT FIBER | Floor Covering: | CARPET/VINYL 60-40 | | Floor Structure: | WOOD W/SUBFLOOR | Foundation: | CONCRETE | | Interior Finish: | DRYWALL PAINT | Plumbing Fixture Cnt: | 10 | | Roof Slope: | 5" IN 12" | Roof Structure/Cover: | CJ ASPHALT |
|
| | Type | Description | Class CD | Sub Class CD | Year Built | Area |
| | BAS | BASE/MAIN FLOOR | 4 | 0 | 2021 | 1778.0 |
| | AGR | ATTACHED GARAGE | 4 | 0 | 2021 | 352.0 |
| | OWP | OPEN WOOD PORCH W/STEPS | 4 | 0 | 2021 | 66.0 |
| | OWP | OPEN WOOD PORCH W/STEPS | 4 | 0 | 2021 | 124.0 |
Sketch
Property Image
Land
| 1 | 15 | SQ (12001-21780) | 0.0000 | 0.00 | 0.00 | 0.00 | 1.00 | $230,000 | $0 |
Roll Value History
| 2026 | N/A | N/A | N/A | N/A | N/A |
| 2025 | $389,200 | $230,000 | $0 | $619,200 | $619,200 |
| 2024 | $393,287 | $215,000 | $0 | $608,287 | $608,287 |
| 2023 | $400,437 | $230,000 | $0 | $630,437 | $630,437 |
| 2022 | $369,991 | $180,000 | $0 | $549,991 | $549,991 |
| 2021 | $36,720 | $35,000 | $0 | $71,720 | $71,720 |
| 2020 | $0 | $35,000 | $0 | $35,000 | $35,000 |
| 2019 | $0 | $35,000 | $0 | $35,000 | $35,000 |
| 2018 | $0 | $25,000 | $0 | $25,000 | $25,000 |
| 2017 | $0 | $5,000 | $0 | $5,000 | $5,000 |
| 2016 | $0 | $5,000 | $0 | $5,000 | $5,000 |
| 2015 | $0 | $5,000 | $0 | $5,000 | $5,000 |
| 2014 | $0 | $5,000 | $0 | $5,000 | $5,000 |
| 2013 | $0 | $16,250 | $0 | $16,250 | $16,250 |
| 2012 | $0 | $16,250 | $0 | $16,250 | $16,250 |
| 2011 | $0 | $16,250 | $0 | $16,250 | $16,250 |
| 2010 | $0 | $16,250 | $0 | $16,250 | $16,250 |
| 2009 | $0 | $16,250 | $0 | $16,250 | $16,250 |
| 2008 | $0 | $32,500 | $0 | $32,500 | $32,500 |
| 2007 | $0 | $32,500 | $0 | $32,500 | $32,500 |
Deed and Sales History
| 1 | 03/08/2022 | WD | Warranty Deed | SIMMONS, KENON | KUCHI, PRASHANT | | | $671,000.00 | 52267 | 4541348 |
| 2 | 05/02/2019 | WD | Warranty Deed | TUCKER, MATTHEW E | SIMMONS, KENON | | | $39,000.00 | 38341 | 4462614 |
| 3 | 07/15/2016 | WD | Warranty Deed | HILL UNDIV 1/3 INT, JONATHON PRESTON | TUCKER, MATTHEW E | | | $19,000.00 | 25317 | 4403513 |
| 4 | 03/03/2005 | 5 | DNU - Marriage License/Name Change | PRESTON, MILDRED E | HILL, JONATHON P | | | $0.00 | 70493 | 0 |
| 5 | 12/01/1997 | QCD | Quit Claim Deed | PRESTON, MILDRED E | PRESTON, MILDRED E | | | $0.00 | 74514 | 97021647 |
| 6 | 05/01/1997 | QCD | Quit Claim Deed | PRESTON, MILDRED E | PRESTON, MILDRED E | | | $0.00 | 71642 | 97008082 |
| 7 | 02/01/1995 | OTHER | Other - Misc. Documents | PRESTON, MILDRED E | PRESTON, MILDRED E | | | $0.00 | 66264 | 95002491 |
| 8 | 08/01/1983 | QCD | Quit Claim Deed | RHODES, WILLIAM E | PRESTON, MILDRED E | | | $0.00 | 32805 | 415466 |
| 9 | 06/01/1979 | EXECUTORD | Executor Deed | VALKYRIE, ENTERPRISES I | RHODES, WILLIAM E | | | $12,600.00 | 93287 | 355214 |
| 10 | 01/01/1900 | OTHER | Other - Misc. Documents | Unknown | VALKYRIE, ENTERPRISES I | | | $0.00 | 0 | 0 |
Payout Agreement
| No payout information available.. |