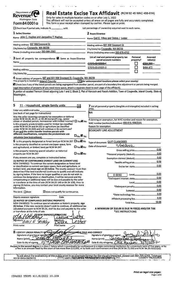
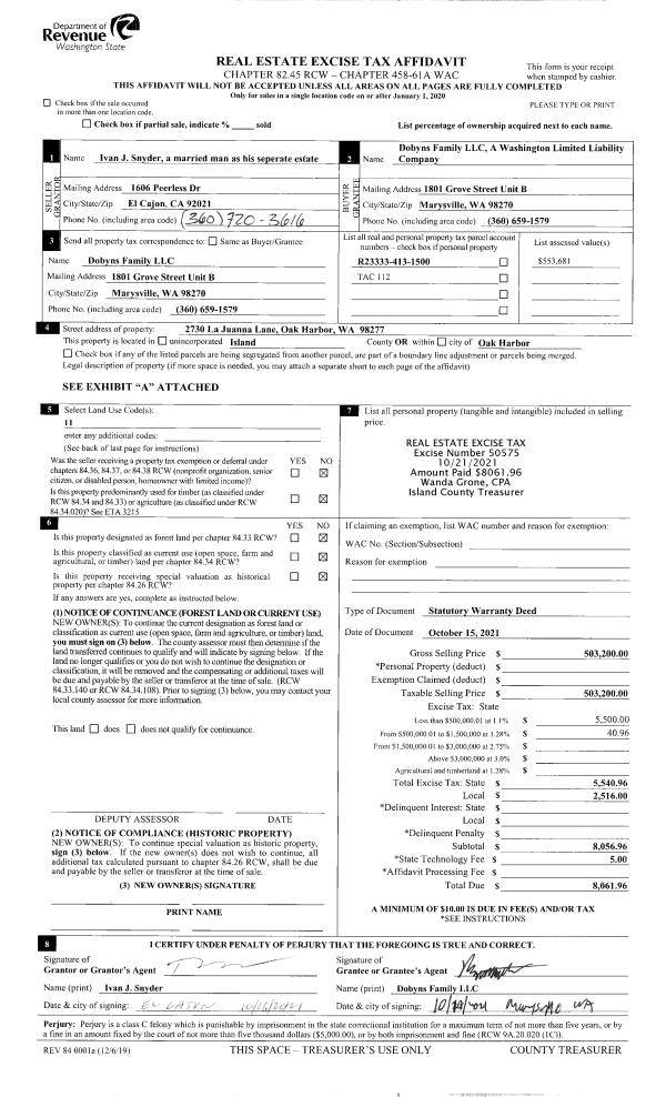
Property
Account |
| Property ID: | 225679 | Abbreviated Legal Description: | CAMPBELLS GLEN 1 LOT 27 |
| Geographic ID: | S6295-00-00027-0 | Agent Code: | |
| Type: | Real | | |
| Tax Area: | 710 - APPRAISER-S Whid Schl Dist, outside Langley, improved & 1 acre or less | Land Use Code | 11 |
| Open Space: | N | DFL | N |
| Historic Property: | N | Remodel Property: | N |
| Multi-Family Redevelopment: | N | | |
| Township: | | Section: | |
| Range: | |
Location |
| Address: | 4108 TARTAN WAY CLINTON, WA 98236 | Mapsco: | |
| Neighborhood: | Cycle 4 | Map ID: | 805 |
| Neighborhood CD: | 4 |
Owner |
| Name: | BROWN, TAMEE X | Owner ID: | 303704 |
| Mailing Address: | JACOB L BROWN 4108 TARTAN WAY CLINTON, WA 98236-9529 | % Ownership: | 100.0000000000% |
| | | Exemptions: | |
Taxes and Assessment Details
Values
| (+) Improvement Homesite Value: | + | $0 | |
| (+) Improvement Non-Homesite Value: | + | $281,924 | |
| (+) Land Homesite Value: | + | $0 | |
| (+) Land Non-Homesite Value: | + | $230,000 | |
| (+) Curr Use (HS): | + | $0 | $0 |
| (+) Curr Use (NHS): | + | $0 | $0 |
| | | -------------------------- | |
| (=) Market Value: | = | $511,924 | |
| (–) Productivity Loss: | – | $0 | |
| | | -------------------------- | |
| (=) Subtotal: | = | $511,924 | |
| (+) Senior Appraised Value: | + | $0 | |
| (+) Non-Senior Appraised Value: | + | $511,924 | |
| | | -------------------------- | |
| (=) Total Appraised Value: | = | $511,924 | |
| (–) Senior Exemption Loss: | – | $0 | |
| (–) Exemption Loss: | – | $0 | |
| | | -------------------------- | |
| (=) Taxable Value: | = | $511,924 | |
Taxing Jurisdiction
| Owner: | BROWN, TAMEE X | | |
| % Ownership: | 100.0000000000% | | |
| Total Value: | $511,924 | | |
| Tax Area: | 710 - APPRAISER-S Whid Schl Dist, outside Langley, improved & 1 acre or less |
| CF | Conservation Futures | 0.0316035091 | $511,924 | $511,924 | $16.18 | | |
| FIRE3 | Fire & Rescue Dist #3 S Whidbey GEN | 1.2004855531 | $511,924 | $511,924 | $614.56 | | |
| HOBOND | Hospital BOND | 0.1910887512 | $511,924 | $511,924 | $97.82 | | |
| HOGEN | Hospital GEN | 0.3902502903 | $511,924 | $511,924 | $199.78 | | |
| CE | County Current Expense | 0.3708482477 | $511,924 | $511,924 | $189.85 | | |
| CR | County Roads | 0.4584763726 | $511,924 | $511,924 | $234.71 | | |
| ISLANDEMS | Hospital GEN (EMS) | 0.5000000000 | $511,924 | $511,924 | $255.96 | | |
| LIB | Library Sno-Isle GEN | 0.3153421757 | $511,924 | $511,924 | $161.43 | | |
| PORTWHID | Port of S Whidbey GEN | 0.1094540357 | $511,924 | $511,924 | $56.03 | | |
| SCH206BOND | School 206 BOND | 0.3161759235 | $511,924 | $511,924 | $161.86 | | |
| SCH206MO | School 206 Enrichment | 0.4547169547 | $511,924 | $511,924 | $232.78 | | |
| ST | State School | 1.3035497053 | $511,924 | $511,924 | $667.32 | | |
| ST2 | State School Part 2 | 0.8169543533 | $511,924 | $511,924 | $418.22 | | |
| SWHIDPRBD | P & R S Whidbey BOND | 0.0152817568 | $511,924 | $511,924 | $7.82 | | |
| SWHIDPRBD2 | P & R S Whidbey BOND2 | 0.0138911264 | $511,924 | $511,924 | $7.11 | | |
| SWHIDPRMT | P & R S Whidbey GEN | 0.2053334452 | $511,924 | $511,924 | $105.12 | | |
| | Total Tax Rate: | 6.6934522006 | | | | | |
| | | | | Taxes w/Current Exemptions: | $3,426.55 | | |
| | | | | Taxes w/o Exemptions: | $3,426.55 | | |
Improvement / Building
| Improvement #1: | RESIDENTIAL | State Code: | Y | 1884.0 sqft | Value: | $281,924 |
| Bathrooms: | 2 | Bedrooms: | 2 | | Ceiling: | DRYWALL PAINTED | Cooling: | HEAT PUMP/CONV/V | | Exterior Wall/Cover: | PLY/HARDBOARD T-111 | Floor Covering: | CARPET/VINYL 60-40 | | Floor Structure: | WOOD W/SUBFLOOR | Foundation: | CONCRETE | | Interior Finish: | DRYWALL PAINT | Plumbing Fixture Cnt: | 9 | | Roof Slope: | 5" IN 12" | Roof Structure/Cover: | CJ ASPHALT |
|
| | Type | Description | Class CD | Sub Class CD | Year Built | Area |
| | BAS | BASE/MAIN FLOOR | 3 | 0 | 1993 | 1092.0 |
| | OP1 | OPEN PORCH SLAB | 3 | 0 | 1993 | 200.0 |
| | AGR | ATTACHED GARAGE | 3 | 0 | 1993 | 528.0 |
| | UPS | UPPER STORY | 3 | 0 | 1993 | 792.0 |
| | OWP | OPEN WOOD PORCH W/STEPS | 3 | 0 | 1993 | 30.0 |
| | OWP | OPEN WOOD PORCH W/STEPS | 3 | 0 | 1993 | 230.0 |
Sketch
Property Image
Land
| 1 | 14 | SQ (08001-12000) | 0.0000 | 0.00 | 0.00 | 0.00 | 1.00 | $230,000 | $0 |
Roll Value History
| 2026 | N/A | N/A | N/A | N/A | N/A |
| 2025 | $281,924 | $230,000 | $0 | $511,924 | $511,924 |
| 2024 | $285,482 | $215,000 | $0 | $500,482 | $500,482 |
| 2023 | $289,038 | $230,000 | $0 | $519,038 | $519,038 |
| 2022 | $240,551 | $180,000 | $0 | $420,551 | $420,551 |
| 2021 | $211,839 | $150,000 | $0 | $361,839 | $361,839 |
| 2020 | $206,554 | $120,000 | $0 | $326,554 | $326,554 |
| 2019 | $155,674 | $170,000 | $0 | $325,674 | $325,674 |
| 2018 | $156,152 | $130,000 | $0 | $286,152 | $286,152 |
| 2017 | $157,110 | $110,000 | $0 | $267,110 | $267,110 |
| 2016 | $159,027 | $65,000 | $0 | $224,027 | $224,027 |
| 2015 | $160,943 | $55,000 | $0 | $215,943 | $215,943 |
| 2014 | $159,455 | $65,000 | $0 | $224,455 | $224,455 |
| 2013 | $161,499 | $65,000 | $0 | $226,499 | $226,499 |
| 2012 | $163,543 | $81,000 | $0 | $244,543 | $244,543 |
| 2011 | $165,587 | $90,000 | $0 | $255,587 | $255,587 |
| 2010 | $172,102 | $90,000 | $0 | $262,102 | $262,102 |
| 2009 | $179,490 | $100,000 | $0 | $279,490 | $279,490 |
| 2008 | $180,143 | $100,000 | $0 | $280,143 | $280,143 |
| 2007 | $169,411 | $112,940 | $0 | $282,351 | $282,351 |
Deed and Sales History
| 1 | 04/04/2022 | WD | Warranty Deed | BORGATTA, KIM | BROWN, TAMEE X | | | $520,000.00 | 52636 | 4542974 |
| 2 | 02/25/2021 | QCD | Quit Claim Deed | KEIM, STEPHEN | BORGATTA, KIM | | | $0.00 | 47211 | 4512727 |
| 3 | 02/25/2021 | WD | Warranty Deed | BRUDER, JEFFREY M | BORGATTA, KIM | | | $382,950.00 | 47210 | 4512726 |
| 4 | 03/30/2010 | TRUSTEED | Trustee's Deed | FEDERAL HOME LOAN MORTGAGE COR | BRUDER, JEFFREY M | | | $186,500.00 | 715 | 4271259 |
| 5 | 11/09/2009 | TRUSTEED | Trustee's Deed | SAXTON, CHAD J | FEDERAL HOME LOAN MORTGAGE COR | | | $0.00 | 92790 | 426366 |
| 6 | 11/01/2006 | WD | Warranty Deed | JAY, EDWARD R | SAXTON, CHAD J | | | $279,000.00 | 64726 | 4186040 |
| 7 | 04/01/1992 | WD | Warranty Deed | ARECHAVALA, MARILYN S | JAY, EDWARD R | | | $26,000.00 | 21315 | 92006360 |
| 8 | 02/01/1986 | QCD | Quit Claim Deed | MRM, PARTNERSHIP | ARECHAVALA, MARILYN S | | | $0.00 | 60308 | 86001533 |
| 9 | 05/01/1980 | CD | DNU - Correction Deed | VALKYRIE, ENTERPRISES, I | MRM, PARTNERSHIP | | | $0.00 | 1888 | 369519 |
| 10 | 01/01/1900 | OTHER | Other - Misc. Documents | Unknown | VALKYRIE, ENTERPRISES, I | | | $0.00 | 0 | 0 |
Payout Agreement
| No payout information available.. |