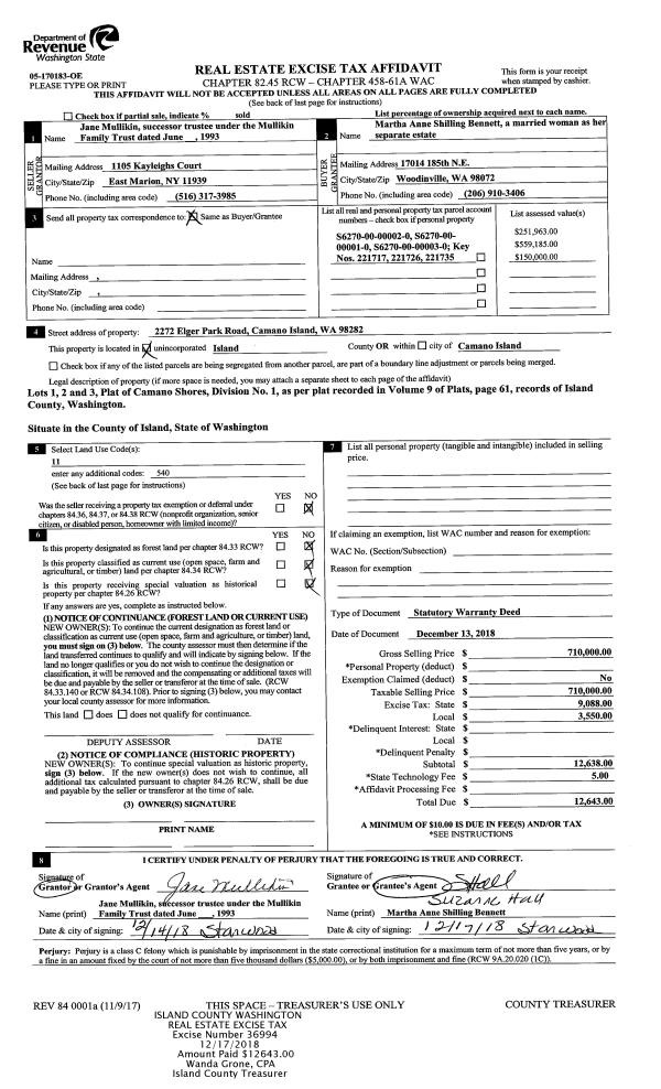
Property
Account |
| Property ID: | 225768 | Abbreviated Legal Description: | CAMPBELL'S GLEN LOT 36 & PT LOT 35 DESC: BG SECR LOT 35 N9*E112.57' TO NECR N87*W14' S08*W111.03' TO NLN TARTAN WAY ELY ALG CUR/R 11' TPB |
| Geographic ID: | S6295-00-00036-0 | Agent Code: | |
| Type: | Real | | |
| Tax Area: | 710 - APPRAISER-S Whid Schl Dist, outside Langley, improved & 1 acre or less | Land Use Code | 11 |
| Open Space: | N | DFL | N |
| Historic Property: | N | Remodel Property: | N |
| Multi-Family Redevelopment: | N | | |
| Township: | | Section: | |
| Range: | |
Location |
| Address: | 4175 TARTAN WAY CLINTON, WA 98236 | Mapsco: | |
| Neighborhood: | Cycle 4 | Map ID: | 805 |
| Neighborhood CD: | 4 |
Owner |
| Name: | VELAZQUEZ, ROBERT | Owner ID: | 287243 |
| Mailing Address: | MARY E VELAZQUEZ 4175 TARTAN WAY CLINTON, WA 98236 | % Ownership: | 100.0000000000% |
| | | Exemptions: | |
Taxes and Assessment Details
Values
| (+) Improvement Homesite Value: | + | $0 | |
| (+) Improvement Non-Homesite Value: | + | $409,336 | |
| (+) Land Homesite Value: | + | $0 | |
| (+) Land Non-Homesite Value: | + | $230,000 | |
| (+) Curr Use (HS): | + | $0 | $0 |
| (+) Curr Use (NHS): | + | $0 | $0 |
| | | -------------------------- | |
| (=) Market Value: | = | $639,336 | |
| (–) Productivity Loss: | – | $0 | |
| | | -------------------------- | |
| (=) Subtotal: | = | $639,336 | |
| (+) Senior Appraised Value: | + | $0 | |
| (+) Non-Senior Appraised Value: | + | $639,336 | |
| | | -------------------------- | |
| (=) Total Appraised Value: | = | $639,336 | |
| (–) Senior Exemption Loss: | – | $0 | |
| (–) Exemption Loss: | – | $0 | |
| | | -------------------------- | |
| (=) Taxable Value: | = | $639,336 | |
Taxing Jurisdiction
| Owner: | VELAZQUEZ, ROBERT | | |
| % Ownership: | 100.0000000000% | | |
| Total Value: | $639,336 | | |
| Tax Area: | 710 - APPRAISER-S Whid Schl Dist, outside Langley, improved & 1 acre or less |
| CF | Conservation Futures | 0.0316035091 | $639,336 | $639,336 | $20.21 | | |
| FIRE3 | Fire & Rescue Dist #3 S Whidbey GEN | 1.2004855531 | $639,336 | $639,336 | $767.51 | | |
| HOBOND | Hospital BOND | 0.1910887512 | $639,336 | $639,336 | $122.17 | | |
| HOGEN | Hospital GEN | 0.3902502903 | $639,336 | $639,336 | $249.50 | | |
| CE | County Current Expense | 0.3708482477 | $639,336 | $639,336 | $237.10 | | |
| CR | County Roads | 0.4584763726 | $639,336 | $639,336 | $293.12 | | |
| ISLANDEMS | Hospital GEN (EMS) | 0.5000000000 | $639,336 | $639,336 | $319.67 | | |
| LIB | Library Sno-Isle GEN | 0.3153421757 | $639,336 | $639,336 | $201.61 | | |
| PORTWHID | Port of S Whidbey GEN | 0.1094540357 | $639,336 | $639,336 | $69.98 | | |
| SCH206BOND | School 206 BOND | 0.3161759235 | $639,336 | $639,336 | $202.14 | | |
| SCH206MO | School 206 Enrichment | 0.4547169547 | $639,336 | $639,336 | $290.72 | | |
| ST | State School | 1.3035497053 | $639,336 | $639,336 | $833.41 | | |
| ST2 | State School Part 2 | 0.8169543533 | $639,336 | $639,336 | $522.31 | | |
| SWHIDPRBD | P & R S Whidbey BOND | 0.0152817568 | $639,336 | $639,336 | $9.77 | | |
| SWHIDPRBD2 | P & R S Whidbey BOND2 | 0.0138911264 | $639,336 | $639,336 | $8.88 | | |
| SWHIDPRMT | P & R S Whidbey GEN | 0.2053334452 | $639,336 | $639,336 | $131.28 | | |
| | Total Tax Rate: | 6.6934522006 | | | | | |
| | | | | Taxes w/Current Exemptions: | $4,279.38 | | |
| | | | | Taxes w/o Exemptions: | $4,279.38 | | |
Improvement / Building
| Improvement #1: | RESIDENTIAL | State Code: | Y | 2531.0 sqft | Value: | $409,336 |
| Bathrooms: | 2.5 | Bedrooms: | 3 | | Ceiling: | DRYWALL PAINTED | Cooling: | HEAT PUMP/CONV/V | | Exterior Wall/Cover: | PLY/HARDBOARD T-111 | Floor Covering: | HARDWOOD/CARP 20-80 | | Floor Structure: | WOOD W/SUBFLOOR | Foundation: | CONCRETE | | Interior Finish: | DRYWALL PAINT | Plumbing Fixture Cnt: | 12 | | Roof Slope: | 6" IN 12" | Roof Structure/Cover: | CJ ASPHALT |
|
| | Type | Description | Class CD | Sub Class CD | Year Built | Area |
| | BAS | BASE/MAIN FLOOR | 3 | 0 | 1991 | 2069.0 |
| | AGR | ATTACHED GARAGE | 3 | 0 | 1991 | 420.0 |
| | UPS | UPPER STORY | 3 | 0 | 1991 | 462.0 |
| | OWP | OPEN WOOD PORCH W/STEPS | 3 | 0 | 1991 | 484.0 |
| | OWC | OPEN WOOD PORCH W/STEPS/ROOF/C | 3 | 0 | 1991 | 72.0 |
Sketch
Property Image
Land
| 1 | 14 | SQ (08001-12000) | 0.0000 | 0.00 | 0.00 | 0.00 | 1.00 | $230,000 | $0 |
Roll Value History
| 2026 | N/A | N/A | N/A | N/A | N/A |
| 2025 | $409,336 | $230,000 | $0 | $639,336 | $639,336 |
| 2024 | $414,139 | $215,000 | $0 | $629,139 | $629,139 |
| 2023 | $418,940 | $230,000 | $0 | $648,940 | $648,940 |
| 2022 | $383,703 | $180,000 | $0 | $563,703 | $563,703 |
| 2021 | $337,432 | $150,000 | $0 | $487,432 | $487,432 |
| 2020 | $314,464 | $120,000 | $0 | $434,464 | $434,464 |
| 2019 | $244,596 | $170,000 | $0 | $414,596 | $414,596 |
| 2018 | $222,793 | $130,000 | $0 | $352,793 | $352,793 |
| 2017 | $224,095 | $110,000 | $0 | $334,095 | $334,095 |
| 2016 | $226,701 | $65,000 | $0 | $291,701 | $291,701 |
| 2015 | $229,306 | $55,000 | $0 | $284,306 | $284,306 |
| 2014 | $230,955 | $65,000 | $0 | $295,955 | $295,955 |
| 2013 | $233,674 | $65,000 | $0 | $298,674 | $298,674 |
| 2012 | $236,393 | $81,000 | $0 | $317,393 | $317,393 |
| 2011 | $239,112 | $90,000 | $0 | $329,112 | $329,112 |
| 2010 | $247,039 | $90,000 | $0 | $337,039 | $337,039 |
| 2009 | $257,924 | $100,000 | $0 | $357,924 | $357,924 |
| 2008 | $249,880 | $100,000 | $0 | $349,880 | $349,880 |
| 2007 | $239,899 | $112,894 | $0 | $352,793 | $352,793 |
Deed and Sales History
| 1 | 09/20/2018 | WD | Warranty Deed | HASKINS, CHRISTOPHER W | VELAZQUEZ, ROBERT | | | $445,000.00 | 36099 | 4452627 |
| 2 | 05/11/2006 | WD | Warranty Deed | BREITENSTEIN, KEY R | HASKINS, CHRISTOPHER W | | | $365,000.00 | 62189 | 4170822 |
| 3 | 12/01/1997 | BLA | DNU - Boundary Line Adjustment | BREITENSTEIN, KEY R | BREITENSTEIN, KEY R | | | $0.00 | 67713 | 97019995 |
| 4 | 11/01/1997 | ESTSEPPROP | Establish Separate Property | BREITENSTEIN, KEY R | BREITENSTEIN, KEY R | | | $0.00 | 74239 | 97020312 |
| 5 | 08/01/1995 | WD | Warranty Deed | HARVEY, KEVIN M | BREITENSTEIN, KEY R | | | $144,900.00 | 53046 | 95014032 |
| 6 | 06/01/1992 | WD | Warranty Deed | NIXON, DONALD R | HARVEY, KEVIN M | | | $138,000.00 | 22434 | 92011789 |
| 7 | 12/01/1990 | WD | Warranty Deed | , | NIXON, DONALD R | | | $25,000.00 | 6692 | 90023361 |
| 8 | 01/01/1900 | OTHER | Other - Misc. Documents | Unknown | , | | | $0.00 | 0 | 0 |
Payout Agreement
| No payout information available.. |