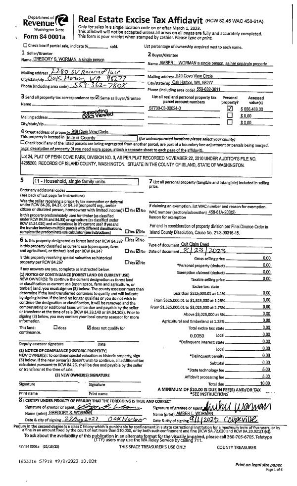
Property
Account |
| Property ID: | 225786 | Abbreviated Legal Description: | CAMPBELLS GLEN LOT 38 |
| Geographic ID: | S6295-00-00038-0 | Agent Code: | |
| Type: | Real | | |
| Tax Area: | 710 - APPRAISER-S Whid Schl Dist, outside Langley, improved & 1 acre or less | Land Use Code | 11 |
| Open Space: | N | DFL | N |
| Historic Property: | N | Remodel Property: | N |
| Multi-Family Redevelopment: | N | | |
| Township: | | Section: | |
| Range: | |
Location |
| Address: | 6143 HEATHER DR CLINTON, WA 98236 | Mapsco: | |
| Neighborhood: | Cycle 4 | Map ID: | 805 |
| Neighborhood CD: | 4 |
Owner |
| Name: | HARPER, STEVEN | Owner ID: | 307451 |
| Mailing Address: | 17902 43RD AVE NE ARLINGTON, WA 98223-7713 | % Ownership: | 100.0000000000% |
| | | Exemptions: | |
Taxes and Assessment Details
Values
| (+) Improvement Homesite Value: | + | $0 | |
| (+) Improvement Non-Homesite Value: | + | $170,421 | |
| (+) Land Homesite Value: | + | $0 | |
| (+) Land Non-Homesite Value: | + | $230,000 | |
| (+) Curr Use (HS): | + | $0 | $0 |
| (+) Curr Use (NHS): | + | $0 | $0 |
| | | -------------------------- | |
| (=) Market Value: | = | $400,421 | |
| (–) Productivity Loss: | – | $0 | |
| | | -------------------------- | |
| (=) Subtotal: | = | $400,421 | |
| (+) Senior Appraised Value: | + | $0 | |
| (+) Non-Senior Appraised Value: | + | $400,421 | |
| | | -------------------------- | |
| (=) Total Appraised Value: | = | $400,421 | |
| (–) Senior Exemption Loss: | – | $0 | |
| (–) Exemption Loss: | – | $0 | |
| | | -------------------------- | |
| (=) Taxable Value: | = | $400,421 | |
Taxing Jurisdiction
| Owner: | HARPER, STEVEN | | |
| % Ownership: | 100.0000000000% | | |
| Total Value: | $400,421 | | |
| Tax Area: | 710 - APPRAISER-S Whid Schl Dist, outside Langley, improved & 1 acre or less |
| CF | Conservation Futures | 0.0316035091 | $400,421 | $400,421 | $12.65 | | |
| FIRE3 | Fire & Rescue Dist #3 S Whidbey GEN | 1.2004855531 | $400,421 | $400,421 | $480.70 | | |
| HOBOND | Hospital BOND | 0.1910887512 | $400,421 | $400,421 | $76.52 | | |
| HOGEN | Hospital GEN | 0.3902502903 | $400,421 | $400,421 | $156.26 | | |
| CE | County Current Expense | 0.3708482477 | $400,421 | $400,421 | $148.50 | | |
| CR | County Roads | 0.4584763726 | $400,421 | $400,421 | $183.58 | | |
| ISLANDEMS | Hospital GEN (EMS) | 0.5000000000 | $400,421 | $400,421 | $200.21 | | |
| LIB | Library Sno-Isle GEN | 0.3153421757 | $400,421 | $400,421 | $126.27 | | |
| PORTWHID | Port of S Whidbey GEN | 0.1094540357 | $400,421 | $400,421 | $43.83 | | |
| SCH206BOND | School 206 BOND | 0.3161759235 | $400,421 | $400,421 | $126.60 | | |
| SCH206MO | School 206 Enrichment | 0.4547169547 | $400,421 | $400,421 | $182.08 | | |
| ST | State School | 1.3035497053 | $400,421 | $400,421 | $521.97 | | |
| ST2 | State School Part 2 | 0.8169543533 | $400,421 | $400,421 | $327.13 | | |
| SWHIDPRBD | P & R S Whidbey BOND | 0.0152817568 | $400,421 | $400,421 | $6.12 | | |
| SWHIDPRBD2 | P & R S Whidbey BOND2 | 0.0138911264 | $400,421 | $400,421 | $5.56 | | |
| SWHIDPRMT | P & R S Whidbey GEN | 0.2053334452 | $400,421 | $400,421 | $82.22 | | |
| | Total Tax Rate: | 6.6934522006 | | | | | |
| | | | | Taxes w/Current Exemptions: | $2,680.20 | | |
| | | | | Taxes w/o Exemptions: | $2,680.20 | | |
Improvement / Building
| Improvement #1: | RESIDENTIAL | State Code: | Y | 1120.0 sqft | Value: | $170,421 |
| Bathrooms: | 1 | Bedrooms: | 1 | | Ceiling: | DRYWALL PAINTED | Exterior Wall/Cover: | PLY/HARDBOARD T-111 | | Floor Covering: | CARPET/VINYL 80-20 | Floor Structure: | WOOD W/SUBFLOOR | | Foundation: | CONCRETE | Heating: | WALL HEAT ELECTRIC | | Interior Finish: | DRYWALL PAINT | Plumbing Fixture Cnt: | 6 | | Roof Slope: | 4" IN 12" | Roof Structure/Cover: | CJ ASPHALT |
|
| | Type | Description | Class CD | Sub Class CD | Year Built | Area |
| | BAS | BASE/MAIN FLOOR | 3 | 0 | 1993 | 1120.0 |
| | AGR | ATTACHED GARAGE | 3 | 0 | 1993 | 392.0 |
Sketch
Property Image
Land
| 1 | 13 | SQ (06001-08000) | 0.0000 | 0.00 | 0.00 | 0.00 | 1.00 | $230,000 | $0 |
Roll Value History
| 2026 | N/A | N/A | N/A | N/A | N/A |
| 2025 | $170,421 | $230,000 | $0 | $400,421 | $400,421 |
| 2024 | $172,686 | $215,000 | $0 | $387,686 | $387,686 |
| 2023 | $174,951 | $230,000 | $0 | $404,951 | $404,951 |
| 2022 | $160,478 | $180,000 | $0 | $340,478 | $340,478 |
| 2021 | $141,322 | $150,000 | $0 | $291,322 | $291,322 |
| 2020 | $137,831 | $120,000 | $0 | $257,831 | $257,831 |
| 2019 | $98,314 | $170,000 | $0 | $268,314 | $268,314 |
| 2018 | $98,616 | $130,000 | $0 | $228,616 | $228,616 |
| 2017 | $99,222 | $110,000 | $0 | $209,222 | $209,222 |
| 2016 | $100,432 | $65,000 | $0 | $165,432 | $165,432 |
| 2015 | $101,641 | $55,000 | $0 | $156,641 | $156,641 |
| 2014 | $106,172 | $65,000 | $0 | $171,172 | $171,172 |
| 2013 | $107,479 | $65,000 | $0 | $172,479 | $172,479 |
| 2012 | $108,785 | $81,000 | $0 | $189,785 | $189,785 |
| 2011 | $110,090 | $90,000 | $0 | $200,090 | $200,090 |
| 2010 | $114,219 | $90,000 | $0 | $204,219 | $204,219 |
| 2009 | $119,085 | $100,000 | $0 | $219,085 | $219,085 |
| 2008 | $116,226 | $120,000 | $0 | $236,226 | $236,226 |
| 2007 | $117,684 | $120,000 | $0 | $237,684 | $237,684 |
Deed and Sales History
| 1 | 01/05/2023 | QCD | Quit Claim Deed | HARPER, STEVEN H | HARPER, STEVEN | | | $0.00 | 55666 | 4555895 |
| 2 | 07/11/2003 | WD | Warranty Deed | BATES, RONALD K | HARPER, STEVEN H | | | $129,900.00 | 33164 | 4067945 |
| 3 | 11/01/1994 | WD | Warranty Deed | TUFF, CURTIS J | BATES, RONALD K | | | $86,000.00 | 44726 | 94024137 |
| 4 | 10/01/1990 | WD | Warranty Deed | ERSBO, JAMES S | TUFF, CURTIS J | | | $9,000.00 | 6031 | 90020459 |
| 5 | 06/01/1987 | DECREE | Divorce Decree/Legal Separation | ERSBO, JAMES S | ERSBO, JAMES S | | | $0.00 | 71800 | 87008375 |
| 6 | 01/01/1900 | OTHER | Other - Misc. Documents | Unknown | ERSBO, JAMES S | | | $0.00 | 0 | 0 |
Payout Agreement
| No payout information available.. |