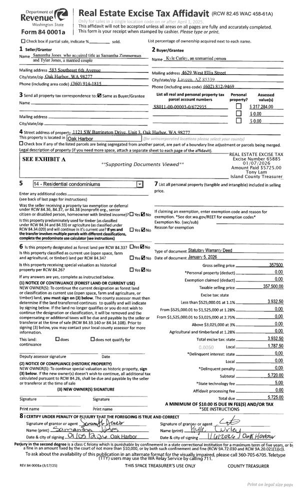
Property
Account |
| Property ID: | 22601 | Abbreviated Legal Description: | 42 HASTIE DC - BG SW CR SD DC E1116' TO CLN ST HWY 20 N30' TPB W316' N270' E316' S270' TPB EX RDS |
| Geographic ID: | R13220-255-2310 | Agent Code: | |
| Type: | Real | | |
| Tax Area: | 332 - APPRAISER-Cpvl Schl Dist, Special Dist, improved, greater than 1 acre | Land Use Code | 11 |
| Open Space: | N | DFL | N |
| Historic Property: | N | Remodel Property: | N |
| Multi-Family Redevelopment: | N | | |
| Township: | 32 | Section: | 20 |
| Range: | R1 |
Location |
| Address: | 27181 SR20 OAK HARBOR, WA 98277 | Mapsco: | |
| Neighborhood: | Cycle 2 | Map ID: | 145 |
| Neighborhood CD: | 2 |
Owner |
| Name: | HARRIS, PHILLIP D | Owner ID: | 112090 |
| Mailing Address: | OTA N HARRIS 27181 STATE ROUTE 20 OAK HARBOR, WA 98277-8305 | % Ownership: | 100.0000000000% |
| | | Exemptions: | |
Taxes and Assessment Details
Values
| (+) Improvement Homesite Value: | + | $0 | |
| (+) Improvement Non-Homesite Value: | + | $293,425 | |
| (+) Land Homesite Value: | + | $0 | |
| (+) Land Non-Homesite Value: | + | $285,707 | |
| (+) Curr Use (HS): | + | $0 | $0 |
| (+) Curr Use (NHS): | + | $0 | $0 |
| | | -------------------------- | |
| (=) Market Value: | = | $579,132 | |
| (–) Productivity Loss: | – | $0 | |
| | | -------------------------- | |
| (=) Subtotal: | = | $579,132 | |
| (+) Senior Appraised Value: | + | $0 | |
| (+) Non-Senior Appraised Value: | + | $579,132 | |
| | | -------------------------- | |
| (=) Total Appraised Value: | = | $579,132 | |
| (–) Senior Exemption Loss: | – | $0 | |
| (–) Exemption Loss: | – | $0 | |
| | | -------------------------- | |
| (=) Taxable Value: | = | $579,132 | |
Taxing Jurisdiction
| Owner: | HARRIS, PHILLIP D | | |
| % Ownership: | 100.0000000000% | | |
| Total Value: | $579,132 | | |
| Tax Area: | 332 - APPRAISER-Cpvl Schl Dist, Special Dist, improved, greater than 1 acre |
| CF | Conservation Futures | 0.0316035091 | $579,132 | $579,132 | $18.30 | | |
| CEM2 | Cemetery #2 | 0.0095056933 | $579,132 | $579,132 | $5.51 | | |
| FIRE2 | Fire & Rescue Dist #2 N Whidbey GEN | 0.5475949600 | $579,132 | $579,132 | $317.13 | | |
| HOBOND | Hospital BOND | 0.1910887512 | $579,132 | $579,132 | $110.67 | | |
| HOGEN | Hospital GEN | 0.3902502903 | $579,132 | $579,132 | $226.01 | | |
| CE | County Current Expense | 0.3708482477 | $579,132 | $579,132 | $214.77 | | |
| CR | County Roads | 0.4584763726 | $579,132 | $579,132 | $265.52 | | |
| ISLANDEMS | Hospital GEN (EMS) | 0.5000000000 | $579,132 | $579,132 | $289.57 | | |
| LIB | Library Sno-Isle GEN | 0.3153421757 | $579,132 | $579,132 | $182.62 | | |
| LIBCAP | Library Sno-Isle BOND (Cap Fac Imp Area) | 0.0543427938 | $579,132 | $579,132 | $31.47 | | |
| POCOUP | Port of Coupeville GEN | 0.1093371703 | $579,132 | $579,132 | $63.32 | | |
| POCOUPIDD | Port of Coupeville IDD | 0.3409740022 | $579,132 | $579,132 | $197.47 | | |
| COUPSDTECH | School 204 CP (TECH) | 0.7545480007 | $579,132 | $579,132 | $436.98 | | |
| SCH204MO | School 204 Enrichment | 0.6716186034 | $579,132 | $579,132 | $388.96 | | |
| ST | State School | 1.3035497053 | $579,132 | $579,132 | $754.93 | | |
| ST2 | State School Part 2 | 0.8169543533 | $579,132 | $579,132 | $473.12 | | |
| | Total Tax Rate: | 6.8660346289 | | | | | |
| | | | | Taxes w/Current Exemptions: | $3,976.35 | | |
| | | | | Taxes w/o Exemptions: | $3,976.35 | | |
Improvement / Building
| Improvement #1: | RESIDENTIAL | State Code: | Y | 2708.0 sqft | Value: | $293,425 |
| Bathrooms: | 2 | Bedrooms: | 2 | | Ceiling: | DRYWALL PAINTED | Exterior Wall/Cover: | VINYL | | Floor Covering: | CARPET/VINYL 80-20 | Floor Structure: | WOOD W/SUBFLOOR | | Foundation: | CONCRETE | Heating: | FHA GAS | | Interior Finish: | DRYWALL PAINT | Plumbing Fixture Cnt: | 10 | | Roof Slope: | 4" IN 12" | Roof Structure/Cover: | CJ ASPHALT |
|
| | Type | Description | Class CD | Sub Class CD | Year Built | Area |
| | BAS | BASE/MAIN FLOOR | 3 | 0 | 1975 | 1388.0 |
| | OWP | OPEN WOOD PORCH W/STEPS | 3 | 0 | 1975 | 175.7 |
| | OWC | OPEN WOOD PORCH W/STEPS/ROOF/C | 3 | 0 | 1975 | 52.0 |
| | DWN | DOWNSTAIRS LIVING AREA | 3 | 0 | 1975 | 1320.0 |
| | DGR | DETACHED GARAGE | 3 | 0 | 1975 | 690.0 |
| | DGR | DETACHED GARAGE | 3 | 0 | 1975 | 720.0 |
Sketch
Property Image
Land
| 1 | HS | HOMESITE | 1.0000 | 43560.00 | 0.00 | 0.00 | 1.00 | $220,000 | $0 |
| 2 | 91 | UNDEVELOPED LAND-METES AND BOUNDS | 0.7700 | 33541.20 | 0.00 | 0.00 | 1.00 | $65,707 | $0 |
Roll Value History
| 2026 | N/A | N/A | N/A | N/A | N/A |
| 2025 | $293,425 | $285,707 | $0 | $579,132 | $579,132 |
| 2024 | $297,787 | $260,000 | $0 | $557,787 | $557,787 |
| 2023 | $302,152 | $260,000 | $0 | $562,152 | $562,152 |
| 2022 | $277,541 | $250,000 | $0 | $527,541 | $527,541 |
| 2021 | $244,788 | $150,000 | $0 | $394,788 | $394,788 |
| 2020 | $239,675 | $150,000 | $0 | $389,675 | $389,675 |
| 2019 | $188,114 | $180,000 | $0 | $368,114 | $368,114 |
| 2018 | $182,410 | $160,000 | $0 | $342,410 | $342,410 |
| 2017 | $183,555 | $150,000 | $0 | $333,555 | $333,555 |
| 2016 | $185,845 | $120,000 | $0 | $305,845 | $305,845 |
| 2015 | $188,136 | $90,000 | $0 | $278,136 | $278,136 |
| 2014 | $190,427 | $90,000 | $0 | $280,427 | $280,427 |
| 2013 | $192,717 | $69,445 | $0 | $262,162 | $262,162 |
| 2012 | $211,267 | $69,445 | $0 | $280,712 | $280,712 |
| 2011 | $213,806 | $81,700 | $0 | $295,506 | $295,506 |
| 2010 | $224,130 | $81,700 | $0 | $305,830 | $305,830 |
| 2009 | $230,637 | $90,300 | $0 | $320,937 | $320,937 |
| 2008 | $233,694 | $81,270 | $0 | $314,964 | $314,964 |
| 2007 | $236,759 | $81,270 | $0 | $318,029 | $318,029 |
Deed and Sales History
| 1 | 09/26/2011 | EZ | Easement | HARRIS, PHILLIP D | HARRIS, PHILLIP D | | | $1,557.00 | 6144 | 4304873 |
| 2 | 11/01/1987 | WD | Warranty Deed | YOUNG, MATSON A | HARRIS, PHILLIP D | | | $96,500.00 | 73681 | 87016049 |
| 3 | 01/01/1900 | OTHER | Other - Misc. Documents | Unknown | YOUNG, MATSON A | | | $0.00 | 0 | 0 |
Payout Agreement
| No payout information available.. |