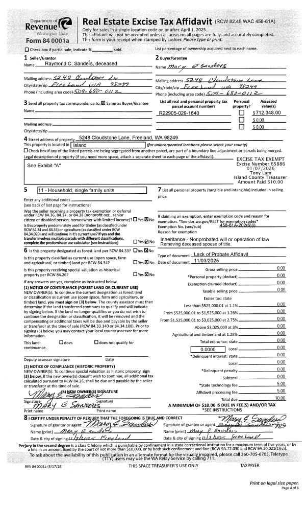
Property
Account |
| Property ID: | 22610 | Abbreviated Legal Description: | 16 HASTIE DC - BG NECR HOWE DC N ON ELN HASTIE DC 426' W TO CTR CO RD S TO SLN SD HASTIE DC E TO TPB V583 D P2172 |
| Geographic ID: | R13220-258-2890 | Agent Code: | |
| Type: | Real | | |
| Tax Area: | 332 - APPRAISER-Cpvl Schl Dist, Special Dist, improved, greater than 1 acre | Land Use Code | 11 |
| Open Space: | N | DFL | N |
| Historic Property: | N | Remodel Property: | N |
| Multi-Family Redevelopment: | N | | |
| Township: | 32 | Section: | 20 |
| Range: | R1 |
Location |
| Address: | 27188 SR20 OAK HARBOR, WA 98277 | Mapsco: | |
| Neighborhood: | Cycle 2 | Map ID: | 148 |
| Neighborhood CD: | 2 |
Owner |
| Name: | LEACH, JOSEPH EDWARD | Owner ID: | 284792 |
| Mailing Address: | 27188 SR 20 OAK HARBOR, WA 98277 | % Ownership: | 100.0000000000% |
| | | Exemptions: | |
Taxes and Assessment Details
Values
| (+) Improvement Homesite Value: | + | $0 | |
| (+) Improvement Non-Homesite Value: | + | $358,344 | |
| (+) Land Homesite Value: | + | $0 | |
| (+) Land Non-Homesite Value: | + | $345,670 | |
| (+) Curr Use (HS): | + | $0 | $0 |
| (+) Curr Use (NHS): | + | $0 | $0 |
| | | -------------------------- | |
| (=) Market Value: | = | $704,014 | |
| (–) Productivity Loss: | – | $0 | |
| | | -------------------------- | |
| (=) Subtotal: | = | $704,014 | |
| (+) Senior Appraised Value: | + | $0 | |
| (+) Non-Senior Appraised Value: | + | $704,014 | |
| | | -------------------------- | |
| (=) Total Appraised Value: | = | $704,014 | |
| (–) Senior Exemption Loss: | – | $0 | |
| (–) Exemption Loss: | – | $0 | |
| | | -------------------------- | |
| (=) Taxable Value: | = | $704,014 | |
Taxing Jurisdiction
| Owner: | LEACH, JOSEPH EDWARD | | |
| % Ownership: | 100.0000000000% | | |
| Total Value: | $704,014 | | |
| Tax Area: | 332 - APPRAISER-Cpvl Schl Dist, Special Dist, improved, greater than 1 acre |
| CF | Conservation Futures | 0.0316035091 | $704,014 | $704,014 | $22.25 | | |
| CEM2 | Cemetery #2 | 0.0095056933 | $704,014 | $704,014 | $6.69 | | |
| FIRE2 | Fire & Rescue Dist #2 N Whidbey GEN | 0.5475949600 | $704,014 | $704,014 | $385.51 | | |
| HOBOND | Hospital BOND | 0.1910887512 | $704,014 | $704,014 | $134.53 | | |
| HOGEN | Hospital GEN | 0.3902502903 | $704,014 | $704,014 | $274.74 | | |
| CE | County Current Expense | 0.3708482477 | $704,014 | $704,014 | $261.08 | | |
| CR | County Roads | 0.4584763726 | $704,014 | $704,014 | $322.77 | | |
| ISLANDEMS | Hospital GEN (EMS) | 0.5000000000 | $704,014 | $704,014 | $352.01 | | |
| LIB | Library Sno-Isle GEN | 0.3153421757 | $704,014 | $704,014 | $222.01 | | |
| LIBCAP | Library Sno-Isle BOND (Cap Fac Imp Area) | 0.0543427938 | $704,014 | $704,014 | $38.26 | | |
| POCOUP | Port of Coupeville GEN | 0.1093371703 | $704,014 | $704,014 | $76.97 | | |
| POCOUPIDD | Port of Coupeville IDD | 0.3409740022 | $704,014 | $704,014 | $240.05 | | |
| COUPSDTECH | School 204 CP (TECH) | 0.7545480007 | $704,014 | $704,014 | $531.21 | | |
| SCH204MO | School 204 Enrichment | 0.6716186034 | $704,014 | $704,014 | $472.83 | | |
| ST | State School | 1.3035497053 | $704,014 | $704,014 | $917.72 | | |
| ST2 | State School Part 2 | 0.8169543533 | $704,014 | $704,014 | $575.15 | | |
| | Total Tax Rate: | 6.8660346289 | | | | | |
| | | | | Taxes w/Current Exemptions: | $4,833.78 | | |
| | | | | Taxes w/o Exemptions: | $4,833.78 | | |
Improvement / Building
| Improvement #1: | RESIDENTIAL | State Code: | Y | 2128.0 sqft | Value: | $358,344 |
| Bathrooms: | 2.5 | Bedrooms: | 3 | | Ceiling: | DRYWALL PAINTED | Cooling: | HEAT PUMP/CONV/V | | Exterior Wall/Cover: | CEMENT FIBER | Floor Covering: | CARPET/VINYL 60-40 | | Floor Structure: | WOOD W/SUBFLOOR | Foundation: | CONCRETE | | Interior Finish: | DRYWALL PAINT | Plumbing Fixture Cnt: | 12 | | Roof Slope: | 8" IN 12" | Roof Structure/Cover: | CJ ASPHALT |
|
| | Type | Description | Class CD | Sub Class CD | Year Built | Area |
| | BAS | BASE/MAIN FLOOR | 3 | 0 | 2001 | 1248.0 |
| | OP4 | OPEN PORCH W/CEILING-ROOF | 3 | 0 | 2001 | 117.0 |
| | AGR | ATTACHED GARAGE | 3 | 0 | 2001 | 440.0 |
| | UPS | UPPER STORY | 3 | 0 | 2001 | 880.0 |
| | CPD | OPEN CARPORT DIRT FLOOR | 3 | 0 | 2001 | 504.0 |
| | UTY | STORAGE/UTILITY | 3 | 0 | 2001 | 868.1 |
Sketch
Property Image
Land
| 1 | HS | HOMESITE | 1.0000 | 43560.00 | 0.00 | 0.00 | 1.00 | $220,000 | $0 |
| 2 | 91 | UNDEVELOPED LAND-METES AND BOUNDS | 6.5000 | 283140.00 | 0.00 | 0.00 | 1.00 | $125,670 | $0 |
Roll Value History
| 2026 | N/A | N/A | N/A | N/A | N/A |
| 2025 | $358,344 | $345,670 | $0 | $704,014 | $704,014 |
| 2024 | $358,344 | $300,000 | $0 | $658,344 | $658,344 |
| 2023 | $362,866 | $280,000 | $0 | $642,866 | $642,866 |
| 2022 | $332,667 | $260,000 | $0 | $592,667 | $592,667 |
| 2021 | $292,832 | $170,000 | $0 | $462,832 | $462,832 |
| 2020 | $285,504 | $170,000 | $0 | $455,504 | $455,504 |
| 2019 | $217,940 | $230,000 | $0 | $447,940 | $447,940 |
| 2018 | $206,514 | $170,000 | $0 | $376,514 | $376,514 |
| 2017 | $207,674 | $170,000 | $0 | $377,674 | $377,674 |
| 2016 | $209,993 | $160,000 | $0 | $369,993 | $369,993 |
| 2015 | $210,850 | $150,000 | $0 | $360,850 | $360,850 |
| 2014 | $213,180 | $150,000 | $0 | $363,180 | $363,180 |
| 2013 | $215,510 | $101,250 | $0 | $316,760 | $316,760 |
| 2012 | $224,700 | $101,250 | $0 | $325,950 | $325,950 |
| 2011 | $226,927 | $112,500 | $0 | $339,427 | $339,427 |
| 2010 | $232,453 | $112,500 | $0 | $344,953 | $344,953 |
| 2009 | $242,798 | $165,000 | $0 | $407,798 | $407,798 |
| 2008 | $244,555 | $178,200 | $0 | $422,755 | $422,755 |
| 2007 | $248,296 | $162,000 | $0 | $410,296 | $410,296 |
Deed and Sales History
| 1 | 04/26/2018 | QCD | Quit Claim Deed | LEACH TRUSTEE, ROBERT ARTHUR | LEACH, JOSEPH EDWARD | | | $0.00 | 33866 | 4443422 |
| 2 | 07/19/2017 | QCD | Quit Claim Deed | LEACH, ROBERT ARTHUR | LEACH TRUSTEE, ROBERT ARTHUR | | | $0.00 | 30240 | 4426523 |
| 3 | 07/19/2017 | QCD | Quit Claim Deed | LEACH JTWROS, ROBERT A | LEACH, ROBERT ARTHUR | | | $0.00 | 30239 | 4426522 |
| 4 | 12/13/2016 | TOD | Transfer On Death Deed | LEACH JTWROS, ROBERT A | LEACH JTWROS, ROBERT A | | | | 87497 | |
| 5 | 09/18/2013 | QCD | Quit Claim Deed | LEACH, ROBERT A | LEACH JTWROS, ROBERT A | | | $0.00 | 13030 | 4349171 |
| 6 | 09/18/2013 | TRUSTEED | Trustee's Deed | LEACH TTEE, ROBERT A | LEACH, ROBERT A | | | $0.00 | 13029 | 4349170 |
| 7 | 05/23/2007 | QCD | Quit Claim Deed | LEACH, ROBERT A | LEACH TTEE, ROBERT A | | | $0.00 | 71731 | 4202869 |
| 8 | 12/28/2000 | QCD | Quit Claim Deed | BE, LEACH T | LEACH, ROBERT A | | | $0.00 | 10006 | 20022728 |
| 9 | 04/01/1996 | QCD | Quit Claim Deed | LEACH, BOB & | BE, LEACH T | | | $0.00 | 61473 | 96007340 |
| 10 | 04/01/1990 | QCD | Quit Claim Deed | LEACH, ROBERT A | LEACH, BOB & | | | $0.00 | 2324 | 90007593 |
| 11 | 04/01/1971 | EXECUTORD | Executor Deed | NIENHUIS, FRED | LEACH, ROBERT A | | | $0.00 | 41110 | 0 |
Payout Agreement
| No payout information available.. |