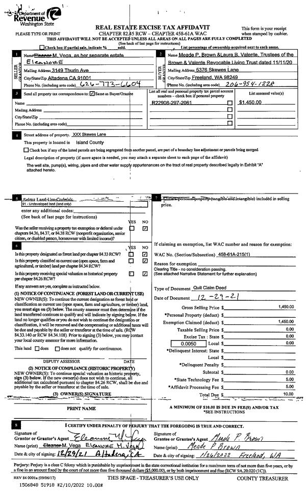
Property
Account |
| Property ID: | 226302 | Abbreviated Legal Description: | CAMP COMFORT 1ST LOT 16 |
| Geographic ID: | S6300-01-00016-0 | Agent Code: | |
| Type: | Real | | |
| Tax Area: | 510 - APPRAISER-Stan/Cam Schl Dist, improved & 1 acre or less | Land Use Code | 11 |
| Open Space: | N | DFL | N |
| Historic Property: | N | Remodel Property: | N |
| Multi-Family Redevelopment: | N | | |
| Township: | | Section: | |
| Range: | |
Location |
| Address: | 1370 JOHN ST CAMANO ISLAND, WA 98282 | Mapsco: | |
| Neighborhood: | Cycle 5 | Map ID: | 502 |
| Neighborhood CD: | 5 |
Owner |
| Name: | MACKEY TRUSTEE, JEFFREY R | Owner ID: | 259192 |
| Mailing Address: | & SONIA S NELSON TRUSTEE 1/2 INT NEIL W BERQUIST 1/2 INT 1027 DALEY ST EDMONDS, WA 98202 | % Ownership: | 100.0000000000% |
| | | Exemptions: | |
Taxes and Assessment Details
Values
| (+) Improvement Homesite Value: | + | $0 | |
| (+) Improvement Non-Homesite Value: | + | $164,933 | |
| (+) Land Homesite Value: | + | $0 | |
| (+) Land Non-Homesite Value: | + | $280,000 | |
| (+) Curr Use (HS): | + | $0 | $0 |
| (+) Curr Use (NHS): | + | $0 | $0 |
| | | -------------------------- | |
| (=) Market Value: | = | $444,933 | |
| (–) Productivity Loss: | – | $0 | |
| | | -------------------------- | |
| (=) Subtotal: | = | $444,933 | |
| (+) Senior Appraised Value: | + | $0 | |
| (+) Non-Senior Appraised Value: | + | $444,933 | |
| | | -------------------------- | |
| (=) Total Appraised Value: | = | $444,933 | |
| (–) Senior Exemption Loss: | – | $0 | |
| (–) Exemption Loss: | – | $0 | |
| | | -------------------------- | |
| (=) Taxable Value: | = | $444,933 | |
Taxing Jurisdiction
| Owner: | MACKEY TRUSTEE, JEFFREY R | | |
| % Ownership: | 100.0000000000% | | |
| Total Value: | $444,933 | | |
| Tax Area: | 510 - APPRAISER-Stan/Cam Schl Dist, improved & 1 acre or less |
| CF | Conservation Futures | 0.0316035091 | $444,933 | $444,933 | $14.06 | | |
| EMS1 | Fire & Rescue Dist #1 Camano GEN (EMS) | 0.3677864386 | $444,933 | $444,933 | $163.64 | | |
| FIRE1 | Fire & Rescue Dist #1 Camano GEN | 1.2502910536 | $444,933 | $444,933 | $556.30 | | |
| FIRE1BOND | Fire & Rescue Dist #1 Camano BOND | 0.1570001679 | $444,933 | $444,933 | $69.85 | | |
| CE | County Current Expense | 0.3708482477 | $444,933 | $444,933 | $165.00 | | |
| CR | County Roads | 0.4584763726 | $444,933 | $444,933 | $203.99 | | |
| LCIB | Library Sno-Isle BOND (Camano Island) | 0.0396325772 | $444,933 | $444,933 | $17.63 | | |
| LIB | Library Sno-Isle GEN | 0.3153421757 | $444,933 | $444,933 | $140.31 | | |
| SCH205_401 | School 205-401 Enrichment | 1.2698420524 | $444,933 | $444,933 | $564.99 | | |
| SCH205BOND | School 205-401 BOND | 0.9396497583 | $444,933 | $444,933 | $418.08 | | |
| ST | State School | 1.3035497053 | $444,933 | $444,933 | $579.99 | | |
| ST2 | State School Part 2 | 0.8169543533 | $444,933 | $444,933 | $363.49 | | |
| | Total Tax Rate: | 7.3209764117 | | | | | |
| | | | | Taxes w/Current Exemptions: | $3,257.33 | | |
| | | | | Taxes w/o Exemptions: | $3,257.33 | | |
Improvement / Building
| Improvement #1: | RESIDENTIAL | State Code: | Y | 1248.0 sqft | Value: | $164,933 |
| Bathrooms: | 2 | Bedrooms: | 4 | | Ceiling: | BEAM PAINTED | Exterior Wall/Cover: | PLY/HARDBOARD T-111 | | Floor Covering: | CARPET 100% | Floor Structure: | WOOD W/SUBFLOOR | | Foundation: | CONCRETE | Heating: | BASEBOARD ELECTRIC | | Interior Finish: | DRYWALL PAINT | Plumbing Fixture Cnt: | 8 | | Roof Slope: | FLAT | Roof Structure/Cover: | BEAM BUILT-UP ROCK |
|
| | Type | Description | Class CD | Sub Class CD | Year Built | Area |
| | BAS | BASE/MAIN FLOOR | 3 | 0 | 1968 | 624.0 |
| | DWN | DOWNSTAIRS LIVING AREA | 3 | 0 | 1968 | 624.0 |
| | AGR | ATTACHED GARAGE | 3 | 0 | 1968 | 520.0 |
| | BAR | BALCONY W/ROOF | 3 | 0 | 1968 | 144.0 |
| | OWR | OPEN WOOD PORCH W/STEPS/ROOF | 3 | 0 | 1968 | 114.0 |
Sketch
Property Image
Land
| 1 | 12 | SQ (00000-06000) | 0.0000 | 0.00 | 0.00 | 0.00 | 1.00 | $280,000 | $0 |
Roll Value History
| 2026 | N/A | N/A | N/A | N/A | N/A |
| 2025 | $164,933 | $280,000 | $0 | $444,933 | $444,933 |
| 2024 | $167,973 | $280,000 | $0 | $447,973 | $447,973 |
| 2023 | $170,589 | $280,000 | $0 | $450,589 | $450,589 |
| 2022 | $156,842 | $230,000 | $0 | $386,842 | $386,842 |
| 2021 | $140,460 | $150,000 | $0 | $290,460 | $290,460 |
| 2020 | $136,210 | $150,000 | $0 | $286,210 | $286,210 |
| 2019 | $92,430 | $200,000 | $0 | $292,430 | $292,430 |
| 2018 | $92,779 | $150,000 | $0 | $242,779 | $242,779 |
| 2017 | $93,475 | $110,000 | $0 | $203,475 | $203,475 |
| 2016 | $94,871 | $110,000 | $0 | $204,871 | $204,871 |
| 2015 | $88,611 | $75,000 | $0 | $163,611 | $163,611 |
| 2014 | $90,048 | $75,000 | $0 | $165,048 | $165,048 |
| 2013 | $91,484 | $75,000 | $0 | $166,484 | $166,484 |
| 2012 | $92,921 | $82,400 | $0 | $175,321 | $175,321 |
| 2011 | $94,359 | $103,000 | $0 | $197,359 | $197,359 |
| 2010 | $96,090 | $103,000 | $0 | $199,090 | $199,090 |
| 2009 | $96,708 | $125,000 | $0 | $221,708 | $221,708 |
| 2008 | $98,099 | $84,000 | $0 | $182,099 | $182,099 |
| 2007 | $99,491 | $84,000 | $0 | $183,491 | $183,491 |
Deed and Sales History
| 1 | 07/18/2012 | QCD | Quit Claim Deed | NELSON, SONIA S | MACKEY TRUSTEE, JEFFREY R | | | $0.00 | 8606 | 4321575 |
| 2 | 07/17/2008 | QCD | Quit Claim Deed | NELSON, SONIA S | NELSON, SONIA S | | | $0.00 | 4178 | 4233315 |
| 3 | 04/25/2003 | 5 | DNU - Marriage License/Name Change | BERGQUIST, SONIA S | NELSON, SONIA S | | | $0.00 | 69820 | 0 |
| 4 | 02/26/1999 | DECREE | Divorce Decree/Legal Separation | BERGQUIST, WILLIAM E | BERGQUIST, SONIA S | | | $0.00 | 90763 | 99005432 |
| 5 | 06/01/1992 | WD | Warranty Deed | ZIMMER, GEORGE F | BERGQUIST, WILLIAM E | | | $102,500.00 | 22634 | 92012727 |
| 6 | 05/01/1981 | EXECUTORD | Executor Deed | CARLQUIST, VICTOR E | ZIMMER, GEORGE F | | | $60,000.00 | 11469 | 383009 |
| 7 | 01/01/1900 | OTHER | Other - Misc. Documents | Unknown | CARLQUIST, VICTOR E | | | $0.00 | 0 | 0 |
Payout Agreement
| No payout information available.. |