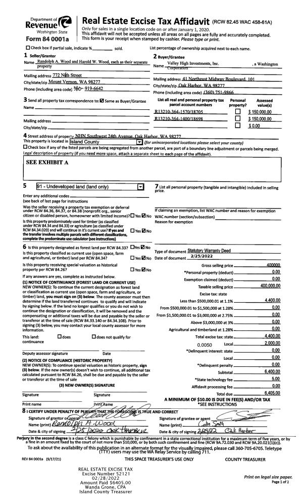
Property
Account |
| Property ID: | 226400 | Abbreviated Legal Description: | CAMP COMFORT 1ST LOT 26 |
| Geographic ID: | S6300-01-00026-0 | Agent Code: | |
| Type: | Real | | |
| Tax Area: | 510 - APPRAISER-Stan/Cam Schl Dist, improved & 1 acre or less | Land Use Code | 11 |
| Open Space: | N | DFL | N |
| Historic Property: | N | Remodel Property: | N |
| Multi-Family Redevelopment: | N | | |
| Township: | | Section: | |
| Range: | |
Location |
| Address: | 1373 JOHN ST CAMANO ISLAND, WA 98282 | Mapsco: | |
| Neighborhood: | Cycle 5 | Map ID: | 502 |
| Neighborhood CD: | 5 |
Owner |
| Name: | COTTER, MARCY S | Owner ID: | 254423 |
| Mailing Address: | 1992 ELGER BAY RD CAMANO ISLAND, WA 98282 | % Ownership: | 100.0000000000% |
| | | Exemptions: | |
Taxes and Assessment Details
Values
| (+) Improvement Homesite Value: | + | $0 | |
| (+) Improvement Non-Homesite Value: | + | $282,467 | |
| (+) Land Homesite Value: | + | $0 | |
| (+) Land Non-Homesite Value: | + | $280,000 | |
| (+) Curr Use (HS): | + | $0 | $0 |
| (+) Curr Use (NHS): | + | $0 | $0 |
| | | -------------------------- | |
| (=) Market Value: | = | $562,467 | |
| (–) Productivity Loss: | – | $0 | |
| | | -------------------------- | |
| (=) Subtotal: | = | $562,467 | |
| (+) Senior Appraised Value: | + | $0 | |
| (+) Non-Senior Appraised Value: | + | $562,467 | |
| | | -------------------------- | |
| (=) Total Appraised Value: | = | $562,467 | |
| (–) Senior Exemption Loss: | – | $0 | |
| (–) Exemption Loss: | – | $0 | |
| | | -------------------------- | |
| (=) Taxable Value: | = | $562,467 | |
Taxing Jurisdiction
| Owner: | COTTER, MARCY S | | |
| % Ownership: | 100.0000000000% | | |
| Total Value: | $562,467 | | |
| Tax Area: | 510 - APPRAISER-Stan/Cam Schl Dist, improved & 1 acre or less |
| CF | Conservation Futures | 0.0316035091 | $562,467 | $562,467 | $17.78 | | |
| EMS1 | Fire & Rescue Dist #1 Camano GEN (EMS) | 0.3677864386 | $562,467 | $562,467 | $206.87 | | |
| FIRE1 | Fire & Rescue Dist #1 Camano GEN | 1.2502910536 | $562,467 | $562,467 | $703.25 | | |
| FIRE1BOND | Fire & Rescue Dist #1 Camano BOND | 0.1570001679 | $562,467 | $562,467 | $88.31 | | |
| CE | County Current Expense | 0.3708482477 | $562,467 | $562,467 | $208.59 | | |
| CR | County Roads | 0.4584763726 | $562,467 | $562,467 | $257.88 | | |
| LCIB | Library Sno-Isle BOND (Camano Island) | 0.0396325772 | $562,467 | $562,467 | $22.29 | | |
| LIB | Library Sno-Isle GEN | 0.3153421757 | $562,467 | $562,467 | $177.37 | | |
| SCH205_401 | School 205-401 Enrichment | 1.2698420524 | $562,467 | $562,467 | $714.24 | | |
| SCH205BOND | School 205-401 BOND | 0.9396497583 | $562,467 | $562,467 | $528.52 | | |
| ST | State School | 1.3035497053 | $562,467 | $562,467 | $733.20 | | |
| ST2 | State School Part 2 | 0.8169543533 | $562,467 | $562,467 | $459.51 | | |
| | Total Tax Rate: | 7.3209764117 | | | | | |
| | | | | Taxes w/Current Exemptions: | $4,117.81 | | |
| | | | | Taxes w/o Exemptions: | $4,117.81 | | |
Improvement / Building
| Improvement #1: | RESIDENTIAL | State Code: | Y | 2045.6 sqft | Value: | $282,467 |
| Bathrooms: | 3 | Bedrooms: | 0 | | Ceiling: | DRYWALL PAINTED | Cooling: | HEAT PUMP/CONV/V | | Exterior Wall/Cover: | PLY/HARDBOARD T-111 | Floor Covering: | CARPET/VINYL 80-20 | | Floor Structure: | WOOD W/SUBFLOOR | Foundation: | CONCRETE | | Interior Finish: | DRYWALL PAINT | Plumbing Fixture Cnt: | 12 | | Roof Slope: | 5" IN 12" | Roof Structure/Cover: | CJ ASPHALT |
|
| | Type | Description | Class CD | Sub Class CD | Year Built | Area |
| | BAS | BASE/MAIN FLOOR | 3 | 0 | 1996 | 1341.6 |
| | BIG | BUILT IN GARAGE | 3 | 0 | 1996 | 544.0 |
| | OWP | OPEN WOOD PORCH W/STEPS | 3 | 0 | 1996 | 240.0 |
| | OWP | OPEN WOOD PORCH W/STEPS | 3 | 0 | 1996 | 288.0 |
| | OWP | OPEN WOOD PORCH W/STEPS | 3 | 0 | 1996 | 140.0 |
| | DWN | DOWNSTAIRS LIVING AREA | 3 | 0 | 1996 | 704.0 |
Sketch
Property Image
Land
| 1 | 13 | SQ (06001-08000) | 0.0000 | 0.00 | 0.00 | 0.00 | 1.00 | $280,000 | $0 |
Roll Value History
| 2026 | N/A | N/A | N/A | N/A | N/A |
| 2025 | $282,467 | $280,000 | $0 | $562,467 | $562,467 |
| 2024 | $286,123 | $280,000 | $0 | $566,123 | $566,123 |
| 2023 | $289,779 | $280,000 | $0 | $569,779 | $569,779 |
| 2022 | $265,716 | $230,000 | $0 | $495,716 | $495,716 |
| 2021 | $231,053 | $150,000 | $0 | $381,053 | $381,053 |
| 2020 | $225,241 | $150,000 | $0 | $375,241 | $375,241 |
| 2019 | $171,115 | $200,000 | $0 | $371,115 | $371,115 |
| 2018 | $171,634 | $150,000 | $0 | $321,634 | $321,634 |
| 2017 | $171,088 | $130,000 | $0 | $301,088 | $301,088 |
| 2016 | $173,150 | $110,000 | $0 | $283,150 | $283,150 |
| 2015 | $172,964 | $75,000 | $0 | $247,964 | $247,964 |
| 2014 | $175,104 | $75,000 | $0 | $250,104 | $250,104 |
| 2013 | $177,243 | $75,000 | $0 | $252,243 | $252,243 |
| 2012 | $179,383 | $82,400 | $0 | $261,783 | $261,783 |
| 2011 | $181,521 | $103,000 | $0 | $284,521 | $284,521 |
| 2010 | $194,423 | $103,000 | $0 | $297,423 | $297,423 |
| 2009 | $198,014 | $125,000 | $0 | $323,014 | $323,014 |
| 2008 | $200,756 | $96,800 | $0 | $297,556 | $297,556 |
| 2007 | $203,497 | $96,800 | $0 | $300,297 | $300,297 |
Deed and Sales History
| 1 | 05/05/2011 | WD | Warranty Deed | TAYLOR, KYLE R | COTTER, MARCY S | | | $200,000.00 | 4460 | 4295415 |
| 2 | 03/25/2003 | WD | Warranty Deed | BUSTARD, PAUL | TAYLOR, KYLE R | | | $213,000.00 | 31282 | 4052830 |
| 3 | 10/03/2002 | ESTSEPPROP | Establish Separate Property | BUSTARD, PAUL | BUSTARD, PAUL | | | $0.00 | 24025 | 4033556 |
| 4 | 10/03/2002 | TRUSTEED | Trustee's Deed | BUSTARD, PAUL | BUSTARD, PAUL | | | $0.00 | 24024 | 4033555 |
| 5 | 09/17/2002 | TRUSTEED | Trustee's Deed | WEST, ROBERT | BUSTARD, PAUL | | | $0.00 | 23984 | 4032782 |
| 6 | 10/22/1997 | WD | Warranty Deed | BUSTARD, PAUL | WEST, ROBERT | | | $165,950.00 | 21205 | 4015660 |
| 7 | 02/01/1996 | WD | Warranty Deed | BAKKEN, OLE A | BUSTARD, PAUL | | | $45,500.00 | 60523 | 96002783 |
| 8 | 10/01/1990 | WD | Warranty Deed | EASTIN, JEFFERY | BAKKEN, OLE A | | | $32,000.00 | 5922 | 90020055 |
| 9 | 06/01/1990 | WD | Warranty Deed | MCCUTCHAN, ROBERT L | EASTIN, JEFFERY | | | $22,500.00 | 3875 | 90012603 |
| 10 | 06/01/1982 | CD | DNU - Correction Deed | MCCUTCHAN, PATSY R | MCCUTCHAN, ROBERT L | | | $12,000.00 | 21816 | 398958 |
| 11 | 01/01/1900 | OTHER | Other - Misc. Documents | Unknown | MCCUTCHAN, PATSY R | | | $0.00 | 0 | 0 |
Payout Agreement
| No payout information available.. |