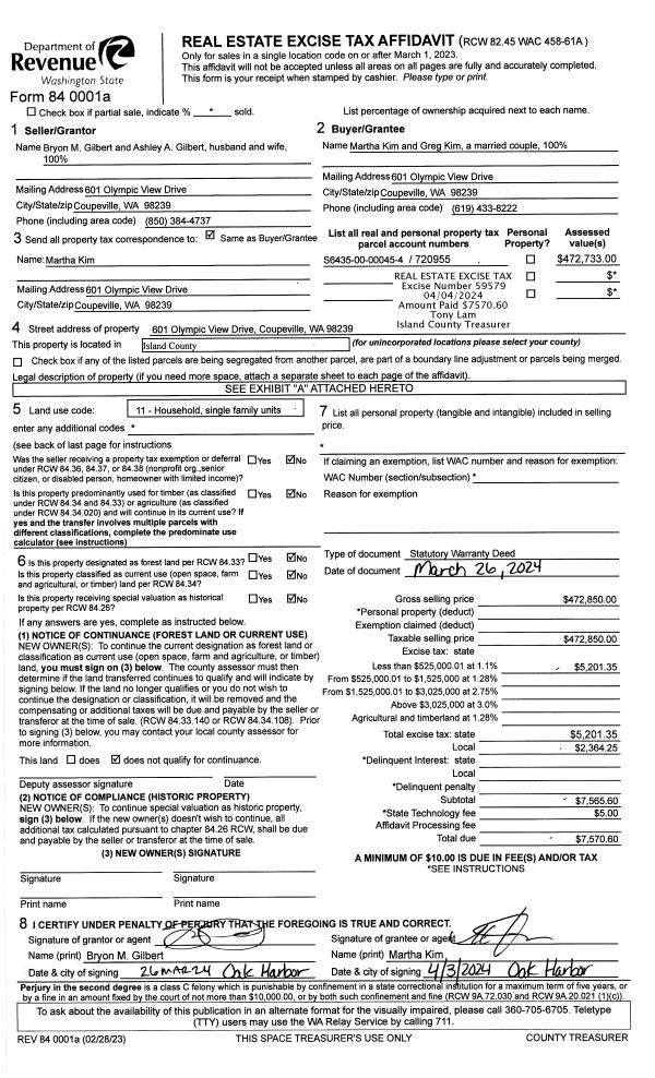
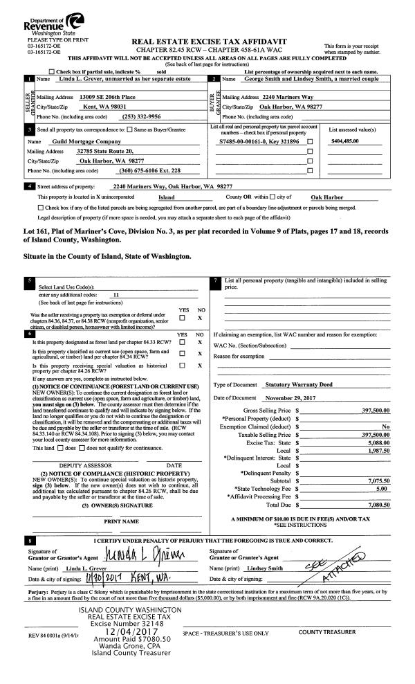
Property
Account |
| Property ID: | 226776 | Abbreviated Legal Description: | CAMPO HAC 1 LOT 24 |
| Geographic ID: | S6305-00-00024-0 | Agent Code: | |
| Type: | Real | | |
| Tax Area: | 110 - APPRAISER-OH Schl Dist, outside OH, improved & 1 acre or less | Land Use Code | 11 |
| Open Space: | N | DFL | N |
| Historic Property: | N | Remodel Property: | N |
| Multi-Family Redevelopment: | N | | |
| Township: | | Section: | |
| Range: | |
Location |
| Address: | 4537 ALAMO WAY OAK HARBOR, WA 98277 | Mapsco: | |
| Neighborhood: | Cycle 6 | Map ID: | 190 |
| Neighborhood CD: | 6 |
Owner |
| Name: | BRADLEY, DILLON | Owner ID: | 311774 |
| Mailing Address: | LEE WILSON 4537 ALAMO WAY OAK HARBOR, WA 98277 | % Ownership: | 100.0000000000% |
| | | Exemptions: | |
Taxes and Assessment Details
Values
| (+) Improvement Homesite Value: | + | $0 | |
| (+) Improvement Non-Homesite Value: | + | $61,153 | |
| (+) Land Homesite Value: | + | $0 | |
| (+) Land Non-Homesite Value: | + | $220,000 | |
| (+) Curr Use (HS): | + | $0 | $0 |
| (+) Curr Use (NHS): | + | $0 | $0 |
| | | -------------------------- | |
| (=) Market Value: | = | $281,153 | |
| (–) Productivity Loss: | – | $0 | |
| | | -------------------------- | |
| (=) Subtotal: | = | $281,153 | |
| (+) Senior Appraised Value: | + | $0 | |
| (+) Non-Senior Appraised Value: | + | $281,153 | |
| | | -------------------------- | |
| (=) Total Appraised Value: | = | $281,153 | |
| (–) Senior Exemption Loss: | – | $0 | |
| (–) Exemption Loss: | – | $0 | |
| | | -------------------------- | |
| (=) Taxable Value: | = | $281,153 | |
Taxing Jurisdiction
| Owner: | BRADLEY, DILLON | | |
| % Ownership: | 100.0000000000% | | |
| Total Value: | $281,153 | | |
| Tax Area: | 110 - APPRAISER-OH Schl Dist, outside OH, improved & 1 acre or less |
| CF | Conservation Futures | 0.0316035091 | $281,153 | $281,153 | $8.89 | | |
| CEM1 | Cemetery #1 | 0.0040320932 | $281,153 | $281,153 | $1.13 | | |
| FIRE2 | Fire & Rescue Dist #2 N Whidbey GEN | 0.5475949600 | $281,153 | $281,153 | $153.96 | | |
| HOBOND | Hospital BOND | 0.1910887512 | $281,153 | $281,153 | $53.73 | | |
| HOGEN | Hospital GEN | 0.3902502903 | $281,153 | $281,153 | $109.72 | | |
| CE | County Current Expense | 0.3708482477 | $281,153 | $281,153 | $104.27 | | |
| CR | County Roads | 0.4584763726 | $281,153 | $281,153 | $128.90 | | |
| ISLANDEMS | Hospital GEN (EMS) | 0.5000000000 | $281,153 | $281,153 | $140.58 | | |
| LIB | Library Sno-Isle GEN | 0.3153421757 | $281,153 | $281,153 | $88.66 | | |
| NWHIDPRMT | P & R N Whidbey GEN | 0.2004466701 | $281,153 | $281,153 | $56.36 | | |
| SCH201MO | School 201 Enrichment | 1.8559231640 | $281,153 | $281,153 | $521.80 | | |
| ST | State School | 1.3035497053 | $281,153 | $281,153 | $366.50 | | |
| ST2 | State School Part 2 | 0.8169543533 | $281,153 | $281,153 | $229.69 | | |
| | Total Tax Rate: | 6.9861102925 | | | | | |
| | | | | Taxes w/Current Exemptions: | $1,964.19 | | |
| | | | | Taxes w/o Exemptions: | $1,964.19 | | |
Improvement / Building
| Improvement #1: | MANUFACTURED HOME | State Code: | Y | 1248.0 sqft | Value: | $61,153 |
| Bathrooms: | 0 | Bedrooms: | 0 | | Ceiling: | PLASTER PAINTED | Cooling: | EVAP NO DUCT | | Exterior Wall/Cover: | VINYL | Floor Covering: | CARPET 100% | | Floor Structure: | SLAB ON GRADE | Foundation: | SLAB | | Heating: | FHA ELECTRIC | Interior Finish: | PLASTER | | Plumbing Fixture Cnt: | 1 | Roof Slope: | FLAT | | Roof Structure/Cover: | CJ ALUMINIUM HEAVY |   |   |
|
| | Type | Description | Class CD | Sub Class CD | Year Built | Area |
| | BAS | BASE/MAIN FLOOR | 4 | 0 | 1977 | 1248.0 |
| | oPOL | POLE BARN | 4 | 0 | 1977 | 600.0 |
| | OWR | OPEN WOOD PORCH W/STEPS/ROOF | 4 | 0 | 1977 | 48.0 |
| | OWP | OPEN WOOD PORCH W/STEPS | 4 | 0 | 1977 | 60.0 |
Sketch
Property Image
Land
| 1 | 15 | SQ (12001-21780) | 0.0000 | 0.00 | 0.00 | 0.00 | 1.00 | $220,000 | $0 |
Roll Value History
| 2026 | N/A | N/A | N/A | N/A | N/A |
| 2025 | $61,153 | $220,000 | $0 | $281,153 | $281,153 |
| 2024 | $63,993 | $200,000 | $0 | $263,993 | $263,993 |
| 2023 | $59,058 | $190,000 | $0 | $249,058 | $249,058 |
| 2022 | $44,375 | $170,000 | $0 | $214,375 | $214,375 |
| 2021 | $41,227 | $150,000 | $0 | $191,227 | $191,227 |
| 2020 | $41,885 | $135,000 | $0 | $176,885 | $176,885 |
| 2019 | $35,820 | $170,000 | $0 | $205,820 | $205,820 |
| 2018 | $37,122 | $130,000 | $0 | $167,122 | $167,122 |
| 2017 | $38,423 | $110,000 | $0 | $148,423 | $148,423 |
| 2016 | $25,065 | $85,000 | $0 | $110,065 | $110,065 |
| 2015 | $26,367 | $65,000 | $0 | $91,367 | $91,367 |
| 2014 | $28,318 | $50,000 | $0 | $78,318 | $78,318 |
| 2013 | $29,619 | $72,250 | $0 | $101,869 | $101,869 |
| 2012 | $30,919 | $72,250 | $0 | $103,169 | $103,169 |
| 2011 | $32,220 | $85,000 | $0 | $117,220 | $117,220 |
| 2010 | $35,063 | $85,000 | $0 | $120,063 | $120,063 |
| 2009 | $37,725 | $95,000 | $0 | $132,725 | $132,725 |
| 2008 | $39,290 | $104,500 | $0 | $143,790 | $143,790 |
| 2007 | $40,855 | $104,500 | $0 | $145,355 | $145,355 |
Deed and Sales History
| 1 | 03/25/2024 | WD | Warranty Deed | STORMHOLD INVESTMENTS LLC | BRADLEY, DILLON | | | $365,000.00 | 59493 | 4570626 |
| 2 | 11/01/2023 | WD | Warranty Deed | LUNDY, JESSICA M | STORMHOLD INVESTMENTS LLC | | | $210,000.00 | 58421 | 4566407 |
| 3 | 10/18/2017 | WD | Warranty Deed | LUNDY, JESSICA M | LUNDY, JESSICA M | | | $124,200.00 | 31567 | 4432401 |
| 4 | 04/01/1997 | QCD | Quit Claim Deed | DICKINSON, HARRY A | DICKINSON, HARRY A | | | $0.00 | 71214 | 97005447 |
| 5 | 03/01/1992 | OTHER | Other - Misc. Documents | DICKINSON, HARRY A | DICKINSON, HARRY A | | | $0.00 | 20997 | 0 |
| 6 | 05/01/1989 | DECREE | Divorce Decree/Legal Separation | DICKINSON, HARRY A | DICKINSON, HARRY A | | | $0.00 | 92624 | 89008863 |
| 7 | 01/01/1983 | OTHER | Other - Misc. Documents | THEISEN, GENE W | DICKINSON, HARRY A | | | $23,750.00 | 30096 | 0 |
| 8 | 01/01/1983 | WD | Warranty Deed | DICKINSON, HARRY A | DICKINSON, HARRY A | | | $20,000.00 | 30098 | 404768 |
| 9 | 01/01/1900 | OTHER | Other - Misc. Documents | Unknown | THEISEN, GENE/PANSY | | | $26,500.00 | 0 | 0 |
| 10 | 01/01/1900 | OTHER | Other - Misc. Documents | THEISEN, GENE/PANSY | THEISEN, GENE W | | | $0.00 | 0 | 0 |
Payout Agreement
| No payout information available.. |