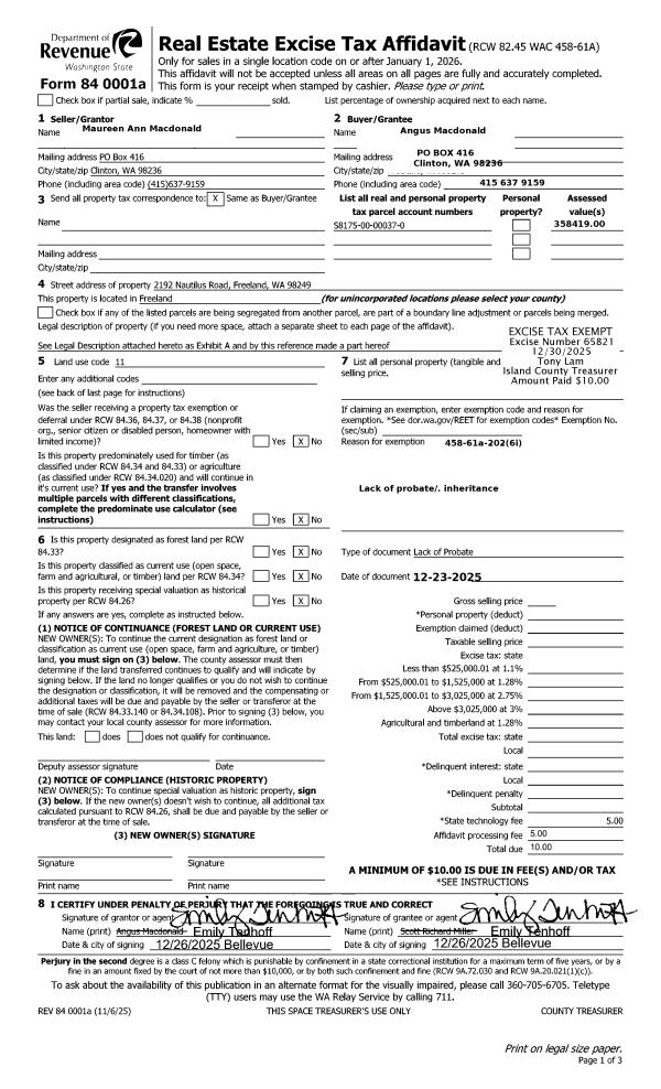
Property
Account |
| Property ID: | 2268 | Abbreviated Legal Description: | N/2 W/2 SW SW NW EX W40' SUB TO EZ (LOT A SP 78-60 AF#337044) |
| Geographic ID: | R13102-314-0190 | Agent Code: | |
| Type: | Real | | |
| Tax Area: | 312 - APPRAISER-Cpvl Schl Dist, outside Cpvl, improved, greater than 1 acre | Land Use Code | 11 |
| Open Space: | N | DFL | N |
| Historic Property: | N | Remodel Property: | N |
| Multi-Family Redevelopment: | N | | |
| Township: | 31 | Section: | 02 |
| Range: | R1 |
Location |
| Address: | 789 NATURE LN COUPEVILLE, WA 98239 | Mapsco: | |
| Neighborhood: | Cycle 2 | Map ID: | 23 |
| Neighborhood CD: | 2 |
Owner |
| Name: | HALLAM, GLEN E / MARTHA E | Owner ID: | 111153 |
| Mailing Address: | 789 NATURE LN COUPEVILLE, WA 98239-3710 | % Ownership: | 100.0000000000% |
| | | Exemptions: | |
Taxes and Assessment Details
Values
| (+) Improvement Homesite Value: | + | $0 | |
| (+) Improvement Non-Homesite Value: | + | $121,655 | |
| (+) Land Homesite Value: | + | $0 | |
| (+) Land Non-Homesite Value: | + | $298,600 | |
| (+) Curr Use (HS): | + | $0 | $0 |
| (+) Curr Use (NHS): | + | $0 | $0 |
| | | -------------------------- | |
| (=) Market Value: | = | $420,255 | |
| (–) Productivity Loss: | – | $0 | |
| | | -------------------------- | |
| (=) Subtotal: | = | $420,255 | |
| (+) Senior Appraised Value: | + | $0 | |
| (+) Non-Senior Appraised Value: | + | $420,255 | |
| | | -------------------------- | |
| (=) Total Appraised Value: | = | $420,255 | |
| (–) Senior Exemption Loss: | – | $0 | |
| (–) Exemption Loss: | – | $0 | |
| | | -------------------------- | |
| (=) Taxable Value: | = | $420,255 | |
Taxing Jurisdiction
| Owner: | HALLAM, GLEN E / MARTHA E | | |
| % Ownership: | 100.0000000000% | | |
| Total Value: | $420,255 | | |
| Tax Area: | 312 - APPRAISER-Cpvl Schl Dist, outside Cpvl, improved, greater than 1 acre |
| CF | Conservation Futures | 0.0316035091 | $420,255 | $420,255 | $13.28 | | |
| CEM2 | Cemetery #2 | 0.0095056933 | $420,255 | $420,255 | $3.99 | | |
| FIRE5 | Fire & Rescue Dist #5 C Whidbey GEN | 1.2008080668 | $420,255 | $420,255 | $504.65 | | |
| FIRE5BOND | Fire & Rescue Dist #5 C Whidbey BOND | 0.1400090713 | $420,255 | $420,255 | $58.84 | | |
| HOBOND | Hospital BOND | 0.1910887512 | $420,255 | $420,255 | $80.31 | | |
| HOGEN | Hospital GEN | 0.3902502903 | $420,255 | $420,255 | $164.00 | | |
| CE | County Current Expense | 0.3708482477 | $420,255 | $420,255 | $155.85 | | |
| CR | County Roads | 0.4584763726 | $420,255 | $420,255 | $192.68 | | |
| ISLANDEMS | Hospital GEN (EMS) | 0.5000000000 | $420,255 | $420,255 | $210.13 | | |
| LIB | Library Sno-Isle GEN | 0.3153421757 | $420,255 | $420,255 | $132.52 | | |
| LIBCAP | Library Sno-Isle BOND (Cap Fac Imp Area) | 0.0543427938 | $420,255 | $420,255 | $22.84 | | |
| POCOUP | Port of Coupeville GEN | 0.1093371703 | $420,255 | $420,255 | $45.95 | | |
| POCOUPIDD | Port of Coupeville IDD | 0.3409740022 | $420,255 | $420,255 | $143.30 | | |
| COUPSDTECH | School 204 CP (TECH) | 0.7545480007 | $420,255 | $420,255 | $317.10 | | |
| SCH204MO | School 204 Enrichment | 0.6716186034 | $420,255 | $420,255 | $282.25 | | |
| ST | State School | 1.3035497053 | $420,255 | $420,255 | $547.82 | | |
| ST2 | State School Part 2 | 0.8169543533 | $420,255 | $420,255 | $343.33 | | |
| | Total Tax Rate: | 7.6592568070 | | | | | |
| | | | | Taxes w/Current Exemptions: | $3,218.84 | | |
| | | | | Taxes w/o Exemptions: | $3,218.84 | | |
Improvement / Building
| Improvement #1: | MANUFACTURED HOME | State Code: | Y | 1609.5 sqft | Value: | $121,655 |
| Bathrooms: | 2 | Bedrooms: | 3 | | Ceiling: | PLASTER PAINTED | Cooling: | EVAP NO DUCT | | Exterior Wall/Cover: | VINYL | Floor Covering: | CARPET 100% | | Floor Structure: | SLAB ON GRADE | Foundation: | SLAB | | Heating: | FHA ELECTRIC | Interior Finish: | PLASTER | | Plumbing Fixture Cnt: | 1 | Roof Slope: | FLAT | | Roof Structure/Cover: | CJ ALUMINIUM HEAVY |   |   |
|
| | Type | Description | Class CD | Sub Class CD | Year Built | Area |
| | BAS | BASE/MAIN FLOOR | 4 | 0 | 1998 | 1609.5 |
| | OWP | OPEN WOOD PORCH W/STEPS | 4 | 0 | 1998 | 300.0 |
| | OWP | OPEN WOOD PORCH W/STEPS | 4 | 0 | 1998 | 90.5 |
Sketch
Property Image
Land
| 1 | HS | HOMESITE | 1.0000 | 43560.00 | 0.00 | 0.00 | 1.00 | $220,000 | $0 |
| 2 | 91 | UNDEVELOPED LAND-METES AND BOUNDS | 1.2000 | 52272.00 | 0.00 | 0.00 | 1.00 | $78,600 | $0 |
Roll Value History
| 2026 | N/A | N/A | N/A | N/A | N/A |
| 2025 | $121,655 | $298,600 | $0 | $420,255 | $420,255 |
| 2024 | $111,517 | $280,000 | $0 | $391,517 | $391,517 |
| 2023 | $99,905 | $270,000 | $0 | $369,905 | $369,905 |
| 2022 | $93,127 | $250,000 | $0 | $343,127 | $343,127 |
| 2021 | $83,289 | $150,000 | $0 | $233,289 | $233,289 |
| 2020 | $81,966 | $150,000 | $0 | $231,966 | $231,966 |
| 2019 | $66,374 | $180,000 | $0 | $246,374 | $246,374 |
| 2018 | $62,646 | $160,000 | $0 | $222,646 | $222,646 |
| 2017 | $64,436 | $130,000 | $0 | $194,436 | $194,436 |
| 2016 | $65,331 | $120,000 | $0 | $185,331 | $185,331 |
| 2015 | $67,120 | $114,750 | $0 | $181,870 | $181,870 |
| 2014 | $68,910 | $114,750 | $0 | $183,660 | $183,660 |
| 2013 | $70,701 | $80,750 | $0 | $151,451 | $151,451 |
| 2012 | $79,137 | $80,750 | $0 | $159,887 | $159,887 |
| 2011 | $80,721 | $95,000 | $0 | $175,721 | $175,721 |
| 2010 | $85,187 | $95,000 | $0 | $180,187 | $180,187 |
| 2009 | $88,456 | $124,000 | $0 | $212,456 | $212,456 |
| 2008 | $91,306 | $124,000 | $0 | $215,306 | $215,306 |
| 2007 | $92,354 | $124,000 | $0 | $216,354 | $216,354 |
Deed and Sales History
| 1 | 12/01/1997 | WD | Warranty Deed | CHANDLER, RICHARD C | HALLAM, GLEN E | | | $50,000.00 | 74262 | 97020441 |
| 2 | 11/01/1995 | WD | Warranty Deed | ANDERSON, RICHARD M | CHANDLER, RICHARD C | | | $35,000.00 | 54164 | 95019187 |
| 3 | 08/01/1988 | WD | Warranty Deed | HASSLER, LEONARD H | ANDERSON, RICHARD M | | | $15,700.00 | 82993 | 88011189 |
| 4 | 03/01/1979 | OTHER | Other - Misc. Documents | HALLAM, GLEN E | HASSLER, LEONARD H | | | $14,500.00 | 91180 | 349178 |
| 5 | 01/01/1900 | OTHER | Other - Misc. Documents | Unknown | HALLAM, GLEN E | | | $0.00 | 11111111 | 0 |
Payout Agreement
| No payout information available.. |