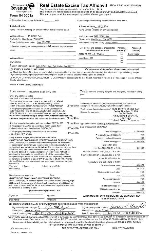
Property
Account |
| Property ID: | 226810 | Abbreviated Legal Description: | CAMPO HAC 1 LOT 28 |
| Geographic ID: | S6305-00-00028-0 | Agent Code: | |
| Type: | Real | | |
| Tax Area: | 110 - APPRAISER-OH Schl Dist, outside OH, improved & 1 acre or less | Land Use Code | 11 |
| Open Space: | N | DFL | N |
| Historic Property: | N | Remodel Property: | N |
| Multi-Family Redevelopment: | N | | |
| Township: | | Section: | |
| Range: | |
Location |
| Address: | 4509 ALAMO WAY OAK HARBOR, WA 98277 | Mapsco: | |
| Neighborhood: | Cycle 6 | Map ID: | 190 |
| Neighborhood CD: | 6 |
Owner |
| Name: | KLASSEN, EDWARD L | Owner ID: | 190287 |
| Mailing Address: | 249 TRAPPER DR CONDON, MT 59826 | % Ownership: | 100.0000000000% |
| | | Exemptions: | |
Taxes and Assessment Details
Values
| (+) Improvement Homesite Value: | + | $0 | |
| (+) Improvement Non-Homesite Value: | + | $27,915 | |
| (+) Land Homesite Value: | + | $0 | |
| (+) Land Non-Homesite Value: | + | $220,000 | |
| (+) Curr Use (HS): | + | $0 | $0 |
| (+) Curr Use (NHS): | + | $0 | $0 |
| | | -------------------------- | |
| (=) Market Value: | = | $247,915 | |
| (–) Productivity Loss: | – | $0 | |
| | | -------------------------- | |
| (=) Subtotal: | = | $247,915 | |
| (+) Senior Appraised Value: | + | $0 | |
| (+) Non-Senior Appraised Value: | + | $247,915 | |
| | | -------------------------- | |
| (=) Total Appraised Value: | = | $247,915 | |
| (–) Senior Exemption Loss: | – | $0 | |
| (–) Exemption Loss: | – | $0 | |
| | | -------------------------- | |
| (=) Taxable Value: | = | $247,915 | |
Taxing Jurisdiction
| Owner: | KLASSEN, EDWARD L | | |
| % Ownership: | 100.0000000000% | | |
| Total Value: | $247,915 | | |
| Tax Area: | 110 - APPRAISER-OH Schl Dist, outside OH, improved & 1 acre or less |
| CF | Conservation Futures | 0.0316035091 | $247,915 | $247,915 | $7.83 | | |
| CEM1 | Cemetery #1 | 0.0040320932 | $247,915 | $247,915 | $1.00 | | |
| FIRE2 | Fire & Rescue Dist #2 N Whidbey GEN | 0.5475949600 | $247,915 | $247,915 | $135.76 | | |
| HOBOND | Hospital BOND | 0.1910887512 | $247,915 | $247,915 | $47.37 | | |
| HOGEN | Hospital GEN | 0.3902502903 | $247,915 | $247,915 | $96.75 | | |
| CE | County Current Expense | 0.3708482477 | $247,915 | $247,915 | $91.94 | | |
| CR | County Roads | 0.4584763726 | $247,915 | $247,915 | $113.66 | | |
| ISLANDEMS | Hospital GEN (EMS) | 0.5000000000 | $247,915 | $247,915 | $123.96 | | |
| LIB | Library Sno-Isle GEN | 0.3153421757 | $247,915 | $247,915 | $78.18 | | |
| NWHIDPRMT | P & R N Whidbey GEN | 0.2004466701 | $247,915 | $247,915 | $49.69 | | |
| SCH201MO | School 201 Enrichment | 1.8559231640 | $247,915 | $247,915 | $460.11 | | |
| ST | State School | 1.3035497053 | $247,915 | $247,915 | $323.17 | | |
| ST2 | State School Part 2 | 0.8169543533 | $247,915 | $247,915 | $202.54 | | |
| | Total Tax Rate: | 6.9861102925 | | | | | |
| | | | | Taxes w/Current Exemptions: | $1,731.96 | | |
| | | | | Taxes w/o Exemptions: | $1,731.96 | | |
Improvement / Building
| Improvement #1: | MANUFACTURED HOME | State Code: | Y | 800.0 sqft | Value: | $27,915 |
| Bathrooms: | 0 | Bedrooms: | 0 | | Ceiling: | PLASTER PAINTED | Cooling: | EVAP NO DUCT | | Exterior Wall/Cover: | VINYL | Floor Covering: | CARPET 100% | | Floor Structure: | SLAB ON GRADE | Foundation: | SLAB | | Heating: | FHA ELECTRIC | Interior Finish: | PLASTER | | Plumbing Fixture Cnt: | 1 | Roof Slope: | FLAT | | Roof Structure/Cover: | CJ ALUMINIUM HEAVY |   |   |
|
| | Type | Description | Class CD | Sub Class CD | Year Built | Area |
| | BAS | BASE/MAIN FLOOR | 3 | 0 | 1968 | 800.0 |
| | DGR | DETACHED GARAGE | 3 | 0 | 1968 | 576.0 |
Sketch
Property Image
Land
| 1 | 15 | SQ (12001-21780) | 0.0000 | 0.00 | 0.00 | 0.00 | 1.00 | $220,000 | $0 |
Roll Value History
| 2026 | N/A | N/A | N/A | N/A | N/A |
| 2025 | $27,915 | $220,000 | $0 | $247,915 | $247,915 |
| 2024 | $28,718 | $200,000 | $0 | $228,718 | $228,718 |
| 2023 | $30,324 | $190,000 | $0 | $220,324 | $220,324 |
| 2022 | $34,534 | $170,000 | $0 | $204,534 | $204,534 |
| 2021 | $32,193 | $150,000 | $0 | $182,193 | $182,193 |
| 2020 | $32,685 | $135,000 | $0 | $167,685 | $167,685 |
| 2019 | $28,178 | $170,000 | $0 | $198,178 | $198,178 |
| 2018 | $29,146 | $130,000 | $0 | $159,146 | $159,146 |
| 2017 | $30,113 | $110,000 | $0 | $140,113 | $140,113 |
| 2016 | $12,673 | $85,000 | $0 | $97,673 | $97,673 |
| 2015 | $13,524 | $65,000 | $0 | $78,524 | $78,524 |
| 2014 | $13,950 | $50,000 | $0 | $63,950 | $63,950 |
| 2013 | $14,801 | $72,250 | $0 | $87,051 | $87,051 |
| 2012 | $15,227 | $72,250 | $0 | $87,477 | $87,477 |
| 2011 | $16,078 | $85,000 | $0 | $101,078 | $101,078 |
| 2010 | $33,884 | $85,000 | $0 | $118,884 | $118,884 |
| 2009 | $35,011 | $95,000 | $0 | $130,011 | $130,011 |
| 2008 | $35,814 | $104,500 | $0 | $140,314 | $140,314 |
| 2007 | $36,634 | $104,500 | $0 | $141,134 | $141,134 |
Deed and Sales History
| 1 | 03/19/1999 | DECREE | Divorce Decree/Legal Separation | KLASSEN, EDWARD L | KLASSEN, EDWARD L | | | $0.00 | 68200 | 0 |
| 2 | 05/01/1993 | OTHER | Other - Misc. Documents | KLASSEN, EDWARD L | KLASSEN, EDWARD L | | | $6,000.00 | 31606 | 0 |
| 3 | 04/01/1993 | WD | Warranty Deed | CRAFT, DONALD O | KLASSEN, EDWARD L | | | $39,000.00 | 31609 | 93008319 |
| 4 | 03/01/1993 | OTHER | Other - Misc. Documents | DION, PETER C | CRAFT, DONALD O | | | $3,000.00 | 30822 | 0 |
| 5 | 03/01/1993 | WD | Warranty Deed | CRAFT, DONALD O | CRAFT, DONALD O | | | $24,000.00 | 30824 | 93004283 |
| 6 | 07/01/1986 | OTHER | Other - Misc. Documents | DION, PETER C | DION, PETER C | | | $0.00 | 61952 | 0 |
| 7 | 01/01/1900 | OTHER | Other - Misc. Documents | Unknown | DION, PETER C | | | $0.00 | 0 | 0 |
| 8 | 01/01/1900 | OTHER | Other - Misc. Documents | DION, PETER C | DION, PETER C | | | $0.00 | 0 | 0 |
Payout Agreement
| No payout information available.. |