Property
Account |
| Property ID: | 226883 | Abbreviated Legal Description: | CAMPO HAC 1 LOT 35 |
| Geographic ID: | S6305-00-00035-0 | Agent Code: | |
| Type: | Real | | |
| Tax Area: | 110 - APPRAISER-OH Schl Dist, outside OH, improved & 1 acre or less | Land Use Code | 11 |
| Open Space: | N | DFL | N |
| Historic Property: | N | Remodel Property: | N |
| Multi-Family Redevelopment: | N | | |
| Township: | | Section: | |
| Range: | |
Location |
| Address: | 4486 ALAMO WAY OAK HARBOR, WA 98277 | Mapsco: | |
| Neighborhood: | Cycle 6 | Map ID: | 190 |
| Neighborhood CD: | 6 |
Owner |
| Name: | WALKER, JEREMY S. | Owner ID: | 306703 |
| Mailing Address: | ELIZABETH A. WALKER 4486 ALAMO WAY OAK HARBOR, WA 98277 | % Ownership: | 100.0000000000% |
| | | Exemptions: | |
Taxes and Assessment Details
Values
| (+) Improvement Homesite Value: | + | $0 | |
| (+) Improvement Non-Homesite Value: | + | $97,429 | |
| (+) Land Homesite Value: | + | $0 | |
| (+) Land Non-Homesite Value: | + | $220,000 | |
| (+) Curr Use (HS): | + | $0 | $0 |
| (+) Curr Use (NHS): | + | $0 | $0 |
| | | -------------------------- | |
| (=) Market Value: | = | $317,429 | |
| (–) Productivity Loss: | – | $0 | |
| | | -------------------------- | |
| (=) Subtotal: | = | $317,429 | |
| (+) Senior Appraised Value: | + | $0 | |
| (+) Non-Senior Appraised Value: | + | $317,429 | |
| | | -------------------------- | |
| (=) Total Appraised Value: | = | $317,429 | |
| (–) Senior Exemption Loss: | – | $0 | |
| (–) Exemption Loss: | – | $0 | |
| | | -------------------------- | |
| (=) Taxable Value: | = | $317,429 | |
Taxing Jurisdiction
| Owner: | WALKER, JEREMY S. | | |
| % Ownership: | 100.0000000000% | | |
| Total Value: | $317,429 | | |
| Tax Area: | 110 - APPRAISER-OH Schl Dist, outside OH, improved & 1 acre or less |
| CF | Conservation Futures | 0.0316035091 | $317,429 | $317,429 | $10.03 | | |
| CEM1 | Cemetery #1 | 0.0040320932 | $317,429 | $317,429 | $1.28 | | |
| FIRE2 | Fire & Rescue Dist #2 N Whidbey GEN | 0.5475949600 | $317,429 | $317,429 | $173.82 | | |
| HOBOND | Hospital BOND | 0.1910887512 | $317,429 | $317,429 | $60.66 | | |
| HOGEN | Hospital GEN | 0.3902502903 | $317,429 | $317,429 | $123.88 | | |
| CE | County Current Expense | 0.3708482477 | $317,429 | $317,429 | $117.72 | | |
| CR | County Roads | 0.4584763726 | $317,429 | $317,429 | $145.53 | | |
| ISLANDEMS | Hospital GEN (EMS) | 0.5000000000 | $317,429 | $317,429 | $158.71 | | |
| LIB | Library Sno-Isle GEN | 0.3153421757 | $317,429 | $317,429 | $100.10 | | |
| NWHIDPRMT | P & R N Whidbey GEN | 0.2004466701 | $317,429 | $317,429 | $63.63 | | |
| SCH201MO | School 201 Enrichment | 1.8559231640 | $317,429 | $317,429 | $589.12 | | |
| ST | State School | 1.3035497053 | $317,429 | $317,429 | $413.78 | | |
| ST2 | State School Part 2 | 0.8169543533 | $317,429 | $317,429 | $259.33 | | |
| | Total Tax Rate: | 6.9861102925 | | | | | |
| | | | | Taxes w/Current Exemptions: | $2,217.59 | | |
| | | | | Taxes w/o Exemptions: | $2,217.59 | | |
Improvement / Building
| Improvement #1: | MANUFACTURED HOME | State Code: | Y | 1430.0 sqft | Value: | $97,429 |
| Bathrooms: | 0 | Bedrooms: | 0 | | Ceiling: | PLASTER PAINTED | Cooling: | EVAP NO DUCT | | Exterior Wall/Cover: | VINYL | Floor Covering: | CARPET 100% | | Floor Structure: | SLAB ON GRADE | Foundation: | SLAB | | Heating: | FHA ELECTRIC | Interior Finish: | PLASTER | | Plumbing Fixture Cnt: | 1 | Roof Slope: | FLAT | | Roof Structure/Cover: | CJ ALUMINIUM HEAVY |   |   |
|
| | Type | Description | Class CD | Sub Class CD | Year Built | Area |
| | BAS | BASE/MAIN FLOOR | 4 | 0 | 1987 | 1430.0 |
| | OWP | OPEN WOOD PORCH W/STEPS | 4 | 0 | 1987 | 48.0 |
| | OWP | OPEN WOOD PORCH W/STEPS | 4 | 0 | 1987 | 80.0 |
| | UTY | STORAGE/UTILITY | 4 | 0 | 1987 | 360.0 |
Sketch
Property Image
Land
| 1 | 15 | SQ (12001-21780) | 0.0000 | 0.00 | 0.00 | 0.00 | 1.00 | $220,000 | $0 |
Roll Value History
| 2026 | N/A | N/A | N/A | N/A | N/A |
| 2025 | $97,429 | $220,000 | $0 | $317,429 | $317,429 |
| 2024 | $100,676 | $200,000 | $0 | $300,676 | $300,676 |
| 2023 | $90,365 | $190,000 | $0 | $280,365 | $280,365 |
| 2022 | $50,565 | $170,000 | $0 | $220,565 | $220,565 |
| 2021 | $46,719 | $150,000 | $0 | $196,719 | $196,719 |
| 2020 | $47,137 | $135,000 | $0 | $182,137 | $182,137 |
| 2019 | $38,525 | $170,000 | $0 | $208,525 | $208,525 |
| 2018 | $39,926 | $130,000 | $0 | $169,926 | $169,926 |
| 2017 | $42,026 | $110,000 | $0 | $152,026 | $152,026 |
| 2016 | $32,702 | $85,000 | $0 | $117,702 | $117,702 |
| 2015 | $33,936 | $65,000 | $0 | $98,936 | $98,936 |
| 2014 | $35,169 | $50,000 | $0 | $85,169 | $85,169 |
| 2013 | $37,021 | $72,250 | $0 | $109,271 | $109,271 |
| 2012 | $38,255 | $72,250 | $0 | $110,505 | $110,505 |
| 2011 | $39,489 | $85,000 | $0 | $124,489 | $124,489 |
| 2010 | $45,383 | $85,000 | $0 | $130,383 | $130,383 |
| 2009 | $47,867 | $95,000 | $0 | $142,867 | $142,867 |
| 2008 | $48,604 | $104,500 | $0 | $153,104 | $153,104 |
| 2007 | $49,975 | $104,500 | $0 | $154,475 | $154,475 |
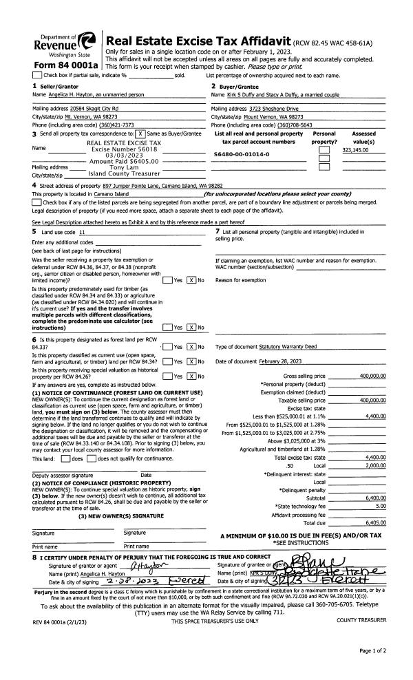
Deed and Sales History
| 1 | 11/04/2022 | WD | Warranty Deed | PROUT, SHERYL | WALKER, JEREMY S. | | | $377,000.00 | 55201 | 4554060 |
| 2 | 08/28/2006 | WD | Warranty Deed | CONWELL, JAMES R | PROUT, SHERYL | | | $189,000.00 | 63708 | 4180290 |
| 3 | 08/20/1999 | WD | Warranty Deed | DEPT OF HUD, | CONWELL, JAMES R | | | $45,000.00 | 93614 | 99020498 |
| 4 | 03/04/1999 | QCD | Quit Claim Deed | NORWEST MORTGAGE INC, | DEPT OF HOUSING & URBAN DEV, | | | $0.00 | 91090 | 0 |
| 5 | 03/04/1999 | WD | Warranty Deed | DEPT OF HOUSING & URBAN DEV, | DEPT OF HUD, | | | $0.00 | 90840 | 99005949 |
| 6 | 12/15/1998 | TRUSTEED | Trustee's Deed | NORWEST MORTG INC, | NORWEST MORTGAGE INC, | | | $105,266.00 | 84972 | 98027362 |
| 7 | 12/04/1998 | QCD | Quit Claim Deed | MOYER, DONNA K | NORWEST MORTG INC, | | | $0.00 | 91089 | 0 |
| 8 | 02/01/1998 | REC | Real Estate Contract | MOORE, DONNA K | MOYER, DONNA K | | | $0.00 | 80545 | 0 |
| 9 | 12/01/1997 | ESTSEPPROP | Establish Separate Property | MOYER, CLEN G | MOORE, DONNA K | | | $0.00 | 74361 | 97020912 |
| 10 | 11/01/1991 | OTHER | Other - Misc. Documents | MOORE, DONNA K | MOYER, CLEN G | | | $0.00 | 14118 | 0 |
| 11 | 10/01/1990 | QCD | Quit Claim Deed | FERDIG, JEFF & | MOORE, DONNA K | | | $0.00 | 20665 | 92003312 |
| 12 | 05/01/1987 | WD | Warranty Deed | WARD, ROBERT L | FERDIG, JEFF & | | | $17,000.00 | 71270 | 87006261 |
| 13 | 01/01/1900 | OTHER | Other - Misc. Documents | Unknown | WARD, ROBERT L | | | $0.00 | 0 | 0 |
Payout Agreement
| No payout information available.. |