Property
Account |
| Property ID: | 226927 | Abbreviated Legal Description: | CAMPO HAC 1 LOT 39 |
| Geographic ID: | S6305-00-00039-0 | Agent Code: | |
| Type: | Real | | |
| Tax Area: | 110 - APPRAISER-OH Schl Dist, outside OH, improved & 1 acre or less | Land Use Code | 11 |
| Open Space: | N | DFL | N |
| Historic Property: | N | Remodel Property: | N |
| Multi-Family Redevelopment: | N | | |
| Township: | | Section: | |
| Range: | |
Location |
| Address: | 4514 ALAMO WAY OAK HARBOR, WA 98277 | Mapsco: | |
| Neighborhood: | Cycle 6 | Map ID: | 190 |
| Neighborhood CD: | 6 |
Owner |
| Name: | HAFELE, JUSTINE L | Owner ID: | 278166 |
| Mailing Address: | 4514 ALAMO WAY OAK HARBOR, WA 98277 | % Ownership: | 100.0000000000% |
| | | Exemptions: | |
Taxes and Assessment Details
Values
| (+) Improvement Homesite Value: | + | $0 | |
| (+) Improvement Non-Homesite Value: | + | $118,338 | |
| (+) Land Homesite Value: | + | $0 | |
| (+) Land Non-Homesite Value: | + | $220,000 | |
| (+) Curr Use (HS): | + | $0 | $0 |
| (+) Curr Use (NHS): | + | $0 | $0 |
| | | -------------------------- | |
| (=) Market Value: | = | $338,338 | |
| (–) Productivity Loss: | – | $0 | |
| | | -------------------------- | |
| (=) Subtotal: | = | $338,338 | |
| (+) Senior Appraised Value: | + | $0 | |
| (+) Non-Senior Appraised Value: | + | $338,338 | |
| | | -------------------------- | |
| (=) Total Appraised Value: | = | $338,338 | |
| (–) Senior Exemption Loss: | – | $0 | |
| (–) Exemption Loss: | – | $0 | |
| | | -------------------------- | |
| (=) Taxable Value: | = | $338,338 | |
Taxing Jurisdiction
| Owner: | HAFELE, JUSTINE L | | |
| % Ownership: | 100.0000000000% | | |
| Total Value: | $338,338 | | |
| Tax Area: | 110 - APPRAISER-OH Schl Dist, outside OH, improved & 1 acre or less |
| CF | Conservation Futures | 0.0316035091 | $338,338 | $338,338 | $10.69 | | |
| CEM1 | Cemetery #1 | 0.0040320932 | $338,338 | $338,338 | $1.36 | | |
| FIRE2 | Fire & Rescue Dist #2 N Whidbey GEN | 0.5475949600 | $338,338 | $338,338 | $185.27 | | |
| HOBOND | Hospital BOND | 0.1910887512 | $338,338 | $338,338 | $64.65 | | |
| HOGEN | Hospital GEN | 0.3902502903 | $338,338 | $338,338 | $132.04 | | |
| CE | County Current Expense | 0.3708482477 | $338,338 | $338,338 | $125.47 | | |
| CR | County Roads | 0.4584763726 | $338,338 | $338,338 | $155.12 | | |
| ISLANDEMS | Hospital GEN (EMS) | 0.5000000000 | $338,338 | $338,338 | $169.17 | | |
| LIB | Library Sno-Isle GEN | 0.3153421757 | $338,338 | $338,338 | $106.69 | | |
| NWHIDPRMT | P & R N Whidbey GEN | 0.2004466701 | $338,338 | $338,338 | $67.82 | | |
| SCH201MO | School 201 Enrichment | 1.8559231640 | $338,338 | $338,338 | $627.93 | | |
| ST | State School | 1.3035497053 | $338,338 | $338,338 | $441.04 | | |
| ST2 | State School Part 2 | 0.8169543533 | $338,338 | $338,338 | $276.41 | | |
| | Total Tax Rate: | 6.9861102925 | | | | | |
| | | | | Taxes w/Current Exemptions: | $2,363.66 | | |
| | | | | Taxes w/o Exemptions: | $2,363.66 | | |
Improvement / Building
| Improvement #1: | MANUFACTURED HOME | State Code: | Y | 1503.4 sqft | Value: | $118,338 |
| Bathrooms: | 0 | Bedrooms: | 0 | | Ceiling: | PLASTER PAINTED | Cooling: | EVAP NO DUCT | | Exterior Wall/Cover: | VINYL | Floor Covering: | CARPET 100% | | Floor Structure: | SLAB ON GRADE | Foundation: | SLAB | | Heating: | FHA ELECTRIC | Interior Finish: | PLASTER | | Plumbing Fixture Cnt: | 1 | Roof Slope: | FLAT | | Roof Structure/Cover: | CJ ALUMINIUM HEAVY |   |   |
|
| | Type | Description | Class CD | Sub Class CD | Year Built | Area |
| | BAS | BASE/MAIN FLOOR | 4 | 0 | 1986 | 1503.4 |
| | OWC | OPEN WOOD PORCH W/STEPS/ROOF/C | 4 | 0 | 1986 | 16.5 |
| | DGR | DETACHED GARAGE | 4 | 0 | 1986 | 720.0 |
| | OWP | OPEN WOOD PORCH W/STEPS | 4 | 0 | 1986 | 319.3 |
Sketch
Property Image
Land
| 1 | 15 | SQ (12001-21780) | 0.0000 | 0.00 | 0.00 | 0.00 | 1.00 | $220,000 | $0 |
Roll Value History
| 2026 | N/A | N/A | N/A | N/A | N/A |
| 2025 | $118,338 | $220,000 | $0 | $338,338 | $338,338 |
| 2024 | $122,037 | $200,000 | $0 | $322,037 | $322,037 |
| 2023 | $109,338 | $190,000 | $0 | $299,338 | $299,338 |
| 2022 | $86,629 | $170,000 | $0 | $256,629 | $256,629 |
| 2021 | $77,549 | $150,000 | $0 | $227,549 | $227,549 |
| 2020 | $77,434 | $135,000 | $0 | $212,434 | $212,434 |
| 2019 | $61,845 | $170,000 | $0 | $231,845 | $231,845 |
| 2018 | $63,540 | $130,000 | $0 | $193,540 | $193,540 |
| 2017 | $65,235 | $110,000 | $0 | $175,235 | $175,235 |
| 2016 | $40,093 | $85,000 | $0 | $125,093 | $125,093 |
| 2015 | $42,600 | $65,000 | $0 | $107,600 | $107,600 |
| 2014 | $44,271 | $50,000 | $0 | $94,271 | $94,271 |
| 2013 | $45,941 | $72,250 | $0 | $118,191 | $118,191 |
| 2012 | $47,612 | $72,250 | $0 | $119,862 | $119,862 |
| 2011 | $50,118 | $85,000 | $0 | $135,118 | $135,118 |
| 2010 | $56,558 | $85,000 | $0 | $141,558 | $141,558 |
| 2009 | $59,464 | $95,000 | $0 | $154,464 | $154,464 |
| 2008 | $62,054 | $104,500 | $0 | $166,554 | $166,554 |
| 2007 | $64,015 | $104,500 | $0 | $168,515 | $168,515 |
Deed and Sales History
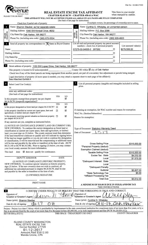
| 1 | 01/04/2017 | WD | Warranty Deed | MCCLURE, MICHAEL M | HAFELE, JUSTINE L | | | $219,000.00 | 27636 | 4414706 |
| 2 | 08/14/2013 | CCOMPROP | Create Community Property | MCCLURE, MICHAEL M | MCCLURE, MICHAEL M | | | $0.00 | 12519 | 4346891 |
| 3 | 05/20/2010 | WD | Warranty Deed | WAHL, ROBERT A | MCCLURE, MICHAEL M | | | $175,000.00 | 1281 | 4274547 |
| 4 | 11/01/1986 | OTHER | Other - Misc. Documents | Unknown | WAHL, ROBERT A | | | $34,787.00 | 11111111 | 0 |
Payout Agreement
| No payout information available.. |