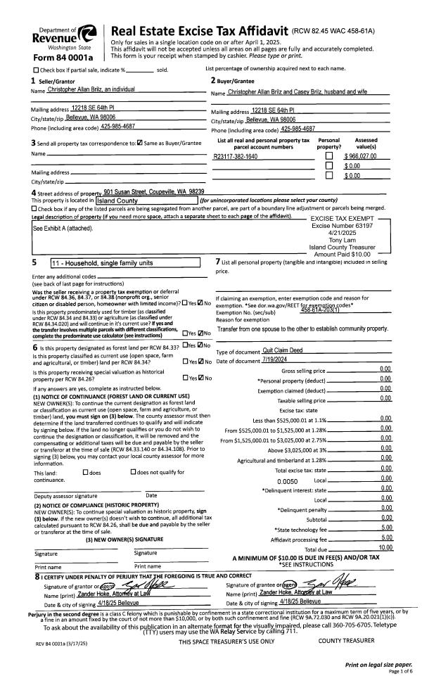
Property
Account |
| Property ID: | 226990 | Abbreviated Legal Description: | CAMPO HAC 1 LOT 46 |
| Geographic ID: | S6305-00-00046-0 | Agent Code: | |
| Type: | Real | | |
| Tax Area: | 110 - APPRAISER-OH Schl Dist, outside OH, improved & 1 acre or less | Land Use Code | 11 |
| Open Space: | N | DFL | N |
| Historic Property: | N | Remodel Property: | N |
| Multi-Family Redevelopment: | N | | |
| Township: | | Section: | |
| Range: | |
Location |
| Address: | 4528 ALAMO WAY OAK HARBOR, WA 98277 | Mapsco: | |
| Neighborhood: | Cycle 6 | Map ID: | 190 |
| Neighborhood CD: | 6 |
Owner |
| Name: | HANLON, PATRICK MICHAEL | Owner ID: | 314052 |
| Mailing Address: | 1296 NORTHWEST ELWHA ST, UNIT 201 OAK HARBOR, WA 98277 | % Ownership: | 100.0000000000% |
| | | Exemptions: | |
Taxes and Assessment Details
Values
| (+) Improvement Homesite Value: | + | $0 | |
| (+) Improvement Non-Homesite Value: | + | $220,993 | |
| (+) Land Homesite Value: | + | $0 | |
| (+) Land Non-Homesite Value: | + | $220,000 | |
| (+) Curr Use (HS): | + | $0 | $0 |
| (+) Curr Use (NHS): | + | $0 | $0 |
| | | -------------------------- | |
| (=) Market Value: | = | $440,993 | |
| (–) Productivity Loss: | – | $0 | |
| | | -------------------------- | |
| (=) Subtotal: | = | $440,993 | |
| (+) Senior Appraised Value: | + | $0 | |
| (+) Non-Senior Appraised Value: | + | $440,993 | |
| | | -------------------------- | |
| (=) Total Appraised Value: | = | $440,993 | |
| (–) Senior Exemption Loss: | – | $0 | |
| (–) Exemption Loss: | – | $0 | |
| | | -------------------------- | |
| (=) Taxable Value: | = | $440,993 | |
Taxing Jurisdiction
| Owner: | HANLON, PATRICK MICHAEL | | |
| % Ownership: | 100.0000000000% | | |
| Total Value: | $440,993 | | |
| Tax Area: | 110 - APPRAISER-OH Schl Dist, outside OH, improved & 1 acre or less |
| CF | Conservation Futures | 0.0316035091 | $440,993 | $440,993 | $13.94 | | |
| CEM1 | Cemetery #1 | 0.0040320932 | $440,993 | $440,993 | $1.78 | | |
| FIRE2 | Fire & Rescue Dist #2 N Whidbey GEN | 0.5475949600 | $440,993 | $440,993 | $241.49 | | |
| HOBOND | Hospital BOND | 0.1910887512 | $440,993 | $440,993 | $84.27 | | |
| HOGEN | Hospital GEN | 0.3902502903 | $440,993 | $440,993 | $172.10 | | |
| CE | County Current Expense | 0.3708482477 | $440,993 | $440,993 | $163.54 | | |
| CR | County Roads | 0.4584763726 | $440,993 | $440,993 | $202.18 | | |
| ISLANDEMS | Hospital GEN (EMS) | 0.5000000000 | $440,993 | $440,993 | $220.50 | | |
| LIB | Library Sno-Isle GEN | 0.3153421757 | $440,993 | $440,993 | $139.06 | | |
| NWHIDPRMT | P & R N Whidbey GEN | 0.2004466701 | $440,993 | $440,993 | $88.40 | | |
| SCH201MO | School 201 Enrichment | 1.8559231640 | $440,993 | $440,993 | $818.45 | | |
| ST | State School | 1.3035497053 | $440,993 | $440,993 | $574.86 | | |
| ST2 | State School Part 2 | 0.8169543533 | $440,993 | $440,993 | $360.27 | | |
| | Total Tax Rate: | 6.9861102925 | | | | | |
| | | | | Taxes w/Current Exemptions: | $3,080.84 | | |
| | | | | Taxes w/o Exemptions: | $3,080.84 | | |
Improvement / Building
| Improvement #1: | RESIDENTIAL | State Code: | Y | 1176.0 sqft | Value: | $220,993 |
| Bathrooms: | 1.75 | Bedrooms: | 3 | | Ceiling: | DRYWALL PAINTED | Exterior Wall/Cover: | PLY/HARDBOARD T-111 | | Floor Covering: | CARPET/VINYL 80-20 | Floor Structure: | WOOD W/SUBFLOOR | | Foundation: | CONCRETE | Heating: | WALL HEAT ELECTRIC | | Interior Finish: | DRYWALL PAINT | Plumbing Fixture Cnt: | 9 | | Roof Slope: | 5" IN 12" | Roof Structure/Cover: | CJ ASPHALT |
|
| | Type | Description | Class CD | Sub Class CD | Year Built | Area |
| | BAS | BASE/MAIN FLOOR | 3 | 0 | 1993 | 1176.0 |
| | AGR | ATTACHED GARAGE | 3 | 0 | 1993 | 528.0 |
| | OWP | OPEN WOOD PORCH W/STEPS | 3 | 0 | 1993 | 200.0 |
| | OWP | OPEN WOOD PORCH W/STEPS | 3 | 0 | 1993 | 216.0 |
Sketch
Property Image
Land
| 1 | 15 | SQ (12001-21780) | 0.3900 | 16988.40 | 0.00 | 0.00 | 1.00 | $220,000 | $0 |
Roll Value History
| 2026 | N/A | N/A | N/A | N/A | N/A |
| 2025 | $220,993 | $220,000 | $0 | $440,993 | $440,993 |
| 2024 | $223,781 | $200,000 | $0 | $423,781 | $423,781 |
| 2023 | $226,571 | $190,000 | $0 | $416,571 | $416,571 |
| 2022 | $202,631 | $170,000 | $0 | $372,631 | $372,631 |
| 2021 | $178,400 | $150,000 | $0 | $328,400 | $328,400 |
| 2020 | $173,452 | $135,000 | $0 | $308,452 | $308,452 |
| 2019 | $122,631 | $170,000 | $0 | $292,631 | $292,631 |
| 2018 | $122,998 | $130,000 | $0 | $252,998 | $252,998 |
| 2017 | $123,735 | $110,000 | $0 | $233,735 | $233,735 |
| 2016 | $125,207 | $85,000 | $0 | $210,207 | $210,207 |
| 2015 | $107,423 | $65,000 | $0 | $172,423 | $172,423 |
| 2014 | $108,820 | $50,000 | $0 | $158,820 | $158,820 |
| 2013 | $110,214 | $72,250 | $0 | $182,464 | $182,464 |
| 2012 | $111,607 | $72,250 | $0 | $183,857 | $183,857 |
| 2011 | $113,004 | $85,000 | $0 | $198,004 | $198,004 |
| 2010 | $117,419 | $85,000 | $0 | $202,419 | $202,419 |
| 2009 | $122,430 | $95,000 | $0 | $217,430 | $217,430 |
| 2008 | $123,911 | $104,500 | $0 | $228,411 | $228,411 |
| 2007 | $125,389 | $104,500 | $0 | $229,889 | $229,889 |
Deed and Sales History
| 1 | 09/30/2024 | WD | Warranty Deed | SIEKMANN, BRADLEY A | HANLON, PATRICK MICHAEL | | | $450,240.00 | 61428 | 4577687 |
| 2 | 07/09/2021 | WD | Warranty Deed | SNIDER, JOSEPH M E | SIEKMANN, BRADLEY A | | | $401,000.00 | 49351 | 4525408 |
| 3 | 08/10/2020 | QCD | Quit Claim Deed | SNIDER, JOSEPH ME | SNIDER, JOSEPH M E | | | $0.00 | 44247 | 4493906 |
| 4 | 05/16/2018 | WD | Warranty Deed | MORSS, CALVIN R | SNIDER, JOSEPH ME | | | $296,000.00 | 34218 | 4444916 |
| 5 | 07/17/2015 | WD | Warranty Deed | MORVANT, LESA ANN | MORSS, CALVIN R | | | $211,000.00 | 20544 | 4382500 |
| 6 | 06/07/2002 | QCD | Quit Claim Deed | MORVANT, FLOYD PAUL | MORVANT, LESA ANN | | | $0.00 | 22221 | 4022582 |
| 7 | 04/05/1999 | WD | Warranty Deed | NG, ALEXANDER K | MORVANT, FLOYD PAUL | | | $129,900.00 | 91319 | 99008775 |
| 8 | 06/01/1993 | WD | Warranty Deed | MACH, DELBERT J | NG, ALEXANDER K | | | $109,000.00 | 32387 | 93012275 |
| 9 | 12/01/1992 | WD | Warranty Deed | ADAMS, RUSSELL B | MACH, DELBERT J | | | $19,500.00 | 24968 | 92024493 |
| 10 | 07/01/1992 | QCD | Quit Claim Deed | ADAMS, RUSSELL B | ADAMS, RUSSELL B | | | $0.00 | 22758 | 92013453 |
| 11 | 11/01/1989 | WD | Warranty Deed | PAJARI, VICTOR H | ADAMS, RUSSELL B | | | $13,500.00 | 95310 | 89017075 |
| 12 | 01/01/1900 | OTHER | Other - Misc. Documents | Unknown | PAJARI, VICTOR H | | | $0.00 | 0 | 0 |
Payout Agreement
| No payout information available.. |