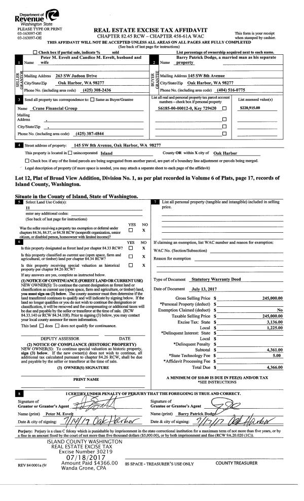
Property
Account |
| Property ID: | 227061 | Abbreviated Legal Description: | CAMPO HAC 1 LOT 53 |
| Geographic ID: | S6305-00-00053-0 | Agent Code: | |
| Type: | Real | | |
| Tax Area: | 110 - APPRAISER-OH Schl Dist, outside OH, improved & 1 acre or less | Land Use Code | 11 |
| Open Space: | N | DFL | N |
| Historic Property: | N | Remodel Property: | N |
| Multi-Family Redevelopment: | N | | |
| Township: | | Section: | |
| Range: | |
Location |
| Address: | 4578 SIESTA PLACE OAK HARBOR, WA 98277 | Mapsco: | |
| Neighborhood: | Cycle 6 | Map ID: | 190 |
| Neighborhood CD: | 6 |
Owner |
| Name: | DUFFETT, JUSTIN M | Owner ID: | 290375 |
| Mailing Address: | KIMBERLY S DUFFETT 4578 SIESTA PL OAK HARBOR, WA 98277 | % Ownership: | 100.0000000000% |
| | | Exemptions: | |
Taxes and Assessment Details
Values
| (+) Improvement Homesite Value: | + | $0 | |
| (+) Improvement Non-Homesite Value: | + | $120,609 | |
| (+) Land Homesite Value: | + | $0 | |
| (+) Land Non-Homesite Value: | + | $220,000 | |
| (+) Curr Use (HS): | + | $0 | $0 |
| (+) Curr Use (NHS): | + | $0 | $0 |
| | | -------------------------- | |
| (=) Market Value: | = | $340,609 | |
| (–) Productivity Loss: | – | $0 | |
| | | -------------------------- | |
| (=) Subtotal: | = | $340,609 | |
| (+) Senior Appraised Value: | + | $0 | |
| (+) Non-Senior Appraised Value: | + | $340,609 | |
| | | -------------------------- | |
| (=) Total Appraised Value: | = | $340,609 | |
| (–) Senior Exemption Loss: | – | $0 | |
| (–) Exemption Loss: | – | $0 | |
| | | -------------------------- | |
| (=) Taxable Value: | = | $340,609 | |
Taxing Jurisdiction
| Owner: | DUFFETT, JUSTIN M | | |
| % Ownership: | 100.0000000000% | | |
| Total Value: | $340,609 | | |
| Tax Area: | 110 - APPRAISER-OH Schl Dist, outside OH, improved & 1 acre or less |
| CF | Conservation Futures | 0.0316035091 | $340,609 | $340,609 | $10.76 | | |
| CEM1 | Cemetery #1 | 0.0040320932 | $340,609 | $340,609 | $1.37 | | |
| FIRE2 | Fire & Rescue Dist #2 N Whidbey GEN | 0.5475949600 | $340,609 | $340,609 | $186.52 | | |
| HOBOND | Hospital BOND | 0.1910887512 | $340,609 | $340,609 | $65.09 | | |
| HOGEN | Hospital GEN | 0.3902502903 | $340,609 | $340,609 | $132.92 | | |
| CE | County Current Expense | 0.3708482477 | $340,609 | $340,609 | $126.31 | | |
| CR | County Roads | 0.4584763726 | $340,609 | $340,609 | $156.16 | | |
| ISLANDEMS | Hospital GEN (EMS) | 0.5000000000 | $340,609 | $340,609 | $170.30 | | |
| LIB | Library Sno-Isle GEN | 0.3153421757 | $340,609 | $340,609 | $107.41 | | |
| NWHIDPRMT | P & R N Whidbey GEN | 0.2004466701 | $340,609 | $340,609 | $68.27 | | |
| SCH201MO | School 201 Enrichment | 1.8559231640 | $340,609 | $340,609 | $632.14 | | |
| ST | State School | 1.3035497053 | $340,609 | $340,609 | $444.00 | | |
| ST2 | State School Part 2 | 0.8169543533 | $340,609 | $340,609 | $278.26 | | |
| | Total Tax Rate: | 6.9861102925 | | | | | |
| | | | | Taxes w/Current Exemptions: | $2,379.51 | | |
| | | | | Taxes w/o Exemptions: | $2,379.51 | | |
Improvement / Building
| Improvement #1: | MANUFACTURED HOME | State Code: | Y | 1404.0 sqft | Value: | $120,609 |
| Bathrooms: | 0 | Bedrooms: | 0 | | Ceiling: | PLASTER PAINTED | Cooling: | EVAP NO DUCT | | Exterior Wall/Cover: | VINYL | Floor Covering: | CARPET 100% | | Floor Structure: | SLAB ON GRADE | Foundation: | SLAB | | Heating: | FHA ELECTRIC | Interior Finish: | PLASTER | | Plumbing Fixture Cnt: | 1 | Roof Slope: | FLAT | | Roof Structure/Cover: | CJ ALUMINIUM HEAVY |   |   |
|
| | Type | Description | Class CD | Sub Class CD | Year Built | Area |
| | BAS | BASE/MAIN FLOOR | 4 | 0 | 1997 | 1404.0 |
| | DGR | DETACHED GARAGE | 4 | 0 | 1997 | 200.0 |
| | OWP | OPEN WOOD PORCH W/STEPS | 4 | 0 | 1997 | 256.0 |
Sketch
Property Image
Land
| 1 | 15 | SQ (12001-21780) | 0.0000 | 0.00 | 0.00 | 0.00 | 1.00 | $220,000 | $0 |
Roll Value History
| 2026 | N/A | N/A | N/A | N/A | N/A |
| 2025 | $120,609 | $220,000 | $0 | $340,609 | $340,609 |
| 2024 | $123,825 | $200,000 | $0 | $323,825 | $323,825 |
| 2023 | $110,459 | $190,000 | $0 | $300,459 | $300,459 |
| 2022 | $100,515 | $170,000 | $0 | $270,515 | $270,515 |
| 2021 | $89,692 | $150,000 | $0 | $239,692 | $239,692 |
| 2020 | $89,185 | $135,000 | $0 | $224,185 | $224,185 |
| 2019 | $71,092 | $170,000 | $0 | $241,092 | $241,092 |
| 2018 | $71,923 | $130,000 | $0 | $201,923 | $201,923 |
| 2017 | $66,530 | $110,000 | $0 | $176,530 | $176,530 |
| 2016 | $53,040 | $85,000 | $0 | $138,040 | $138,040 |
| 2015 | $53,786 | $65,000 | $0 | $118,786 | $118,786 |
| 2014 | $55,260 | $50,000 | $0 | $105,260 | $105,260 |
| 2013 | $56,740 | $72,250 | $0 | $128,990 | $128,990 |
| 2012 | $58,220 | $72,250 | $0 | $130,470 | $130,470 |
| 2011 | $32,480 | $85,000 | $0 | $117,480 | $117,480 |
| 2010 | $12,338 | $85,000 | $0 | $97,338 | $97,338 |
| 2009 | $12,671 | $95,000 | $0 | $107,671 | $107,671 |
| 2008 | $12,671 | $104,500 | $0 | $117,171 | $117,171 |
| 2007 | $12,709 | $104,500 | $0 | $117,209 | $117,209 |
Deed and Sales History
| 1 | 06/19/2019 | WD | Warranty Deed | STEADMAN, DANIEL | DUFFETT, JUSTIN M | | | $265,000.00 | 39106 | 4465910 |
| 2 | 05/25/2017 | WD | Warranty Deed | PANCHELLI, ROY | STEADMAN, DANIEL | | | $234,500.00 | 29490 | 4423335 |
| 3 | 09/16/2011 | WD | Warranty Deed | FAKKEMA, ANNIE F | PANCHELLI, ROY | | | $140,000.00 | 5627 | 4301663 |
| 4 | 04/30/2008 | ESTSEPPROP | Establish Separate Property | FAKKEMA, KEVIN J | FAKKEMA, ANNIE F | | | $0.00 | 81113 | 4227794 |
| 5 | 04/30/2008 | REC | Real Estate Contract | MCCORMICK, SHIRLEY F | FAKKEMA, KEVIN J | | | $80,000.00 | 81112 | 4227793 |
| 6 | 10/24/2001 | 5 | DNU - Marriage License/Name Change | MCCORMICK, RAYMOND P | MCCORMICK, SHIRLEY F | | | $0.00 | 69160 | 0 |
| 7 | 05/01/1984 | WD | Warranty Deed | MCCORMICK, RAY P | MCCORMICK, RAYMOND P | | | $14,000.00 | 41260 | 424187 |
| 8 | 05/01/1984 | OTHER | Other - Misc. Documents | BAIRD, GLADYS | MCCORMICK, RAY P | | | $8,000.00 | 41328 | 0 |
| 9 | 06/01/1981 | OTHER | Other - Misc. Documents | BAIRD, ORVEN G | BAIRD, GLADYS | | | $1.00 | 11945 | 0 |
| 10 | 04/01/1981 | CD | DNU - Correction Deed | BAIRD, FERDINARD C | BAIRD, ORVEN G | | | $0.00 | 11254 | 382243 |
| 11 | 10/01/1980 | TRUSTEED | Trustee's Deed | BAIRD, FERDINAND C | BAIRD, FERDINARD C | | | $10,000.00 | 3408 | 374975 |
| 12 | 10/01/1980 | OTHER | Other - Misc. Documents | NUTT, W E | BAIRD, FERDINAND C | | | $11,900.00 | 3409 | 0 |
Payout Agreement
| No payout information available.. |