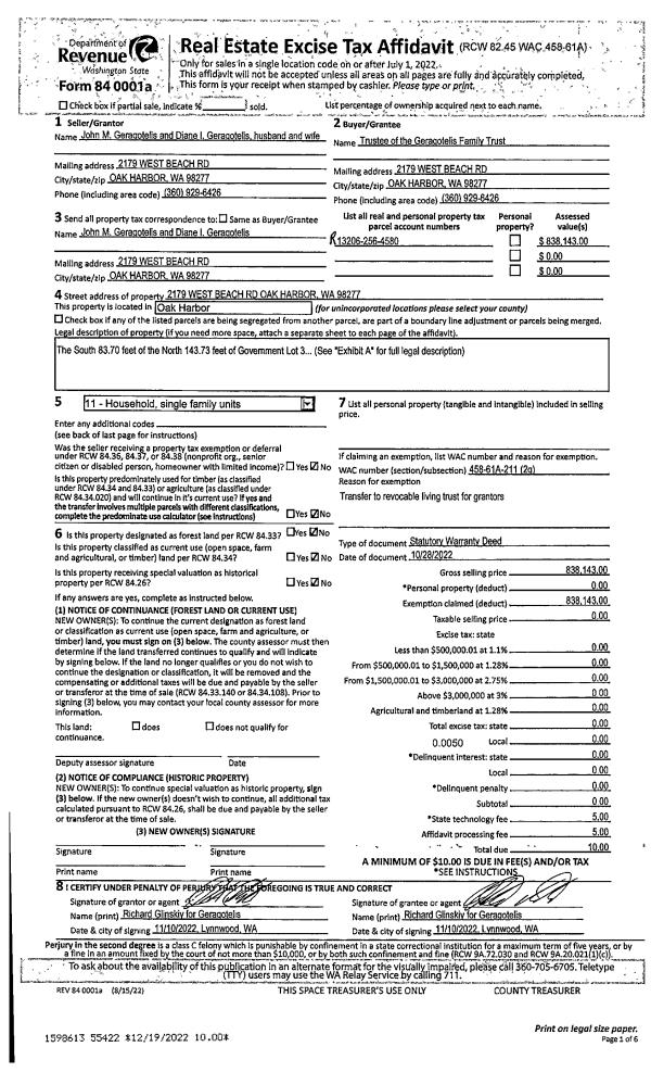
Property
Account |
| Property ID: | 227285 | Abbreviated Legal Description: | CAREFREE AC 1 LOT 1 |
| Geographic ID: | S6315-00-00001-0 | Agent Code: | |
| Type: | Real | | |
| Tax Area: | 512 - APPRAISER-Stan/Cam Schl Dist, improved, greater than 1 acre | Land Use Code | 11 |
| Open Space: | N | DFL | N |
| Historic Property: | N | Remodel Property: | N |
| Multi-Family Redevelopment: | N | | |
| Township: | | Section: | |
| Range: | |
Location |
| Address: | 876 CEDAR LN CAMANO ISLAND, WA 98282 | Mapsco: | |
| Neighborhood: | Cycle 5 | Map ID: | 457 |
| Neighborhood CD: | 5 |
Owner |
| Name: | VAN DUKER, DAVID L / SHELLIE | Owner ID: | 64174 |
| Mailing Address: | 876 CEDAR LN CAMANO ISLAND, WA 98282-8530 | % Ownership: | 100.0000000000% |
| | | Exemptions: | |
Taxes and Assessment Details
Values
| (+) Improvement Homesite Value: | + | $0 | |
| (+) Improvement Non-Homesite Value: | + | $355,399 | |
| (+) Land Homesite Value: | + | $0 | |
| (+) Land Non-Homesite Value: | + | $250,000 | |
| (+) Curr Use (HS): | + | $0 | $0 |
| (+) Curr Use (NHS): | + | $0 | $0 |
| | | -------------------------- | |
| (=) Market Value: | = | $605,399 | |
| (–) Productivity Loss: | – | $0 | |
| | | -------------------------- | |
| (=) Subtotal: | = | $605,399 | |
| (+) Senior Appraised Value: | + | $0 | |
| (+) Non-Senior Appraised Value: | + | $605,399 | |
| | | -------------------------- | |
| (=) Total Appraised Value: | = | $605,399 | |
| (–) Senior Exemption Loss: | – | $0 | |
| (–) Exemption Loss: | – | $0 | |
| | | -------------------------- | |
| (=) Taxable Value: | = | $605,399 | |
Taxing Jurisdiction
| Owner: | VAN DUKER, DAVID L / SHELLIE | | |
| % Ownership: | 100.0000000000% | | |
| Total Value: | $605,399 | | |
| Tax Area: | 512 - APPRAISER-Stan/Cam Schl Dist, improved, greater than 1 acre |
| CF | Conservation Futures | 0.0316035091 | $605,399 | $605,399 | $19.13 | | |
| EMS1 | Fire & Rescue Dist #1 Camano GEN (EMS) | 0.3677864386 | $605,399 | $605,399 | $222.66 | | |
| FIRE1 | Fire & Rescue Dist #1 Camano GEN | 1.2502910536 | $605,399 | $605,399 | $756.92 | | |
| FIRE1BOND | Fire & Rescue Dist #1 Camano BOND | 0.1570001679 | $605,399 | $605,399 | $95.05 | | |
| CE | County Current Expense | 0.3708482477 | $605,399 | $605,399 | $224.51 | | |
| CR | County Roads | 0.4584763726 | $605,399 | $605,399 | $277.56 | | |
| LCIB | Library Sno-Isle BOND (Camano Island) | 0.0396325772 | $605,399 | $605,399 | $23.99 | | |
| LIB | Library Sno-Isle GEN | 0.3153421757 | $605,399 | $605,399 | $190.91 | | |
| SCH205_401 | School 205-401 Enrichment | 1.2698420524 | $605,399 | $605,399 | $768.76 | | |
| SCH205BOND | School 205-401 BOND | 0.9396497583 | $605,399 | $605,399 | $568.86 | | |
| ST | State School | 1.3035497053 | $605,399 | $605,399 | $789.17 | | |
| ST2 | State School Part 2 | 0.8169543533 | $605,399 | $605,399 | $494.58 | | |
| | Total Tax Rate: | 7.3209764117 | | | | | |
| | | | | Taxes w/Current Exemptions: | $4,432.10 | | |
| | | | | Taxes w/o Exemptions: | $4,432.10 | | |
Improvement / Building
| Improvement #1: | RESIDENTIAL | State Code: | A1 | 1866.5 sqft | Value: | $355,399 |
| Bathrooms: | 2.5 | Bedrooms: | 2 | | Ceiling: | DRYWALL PAINTED | Exterior Wall/Cover: | WOOD SIDING | | Floor Covering: | CARPET/VINYL 80-20 | Floor Structure: | WOOD W/SUBFLOOR | | Foundation: | CONCRETE | Heating: | WALL HEAT ELECTRIC | | Interior Finish: | DRYWALL PAINT | Plumbing Fixture Cnt: | 12 | | Roof Slope: | 5" IN 12" | Roof Structure/Cover: | CJ ASPHALT |
|
| | Type | Description | Class CD | Sub Class CD | Year Built | Area |
| | BAS | BASE/MAIN FLOOR | 3 | 0 | 1993 | 1434.5 |
| | AGR | ATTACHED GARAGE | 3 | 0 | 1993 | 440.0 |
| | OWP | OPEN WOOD PORCH W/STEPS | 3 | 0 | 1993 | 364.0 |
| | DGR | DETACHED GARAGE | 3 | 0 | 1993 | 1872.0 |
| | LOF | LOFT | 3 | 0 | 1993 | 432.0 |
Sketch
Property Image
Land
| 1 | 17 | AC (01.01-02.00) | 1.9300 | 84070.80 | 0.00 | 0.00 | 1.00 | $250,000 | $0 |
Roll Value History
| 2026 | N/A | N/A | N/A | N/A | N/A |
| 2025 | $355,399 | $250,000 | $0 | $605,399 | $605,399 |
| 2024 | $359,883 | $250,000 | $0 | $609,883 | $609,883 |
| 2023 | $364,368 | $240,000 | $0 | $604,368 | $604,368 |
| 2022 | $334,019 | $240,000 | $0 | $574,019 | $574,019 |
| 2021 | $253,637 | $180,000 | $0 | $433,637 | $433,637 |
| 2020 | $247,936 | $150,000 | $0 | $397,936 | $397,936 |
| 2019 | $190,830 | $140,000 | $0 | $330,830 | $330,830 |
| 2018 | $191,263 | $135,000 | $0 | $326,263 | $326,263 |
| 2017 | $192,129 | $135,000 | $0 | $327,129 | $327,129 |
| 2016 | $193,862 | $130,000 | $0 | $323,862 | $323,862 |
| 2015 | $192,255 | $70,000 | $0 | $262,255 | $262,255 |
| 2014 | $194,032 | $70,000 | $0 | $264,032 | $264,032 |
| 2013 | $190,475 | $70,000 | $0 | $260,475 | $260,475 |
| 2012 | $192,255 | $74,400 | $0 | $266,655 | $266,655 |
| 2011 | $194,032 | $93,000 | $0 | $287,032 | $287,032 |
| 2010 | $179,967 | $93,000 | $0 | $272,967 | $272,967 |
| 2009 | $110,749 | $135,000 | $0 | $245,749 | $245,749 |
| 2008 | $112,073 | $136,000 | $0 | $248,073 | $248,073 |
| 2007 | $113,480 | $123,750 | $0 | $237,230 | $237,230 |
Deed and Sales History
| 1 | 09/20/1992 | WD | Warranty Deed | VAN DUKER, DAVID L / SHELLIE | VAN DUKER, DAVID L / SHELLIE | | | $0.00 | 28198 | 4417810 |
| 2 | 04/01/1994 | WD | Warranty Deed | DISHMAN, JOHNNY S | VAN, DUKER, D | | | $130,000.00 | 41482 | 94009037 |
| 3 | 09/01/1992 | PACD | Purchaser's Assignment | HICKS, DENNIS W | DISHMAN, JOHNNY S | | | $0.00 | 23686 | 92017729 |
| 4 | 12/01/1978 | OTHER | Other - Misc. Documents | Unknown | HICKS, DENNIS W | | | $17,500.00 | 90033 | 345492 |
Payout Agreement
| No payout information available.. |