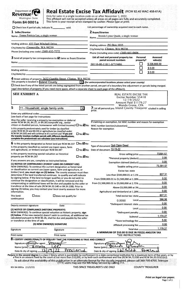
Property
Account |
| Property ID: | 227310 | Abbreviated Legal Description: | CAREFREE AC 1 LOT 3 |
| Geographic ID: | S6315-00-00003-0 | Agent Code: | |
| Type: | Real | | |
| Tax Area: | 512 - APPRAISER-Stan/Cam Schl Dist, improved, greater than 1 acre | Land Use Code | 11 |
| Open Space: | N | DFL | N |
| Historic Property: | N | Remodel Property: | N |
| Multi-Family Redevelopment: | N | | |
| Township: | | Section: | |
| Range: | |
Location |
| Address: | 842 CEDAR LN CAMANO ISLAND, WA 98282 | Mapsco: | |
| Neighborhood: | Cycle 5 | Map ID: | 457 |
| Neighborhood CD: | 5 |
Owner |
| Name: | LANDSTROM, LARRY D | Owner ID: | 189705 |
| Mailing Address: | PO BOX 943 CONWAY, WA 98238-0901 | % Ownership: | 100.0000000000% |
| | | Exemptions: | SNR/DSBL |
Taxes and Assessment Details
Values
| (+) Improvement Homesite Value: | + | $306,207 | |
| (+) Improvement Non-Homesite Value: | + | $0 | |
| (+) Land Homesite Value: | + | $250,000 | |
| (+) Land Non-Homesite Value: | + | $0 | |
| (+) Curr Use (HS): | + | $0 | $0 |
| (+) Curr Use (NHS): | + | $0 | $0 |
| | | -------------------------- | |
| (=) Market Value: | = | $556,207 | |
| (–) Productivity Loss: | – | $0 | |
| | | -------------------------- | |
| (=) Subtotal: | = | $556,207 | |
| (+) Senior Appraised Value: | + | $251,000 | |
| (+) Non-Senior Appraised Value: | + | $0 | |
| | | -------------------------- | |
| (=) Total Appraised Value: | = | $251,000 | |
| (–) Senior Exemption Loss: | – | $150,600 | |
| (–) Exemption Loss: | – | $0 | |
| | | -------------------------- | |
| (=) Taxable Value: | = | $100,400 | |
Taxing Jurisdiction
| Owner: | LANDSTROM, LARRY D | | |
| % Ownership: | 100.0000000000% | | |
| Total Value: | $556,207 | | |
| Tax Area: | 512 - APPRAISER-Stan/Cam Schl Dist, improved, greater than 1 acre |
| CF | Conservation Futures | 0.0316035091 | $556,207 | $100,400 | $3.17 | | |
| EMS1 | Fire & Rescue Dist #1 Camano GEN (EMS) | 0.3677864386 | $556,207 | $100,400 | $36.93 | | |
| FIRE1 | Fire & Rescue Dist #1 Camano GEN | 1.2502910536 | $556,207 | $100,400 | $125.53 | | |
| FIRE1BOND | Fire & Rescue Dist #1 Camano BOND | 0.0000000000 | $556,207 | $0 | $0.00 | | |
| CE | County Current Expense | 0.3708482477 | $556,207 | $100,400 | $37.23 | | |
| CR | County Roads | 0.4584763726 | $556,207 | $100,400 | $46.03 | | |
| LCIB | Library Sno-Isle BOND (Camano Island) | 0.0000000000 | $556,207 | $0 | $0.00 | | |
| LIB | Library Sno-Isle GEN | 0.3153421757 | $556,207 | $100,400 | $31.66 | | |
| SCH205_401 | School 205-401 Enrichment | 0.0000000000 | $556,207 | $0 | $0.00 | | |
| SCH205BOND | School 205-401 BOND | 0.0000000000 | $556,207 | $0 | $0.00 | | |
| ST | State School | 1.3035497053 | $556,207 | $100,400 | $130.88 | | |
| ST2 | State School Part 2 | 0.0000000000 | $556,207 | $0 | $0.00 | | |
| | Total Tax Rate: | 4.0978975026 | | | | | |
| | | | | Taxes w/Current Exemptions: | $411.43 | | |
| | | | | Taxes w/o Exemptions: | $4,071.99 | | |
Improvement / Building
| Improvement #1: | RESIDENTIAL | State Code: | Y | 1652.0 sqft | Value: | $306,207 |
| Bathrooms: | 1 | Bedrooms: | 1 | | Ceiling: | TONGUE & GROOVE | Exterior Wall/Cover: | WOOD SIDING | | Floor Covering: | CARPET/VINYL 80-20 | Floor Structure: | SLAB ON GRADE | | Foundation: | SLAB | Heating: | BASEBOARD ELECTRIC | | Interior Finish: | DRYWALL PAINT | Plumbing Fixture Cnt: | 6 | | Roof Slope: | 4" IN 12" | Roof Structure/Cover: | CJ ALUMINIUM HEAVY |
|
| | Type | Description | Class CD | Sub Class CD | Year Built | Area |
| | BAS | BASE/MAIN FLOOR | 3 | 0 | 1981 | 484.0 |
| | AGR | ATTACHED GARAGE | 3 | 0 | 1981 | 768.0 |
| | OWP | OPEN WOOD PORCH W/STEPS | 3 | 0 | 1981 | 218.0 |
| | BIG | BUILT IN GARAGE | 3 | 0 | 1981 | 1168.0 |
| | OWP | OPEN WOOD PORCH W/STEPS | 3 | 0 | 1981 | 240.0 |
| | BAS | BASE/MAIN FLOOR | 3 | 0 | 1981 | 1168.0 |
Sketch
Property Image
Land
| 1 | 18 | AC (02.01-03.00) | 0.0000 | 0.00 | 0.00 | 0.00 | 1.00 | $250,000 | $0 |
Roll Value History
| 2026 | N/A | N/A | N/A | N/A | N/A |
| 2025 | $306,207 | $250,000 | $0 | $556,207 | $100,400 |
| 2024 | $317,358 | $250,000 | $0 | $567,358 | $100,400 |
| 2023 | $321,314 | $240,000 | $0 | $561,314 | $100,400 |
| 2022 | $294,526 | $240,000 | $0 | $534,526 | $100,400 |
| 2021 | $139,291 | $180,000 | $0 | $319,291 | $100,400 |
| 2020 | $136,606 | $150,000 | $0 | $286,606 | $100,400 |
| 2019 | $109,538 | $150,000 | $0 | $259,538 | $100,400 |
| 2018 | $109,748 | $140,000 | $0 | $249,748 | $99,899 |
| 2017 | $110,165 | $140,000 | $0 | $250,165 | $100,066 |
| 2016 | $111,000 | $140,000 | $0 | $251,000 | $100,400 |
| 2015 | $110,165 | $75,000 | $0 | $185,165 | $185,165 |
| 2014 | $111,000 | $75,000 | $0 | $186,000 | $186,000 |
| 2013 | $111,836 | $75,000 | $0 | $186,836 | $186,836 |
| 2012 | $112,672 | $83,200 | $0 | $195,872 | $195,872 |
| 2011 | $113,507 | $104,000 | $0 | $217,507 | $217,507 |
| 2010 | $96,242 | $104,000 | $0 | $200,242 | $200,242 |
| 2009 | $110,962 | $124,000 | $0 | $234,962 | $234,962 |
| 2008 | $40,890 | $123,000 | $0 | $163,890 | $163,890 |
| 2007 | $41,842 | $128,400 | $0 | $170,242 | $170,242 |
Deed and Sales History
| 1 | 04/01/1991 | OTHER | Other - Misc. Documents | LANDSTROM, LARRY | LANDSTROM, LARRY & | | | $0.00 | 64170 | 91004459 |
| 2 | 12/01/1990 | QCD | Quit Claim Deed | MACK, CHARLES L | LANDSTROM, LARRY | | | $0.00 | 10795 | 91003520 |
| 3 | 06/01/1987 | WD | Warranty Deed | MACK, CHARLES L | MACK, CHARLES L | | | $32,800.00 | 71955 | 87009031 |
| 4 | 06/01/1987 | QCD | Quit Claim Deed | LANDSTROM, LARRY | MACK, CHARLES L | | | $0.00 | 71956 | 87009032 |
| 5 | 05/01/1982 | CD | DNU - Correction Deed | LANDSTROM, LARRY 1 | LANDSTROM, LARRY | | | $1.00 | 21094 | 396102 |
| 6 | 05/01/1982 | CD | DNU - Correction Deed | LANDSTROM, LARRY & | LANDSTROM, LARRY 1 | | | $0.00 | 21275 | 396837 |
| 7 | 01/01/1900 | OTHER | Other - Misc. Documents | Unknown | LANDSTROM, LARRY & | | | $0.00 | 0 | 0 |
Payout Agreement
| No payout information available.. |