Property
Account |
| Property ID: | 227463 | Abbreviated Legal Description: | CAREFREE AC #1 N150'OF E170'OF LOT 15 SUBJ TO EZ SP 71-096 |
| Geographic ID: | S6315-00-00015-3 | Agent Code: | |
| Type: | Real | | |
| Tax Area: | 510 - APPRAISER-Stan/Cam Schl Dist, improved & 1 acre or less | Land Use Code | 11 |
| Open Space: | N | DFL | N |
| Historic Property: | N | Remodel Property: | N |
| Multi-Family Redevelopment: | N | | |
| Township: | | Section: | |
| Range: | |
Location |
| Address: | 287 HACKBERRY LN CAMANO ISLAND, WA 98282 | Mapsco: | |
| Neighborhood: | Cycle 5 | Map ID: | 457 |
| Neighborhood CD: | 5 |
Owner |
| Name: | CAIN, TRAVIS | Owner ID: | 270303 |
| Mailing Address: | 287 HACKBERRY LN CAMANO ISLAND, WA 98282 | % Ownership: | 100.0000000000% |
| | | Exemptions: | |
Taxes and Assessment Details
Values
| (+) Improvement Homesite Value: | + | $0 | |
| (+) Improvement Non-Homesite Value: | + | $284,322 | |
| (+) Land Homesite Value: | + | $0 | |
| (+) Land Non-Homesite Value: | + | $220,000 | |
| (+) Curr Use (HS): | + | $0 | $0 |
| (+) Curr Use (NHS): | + | $0 | $0 |
| | | -------------------------- | |
| (=) Market Value: | = | $504,322 | |
| (–) Productivity Loss: | – | $0 | |
| | | -------------------------- | |
| (=) Subtotal: | = | $504,322 | |
| (+) Senior Appraised Value: | + | $0 | |
| (+) Non-Senior Appraised Value: | + | $504,322 | |
| | | -------------------------- | |
| (=) Total Appraised Value: | = | $504,322 | |
| (–) Senior Exemption Loss: | – | $0 | |
| (–) Exemption Loss: | – | $0 | |
| | | -------------------------- | |
| (=) Taxable Value: | = | $504,322 | |
Taxing Jurisdiction
| Owner: | CAIN, TRAVIS | | |
| % Ownership: | 100.0000000000% | | |
| Total Value: | $504,322 | | |
| Tax Area: | 510 - APPRAISER-Stan/Cam Schl Dist, improved & 1 acre or less |
| CF | Conservation Futures | 0.0316035091 | $504,322 | $504,322 | $15.94 | | |
| EMS1 | Fire & Rescue Dist #1 Camano GEN (EMS) | 0.3677864386 | $504,322 | $504,322 | $185.48 | | |
| FIRE1 | Fire & Rescue Dist #1 Camano GEN | 1.2502910536 | $504,322 | $504,322 | $630.55 | | |
| FIRE1BOND | Fire & Rescue Dist #1 Camano BOND | 0.1570001679 | $504,322 | $504,322 | $79.18 | | |
| CE | County Current Expense | 0.3708482477 | $504,322 | $504,322 | $187.03 | | |
| CR | County Roads | 0.4584763726 | $504,322 | $504,322 | $231.22 | | |
| LCIB | Library Sno-Isle BOND (Camano Island) | 0.0396325772 | $504,322 | $504,322 | $19.99 | | |
| LIB | Library Sno-Isle GEN | 0.3153421757 | $504,322 | $504,322 | $159.03 | | |
| SCH205_401 | School 205-401 Enrichment | 1.2698420524 | $504,322 | $504,322 | $640.41 | | |
| SCH205BOND | School 205-401 BOND | 0.9396497583 | $504,322 | $504,322 | $473.89 | | |
| ST | State School | 1.3035497053 | $504,322 | $504,322 | $657.41 | | |
| ST2 | State School Part 2 | 0.8169543533 | $504,322 | $504,322 | $412.01 | | |
| | Total Tax Rate: | 7.3209764117 | | | | | |
| | | | | Taxes w/Current Exemptions: | $3,692.14 | | |
| | | | | Taxes w/o Exemptions: | $3,692.14 | | |
Improvement / Building
| Improvement #1: | RESIDENTIAL | State Code: | Y | 2422.0 sqft | Value: | $284,322 |
| Bathrooms: | 2 | Bedrooms: | 2 | | Ceiling: | DRYWALL PAINTED | Exterior Wall/Cover: | WOOD SIDING | | Floor Covering: | CARPET/VINYL 80-20 | Floor Structure: | WOOD W/SUBFLOOR | | Foundation: | CONCRETE | Heating: | FHA GAS | | Interior Finish: | DRYWALL PAINT | Plumbing Fixture Cnt: | 9 | | Roof Slope: | 5" IN 12" | Roof Structure/Cover: | CJ ASPHALT |
|
| | Type | Description | Class CD | Sub Class CD | Year Built | Area |
| | BAS | BASE/MAIN FLOOR | 3 | 0 | 1990 | 1226.0 |
| | OWP | OPEN WOOD PORCH W/STEPS | 3 | 0 | 1990 | 144.0 |
| | DWN | DOWNSTAIRS LIVING AREA | 3 | 0 | 1990 | 1196.0 |
| | DGR | DETACHED GARAGE | 3 | 0 | 1990 | 660.0 |
| | CPD | OPEN CARPORT DIRT FLOOR | 3 | 0 | 1990 | 400.0 |
Sketch
Property Image
Land
| 1 | 16 | AC (00.51-01.00) | 0.5800 | 25264.80 | 0.00 | 0.00 | 1.00 | $220,000 | $0 |
Roll Value History
| 2026 | N/A | N/A | N/A | N/A | N/A |
| 2025 | $284,322 | $220,000 | $0 | $504,322 | $504,322 |
| 2024 | $288,202 | $220,000 | $0 | $508,202 | $508,202 |
| 2023 | $292,084 | $210,000 | $0 | $502,084 | $502,084 |
| 2022 | $267,995 | $210,000 | $0 | $477,995 | $477,995 |
| 2021 | $223,615 | $140,000 | $0 | $363,615 | $363,615 |
| 2020 | $218,820 | $120,000 | $0 | $338,820 | $338,820 |
| 2019 | $171,099 | $110,000 | $0 | $281,099 | $281,099 |
| 2018 | $171,660 | $100,000 | $0 | $271,660 | $271,660 |
| 2017 | $145,110 | $100,000 | $0 | $245,110 | $245,110 |
| 2016 | $146,995 | $100,000 | $0 | $246,995 | $246,995 |
| 2015 | $166,611 | $55,000 | $0 | $221,611 | $221,611 |
| 2014 | $168,451 | $55,000 | $0 | $223,451 | $223,451 |
| 2013 | $170,291 | $55,000 | $0 | $225,291 | $225,291 |
| 2012 | $172,132 | $66,400 | $0 | $238,532 | $238,532 |
| 2011 | $173,974 | $83,000 | $0 | $256,974 | $256,974 |
| 2010 | $180,921 | $83,000 | $0 | $263,921 | $263,921 |
| 2009 | $189,000 | $135,000 | $0 | $324,000 | $324,000 |
| 2008 | $192,883 | $136,000 | $0 | $328,883 | $328,883 |
| 2007 | $196,739 | $98,000 | $0 | $294,739 | $294,739 |
Deed and Sales History
| 1 | 05/20/2015 | SPWARDEED | Special Warranty Deed | SECRETARY OF HOUSING & URBAN DEVELOPMENT | CAIN, TRAVIS | | | $174,150.00 | 19661 | 4378851 |
| 2 | 06/14/2013 | WD | Warranty Deed | WELLS FARGO BANK NA | SECRETARY OF HOUSING & URBAN DEVELOPMENT | | | $0.00 | 17970 | 4370484 |
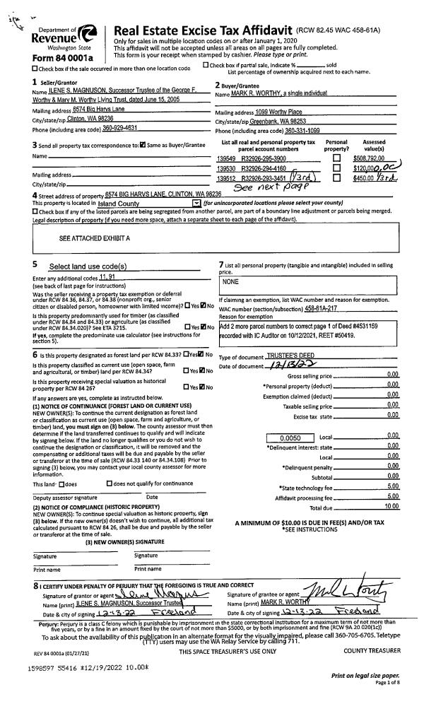
| 3 | 04/25/2013 | TRUSTEED | Trustee's Deed | SHASKY, JAMES M | WELLS FARGO BANK NA | | | $365,756.00 | 11130 | 4338623 |
| 4 | 11/02/2005 | WD | Warranty Deed | HELGESON, DAVID A | SHASKY, JAMES M | | | $299,000.00 | 55631 | 4153360 |
| 5 | 05/01/1986 | WD | Warranty Deed | ERICKSON, RICHARD L | HELGESON, DAVID A | | | $29,000.00 | 61363 | 86006336 |
| 6 | 04/01/1986 | WD | Warranty Deed | HILLIUS, ERVIN C | ERICKSON, RICHARD L | | | $0.00 | 61362 | 86006335 |
| 7 | 04/01/1985 | WD | Warranty Deed | MILLER, FRANK J | HILLIUS, ERVIN C | | | $25,000.00 | 51095 | 85004495 |
| 8 | 01/01/1985 | QCD | Quit Claim Deed | MILLER, HARRY L | MILLER, FRANK J | | | $0.00 | 50100 | 85000482 |
| 9 | 01/01/1985 | QCD | Quit Claim Deed | MILLER, FRANK J | MILLER, HARRY L | | | $0.00 | 50101 | 85000483 |
| 10 | 06/01/1983 | WD | Warranty Deed | DIMMICK, LEE V | MILLER, FRANK J | | | $11,500.00 | 31629 | 411011 |
| 11 | 08/01/1978 | OTHER | Other - Misc. Documents | Unknown | DIMMICK, LEE V | | | $3,500.00 | 83715 | 337402 |
Payout Agreement
| No payout information available.. |