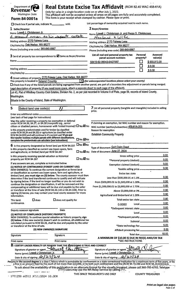
Property
Account |
| Property ID: | 227560 | Abbreviated Legal Description: | CARLTON HGTS 1 LOT 4 |
| Geographic ID: | S6320-00-00004-0 | Agent Code: | |
| Type: | Real | | |
| Tax Area: | 100 - APPRAISER-OH Schl Dist, in OH | Land Use Code | 11 |
| Open Space: | N | DFL | N |
| Historic Property: | N | Remodel Property: | N |
| Multi-Family Redevelopment: | N | | |
| Township: | | Section: | |
| Range: | |
Location |
| Address: | 762 SW 11TH CT OAK HARBOR, WA 98277 | Mapsco: | |
| Neighborhood: | Cycle 1 | Map ID: | 91 |
| Neighborhood CD: | 1 |
Owner |
| Name: | JOHNSON, WAYNE V | Owner ID: | 75014 |
| Mailing Address: | FOSTORIA L JOHNSON 762 SW 11TH CT OAK HARBOR, WA 98277-4521 | % Ownership: | 100.0000000000% |
| | | Exemptions: | SNR/DSBL |
Taxes and Assessment Details
Values
| (+) Improvement Homesite Value: | + | $295,509 | |
| (+) Improvement Non-Homesite Value: | + | $0 | |
| (+) Land Homesite Value: | + | $200,000 | |
| (+) Land Non-Homesite Value: | + | $0 | |
| (+) Curr Use (HS): | + | $0 | $0 |
| (+) Curr Use (NHS): | + | $0 | $0 |
| | | -------------------------- | |
| (=) Market Value: | = | $495,509 | |
| (–) Productivity Loss: | – | $0 | |
| | | -------------------------- | |
| (=) Subtotal: | = | $495,509 | |
| (+) Senior Appraised Value: | + | $485,509 | |
| (+) Non-Senior Appraised Value: | + | $0 | |
| | | -------------------------- | |
| (=) Total Appraised Value: | = | $485,509 | |
| (–) Senior Exemption Loss: | – | $70,000 | |
| (–) Exemption Loss: | – | $0 | |
| | | -------------------------- | |
| (=) Taxable Value: | = | $415,509 | |
Taxing Jurisdiction
| Owner: | JOHNSON, WAYNE V | | |
| % Ownership: | 100.0000000000% | | |
| Total Value: | $495,509 | | |
| Tax Area: | 100 - APPRAISER-OH Schl Dist, in OH |
| CF | Conservation Futures | 0.0316035091 | $495,509 | $415,509 | $13.13 | | |
| CEM1 | Cemetery #1 | 0.0040320932 | $495,509 | $415,509 | $1.68 | | |
| COH | City of Oak Harbor | 2.3001546061 | $495,509 | $415,509 | $955.73 | | |
| OAKBOND | City of Oak Harbor BOND | 0.1926904192 | $495,509 | $415,509 | $80.06 | | |
| HOBOND | Hospital BOND | 0.0000000000 | $495,509 | $0 | $0.00 | | |
| HOGEN | Hospital GEN | 0.3902502903 | $495,509 | $415,509 | $162.15 | | |
| CE | County Current Expense | 0.3708482477 | $495,509 | $415,509 | $154.09 | | |
| ISLANDEMS | Hospital GEN (EMS) | 0.5000000000 | $495,509 | $415,509 | $207.75 | | |
| LIB | Library Sno-Isle GEN | 0.3153421757 | $495,509 | $415,509 | $131.03 | | |
| NWHIDPRMT | P & R N Whidbey GEN | 0.2004466701 | $495,509 | $415,509 | $83.29 | | |
| SCH201MO | School 201 Enrichment | 0.0000000000 | $495,509 | $0 | $0.00 | | |
| ST | State School | 1.3035497053 | $495,509 | $415,509 | $541.64 | | |
| ST2 | State School Part 2 | 0.0000000000 | $495,509 | $0 | $0.00 | | |
| | Total Tax Rate: | 5.6089177167 | | | | | |
| | | | | Taxes w/Current Exemptions: | $2,330.55 | | |
| | | | | Taxes w/o Exemptions: | $4,198.39 | | |
Improvement / Building
| Improvement #1: | RESIDENTIAL | State Code: | Y | 2108.0 sqft | Value: | $295,509 |
| Bathrooms: | 3 | Bedrooms: | 4 | | Ceiling: | DRY WALL SPRAYED | Exterior Wall/Cover: | PLY/HARDBOARD T-111 | | Floor Covering: | CARPET/VINYL 80-20 | Floor Structure: | WOOD W/SUBFLOOR | | Foundation: | CONCRETE | Heating: | FHA ELECTRIC | | Interior Finish: | DRYWALL PAINT | Plumbing Fixture Cnt: | 12 | | Roof Slope: | 4" IN 12" | Roof Structure/Cover: | CJ ASPHALT |
|
| | Type | Description | Class CD | Sub Class CD | Year Built | Area |
| | BAS | BASE/MAIN FLOOR | 3 | 0 | 1977 | 1140.0 |
| | AGR | ATTACHED GARAGE | 3 | 0 | 1977 | 462.0 |
| | UPS | UPPER STORY | 3 | 0 | 1977 | 968.0 |
| | OWR | OPEN WOOD PORCH W/STEPS/ROOF | 3 | 0 | 1977 | 161.5 |
Sketch
Property Image
Land
| 1 | 14 | SQ (08001-12000) | 0.2000 | 8712.00 | 0.00 | 0.00 | 1.00 | $200,000 | $0 |
Roll Value History
| 2026 | N/A | N/A | N/A | N/A | N/A |
| 2025 | $295,509 | $200,000 | $0 | $495,509 | $415,509 |
| 2024 | $299,334 | $200,000 | $0 | $499,334 | $415,509 |
| 2023 | $295,509 | $190,000 | $0 | $485,509 | $415,509 |
| 2022 | $271,046 | $190,000 | $0 | $461,046 | $461,046 |
| 2021 | $238,699 | $120,000 | $0 | $358,699 | $358,699 |
| 2020 | $232,742 | $100,000 | $0 | $332,742 | $332,742 |
| 2019 | $177,225 | $150,000 | $0 | $327,225 | $327,225 |
| 2018 | $177,770 | $130,000 | $0 | $307,770 | $307,770 |
| 2017 | $168,211 | $110,000 | $0 | $278,211 | $278,211 |
| 2016 | $170,395 | $90,000 | $0 | $260,395 | $260,395 |
| 2015 | $172,580 | $70,000 | $0 | $242,580 | $242,580 |
| 2014 | $174,765 | $55,000 | $0 | $229,765 | $229,765 |
| 2013 | $176,950 | $55,000 | $0 | $231,950 | $231,950 |
| 2012 | $179,134 | $60,000 | $0 | $239,134 | $239,134 |
| 2011 | $192,722 | $50,000 | $0 | $242,722 | $242,722 |
| 2010 | $204,118 | $50,000 | $0 | $254,118 | $254,118 |
| 2009 | $212,718 | $60,000 | $0 | $272,718 | $272,718 |
| 2008 | $215,263 | $73,000 | $0 | $288,263 | $288,263 |
| 2007 | $217,860 | $73,000 | $0 | $290,860 | $290,860 |
Deed and Sales History
| 1 | 06/27/2003 | WD | Warranty Deed | BAEYEN, THOMAS L | JOHNSON, WAYNE V | | | $198,000.00 | 32860 | 4065279 |
| 2 | 10/01/1987 | WD | Warranty Deed | HAUERT, PATRICK C | BAEYEN, THOMAS L | | | $90,000.00 | 73152 | 87013956 |
| 3 | 01/01/1982 | WD | Warranty Deed | CHRISTIAN, ROY C | HAUERT, PATRICK C | | | $93,000.00 | 20176 | 392463 |
| 4 | 01/01/1900 | OTHER | Other - Misc. Documents | Unknown | CHRISTIAN, ROY C | | | $0.00 | 0 | 0 |
Payout Agreement
| No payout information available.. |