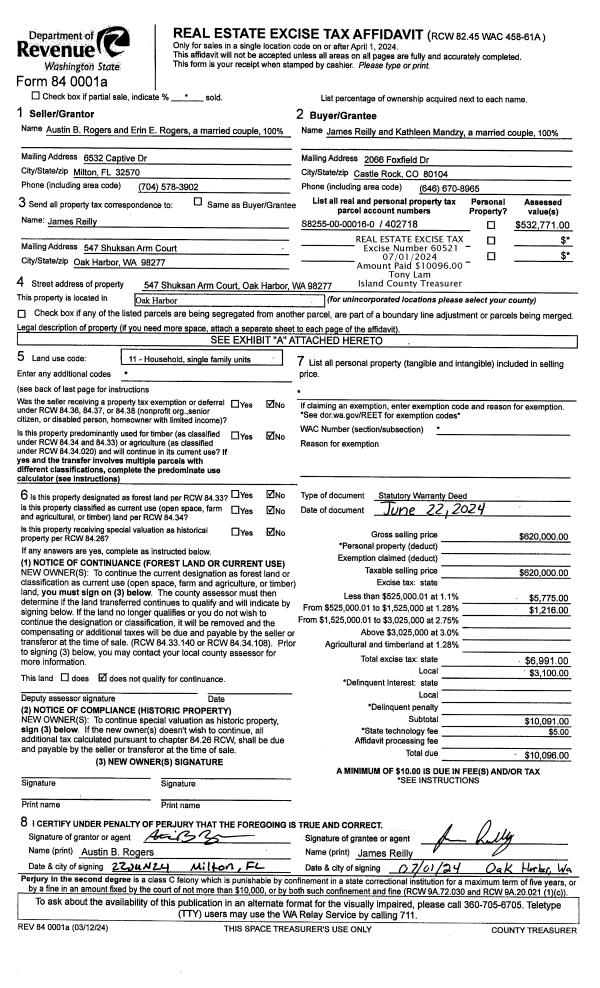
Property
Account |
| Property ID: | 227640 | Abbreviated Legal Description: | CARLTON HGTS 1 LOT 12 |
| Geographic ID: | S6320-00-00012-0 | Agent Code: | |
| Type: | Real | | |
| Tax Area: | 100 - APPRAISER-OH Schl Dist, in OH | Land Use Code | 11 |
| Open Space: | N | DFL | N |
| Historic Property: | N | Remodel Property: | N |
| Multi-Family Redevelopment: | N | | |
| Township: | | Section: | |
| Range: | |
Location |
| Address: | 743 SW 11TH CT OAK HARBOR, WA 98277 | Mapsco: | |
| Neighborhood: | Cycle 1 | Map ID: | 91 |
| Neighborhood CD: | 1 |
Owner |
| Name: | COOMBE, PETER J / JULIEANN | Owner ID: | 75022 |
| Mailing Address: | 743 SW 11TH CT OAK HARBOR, WA 98277-4521 | % Ownership: | 100.0000000000% |
| | | Exemptions: | |
Taxes and Assessment Details
Values
| (+) Improvement Homesite Value: | + | $0 | |
| (+) Improvement Non-Homesite Value: | + | $299,194 | |
| (+) Land Homesite Value: | + | $0 | |
| (+) Land Non-Homesite Value: | + | $200,000 | |
| (+) Curr Use (HS): | + | $0 | $0 |
| (+) Curr Use (NHS): | + | $0 | $0 |
| | | -------------------------- | |
| (=) Market Value: | = | $499,194 | |
| (–) Productivity Loss: | – | $0 | |
| | | -------------------------- | |
| (=) Subtotal: | = | $499,194 | |
| (+) Senior Appraised Value: | + | $0 | |
| (+) Non-Senior Appraised Value: | + | $499,194 | |
| | | -------------------------- | |
| (=) Total Appraised Value: | = | $499,194 | |
| (–) Senior Exemption Loss: | – | $0 | |
| (–) Exemption Loss: | – | $0 | |
| | | -------------------------- | |
| (=) Taxable Value: | = | $499,194 | |
Taxing Jurisdiction
| Owner: | COOMBE, PETER J / JULIEANN | | |
| % Ownership: | 100.0000000000% | | |
| Total Value: | $499,194 | | |
| Tax Area: | 100 - APPRAISER-OH Schl Dist, in OH |
| CF | Conservation Futures | 0.0316035091 | $499,194 | $499,194 | $15.78 | | |
| CEM1 | Cemetery #1 | 0.0040320932 | $499,194 | $499,194 | $2.01 | | |
| COH | City of Oak Harbor | 2.3001546061 | $499,194 | $499,194 | $1,148.22 | | |
| OAKBOND | City of Oak Harbor BOND | 0.1926904192 | $499,194 | $499,194 | $96.19 | | |
| HOBOND | Hospital BOND | 0.1910887512 | $499,194 | $499,194 | $95.39 | | |
| HOGEN | Hospital GEN | 0.3902502903 | $499,194 | $499,194 | $194.81 | | |
| CE | County Current Expense | 0.3708482477 | $499,194 | $499,194 | $185.13 | | |
| ISLANDEMS | Hospital GEN (EMS) | 0.5000000000 | $499,194 | $499,194 | $249.60 | | |
| LIB | Library Sno-Isle GEN | 0.3153421757 | $499,194 | $499,194 | $157.42 | | |
| NWHIDPRMT | P & R N Whidbey GEN | 0.2004466701 | $499,194 | $499,194 | $100.06 | | |
| SCH201MO | School 201 Enrichment | 1.8559231640 | $499,194 | $499,194 | $926.47 | | |
| ST | State School | 1.3035497053 | $499,194 | $499,194 | $650.72 | | |
| ST2 | State School Part 2 | 0.8169543533 | $499,194 | $499,194 | $407.82 | | |
| | Total Tax Rate: | 8.4728839852 | | | | | |
| | | | | Taxes w/Current Exemptions: | $4,229.62 | | |
| | | | | Taxes w/o Exemptions: | $4,229.62 | | |
Improvement / Building
| Improvement #1: | RESIDENTIAL | State Code: | Y | 1848.0 sqft | Value: | $299,194 |
| Bathrooms: | 2.5 | Bedrooms: | 3 | | Ceiling: | DRY WALL SPRAYED | Exterior Wall/Cover: | WOOD SIDING | | Floor Covering: | HARDWOOD/CARP 20-80 | Floor Structure: | WOOD W/SUBFLOOR | | Foundation: | CONCRETE | Heating: | FHA ELECTRIC | | Interior Finish: | DRYWALL PAINT | Plumbing Fixture Cnt: | 11 | | Roof Slope: | 4" IN 12" | Roof Structure/Cover: | CJ ALUMINIUM HEAVY |
|
| | Type | Description | Class CD | Sub Class CD | Year Built | Area |
| | BAS | BASE/MAIN FLOOR | 3 | 0 | 1977 | 1368.0 |
| | OP2 | OPEN PORCH W/STEPS | 3 | 0 | 1977 | 28.0 |
| | AGR | ATTACHED GARAGE | 3 | 0 | 1977 | 288.0 |
| | BIG | BUILT IN GARAGE | 3 | 0 | 1977 | 264.0 |
| | DWN | DOWNSTAIRS LIVING AREA | 3 | 0 | 1977 | 480.0 |
Sketch
Property Image
Land
| 1 | 14 | SQ (08001-12000) | 0.2100 | 9147.60 | 0.00 | 0.00 | 1.00 | $200,000 | $0 |
Roll Value History
| 2026 | N/A | N/A | N/A | N/A | N/A |
| 2025 | $299,194 | $200,000 | $0 | $499,194 | $499,194 |
| 2024 | $302,970 | $200,000 | $0 | $502,970 | $502,970 |
| 2023 | $291,643 | $190,000 | $0 | $481,643 | $481,643 |
| 2022 | $267,503 | $190,000 | $0 | $457,503 | $457,503 |
| 2021 | $246,427 | $120,000 | $0 | $366,427 | $366,427 |
| 2020 | $240,571 | $100,000 | $0 | $340,571 | $340,571 |
| 2019 | $184,592 | $150,000 | $0 | $334,592 | $334,592 |
| 2018 | $185,159 | $130,000 | $0 | $315,159 | $315,159 |
| 2017 | $163,233 | $110,000 | $0 | $273,233 | $273,233 |
| 2016 | $165,382 | $90,000 | $0 | $255,382 | $255,382 |
| 2015 | $167,529 | $70,000 | $0 | $237,529 | $237,529 |
| 2014 | $169,676 | $55,000 | $0 | $224,676 | $224,676 |
| 2013 | $171,825 | $55,000 | $0 | $226,825 | $226,825 |
| 2012 | $173,973 | $60,000 | $0 | $233,973 | $233,973 |
| 2011 | $179,947 | $50,000 | $0 | $229,947 | $229,947 |
| 2010 | $190,693 | $50,000 | $0 | $240,693 | $240,693 |
| 2009 | $198,858 | $60,000 | $0 | $258,858 | $258,858 |
| 2008 | $201,289 | $73,000 | $0 | $274,289 | $274,289 |
| 2007 | $203,723 | $73,000 | $0 | $276,723 | $276,723 |
Deed and Sales History
| 1 | 08/01/1993 | WD | Warranty Deed | ROGERS, TOMMIE J | COOMBE, PETER J | | | $127,500.00 | 33079 | 93015932 |
| 2 | 12/01/1982 | WD | Warranty Deed | MITTELL, JOHN E | ROGERS, TOMMIE J | | | $91,900.00 | 30038 | 404490 |
| 3 | 01/01/1900 | OTHER | Other - Misc. Documents | Unknown | MITTELL, JOHN E | | | $0.00 | 0 | 0 |
Payout Agreement
| No payout information available.. |