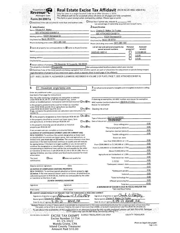
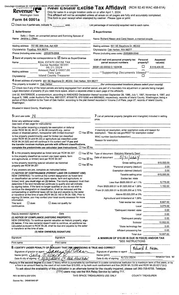
Property
Account |
| Property ID: | 227819 | Abbreviated Legal Description: | CARLTON HTS 2 LOT 28 |
| Geographic ID: | S6320-02-00028-0 | Agent Code: | |
| Type: | Real | | |
| Tax Area: | 100 - APPRAISER-OH Schl Dist, in OH | Land Use Code | 11 |
| Open Space: | N | DFL | N |
| Historic Property: | N | Remodel Property: | N |
| Multi-Family Redevelopment: | N | | |
| Township: | | Section: | |
| Range: | |
Location |
| Address: | 721 SW 12TH CT OAK HARBOR, WA 98277 | Mapsco: | |
| Neighborhood: | Cycle 1 | Map ID: | 91 |
| Neighborhood CD: | 1 |
Owner |
| Name: | MORALES, AMARILIS | Owner ID: | 300742 |
| Mailing Address: | 721 SW 12TH CT OAK HARBOR, WA 98277 | % Ownership: | 100.0000000000% |
| | | Exemptions: | |
Taxes and Assessment Details
Values
| (+) Improvement Homesite Value: | + | $0 | |
| (+) Improvement Non-Homesite Value: | + | $332,149 | |
| (+) Land Homesite Value: | + | $0 | |
| (+) Land Non-Homesite Value: | + | $200,000 | |
| (+) Curr Use (HS): | + | $0 | $0 |
| (+) Curr Use (NHS): | + | $0 | $0 |
| | | -------------------------- | |
| (=) Market Value: | = | $532,149 | |
| (–) Productivity Loss: | – | $0 | |
| | | -------------------------- | |
| (=) Subtotal: | = | $532,149 | |
| (+) Senior Appraised Value: | + | $0 | |
| (+) Non-Senior Appraised Value: | + | $532,149 | |
| | | -------------------------- | |
| (=) Total Appraised Value: | = | $532,149 | |
| (–) Senior Exemption Loss: | – | $0 | |
| (–) Exemption Loss: | – | $0 | |
| | | -------------------------- | |
| (=) Taxable Value: | = | $532,149 | |
Taxing Jurisdiction
| Owner: | MORALES, AMARILIS | | |
| % Ownership: | 100.0000000000% | | |
| Total Value: | $532,149 | | |
| Tax Area: | 100 - APPRAISER-OH Schl Dist, in OH |
| CF | Conservation Futures | 0.0316035091 | $532,149 | $532,149 | $16.82 | | |
| CEM1 | Cemetery #1 | 0.0040320932 | $532,149 | $532,149 | $2.15 | | |
| COH | City of Oak Harbor | 2.3001546061 | $532,149 | $532,149 | $1,224.02 | | |
| OAKBOND | City of Oak Harbor BOND | 0.1926904192 | $532,149 | $532,149 | $102.54 | | |
| HOBOND | Hospital BOND | 0.1910887512 | $532,149 | $532,149 | $101.69 | | |
| HOGEN | Hospital GEN | 0.3902502903 | $532,149 | $532,149 | $207.67 | | |
| CE | County Current Expense | 0.3708482477 | $532,149 | $532,149 | $197.35 | | |
| ISLANDEMS | Hospital GEN (EMS) | 0.5000000000 | $532,149 | $532,149 | $266.07 | | |
| LIB | Library Sno-Isle GEN | 0.3153421757 | $532,149 | $532,149 | $167.81 | | |
| NWHIDPRMT | P & R N Whidbey GEN | 0.2004466701 | $532,149 | $532,149 | $106.67 | | |
| SCH201MO | School 201 Enrichment | 1.8559231640 | $532,149 | $532,149 | $987.63 | | |
| ST | State School | 1.3035497053 | $532,149 | $532,149 | $693.68 | | |
| ST2 | State School Part 2 | 0.8169543533 | $532,149 | $532,149 | $434.74 | | |
| | Total Tax Rate: | 8.4728839852 | | | | | |
| | | | | Taxes w/Current Exemptions: | $4,508.84 | | |
| | | | | Taxes w/o Exemptions: | $4,508.84 | | |
Improvement / Building
| Improvement #1: | RESIDENTIAL | State Code: | Y | 2086.0 sqft | Value: | $332,149 |
| Bathrooms: | 2.5 | Bedrooms: | 3 | | Ceiling: | DRY WALL SPRAYED | Exterior Wall/Cover: | WOOD SIDING | | Floor Covering: | HARDWOOD/CARP 20-80 | Floor Structure: | WOOD W/SUBFLOOR | | Foundation: | CONCRETE | Heating: | FHA GAS | | Interior Finish: | DRYWALL PAINT | Plumbing Fixture Cnt: | 11 | | Roof Slope: | 4" IN 12" | Roof Structure/Cover: | BEAM ALUMINUM HEAVY |
|
| | Type | Description | Class CD | Sub Class CD | Year Built | Area |
| | BAS | BASE/MAIN FLOOR | 3 | 0 | 1978 | 1461.0 |
| | OP2 | OPEN PORCH W/STEPS | 3 | 0 | 1978 | 28.0 |
| | BGR | BASEMENT GARAGE | 3 | 0 | 1978 | 625.0 |
| | OWP | OPEN WOOD PORCH W/STEPS | 3 | 0 | 1978 | 400.0 |
| | DWN | DOWNSTAIRS LIVING AREA | 3 | 0 | 1978 | 625.0 |
Sketch
Property Image
Land
| 1 | 14 | SQ (08001-12000) | 0.2600 | 11325.60 | 0.00 | 0.00 | 1.00 | $200,000 | $0 |
Roll Value History
| 2026 | N/A | N/A | N/A | N/A | N/A |
| 2025 | $332,149 | $200,000 | $0 | $532,149 | $532,149 |
| 2024 | $336,341 | $200,000 | $0 | $536,341 | $536,341 |
| 2023 | $323,767 | $190,000 | $0 | $513,767 | $513,767 |
| 2022 | $296,970 | $190,000 | $0 | $486,970 | $486,970 |
| 2021 | $261,541 | $120,000 | $0 | $381,541 | $381,541 |
| 2020 | $255,301 | $100,000 | $0 | $355,301 | $355,301 |
| 2019 | $195,761 | $150,000 | $0 | $345,761 | $345,761 |
| 2018 | $196,364 | $150,000 | $0 | $346,364 | $346,364 |
| 2017 | $167,661 | $110,000 | $0 | $277,661 | $277,661 |
| 2016 | $169,990 | $90,000 | $0 | $259,990 | $259,990 |
| 2015 | $172,319 | $70,000 | $0 | $242,319 | $242,319 |
| 2014 | $174,648 | $55,000 | $0 | $229,648 | $229,648 |
| 2013 | $176,975 | $55,000 | $0 | $231,975 | $231,975 |
| 2012 | $179,305 | $60,000 | $0 | $239,305 | $239,305 |
| 2011 | $199,586 | $50,000 | $0 | $249,586 | $249,586 |
| 2010 | $212,965 | $50,000 | $0 | $262,965 | $262,965 |
| 2009 | $222,126 | $60,000 | $0 | $282,126 | $282,126 |
| 2008 | $224,955 | $73,000 | $0 | $297,955 | $297,955 |
| 2007 | $227,754 | $73,000 | $0 | $300,754 | $300,754 |
Deed and Sales History
| 1 | 08/12/2021 | WD | Warranty Deed | MENDOZA, JOVELYN OSORIO | MORALES, AMARILIS | | | $490,000.00 | 49646 | 4526945 |
| 2 | 01/02/2018 | WD | Warranty Deed | PETERSON, SCOTT R | MENDOZA, JOVELYN OSORIO | | | $349,900.00 | 32511 | 4436887 |
| 3 | 11/02/2015 | WD | Warranty Deed | SCALA JR, JOSEPH A | PETERSON, SCOTT R | | | $242,000.00 | 22076 | 4389096 |
| 4 | 10/30/2013 | DECREE | Divorce Decree/Legal Separation | SCALA JR, JOSEPH A | SCALA JR, JOSEPH A | | | $0.00 | 13326 | 4350863 |
| 5 | 10/18/2004 | WD | Warranty Deed | HOLLAND, PATRICIA A | SCALA JR, JOSEPH A | | | $220,000.00 | 45009 | 4116392 |
| 6 | 09/01/1994 | QCD | Quit Claim Deed | HOLLAND, PATRICIA A | HOLLAND, PATRICIA A | | | $0.00 | 43964 | 94020544 |
| 7 | 08/01/1994 | WD | Warranty Deed | MULLER, HENRY C | HOLLAND, PATRICIA A | | | $146,000.00 | 43286 | 94017643 |
| 8 | 11/01/1988 | WD | Warranty Deed | KUTSCHARA, DAVID P | MULLER, HENRY C | | | $92,500.00 | 83939 | 88014762 |
| 9 | 03/01/1981 | WD | Warranty Deed | MCGAUGHEY, JAMES W | KUTSCHARA, DAVID P | | | $83,000.00 | 10933 | 381195 |
| 10 | 11/01/1978 | OTHER | Other - Misc. Documents | Unknown | MCGAUGHEY, JAMES W | | | $71,250.00 | 85539 | 342935 |
Payout Agreement
| No payout information available.. |