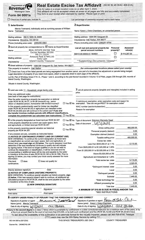
Property
Account |
| Property ID: | 227828 | Abbreviated Legal Description: | CARLTON HTS 2 LOT 29 |
| Geographic ID: | S6320-02-00029-0 | Agent Code: | |
| Type: | Real | | |
| Tax Area: | 100 - APPRAISER-OH Schl Dist, in OH | Land Use Code | 11 |
| Open Space: | N | DFL | N |
| Historic Property: | N | Remodel Property: | N |
| Multi-Family Redevelopment: | N | | |
| Township: | | Section: | |
| Range: | |
Location |
| Address: | 726 SW 13TH AVE OAK HARBOR, WA 98277 | Mapsco: | |
| Neighborhood: | Cycle 1 | Map ID: | 91 |
| Neighborhood CD: | 1 |
Owner |
| Name: | DAYRIT, ALVIN P | Owner ID: | 105246 |
| Mailing Address: | LORENA M DAYRIT 726 SW 13TH AVE OAK HARBOR, WA 98277-4509 | % Ownership: | 100.0000000000% |
| | | Exemptions: | |
Taxes and Assessment Details
Values
| (+) Improvement Homesite Value: | + | $0 | |
| (+) Improvement Non-Homesite Value: | + | $315,905 | |
| (+) Land Homesite Value: | + | $0 | |
| (+) Land Non-Homesite Value: | + | $200,000 | |
| (+) Curr Use (HS): | + | $0 | $0 |
| (+) Curr Use (NHS): | + | $0 | $0 |
| | | -------------------------- | |
| (=) Market Value: | = | $515,905 | |
| (–) Productivity Loss: | – | $0 | |
| | | -------------------------- | |
| (=) Subtotal: | = | $515,905 | |
| (+) Senior Appraised Value: | + | $0 | |
| (+) Non-Senior Appraised Value: | + | $515,905 | |
| | | -------------------------- | |
| (=) Total Appraised Value: | = | $515,905 | |
| (–) Senior Exemption Loss: | – | $0 | |
| (–) Exemption Loss: | – | $0 | |
| | | -------------------------- | |
| (=) Taxable Value: | = | $515,905 | |
Taxing Jurisdiction
| Owner: | DAYRIT, ALVIN P | | |
| % Ownership: | 100.0000000000% | | |
| Total Value: | $515,905 | | |
| Tax Area: | 100 - APPRAISER-OH Schl Dist, in OH |
| CF | Conservation Futures | 0.0316035091 | $515,905 | $515,905 | $16.30 | | |
| CEM1 | Cemetery #1 | 0.0040320932 | $515,905 | $515,905 | $2.08 | | |
| COH | City of Oak Harbor | 2.3001546061 | $515,905 | $515,905 | $1,186.66 | | |
| OAKBOND | City of Oak Harbor BOND | 0.1926904192 | $515,905 | $515,905 | $99.41 | | |
| HOBOND | Hospital BOND | 0.1910887512 | $515,905 | $515,905 | $98.58 | | |
| HOGEN | Hospital GEN | 0.3902502903 | $515,905 | $515,905 | $201.33 | | |
| CE | County Current Expense | 0.3708482477 | $515,905 | $515,905 | $191.32 | | |
| ISLANDEMS | Hospital GEN (EMS) | 0.5000000000 | $515,905 | $515,905 | $257.95 | | |
| LIB | Library Sno-Isle GEN | 0.3153421757 | $515,905 | $515,905 | $162.69 | | |
| NWHIDPRMT | P & R N Whidbey GEN | 0.2004466701 | $515,905 | $515,905 | $103.41 | | |
| SCH201MO | School 201 Enrichment | 1.8559231640 | $515,905 | $515,905 | $957.48 | | |
| ST | State School | 1.3035497053 | $515,905 | $515,905 | $672.51 | | |
| ST2 | State School Part 2 | 0.8169543533 | $515,905 | $515,905 | $421.47 | | |
| | Total Tax Rate: | 8.4728839852 | | | | | |
| | | | | Taxes w/Current Exemptions: | $4,371.19 | | |
| | | | | Taxes w/o Exemptions: | $4,371.19 | | |
Improvement / Building
| Improvement #1: | RESIDENTIAL | State Code: | Y | 2172.0 sqft | Value: | $315,905 |
| Bathrooms: | 3 | Bedrooms: | 4 | | Ceiling: | DRY WALL SPRAYED | Exterior Wall/Cover: | WOOD SIDING | | Floor Covering: | CARPET/VINYL 80-20 | Floor Structure: | WOOD W/SUBFLOOR | | Foundation: | CONCRETE | Heating: | FHA GAS | | Interior Finish: | DRYWALL PAINT | Plumbing Fixture Cnt: | 12 | | Roof Slope: | 4" IN 12" | Roof Structure/Cover: | BEAM ALUMINUM HEAVY |
|
| | Type | Description | Class CD | Sub Class CD | Year Built | Area |
| | BAS | BASE/MAIN FLOOR | 3 | 0 | 1978 | 1248.0 |
| | OP2 | OPEN PORCH W/STEPS | 3 | 0 | 1978 | 26.0 |
| | AGR | ATTACHED GARAGE | 3 | 0 | 1978 | 200.0 |
| | BGR | BASEMENT GARAGE | 3 | 0 | 1978 | 280.0 |
| | OWP | OPEN WOOD PORCH W/STEPS | 3 | 0 | 1978 | 200.0 |
| | DWN | DOWNSTAIRS LIVING AREA | 3 | 0 | 1978 | 924.0 |
Sketch
Property Image
Land
| 1 | 14 | SQ (08001-12000) | 0.2500 | 10890.00 | 0.00 | 0.00 | 1.00 | $200,000 | $0 |
Roll Value History
| 2026 | N/A | N/A | N/A | N/A | N/A |
| 2025 | $315,905 | $200,000 | $0 | $515,905 | $515,905 |
| 2024 | $319,996 | $200,000 | $0 | $519,996 | $519,996 |
| 2023 | $307,726 | $190,000 | $0 | $497,726 | $497,726 |
| 2022 | $282,351 | $190,000 | $0 | $472,351 | $472,351 |
| 2021 | $248,745 | $120,000 | $0 | $368,745 | $368,745 |
| 2020 | $242,798 | $100,000 | $0 | $342,798 | $342,798 |
| 2019 | $186,132 | $150,000 | $0 | $336,132 | $336,132 |
| 2018 | $186,720 | $130,000 | $0 | $316,720 | $316,720 |
| 2017 | $170,183 | $110,000 | $0 | $280,183 | $280,183 |
| 2016 | $172,483 | $90,000 | $0 | $262,483 | $262,483 |
| 2015 | $174,783 | $70,000 | $0 | $244,783 | $244,783 |
| 2014 | $177,081 | $55,000 | $0 | $232,081 | $232,081 |
| 2013 | $179,383 | $55,000 | $0 | $234,383 | $234,383 |
| 2012 | $181,683 | $60,000 | $0 | $241,683 | $241,683 |
| 2011 | $193,752 | $50,000 | $0 | $243,752 | $243,752 |
| 2010 | $207,280 | $50,000 | $0 | $257,280 | $257,280 |
| 2009 | $216,156 | $60,000 | $0 | $276,156 | $276,156 |
| 2008 | $218,794 | $73,000 | $0 | $291,794 | $291,794 |
| 2007 | $221,431 | $73,000 | $0 | $294,431 | $294,431 |
Deed and Sales History
| 1 | 07/09/2002 | WD | Warranty Deed | THE, L&T O | DAYRIT, ALVIN P | | | $179,900.00 | 22828 | 4026259 |
| 2 | 11/01/1997 | QCD | Quit Claim Deed | OSHAUGHNESSY, LARRY R | THE, L&T O | | | $0.00 | 80665 | 98003632 |
| 3 | 01/01/1900 | OTHER | Other - Misc. Documents | Unknown | OSHAUGHNESSY, LARRY R | | | $0.00 | 0 | 0 |
Payout Agreement
| No payout information available.. |