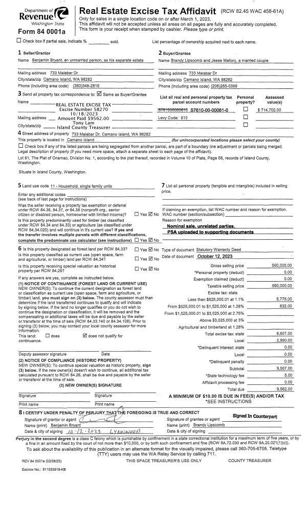
Property
Account |
| Property ID: | 227971 | Abbreviated Legal Description: | CARLTON HTS 2 LOT 44 |
| Geographic ID: | S6320-02-00044-0 | Agent Code: | |
| Type: | Real | | |
| Tax Area: | 100 - APPRAISER-OH Schl Dist, in OH | Land Use Code | 11 |
| Open Space: | N | DFL | N |
| Historic Property: | N | Remodel Property: | N |
| Multi-Family Redevelopment: | N | | |
| Township: | | Section: | |
| Range: | |
Location |
| Address: | 727 SW 13TH AVE OAK HARBOR, WA 98277 | Mapsco: | |
| Neighborhood: | Cycle 1 | Map ID: | 91 |
| Neighborhood CD: | 1 |
Owner |
| Name: | HUGHES, CURTIS | Owner ID: | 271830 |
| Mailing Address: | MARINDA HUGHES 727 SW 13TH AVE OAK HARBOR, WA 98277 | % Ownership: | 100.0000000000% |
| | | Exemptions: | |
Taxes and Assessment Details
Values
| (+) Improvement Homesite Value: | + | $0 | |
| (+) Improvement Non-Homesite Value: | + | $280,121 | |
| (+) Land Homesite Value: | + | $0 | |
| (+) Land Non-Homesite Value: | + | $200,000 | |
| (+) Curr Use (HS): | + | $0 | $0 |
| (+) Curr Use (NHS): | + | $0 | $0 |
| | | -------------------------- | |
| (=) Market Value: | = | $480,121 | |
| (–) Productivity Loss: | – | $0 | |
| | | -------------------------- | |
| (=) Subtotal: | = | $480,121 | |
| (+) Senior Appraised Value: | + | $0 | |
| (+) Non-Senior Appraised Value: | + | $480,121 | |
| | | -------------------------- | |
| (=) Total Appraised Value: | = | $480,121 | |
| (–) Senior Exemption Loss: | – | $0 | |
| (–) Exemption Loss: | – | $0 | |
| | | -------------------------- | |
| (=) Taxable Value: | = | $480,121 | |
Taxing Jurisdiction
| Owner: | HUGHES, CURTIS | | |
| % Ownership: | 100.0000000000% | | |
| Total Value: | $480,121 | | |
| Tax Area: | 100 - APPRAISER-OH Schl Dist, in OH |
| CF | Conservation Futures | 0.0316035091 | $480,121 | $480,121 | $15.17 | | |
| CEM1 | Cemetery #1 | 0.0040320932 | $480,121 | $480,121 | $1.94 | | |
| COH | City of Oak Harbor | 2.3001546061 | $480,121 | $480,121 | $1,104.35 | | |
| OAKBOND | City of Oak Harbor BOND | 0.1926904192 | $480,121 | $480,121 | $92.51 | | |
| HOBOND | Hospital BOND | 0.1910887512 | $480,121 | $480,121 | $91.75 | | |
| HOGEN | Hospital GEN | 0.3902502903 | $480,121 | $480,121 | $187.37 | | |
| CE | County Current Expense | 0.3708482477 | $480,121 | $480,121 | $178.05 | | |
| ISLANDEMS | Hospital GEN (EMS) | 0.5000000000 | $480,121 | $480,121 | $240.06 | | |
| LIB | Library Sno-Isle GEN | 0.3153421757 | $480,121 | $480,121 | $151.40 | | |
| NWHIDPRMT | P & R N Whidbey GEN | 0.2004466701 | $480,121 | $480,121 | $96.24 | | |
| SCH201MO | School 201 Enrichment | 1.8559231640 | $480,121 | $480,121 | $891.07 | | |
| ST | State School | 1.3035497053 | $480,121 | $480,121 | $625.86 | | |
| ST2 | State School Part 2 | 0.8169543533 | $480,121 | $480,121 | $392.24 | | |
| | Total Tax Rate: | 8.4728839852 | | | | | |
| | | | | Taxes w/Current Exemptions: | $4,068.01 | | |
| | | | | Taxes w/o Exemptions: | $4,068.01 | | |
Improvement / Building
| Improvement #1: | RESIDENTIAL | State Code: | Y | 2188.0 sqft | Value: | $280,121 |
| Bathrooms: | 3 | Bedrooms: | 4 | | Ceiling: | DRY WALL SPRAYED | Exterior Wall/Cover: | WOOD SIDING | | Floor Covering: | CARPET/VINYL 80-20 | Floor Structure: | WOOD W/SUBFLOOR | | Foundation: | CONCRETE | Heating: | FHA GAS | | Interior Finish: | DRYWALL PAINT | Plumbing Fixture Cnt: | 12 | | Roof Slope: | 4" IN 12" | Roof Structure/Cover: | CJ ASPHALT |
|
| | Type | Description | Class CD | Sub Class CD | Year Built | Area |
| | BAS | BASE/MAIN FLOOR | 3 | 0 | 1977 | 1388.0 |
| | OP2 | OPEN PORCH W/STEPS | 3 | 0 | 1977 | 70.0 |
| | AGR | ATTACHED GARAGE | 3 | 0 | 1977 | 225.0 |
| | BGR | BASEMENT GARAGE | 3 | 0 | 1977 | 450.0 |
| | DWN | DOWNSTAIRS LIVING AREA | 3 | 0 | 1977 | 800.0 |
| | OWP | OPEN WOOD PORCH W/STEPS | 3 | 0 | 1977 | 64.0 |
Sketch
Property Image
Land
| 1 | 14 | SQ (08001-12000) | 0.2200 | 9583.20 | 0.00 | 0.00 | 1.00 | $200,000 | $0 |
Roll Value History
| 2026 | N/A | N/A | N/A | N/A | N/A |
| 2025 | $280,121 | $200,000 | $0 | $480,121 | $480,121 |
| 2024 | $283,945 | $200,000 | $0 | $483,945 | $483,945 |
| 2023 | $287,768 | $190,000 | $0 | $477,768 | $477,768 |
| 2022 | $264,048 | $190,000 | $0 | $454,048 | $454,048 |
| 2021 | $232,616 | $120,000 | $0 | $352,616 | $352,616 |
| 2020 | $226,976 | $100,000 | $0 | $326,976 | $326,976 |
| 2019 | $173,675 | $150,000 | $0 | $323,675 | $323,675 |
| 2018 | $174,224 | $130,000 | $0 | $304,224 | $304,224 |
| 2017 | $166,406 | $110,000 | $0 | $276,406 | $276,406 |
| 2016 | $168,567 | $90,000 | $0 | $258,567 | $258,567 |
| 2015 | $158,455 | $70,000 | $0 | $228,455 | $228,455 |
| 2014 | $150,644 | $55,000 | $0 | $205,644 | $205,644 |
| 2013 | $152,795 | $55,000 | $0 | $207,795 | $207,795 |
| 2012 | $154,946 | $60,000 | $0 | $214,946 | $214,946 |
| 2011 | $148,164 | $50,000 | $0 | $198,164 | $198,164 |
| 2010 | $160,402 | $50,000 | $0 | $210,402 | $210,402 |
| 2009 | $167,163 | $60,000 | $0 | $227,163 | $227,163 |
| 2008 | $169,151 | $73,000 | $0 | $242,151 | $242,151 |
| 2007 | $171,140 | $73,000 | $0 | $244,140 | $244,140 |
Deed and Sales History
| 1 | 08/18/2015 | WD | Warranty Deed | KAUFMANN, MARK A | HUGHES, CURTIS | | | $235,000.00 | 20998 | 4384411 |
| 2 | 09/22/1998 | WD | Warranty Deed | PENROD, KELLER G | KAUFMANN, MARK A | | | $147,000.00 | 83898 | 98020975 |
| 3 | 10/01/1990 | WD | Warranty Deed | RICHARDS, JESSE M | PENROD, KELLER G | | | $122,000.00 | 5774 | 90019419 |
| 4 | 09/01/1978 | OTHER | Other - Misc. Documents | Unknown | RICHARDS, JESSE M | | | $75,350.00 | 84595 | 339932 |
Payout Agreement
| No payout information available.. |