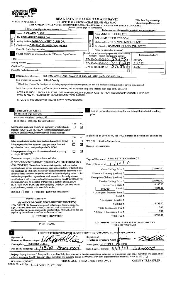
Property
Account |
| Property ID: | 228747 | Abbreviated Legal Description: | CASCADE VW LOT 72 |
| Geographic ID: | S6330-00-00072-0 | Agent Code: | |
| Type: | Real | | |
| Tax Area: | 720 - APPRAISER-S Whid Schl Dist, Special District, improved & less than 1 acre | Land Use Code | 11 |
| Open Space: | N | DFL | N |
| Historic Property: | N | Remodel Property: | N |
| Multi-Family Redevelopment: | N | | |
| Township: | | Section: | |
| Range: | |
Location |
| Address: | 6876 HELENA ST CLINTON, WA 98236 | Mapsco: | |
| Neighborhood: | Cycle 4 | Map ID: | 1004 |
| Neighborhood CD: | 4 |
Owner |
| Name: | RITZNER, SUSAN LEE | Owner ID: | 281913 |
| Mailing Address: | 6876 HELENA ST ` CLINTON, WA 98236-9691 | % Ownership: | 100.0000000000% |
| | | Exemptions: | |
Taxes and Assessment Details
Values
| (+) Improvement Homesite Value: | + | $0 | |
| (+) Improvement Non-Homesite Value: | + | $219,369 | |
| (+) Land Homesite Value: | + | $0 | |
| (+) Land Non-Homesite Value: | + | $230,000 | |
| (+) Curr Use (HS): | + | $0 | $0 |
| (+) Curr Use (NHS): | + | $0 | $0 |
| | | -------------------------- | |
| (=) Market Value: | = | $449,369 | |
| (–) Productivity Loss: | – | $0 | |
| | | -------------------------- | |
| (=) Subtotal: | = | $449,369 | |
| (+) Senior Appraised Value: | + | $0 | |
| (+) Non-Senior Appraised Value: | + | $449,369 | |
| | | -------------------------- | |
| (=) Total Appraised Value: | = | $449,369 | |
| (–) Senior Exemption Loss: | – | $0 | |
| (–) Exemption Loss: | – | $0 | |
| | | -------------------------- | |
| (=) Taxable Value: | = | $449,369 | |
Taxing Jurisdiction
| Owner: | RITZNER, SUSAN LEE | | |
| % Ownership: | 100.0000000000% | | |
| Total Value: | $449,369 | | |
| Tax Area: | 720 - APPRAISER-S Whid Schl Dist, Special District, improved & less than 1 acre |
| CF | Conservation Futures | 0.0316035091 | $449,369 | $449,369 | $14.20 | | |
| FIRE3 | Fire & Rescue Dist #3 S Whidbey GEN | 1.2004855531 | $449,369 | $449,369 | $539.46 | | |
| HOBOND | Hospital BOND | 0.1910887512 | $449,369 | $449,369 | $85.87 | | |
| HOGEN | Hospital GEN | 0.3902502903 | $449,369 | $449,369 | $175.37 | | |
| CE | County Current Expense | 0.3708482477 | $449,369 | $449,369 | $166.65 | | |
| CR | County Roads | 0.4584763726 | $449,369 | $449,369 | $206.03 | | |
| ISLANDEMS | Hospital GEN (EMS) | 0.5000000000 | $449,369 | $449,369 | $224.68 | | |
| LIB | Library Sno-Isle GEN | 0.3153421757 | $449,369 | $449,369 | $141.70 | | |
| PORTWHID | Port of S Whidbey GEN | 0.1094540357 | $449,369 | $449,369 | $49.19 | | |
| SCH206BOND | School 206 BOND | 0.3161759235 | $449,369 | $449,369 | $142.08 | | |
| SCH206MO | School 206 Enrichment | 0.4547169547 | $449,369 | $449,369 | $204.34 | | |
| ST | State School | 1.3035497053 | $449,369 | $449,369 | $585.77 | | |
| ST2 | State School Part 2 | 0.8169543533 | $449,369 | $449,369 | $367.11 | | |
| SWHIDPRBD | P & R S Whidbey BOND | 0.0152817568 | $449,369 | $449,369 | $6.87 | | |
| SWHIDPRBD2 | P & R S Whidbey BOND2 | 0.0138911264 | $449,369 | $449,369 | $6.24 | | |
| SWHIDPRMT | P & R S Whidbey GEN | 0.2053334452 | $449,369 | $449,369 | $92.27 | | |
| | Total Tax Rate: | 6.6934522006 | | | | | |
| | | | | Taxes w/Current Exemptions: | $3,007.83 | | |
| | | | | Taxes w/o Exemptions: | $3,007.83 | | |
Improvement / Building
| Improvement #1: | RESIDENTIAL | State Code: | Y | 936.0 sqft | Value: | $219,369 |
| Bathrooms: | 2 | Bedrooms: | 2 | | Ceiling: | DRYWALL PAINTED | Cooling: | HEAT PUMP/CONV/V | | Exterior Wall/Cover: | PLY/HARDBOARD T-111 | Floor Covering: | CARPET/VINYL 60-40 | | Floor Structure: | WOOD W/SUBFLOOR | Foundation: | CONCRETE | | Interior Finish: | DRYWALL PAINT | Plumbing Fixture Cnt: | 11 | | Roof Slope: | 4" IN 12" | Roof Structure/Cover: | CJ ASPHALT |
|
| | Type | Description | Class CD | Sub Class CD | Year Built | Area |
| | BAS | BASE/MAIN FLOOR | 3 | 0 | 1979 | 648.0 |
| | UPS | UPPER STORY | 3 | 0 | 1979 | 288.0 |
| | OWR | OPEN WOOD PORCH W/STEPS/ROOF | 3 | 0 | 1979 | 36.0 |
| | OWC | OPEN WOOD PORCH W/STEPS/ROOF/C | 3 | 0 | 1979 | 48.0 |
| | DGR | DETACHED GARAGE | 3 | 0 | 1979 | 288.0 |
| | OWP | OPEN WOOD PORCH W/STEPS | 3 | 0 | 1979 | 144.0 |
Sketch
Property Image
Land
| 1 | 13 | SQ (06001-08000) | 0.1600 | 6969.60 | 0.00 | 0.00 | 1.00 | $230,000 | $0 |
Roll Value History
| 2026 | N/A | N/A | N/A | N/A | N/A |
| 2025 | $219,369 | $230,000 | $0 | $449,369 | $449,369 |
| 2024 | $221,943 | $230,000 | $0 | $451,943 | $451,943 |
| 2023 | $224,515 | $230,000 | $0 | $454,515 | $454,515 |
| 2022 | $205,637 | $210,000 | $0 | $415,637 | $415,637 |
| 2021 | $180,838 | $150,000 | $0 | $330,838 | $330,838 |
| 2020 | $160,907 | $135,000 | $0 | $295,907 | $295,907 |
| 2019 | $112,262 | $150,000 | $0 | $262,262 | $262,262 |
| 2018 | $112,576 | $130,000 | $0 | $242,576 | $242,576 |
| 2017 | $106,266 | $110,000 | $0 | $216,266 | $216,266 |
| 2016 | $107,501 | $85,000 | $0 | $192,501 | $192,501 |
| 2015 | $108,736 | $85,000 | $0 | $193,736 | $193,736 |
| 2014 | $107,325 | $85,000 | $0 | $192,325 | $192,325 |
| 2013 | $108,506 | $85,000 | $0 | $193,506 | $193,506 |
| 2012 | $109,685 | $76,500 | $0 | $186,185 | $186,185 |
| 2011 | $110,864 | $85,000 | $0 | $195,864 | $195,864 |
| 2010 | $115,235 | $85,000 | $0 | $200,235 | $200,235 |
| 2009 | $119,997 | $100,000 | $0 | $219,997 | $219,997 |
| 2008 | $121,496 | $100,000 | $0 | $221,496 | $221,496 |
| 2007 | $121,801 | $100,000 | $0 | $221,801 | $221,801 |
Deed and Sales History
| 1 | 08/19/2019 | EZ | Easement | RITZNER, SUSAN LEE | PUGET SOUND ENERGY | | | $3,750.00 | 40297 | 4471516 |
| 2 | 09/05/2017 | WD | Warranty Deed | DREW JTWROS, STEPHEN M | RITZNER, SUSAN LEE | | | $282,500.00 | 31058 | 4430058 |
| 3 | 10/18/2012 | QCD | Quit Claim Deed | FRANKLIN, KAREN L | DREW JTWROS, STEPHEN M | | | $0.00 | 10231 | 4332081 |
| 4 | 04/06/2006 | WD | Warranty Deed | LEE, DANIEL L | FRANKLIN, KAREN L | | | $240,000.00 | 61803 | 4163635 |
| 5 | 04/29/2003 | ESTSEPPROP | Establish Separate Property | LEE, DANIEL L | LEE, DANIEL L | | | $0.00 | 31888 | 4057755 |
| 6 | 03/29/2001 | PRD | Personal Representatives Deed | OSHERSKY, ALLEN J | LEE, DANIEL L | | | $91,000.00 | 11249 | 20029760 |
| 7 | 02/01/1983 | WD | Warranty Deed | ISLAND, SAVINGS & | OSHERSKY, ALLEN J | | | $35,000.00 | 30435 | 406198 |
| 8 | 10/01/1982 | TRUSTEED | Trustee's Deed | GRIFFIN, JAMILIA A | ISLAND, SAVINGS & | | | $37,573.00 | 22511 | 401851 |
| 9 | 10/01/1979 | TRUSTEED | Trustee's Deed | PASS-KEY, HOMES, I | GRIFFIN, JAMILIA A | | | $36,285.00 | 95018 | 360247 |
| 10 | 03/01/1979 | OTHER | Other - Misc. Documents | AL, | PASS-KEY, HOMES, I | | | $6,000.00 | 910820 | 3488590 |
| 11 | 12/01/1978 | OTHER | Other - Misc. Documents | Unknown | AL, | | | $2,500.00 | 900740 | 3456200 |
Payout Agreement
| No payout information available.. |