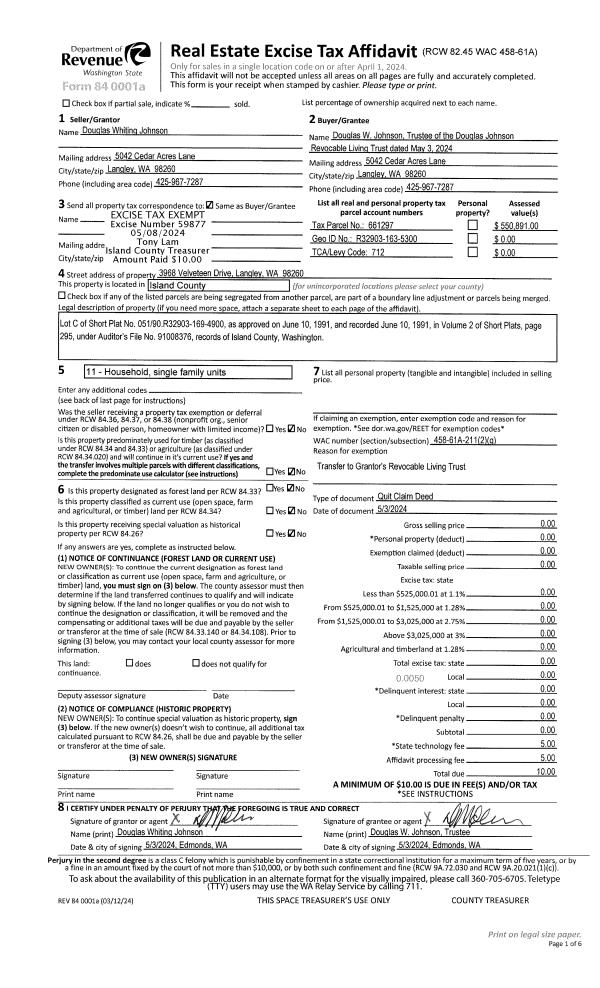
Property
Account |
| Property ID: | 229023 | Abbreviated Legal Description: | CAST HILLS 1 LOT 11 |
| Geographic ID: | S6340-00-00011-0 | Agent Code: | |
| Type: | Real | | |
| Tax Area: | 100 - APPRAISER-OH Schl Dist, in OH | Land Use Code | 11 |
| Open Space: | N | DFL | N |
| Historic Property: | N | Remodel Property: | N |
| Multi-Family Redevelopment: | N | | |
| Township: | | Section: | |
| Range: | |
Location |
| Address: | 1096 SW CASTILIAN DR OAK HARBOR, WA 98277 | Mapsco: | |
| Neighborhood: | Cycle 1 | Map ID: | 92 |
| Neighborhood CD: | 1 |
Owner |
| Name: | MARRIOTT, JOHN LARRY | Owner ID: | 252341 |
| Mailing Address: | 1096 SW CASTILLIAN DR OAK HARBOR, WA 98277 | % Ownership: | 100.0000000000% |
| | | Exemptions: | |
Taxes and Assessment Details
Values
| (+) Improvement Homesite Value: | + | $0 | |
| (+) Improvement Non-Homesite Value: | + | $276,350 | |
| (+) Land Homesite Value: | + | $0 | |
| (+) Land Non-Homesite Value: | + | $200,000 | |
| (+) Curr Use (HS): | + | $0 | $0 |
| (+) Curr Use (NHS): | + | $0 | $0 |
| | | -------------------------- | |
| (=) Market Value: | = | $476,350 | |
| (–) Productivity Loss: | – | $0 | |
| | | -------------------------- | |
| (=) Subtotal: | = | $476,350 | |
| (+) Senior Appraised Value: | + | $0 | |
| (+) Non-Senior Appraised Value: | + | $476,350 | |
| | | -------------------------- | |
| (=) Total Appraised Value: | = | $476,350 | |
| (–) Senior Exemption Loss: | – | $0 | |
| (–) Exemption Loss: | – | $0 | |
| | | -------------------------- | |
| (=) Taxable Value: | = | $476,350 | |
Taxing Jurisdiction
| Owner: | MARRIOTT, JOHN LARRY | | |
| % Ownership: | 100.0000000000% | | |
| Total Value: | $476,350 | | |
| Tax Area: | 100 - APPRAISER-OH Schl Dist, in OH |
| CF | Conservation Futures | 0.0316035091 | $476,350 | $476,350 | $15.05 | | |
| CEM1 | Cemetery #1 | 0.0040320932 | $476,350 | $476,350 | $1.92 | | |
| COH | City of Oak Harbor | 2.3001546061 | $476,350 | $476,350 | $1,095.68 | | |
| OAKBOND | City of Oak Harbor BOND | 0.1926904192 | $476,350 | $476,350 | $91.79 | | |
| HOBOND | Hospital BOND | 0.1910887512 | $476,350 | $476,350 | $91.03 | | |
| HOGEN | Hospital GEN | 0.3902502903 | $476,350 | $476,350 | $185.90 | | |
| CE | County Current Expense | 0.3708482477 | $476,350 | $476,350 | $176.65 | | |
| ISLANDEMS | Hospital GEN (EMS) | 0.5000000000 | $476,350 | $476,350 | $238.18 | | |
| LIB | Library Sno-Isle GEN | 0.3153421757 | $476,350 | $476,350 | $150.21 | | |
| NWHIDPRMT | P & R N Whidbey GEN | 0.2004466701 | $476,350 | $476,350 | $95.48 | | |
| SCH201MO | School 201 Enrichment | 1.8559231640 | $476,350 | $476,350 | $884.07 | | |
| ST | State School | 1.3035497053 | $476,350 | $476,350 | $620.95 | | |
| ST2 | State School Part 2 | 0.8169543533 | $476,350 | $476,350 | $389.16 | | |
| | Total Tax Rate: | 8.4728839852 | | | | | |
| | | | | Taxes w/Current Exemptions: | $4,036.07 | | |
| | | | | Taxes w/o Exemptions: | $4,036.07 | | |
Improvement / Building
| Improvement #1: | RESIDENTIAL | State Code: | Y | 2292.0 sqft | Value: | $276,350 |
| Bathrooms: | 3 | Bedrooms: | 3 | | Ceiling: | DRY WALL SPRAYED | Exterior Wall/Cover: | PLY/HARDBOARD T-111 | | Floor Covering: | CARPET/VINYL 80-20 | Floor Structure: | WOOD W/SUBFLOOR | | Foundation: | CONCRETE | Heating: | FHA GAS | | Interior Finish: | DRYWALL PAINT | Plumbing Fixture Cnt: | 12 | | Roof Slope: | 4" IN 12" | Roof Structure/Cover: | CJ ASPHALT |
|
| | Type | Description | Class CD | Sub Class CD | Year Built | Area |
| | BAS | BASE/MAIN FLOOR | 3 | 0 | 1974 | 1524.0 |
| | OP1 | OPEN PORCH SLAB | 3 | 0 | 1974 | 184.0 |
| | OP1 | OPEN PORCH SLAB | 3 | 0 | 1974 | 196.0 |
| | OP2 | OPEN PORCH W/STEPS | 3 | 0 | 1974 | 114.0 |
| | AGR | ATTACHED GARAGE | 3 | 0 | 1974 | 240.0 |
| | BIG | BUILT IN GARAGE | 3 | 0 | 1974 | 336.0 |
| | DWN | DOWNSTAIRS LIVING AREA | 3 | 0 | 1974 | 768.0 |
Sketch
Property Image
Land
| 1 | 14 | SQ (08001-12000) | 0.0000 | 0.00 | 0.00 | 0.00 | 1.00 | $200,000 | $0 |
Roll Value History
| 2026 | N/A | N/A | N/A | N/A | N/A |
| 2025 | $276,350 | $200,000 | $0 | $476,350 | $476,350 |
| 2024 | $280,230 | $180,000 | $0 | $460,230 | $460,230 |
| 2023 | $284,107 | $190,000 | $0 | $474,107 | $474,107 |
| 2022 | $260,761 | $180,000 | $0 | $440,761 | $440,761 |
| 2021 | $243,743 | $130,000 | $0 | $373,743 | $373,743 |
| 2020 | $237,202 | $100,000 | $0 | $337,202 | $337,202 |
| 2019 | $170,115 | $150,000 | $0 | $320,115 | $320,115 |
| 2018 | $170,667 | $130,000 | $0 | $300,667 | $300,667 |
| 2017 | $163,041 | $110,000 | $0 | $273,041 | $273,041 |
| 2016 | $165,305 | $90,000 | $0 | $255,305 | $255,305 |
| 2015 | $167,569 | $70,000 | $0 | $237,569 | $237,569 |
| 2014 | $169,835 | $55,000 | $0 | $224,835 | $224,835 |
| 2013 | $172,098 | $55,000 | $0 | $227,098 | $227,098 |
| 2012 | $174,361 | $60,000 | $0 | $234,361 | $234,361 |
| 2011 | $181,770 | $50,000 | $0 | $231,770 | $231,770 |
| 2010 | $191,566 | $50,000 | $0 | $241,566 | $241,566 |
| 2009 | $199,730 | $60,000 | $0 | $259,730 | $259,730 |
| 2008 | $202,134 | $72,000 | $0 | $274,134 | $274,134 |
| 2007 | $204,537 | $72,000 | $0 | $276,537 | $276,537 |
Deed and Sales History
| 1 | 08/30/2010 | ESTSEPPROP | Establish Separate Property | JOHN LARRY MARRIOTT | MARRIOTT, JOHN LARRY | | | | 2162 | 4280046 |
| 2 | 08/30/2010 | QCD | Quit Claim Deed | HAWLEY, JOHN G | JOHN LARRY MARRIOTT | | | | 2161 | 4279961 |
| 3 | 10/02/2002 | QCD | Quit Claim Deed | HAWLEY, JOHN G | HAWLEY, JOHN G | | | $0.00 | 24568 | 4037493 |
| 4 | 07/10/2002 | WD | Warranty Deed | BURIN, JAMES M | HAWLEY, JOHN G | | | $161,000.00 | 22869 | 4026456 |
| 5 | 07/08/2002 | ESTSEPPROP | Establish Separate Property | HAWLEY, JOHN G | HAWLEY, JOHN G | | | $0.00 | 22870 | 4026457 |
| 6 | 01/14/1975 | WD | Warranty Deed | Unknown | BURIN, JAMES M | | | $0.00 | 53895 | 0 |
Payout Agreement
| No payout information available.. |