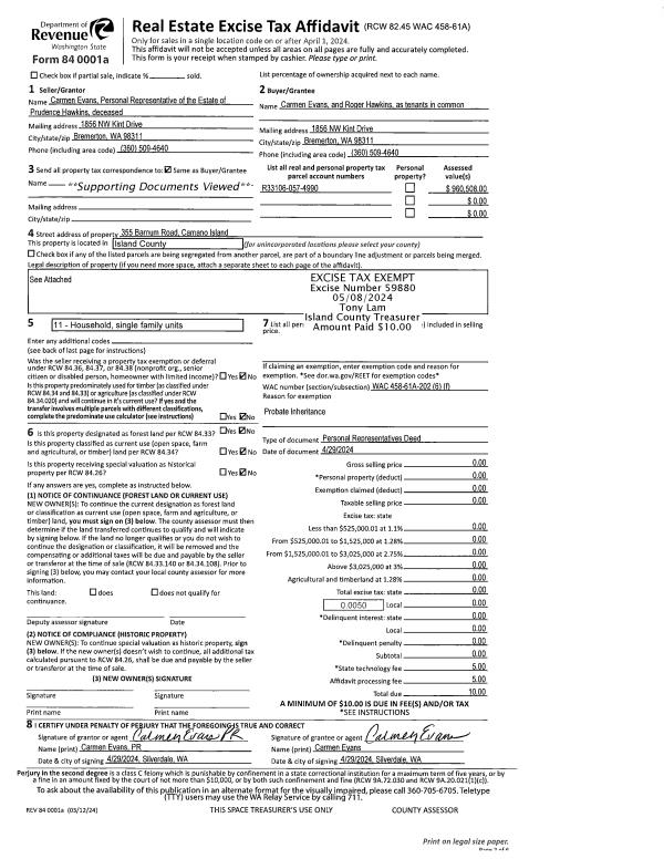
Property
Account |
| Property ID: | 229050 | Abbreviated Legal Description: | CAST HILLS 1 LOT 14 |
| Geographic ID: | S6340-00-00014-0 | Agent Code: | |
| Type: | Real | | |
| Tax Area: | 100 - APPRAISER-OH Schl Dist, in OH | Land Use Code | 11 |
| Open Space: | N | DFL | N |
| Historic Property: | N | Remodel Property: | N |
| Multi-Family Redevelopment: | N | | |
| Township: | | Section: | |
| Range: | |
Location |
| Address: | 1053 SW CASTILIAN DR OAK HARBOR, WA 98277 | Mapsco: | |
| Neighborhood: | Cycle 1 | Map ID: | 92 |
| Neighborhood CD: | 1 |
Owner |
| Name: | CLOUGHESSY, DANA M | Owner ID: | 75098 |
| Mailing Address: | DIANE E CLOUGHESSY 1053 SW CASTILIAN DR OAK HARBOR, WA 98277-4532 | % Ownership: | 100.0000000000% |
| | | Exemptions: | |
Taxes and Assessment Details
Values
| (+) Improvement Homesite Value: | + | $0 | |
| (+) Improvement Non-Homesite Value: | + | $298,389 | |
| (+) Land Homesite Value: | + | $0 | |
| (+) Land Non-Homesite Value: | + | $200,000 | |
| (+) Curr Use (HS): | + | $0 | $0 |
| (+) Curr Use (NHS): | + | $0 | $0 |
| | | -------------------------- | |
| (=) Market Value: | = | $498,389 | |
| (–) Productivity Loss: | – | $0 | |
| | | -------------------------- | |
| (=) Subtotal: | = | $498,389 | |
| (+) Senior Appraised Value: | + | $0 | |
| (+) Non-Senior Appraised Value: | + | $498,389 | |
| | | -------------------------- | |
| (=) Total Appraised Value: | = | $498,389 | |
| (–) Senior Exemption Loss: | – | $0 | |
| (–) Exemption Loss: | – | $0 | |
| | | -------------------------- | |
| (=) Taxable Value: | = | $498,389 | |
Taxing Jurisdiction
| Owner: | CLOUGHESSY, DANA M | | |
| % Ownership: | 100.0000000000% | | |
| Total Value: | $498,389 | | |
| Tax Area: | 100 - APPRAISER-OH Schl Dist, in OH |
| CF | Conservation Futures | 0.0316035091 | $498,389 | $498,389 | $15.75 | | |
| CEM1 | Cemetery #1 | 0.0040320932 | $498,389 | $498,389 | $2.01 | | |
| COH | City of Oak Harbor | 2.3001546061 | $498,389 | $498,389 | $1,146.37 | | |
| OAKBOND | City of Oak Harbor BOND | 0.1926904192 | $498,389 | $498,389 | $96.03 | | |
| HOBOND | Hospital BOND | 0.1910887512 | $498,389 | $498,389 | $95.24 | | |
| HOGEN | Hospital GEN | 0.3902502903 | $498,389 | $498,389 | $194.50 | | |
| CE | County Current Expense | 0.3708482477 | $498,389 | $498,389 | $184.83 | | |
| ISLANDEMS | Hospital GEN (EMS) | 0.5000000000 | $498,389 | $498,389 | $249.19 | | |
| LIB | Library Sno-Isle GEN | 0.3153421757 | $498,389 | $498,389 | $157.16 | | |
| NWHIDPRMT | P & R N Whidbey GEN | 0.2004466701 | $498,389 | $498,389 | $99.90 | | |
| SCH201MO | School 201 Enrichment | 1.8559231640 | $498,389 | $498,389 | $924.97 | | |
| ST | State School | 1.3035497053 | $498,389 | $498,389 | $649.67 | | |
| ST2 | State School Part 2 | 0.8169543533 | $498,389 | $498,389 | $407.16 | | |
| | Total Tax Rate: | 8.4728839852 | | | | | |
| | | | | Taxes w/Current Exemptions: | $4,222.78 | | |
| | | | | Taxes w/o Exemptions: | $4,222.78 | | |
Improvement / Building
| Improvement #1: | RESIDENTIAL | State Code: | Y | 2048.0 sqft | Value: | $298,389 |
| Bathrooms: | 2.5 | Bedrooms: | 3 | | Ceiling: | DRYWALL PAINTED | Exterior Wall/Cover: | PLY/HARDBOARD T-111 | | Floor Covering: | CARPET/VINYL 20-80 | Floor Structure: | WOOD W/SUBFLOOR | | Foundation: | CONCRETE | Heating: | FHA GAS | | Interior Finish: | DRYWALL PAINT | Plumbing Fixture Cnt: | 11 | | Roof Slope: | 4" IN 12" | Roof Structure/Cover: | CJ ASPHALT |
|
| | Type | Description | Class CD | Sub Class CD | Year Built | Area |
| | BAS | BASE/MAIN FLOOR | 3 | 0 | 1975 | 1264.0 |
| | OP1 | OPEN PORCH SLAB | 3 | 0 | 1975 | 240.0 |
| | AGR | ATTACHED GARAGE | 3 | 0 | 1975 | 480.0 |
| | UPS | UPPER STORY | 3 | 0 | 1975 | 784.0 |
| | OWP | OPEN WOOD PORCH W/STEPS | 3 | 0 | 1975 | 526.5 |
| | OWR | OPEN WOOD PORCH W/STEPS/ROOF | 3 | 0 | 1975 | 32.0 |
Sketch
Property Image
Land
| 1 | 14 | SQ (08001-12000) | 0.0000 | 0.00 | 0.00 | 0.00 | 1.00 | $200,000 | $0 |
Roll Value History
| 2026 | N/A | N/A | N/A | N/A | N/A |
| 2025 | $298,389 | $200,000 | $0 | $498,389 | $498,389 |
| 2024 | $302,252 | $180,000 | $0 | $482,252 | $482,252 |
| 2023 | $314,378 | $190,000 | $0 | $504,378 | $504,378 |
| 2022 | $288,366 | $180,000 | $0 | $468,366 | $468,366 |
| 2021 | $253,942 | $130,000 | $0 | $383,942 | $383,942 |
| 2020 | $247,827 | $100,000 | $0 | $347,827 | $347,827 |
| 2019 | $189,349 | $150,000 | $0 | $339,349 | $339,349 |
| 2018 | $189,933 | $130,000 | $0 | $319,933 | $319,933 |
| 2017 | $187,076 | $110,000 | $0 | $297,076 | $297,076 |
| 2016 | $189,474 | $90,000 | $0 | $279,474 | $279,474 |
| 2015 | $191,872 | $70,000 | $0 | $261,872 | $261,872 |
| 2014 | $194,270 | $55,000 | $0 | $249,270 | $249,270 |
| 2013 | $196,670 | $55,000 | $0 | $251,670 | $251,670 |
| 2012 | $199,068 | $60,000 | $0 | $259,068 | $259,068 |
| 2011 | $201,172 | $50,000 | $0 | $251,172 | $251,172 |
| 2010 | $209,041 | $50,000 | $0 | $259,041 | $259,041 |
| 2009 | $217,935 | $60,000 | $0 | $277,935 | $277,935 |
| 2008 | $220,458 | $72,000 | $0 | $292,458 | $292,458 |
| 2007 | $222,969 | $72,000 | $0 | $294,969 | $294,969 |
Deed and Sales History
| 1 | 12/08/2002 | WD | Warranty Deed | SISTO, DUANE A | CLOUGHESSY, DANA M | | | $182,000.00 | 25016 | 4040679 |
| 2 | 06/14/2001 | WD | Warranty Deed | WALLS, MICHAEL D | SISTO, DUANE A | | | $168,500.00 | 12200 | 20034797 |
| 3 | 11/01/1996 | WD | Warranty Deed | REDDICK, B J | WALLS, MICHAEL D | | | $146,900.00 | 64171 | 96020295 |
| 4 | 07/01/1993 | WD | Warranty Deed | BUCK, BRUCE E | REDDICK, B J | | | $134,250.00 | 32627 | 93013560 |
| 5 | 09/01/1989 | WD | Warranty Deed | BROWN, MARK V | BUCK, BRUCE E | | | $94,500.00 | 93751 | 89012531 |
| 6 | 09/01/1985 | WD | Warranty Deed | BLACK, JAMES D | BROWN, MARK V | | | $85,000.00 | 52732 | 85010816 |
| 7 | 04/01/1979 | OTHER | Other - Misc. Documents | Unknown | BLACK, JAMES D | | | $80,000.00 | 91559 | 350368 |
Payout Agreement
| No payout information available.. |