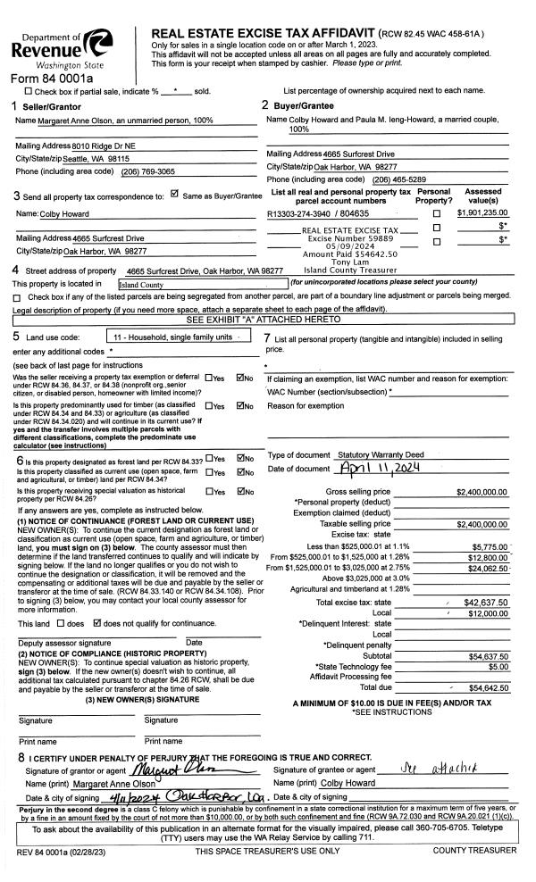
Property
Account |
| Property ID: | 229158 | Abbreviated Legal Description: | CAST HILLS 1 LOT 24 |
| Geographic ID: | S6340-00-00024-0 | Agent Code: | |
| Type: | Real | | |
| Tax Area: | 100 - APPRAISER-OH Schl Dist, in OH | Land Use Code | 11 |
| Open Space: | N | DFL | N |
| Historic Property: | N | Remodel Property: | N |
| Multi-Family Redevelopment: | N | | |
| Township: | | Section: | |
| Range: | |
Location |
| Address: | 782 SW JUDSON DR OAK HARBOR, WA 98277 | Mapsco: | |
| Neighborhood: | Cycle 1 | Map ID: | 92 |
| Neighborhood CD: | 1 |
Owner |
| Name: | EDWARDS, HAROLD L | Owner ID: | 75108 |
| Mailing Address: | NERELL J EDWARDS 782 SW JUDSON DR OAK HARBOR, WA 98277-4554 | % Ownership: | 100.0000000000% |
| | | Exemptions: | |
Taxes and Assessment Details
Values
| (+) Improvement Homesite Value: | + | $0 | |
| (+) Improvement Non-Homesite Value: | + | $276,051 | |
| (+) Land Homesite Value: | + | $0 | |
| (+) Land Non-Homesite Value: | + | $200,000 | |
| (+) Curr Use (HS): | + | $0 | $0 |
| (+) Curr Use (NHS): | + | $0 | $0 |
| | | -------------------------- | |
| (=) Market Value: | = | $476,051 | |
| (–) Productivity Loss: | – | $0 | |
| | | -------------------------- | |
| (=) Subtotal: | = | $476,051 | |
| (+) Senior Appraised Value: | + | $0 | |
| (+) Non-Senior Appraised Value: | + | $476,051 | |
| | | -------------------------- | |
| (=) Total Appraised Value: | = | $476,051 | |
| (–) Senior Exemption Loss: | – | $0 | |
| (–) Exemption Loss: | – | $0 | |
| | | -------------------------- | |
| (=) Taxable Value: | = | $476,051 | |
Taxing Jurisdiction
| Owner: | EDWARDS, HAROLD L | | |
| % Ownership: | 100.0000000000% | | |
| Total Value: | $476,051 | | |
| Tax Area: | 100 - APPRAISER-OH Schl Dist, in OH |
| CF | Conservation Futures | 0.0316035091 | $476,051 | $476,051 | $15.04 | | |
| CEM1 | Cemetery #1 | 0.0040320932 | $476,051 | $476,051 | $1.92 | | |
| COH | City of Oak Harbor | 2.3001546061 | $476,051 | $476,051 | $1,094.99 | | |
| OAKBOND | City of Oak Harbor BOND | 0.1926904192 | $476,051 | $476,051 | $91.73 | | |
| HOBOND | Hospital BOND | 0.1910887512 | $476,051 | $476,051 | $90.97 | | |
| HOGEN | Hospital GEN | 0.3902502903 | $476,051 | $476,051 | $185.78 | | |
| CE | County Current Expense | 0.3708482477 | $476,051 | $476,051 | $176.54 | | |
| ISLANDEMS | Hospital GEN (EMS) | 0.5000000000 | $476,051 | $476,051 | $238.03 | | |
| LIB | Library Sno-Isle GEN | 0.3153421757 | $476,051 | $476,051 | $150.12 | | |
| NWHIDPRMT | P & R N Whidbey GEN | 0.2004466701 | $476,051 | $476,051 | $95.42 | | |
| SCH201MO | School 201 Enrichment | 1.8559231640 | $476,051 | $476,051 | $883.51 | | |
| ST | State School | 1.3035497053 | $476,051 | $476,051 | $620.56 | | |
| ST2 | State School Part 2 | 0.8169543533 | $476,051 | $476,051 | $388.91 | | |
| | Total Tax Rate: | 8.4728839852 | | | | | |
| | | | | Taxes w/Current Exemptions: | $4,033.52 | | |
| | | | | Taxes w/o Exemptions: | $4,033.52 | | |
Improvement / Building
| Improvement #1: | RESIDENTIAL | State Code: | Y | 1962.0 sqft | Value: | $276,051 |
| Bathrooms: | 2.5 | Bedrooms: | 4 | | Ceiling: | DRY WALL SPRAYED | Exterior Wall/Cover: | PLY/HARDBOARD T-111 | | Floor Covering: | HARDWOOD/CARP 60-40 | Floor Structure: | WOOD W/SUBFLOOR | | Foundation: | CONCRETE | Heating: | FHA GAS | | Interior Finish: | DRYWALL PAINT | Plumbing Fixture Cnt: | 11 | | Roof Slope: | 4" IN 12" | Roof Structure/Cover: | CJ ASPHALT |
|
| | Type | Description | Class CD | Sub Class CD | Year Built | Area |
| | BAS | BASE/MAIN FLOOR | 3 | 0 | 1975 | 1340.0 |
| | DWN | DOWNSTAIRS LIVING AREA | 3 | 0 | 1975 | 622.0 |
| | OP2 | OPEN PORCH W/STEPS | 3 | 0 | 1975 | 30.0 |
| | OP4 | OPEN PORCH W/CEILING-ROOF | 3 | 0 | 1975 | 36.0 |
| | BIG | BUILT IN GARAGE | 3 | 0 | 1975 | 626.0 |
| | OWP | OPEN WOOD PORCH W/STEPS | 3 | 0 | 1975 | 388.0 |
Sketch
Property Image
Land
| 1 | 14 | SQ (08001-12000) | 0.0000 | 0.00 | 0.00 | 0.00 | 1.00 | $200,000 | $0 |
Roll Value History
| 2026 | N/A | N/A | N/A | N/A | N/A |
| 2025 | $276,051 | $200,000 | $0 | $476,051 | $476,051 |
| 2024 | $279,720 | $180,000 | $0 | $459,720 | $459,720 |
| 2023 | $276,051 | $190,000 | $0 | $466,051 | $466,051 |
| 2022 | $253,281 | $180,000 | $0 | $433,281 | $433,281 |
| 2021 | $236,662 | $130,000 | $0 | $366,662 | $366,662 |
| 2020 | $230,270 | $100,000 | $0 | $330,270 | $330,270 |
| 2019 | $164,057 | $150,000 | $0 | $314,057 | $314,057 |
| 2018 | $164,575 | $130,000 | $0 | $294,575 | $294,575 |
| 2017 | $161,768 | $110,000 | $0 | $271,768 | $271,768 |
| 2016 | $163,897 | $90,000 | $0 | $253,897 | $253,897 |
| 2015 | $166,025 | $70,000 | $0 | $236,025 | $236,025 |
| 2014 | $168,153 | $55,000 | $0 | $223,153 | $223,153 |
| 2013 | $170,283 | $55,000 | $0 | $225,283 | $225,283 |
| 2012 | $172,410 | $60,000 | $0 | $232,410 | $232,410 |
| 2011 | $167,750 | $50,000 | $0 | $217,750 | $217,750 |
| 2010 | $190,325 | $50,000 | $0 | $240,325 | $240,325 |
| 2009 | $199,028 | $60,000 | $0 | $259,028 | $259,028 |
| 2008 | $202,403 | $72,000 | $0 | $274,403 | $274,403 |
| 2007 | $205,777 | $72,000 | $0 | $277,777 | $277,777 |
Deed and Sales History
| 1 | 09/26/2005 | WD | Warranty Deed | EIFERT, CHRISTOPHER G | EDWARDS, HAROLD L | | | $273,000.00 | 55164 | 4150516 |
| 2 | 10/19/1998 | WD | Warranty Deed | GAY, LARRY T | EIFERT, CHRISTOPHER G | | | $140,000.00 | 84258 | 98023201 |
| 3 | 11/01/1991 | WD | Warranty Deed | PORRITT, RICHARD H | GAY, LARRY T | | | $125,000.00 | 14035 | 91017246 |
| 4 | 01/01/1900 | OTHER | Other - Misc. Documents | Unknown | PORRITT, RICHARD H | | | $0.00 | 0 | 0 |
Payout Agreement
| No payout information available.. |