Property
Account |
| Property ID: | 229167 | Abbreviated Legal Description: | CAST HILLS 1 LOT 25 |
| Geographic ID: | S6340-00-00025-0 | Agent Code: | |
| Type: | Real | | |
| Tax Area: | 100 - APPRAISER-OH Schl Dist, in OH | Land Use Code | 11 |
| Open Space: | N | DFL | N |
| Historic Property: | N | Remodel Property: | N |
| Multi-Family Redevelopment: | N | | |
| Township: | | Section: | |
| Range: | |
Location |
| Address: | 750 SW JUDSON DR OAK HARBOR, WA 98277 | Mapsco: | |
| Neighborhood: | Cycle 1 | Map ID: | 92 |
| Neighborhood CD: | 1 |
Owner |
| Name: | FARR, NATHANEAL | Owner ID: | 306465 |
| Mailing Address: | 750 SW JUDSON DR OAK HARBOR, WA 98277 | % Ownership: | 100.0000000000% |
| | | Exemptions: | |
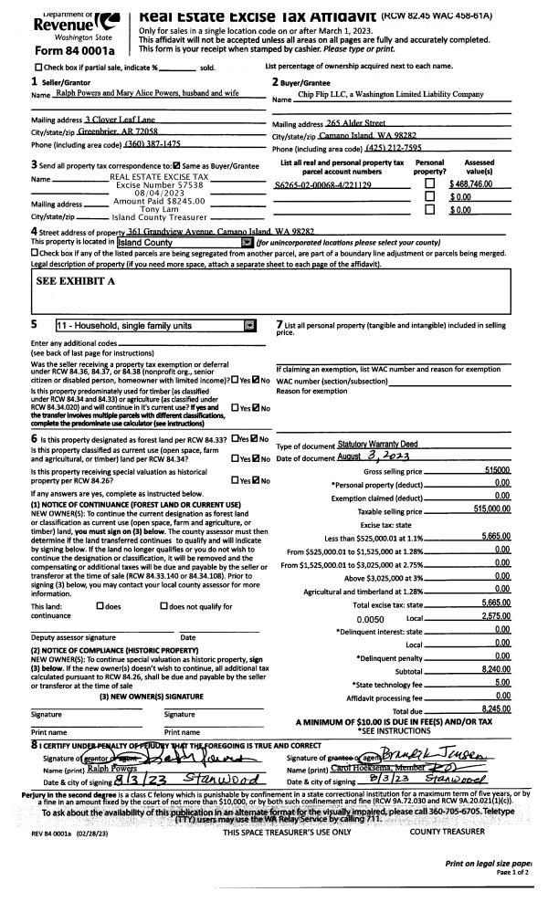
Taxes and Assessment Details
Values
| (+) Improvement Homesite Value: | + | $0 | |
| (+) Improvement Non-Homesite Value: | + | $294,421 | |
| (+) Land Homesite Value: | + | $0 | |
| (+) Land Non-Homesite Value: | + | $200,000 | |
| (+) Curr Use (HS): | + | $0 | $0 |
| (+) Curr Use (NHS): | + | $0 | $0 |
| | | -------------------------- | |
| (=) Market Value: | = | $494,421 | |
| (–) Productivity Loss: | – | $0 | |
| | | -------------------------- | |
| (=) Subtotal: | = | $494,421 | |
| (+) Senior Appraised Value: | + | $0 | |
| (+) Non-Senior Appraised Value: | + | $494,421 | |
| | | -------------------------- | |
| (=) Total Appraised Value: | = | $494,421 | |
| (–) Senior Exemption Loss: | – | $0 | |
| (–) Exemption Loss: | – | $0 | |
| | | -------------------------- | |
| (=) Taxable Value: | = | $494,421 | |
Taxing Jurisdiction
| Owner: | FARR, NATHANEAL | | |
| % Ownership: | 100.0000000000% | | |
| Total Value: | $494,421 | | |
| Tax Area: | 100 - APPRAISER-OH Schl Dist, in OH |
| CF | Conservation Futures | 0.0316035091 | $494,421 | $494,421 | $15.63 | | |
| CEM1 | Cemetery #1 | 0.0040320932 | $494,421 | $494,421 | $1.99 | | |
| COH | City of Oak Harbor | 2.3001546061 | $494,421 | $494,421 | $1,137.24 | | |
| OAKBOND | City of Oak Harbor BOND | 0.1926904192 | $494,421 | $494,421 | $95.27 | | |
| HOBOND | Hospital BOND | 0.1910887512 | $494,421 | $494,421 | $94.48 | | |
| HOGEN | Hospital GEN | 0.3902502903 | $494,421 | $494,421 | $192.95 | | |
| CE | County Current Expense | 0.3708482477 | $494,421 | $494,421 | $183.36 | | |
| ISLANDEMS | Hospital GEN (EMS) | 0.5000000000 | $494,421 | $494,421 | $247.21 | | |
| LIB | Library Sno-Isle GEN | 0.3153421757 | $494,421 | $494,421 | $155.91 | | |
| NWHIDPRMT | P & R N Whidbey GEN | 0.2004466701 | $494,421 | $494,421 | $99.11 | | |
| SCH201MO | School 201 Enrichment | 1.8559231640 | $494,421 | $494,421 | $917.61 | | |
| ST | State School | 1.3035497053 | $494,421 | $494,421 | $644.50 | | |
| ST2 | State School Part 2 | 0.8169543533 | $494,421 | $494,421 | $403.92 | | |
| | Total Tax Rate: | 8.4728839852 | | | | | |
| | | | | Taxes w/Current Exemptions: | $4,189.18 | | |
| | | | | Taxes w/o Exemptions: | $4,189.18 | | |
Improvement / Building
| Improvement #1: | RESIDENTIAL | State Code: | Y | 1987.0 sqft | Value: | $294,421 |
| Bathrooms: | 3 | Bedrooms: | 3 | | Ceiling: | DRY WALL SPRAYED | Cooling: | HEAT PUMP/CONV/V | | Exterior Wall/Cover: | PLY/HARDBOARD T-111 | Floor Covering: | CARPET/VINYL 80-20 | | Floor Structure: | WOOD W/SUBFLOOR | Foundation: | CONCRETE | | Interior Finish: | DRYWALL PAINT | Plumbing Fixture Cnt: | 12 | | Roof Slope: | 4" IN 12" | Roof Structure/Cover: | CJ ASPHALT |
|
| | Type | Description | Class CD | Sub Class CD | Year Built | Area |
| | BAS | BASE/MAIN FLOOR | 3 | 0 | 1975 | 1354.0 |
| | OP1 | OPEN PORCH SLAB | 3 | 0 | 1975 | 208.0 |
| | OP2 | OPEN PORCH W/STEPS | 3 | 0 | 1975 | 66.0 |
| | AGR | ATTACHED GARAGE | 3 | 0 | 1975 | 552.0 |
| | DWN | DOWNSTAIRS LIVING AREA | 3 | 0 | 1975 | 633.0 |
| | OP1 | OPEN PORCH SLAB | 3 | 0 | 1975 | 176.0 |
Sketch
Property Image
Land
| 1 | 14 | SQ (08001-12000) | 0.0000 | 0.00 | 0.00 | 0.00 | 1.00 | $200,000 | $0 |
Roll Value History
| 2026 | N/A | N/A | N/A | N/A | N/A |
| 2025 | $294,421 | $200,000 | $0 | $494,421 | $494,421 |
| 2024 | $298,136 | $180,000 | $0 | $478,136 | $478,136 |
| 2023 | $294,421 | $190,000 | $0 | $484,421 | $484,421 |
| 2022 | $269,975 | $180,000 | $0 | $449,975 | $449,975 |
| 2021 | $237,682 | $130,000 | $0 | $367,682 | $367,682 |
| 2020 | $231,596 | $100,000 | $0 | $331,596 | $331,596 |
| 2019 | $175,156 | $150,000 | $0 | $325,156 | $325,156 |
| 2018 | $175,681 | $130,000 | $0 | $305,681 | $305,681 |
| 2017 | $176,064 | $110,000 | $0 | $286,064 | $286,064 |
| 2016 | $178,210 | $90,000 | $0 | $268,210 | $268,210 |
| 2015 | $180,358 | $70,000 | $0 | $250,358 | $250,358 |
| 2014 | $182,506 | $55,000 | $0 | $237,506 | $237,506 |
| 2013 | $184,652 | $55,000 | $0 | $239,652 | $239,652 |
| 2012 | $186,801 | $60,000 | $0 | $246,801 | $246,801 |
| 2011 | $169,530 | $50,000 | $0 | $219,530 | $219,530 |
| 2010 | $179,824 | $50,000 | $0 | $229,824 | $229,824 |
| 2009 | $187,546 | $60,000 | $0 | $247,546 | $247,546 |
| 2008 | $189,849 | $72,000 | $0 | $261,849 | $261,849 |
| 2007 | $192,158 | $72,000 | $0 | $264,158 | $264,158 |
Deed and Sales History
| 1 | 10/12/2022 | WD | Warranty Deed | PRICE, CHAD | FARR, NATHANEAL | | | $515,000.00 | 55000 | 4553111 |
| 2 | 12/01/2020 | WD | Warranty Deed | CHRISTENSEN, JUSTIN J | PRICE, CHAD | | | $410,000.00 | 45992 | 4504231 |
| 3 | 09/17/2008 | WD | Warranty Deed | SCHMIDT, JEFFREY S | CHRISTENSEN, JUSTIN J | | | $261,000.00 | 82494 | 4237078 |
| 4 | 04/11/2001 | WD | Warranty Deed | BEEVER, RANDAL R | SCHMIDT, JEFFREY S | | | $169,500.00 | 11282 | 20029987 |
| 5 | 04/01/1995 | WD | Warranty Deed | DAVIS, SCOTT E | BEEVER, RANDAL R | | | $129,950.00 | 51303 | 95006143 |
| 6 | 07/01/1987 | WD | Warranty Deed | ROCKWOOD, DONALD J | DAVIS, SCOTT E | | | $82,000.00 | 72023 | 87009238 |
| 7 | 01/01/1900 | OTHER | Other - Misc. Documents | Unknown | ROCKWOOD, DONALD J | | | $0.00 | 0 | 0 |
Payout Agreement
| No payout information available.. |