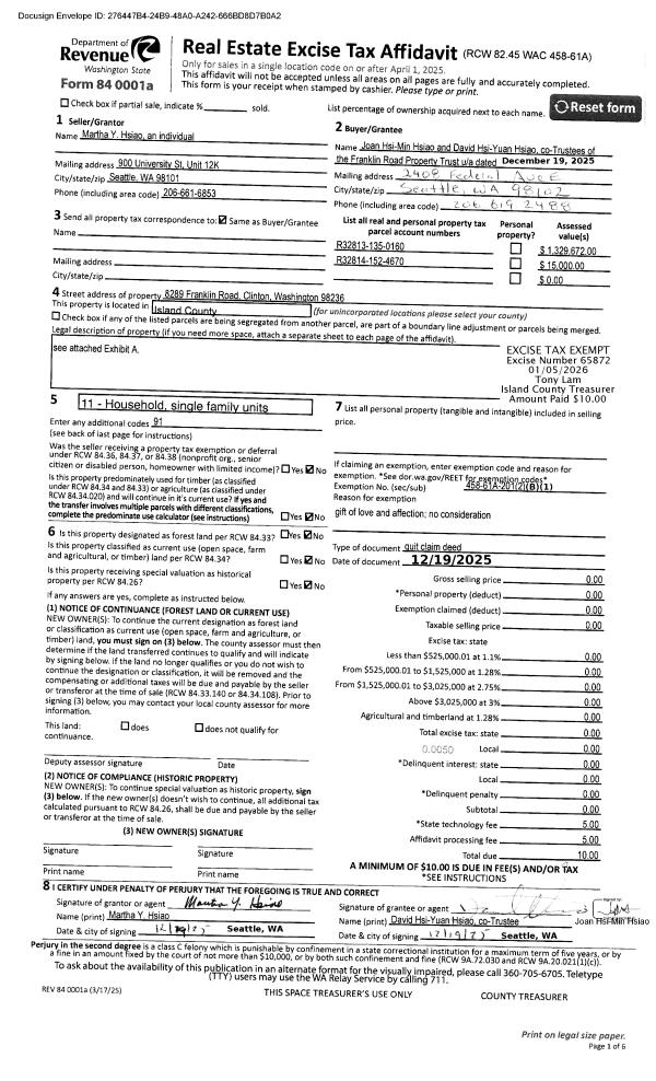
Property
Account |
| Property ID: | 229283 | Abbreviated Legal Description: | CAST HILLS 2 LOT 7 |
| Geographic ID: | S6340-02-00007-0 | Agent Code: | |
| Type: | Real | | |
| Tax Area: | 100 - APPRAISER-OH Schl Dist, in OH | Land Use Code | 13 |
| Open Space: | N | DFL | N |
| Historic Property: | N | Remodel Property: | N |
| Multi-Family Redevelopment: | N | | |
| Township: | | Section: | |
| Range: | |
Location |
| Address: | 730 SW HARRIER CIR OAK HARBOR, WA 98277 | Mapsco: | |
| Neighborhood: | 3BcOH-sw harrier | Map ID: | 93 |
| Neighborhood CD: | 3BcOHswhar |
Owner |
| Name: | S & R PROPERTIES, LLC | Owner ID: | 291292 |
| Mailing Address: | 13389 NE 152ND ST WOODINVILLE, WA 98072 | % Ownership: | 100.0000000000% |
| | | Exemptions: | |
Taxes and Assessment Details
Values
| (+) Improvement Homesite Value: | + | $0 | |
| (+) Improvement Non-Homesite Value: | + | $676,515 | |
| (+) Land Homesite Value: | + | $0 | |
| (+) Land Non-Homesite Value: | + | $568,850 | |
| (+) Curr Use (HS): | + | $0 | $0 |
| (+) Curr Use (NHS): | + | $0 | $0 |
| | | -------------------------- | |
| (=) Market Value: | = | $1,245,365 | |
| (–) Productivity Loss: | – | $0 | |
| | | -------------------------- | |
| (=) Subtotal: | = | $1,245,365 | |
| (+) Senior Appraised Value: | + | $0 | |
| (+) Non-Senior Appraised Value: | + | $1,245,365 | |
| | | -------------------------- | |
| (=) Total Appraised Value: | = | $1,245,365 | |
| (–) Senior Exemption Loss: | – | $0 | |
| (–) Exemption Loss: | – | $0 | |
| | | -------------------------- | |
| (=) Taxable Value: | = | $1,245,365 | |
Taxing Jurisdiction
| Owner: | S & R PROPERTIES, LLC | | |
| % Ownership: | 100.0000000000% | | |
| Total Value: | $1,245,365 | | |
| Tax Area: | 100 - APPRAISER-OH Schl Dist, in OH |
| CF | Conservation Futures | 0.0316035091 | $1,245,365 | $1,245,365 | $39.36 | | |
| CEM1 | Cemetery #1 | 0.0040320932 | $1,245,365 | $1,245,365 | $5.02 | | |
| COH | City of Oak Harbor | 2.3001546061 | $1,245,365 | $1,245,365 | $2,864.53 | | |
| OAKBOND | City of Oak Harbor BOND | 0.1926904192 | $1,245,365 | $1,245,365 | $239.97 | | |
| HOBOND | Hospital BOND | 0.1910887512 | $1,245,365 | $1,245,365 | $237.98 | | |
| HOGEN | Hospital GEN | 0.3902502903 | $1,245,365 | $1,245,365 | $486.00 | | |
| CE | County Current Expense | 0.3708482477 | $1,245,365 | $1,245,365 | $461.84 | | |
| ISLANDEMS | Hospital GEN (EMS) | 0.5000000000 | $1,245,365 | $1,245,365 | $622.68 | | |
| LIB | Library Sno-Isle GEN | 0.3153421757 | $1,245,365 | $1,245,365 | $392.72 | | |
| NWHIDPRMT | P & R N Whidbey GEN | 0.2004466701 | $1,245,365 | $1,245,365 | $249.63 | | |
| SCH201MO | School 201 Enrichment | 1.8559231640 | $1,245,365 | $1,245,365 | $2,311.30 | | |
| ST | State School | 1.3035497053 | $1,245,365 | $1,245,365 | $1,623.40 | | |
| ST2 | State School Part 2 | 0.8169543533 | $1,245,365 | $1,245,365 | $1,017.41 | | |
| | Total Tax Rate: | 8.4728839852 | | | | | |
| | | | | Taxes w/Current Exemptions: | $10,551.84 | | |
| | | | | Taxes w/o Exemptions: | $10,551.84 | | |
Improvement / Building
| Improvement #1: | COMMERCIAL | State Code: | A1 | 8362.0 sqft | Value: | $676,515 |
| Bathrooms: | 0 | Bedrooms: | 0 | | Ceiling: | DRY WALL SPRAYED | Exterior Wall/Cover: | CONCRETE BLOCK | | Floor Covering: | CARPET/VINYL 80-20 | Floor Structure: | WOOD W/SUBFLOOR | | Foundation: | CONCRETE BLOCKS | Heating: | BASEBOARD ELECTRIC | | Interior Finish: | DRYWALL PAINT | Plumbing Fixture Cnt: | 44 | | Roof Slope: | 5" IN 12" | Roof Structure/Cover: | CJ ASPHALT |
|
| | Type | Description | Class CD | Sub Class CD | Year Built | Area |
| | BAS | BASE/MAIN FLOOR | 3 | 0 | 1975 | 4181.0 |
| | OP3 | OPEN PORCH W/ROOF | 3 | 0 | 1975 | 917.0 |
| | DWN | DOWNSTAIRS LIVING AREA | 3 | 0 | 1975 | 4181.0 |
| | OWC | OPEN WOOD PORCH W/STEPS/ROOF/C | 3 | 0 | 1975 | 791.0 |
| | oPV1 | PV/ASPH 2" | 3 | 0 | 1975 | 6969.0 |
Sketch
Property Image
Land
| 1 | 61 | MULTIPLE RESIDENCES | 0.4353 | 18961.67 | 0.00 | 0.00 | 1.00 | $568,850 | $0 |
Roll Value History
| 2026 | N/A | N/A | N/A | N/A | N/A |
| 2025 | $676,515 | $568,850 | $0 | $1,245,365 | $1,245,365 |
| 2024 | $697,667 | $568,850 | $0 | $1,266,517 | $1,266,517 |
| 2023 | $718,022 | $568,850 | $0 | $1,286,872 | $1,286,872 |
| 2022 | $599,987 | $568,850 | $0 | $1,168,837 | $1,168,837 |
| 2021 | $595,334 | $568,850 | $0 | $1,164,184 | $1,164,184 |
| 2020 | $594,578 | $568,850 | $0 | $1,163,428 | $1,163,428 |
| 2019 | $499,201 | $568,850 | $0 | $1,068,051 | $1,068,051 |
| 2018 | $499,297 | $493,003 | $0 | $992,300 | $992,300 |
| 2017 | $499,490 | $113,770 | $0 | $613,260 | $613,260 |
| 2016 | $499,876 | $113,770 | $0 | $613,646 | $613,646 |
| 2015 | $513,745 | $113,770 | $0 | $627,515 | $627,515 |
| 2014 | $522,292 | $113,770 | $0 | $636,062 | $636,062 |
| 2013 | $481,920 | $104,090 | $0 | $586,010 | $586,010 |
| 2012 | $481,920 | $104,090 | $0 | $586,010 | $586,010 |
| 2011 | $481,920 | $104,090 | $0 | $586,010 | $586,010 |
| 2010 | $492,021 | $104,090 | $0 | $596,111 | $596,111 |
| 2009 | $498,338 | $110,726 | $0 | $609,064 | $609,064 |
| 2008 | $498,338 | $110,726 | $0 | $609,064 | $609,064 |
| 2007 | $492,021 | $110,726 | $0 | $602,747 | $602,747 |
Deed and Sales History
| 1 | 07/25/2019 | WD | Warranty Deed | AMMANN TRUSTEE, CONSTANCE | S & R PROPERTIES, LLC | | | $920,000.00 | 39800 | 4469052 |
| 2 | 12/31/2007 | WD | Warranty Deed | Unknown | AMMANN TRUSTEE, CONSTANCE | | | $700,000.00 | 80006 | 4218965 |
| 3 | 01/01/1900 | OTHER | Other - Misc. Documents | Unknown | DEJONG, LEROY | | | $0.00 | 0 | 0 |
Payout Agreement
| No payout information available.. |