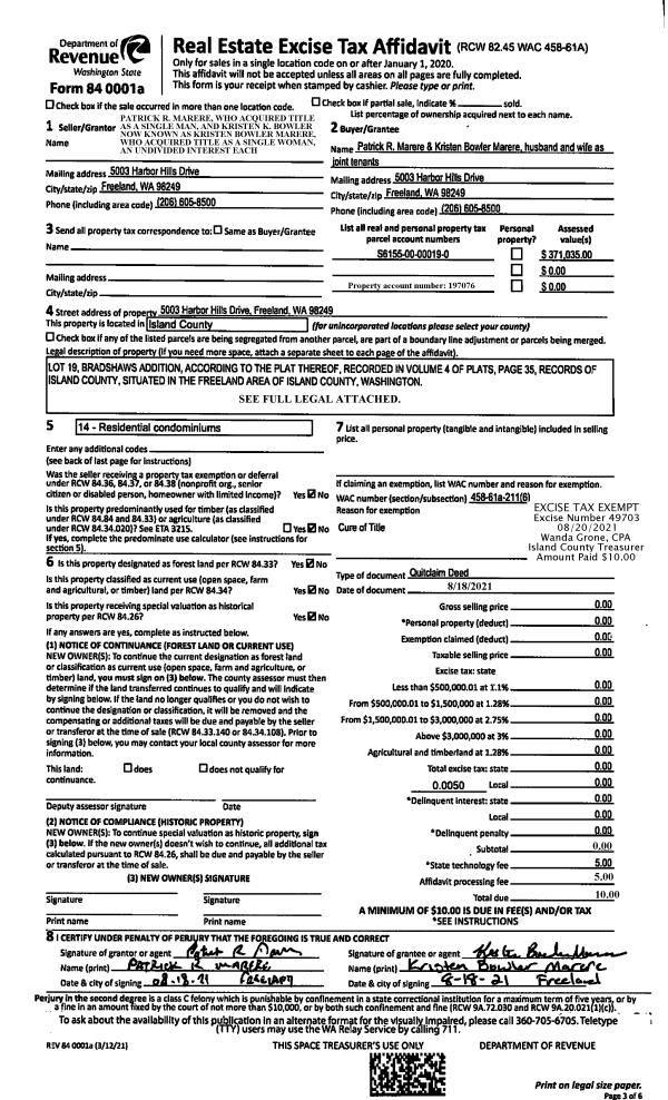
Property
Account |
| Property ID: | 229318 | Abbreviated Legal Description: | CAST HILLS 2 LOT 10 |
| Geographic ID: | S6340-02-00010-0 | Agent Code: | |
| Type: | Real | | |
| Tax Area: | 100 - APPRAISER-OH Schl Dist, in OH | Land Use Code | 13 |
| Open Space: | N | DFL | N |
| Historic Property: | N | Remodel Property: | N |
| Multi-Family Redevelopment: | N | | |
| Township: | | Section: | |
| Range: | |
Location |
| Address: | 835 SW HARRIER CIR OAK HARBOR, WA 98277 | Mapsco: | |
| Neighborhood: | 3BcOH-sw harrier | Map ID: | 93 |
| Neighborhood CD: | 3BcOHswhar |
Owner |
| Name: | SL NORTHWEST PROPERTIES, LLC | Owner ID: | 297847 |
| Mailing Address: | 5103 CROATIAN WAY ANACORTES, WA 98221 | % Ownership: | 100.0000000000% |
| | | Exemptions: | |
Taxes and Assessment Details
Values
| (+) Improvement Homesite Value: | + | $0 | |
| (+) Improvement Non-Homesite Value: | + | $602,842 | |
| (+) Land Homesite Value: | + | $0 | |
| (+) Land Non-Homesite Value: | + | $537,617 | |
| (+) Curr Use (HS): | + | $0 | $0 |
| (+) Curr Use (NHS): | + | $0 | $0 |
| | | -------------------------- | |
| (=) Market Value: | = | $1,140,459 | |
| (–) Productivity Loss: | – | $0 | |
| | | -------------------------- | |
| (=) Subtotal: | = | $1,140,459 | |
| (+) Senior Appraised Value: | + | $0 | |
| (+) Non-Senior Appraised Value: | + | $1,140,459 | |
| | | -------------------------- | |
| (=) Total Appraised Value: | = | $1,140,459 | |
| (–) Senior Exemption Loss: | – | $0 | |
| (–) Exemption Loss: | – | $0 | |
| | | -------------------------- | |
| (=) Taxable Value: | = | $1,140,459 | |
Taxing Jurisdiction
| Owner: | SL NORTHWEST PROPERTIES, LLC | | |
| % Ownership: | 100.0000000000% | | |
| Total Value: | $1,140,459 | | |
| Tax Area: | 100 - APPRAISER-OH Schl Dist, in OH |
| CF | Conservation Futures | 0.0316035091 | $1,140,459 | $1,140,459 | $36.04 | | |
| CEM1 | Cemetery #1 | 0.0040320932 | $1,140,459 | $1,140,459 | $4.60 | | |
| COH | City of Oak Harbor | 2.3001546061 | $1,140,459 | $1,140,459 | $2,623.23 | | |
| OAKBOND | City of Oak Harbor BOND | 0.1926904192 | $1,140,459 | $1,140,459 | $219.76 | | |
| HOBOND | Hospital BOND | 0.1910887512 | $1,140,459 | $1,140,459 | $217.93 | | |
| HOGEN | Hospital GEN | 0.3902502903 | $1,140,459 | $1,140,459 | $445.06 | | |
| CE | County Current Expense | 0.3708482477 | $1,140,459 | $1,140,459 | $422.94 | | |
| ISLANDEMS | Hospital GEN (EMS) | 0.5000000000 | $1,140,459 | $1,140,459 | $570.23 | | |
| LIB | Library Sno-Isle GEN | 0.3153421757 | $1,140,459 | $1,140,459 | $359.63 | | |
| NWHIDPRMT | P & R N Whidbey GEN | 0.2004466701 | $1,140,459 | $1,140,459 | $228.60 | | |
| SCH201MO | School 201 Enrichment | 1.8559231640 | $1,140,459 | $1,140,459 | $2,116.60 | | |
| ST | State School | 1.3035497053 | $1,140,459 | $1,140,459 | $1,486.64 | | |
| ST2 | State School Part 2 | 0.8169543533 | $1,140,459 | $1,140,459 | $931.70 | | |
| | Total Tax Rate: | 8.4728839852 | | | | | |
| | | | | Taxes w/Current Exemptions: | $9,662.96 | | |
| | | | | Taxes w/o Exemptions: | $9,662.96 | | |
Improvement / Building
| Improvement #1: | COMMERCIAL | State Code: | A1 | 8640.0 sqft | Value: | $602,842 |
| Bathrooms: | 0 | Bedrooms: | 0 | | Ceiling: | DRY WALL SPRAYED | Exterior Wall/Cover: | PLY/HARDBOARD T-111 | | Floor Covering: | CARPET/VINYL 80-20 | Floor Structure: | WOOD W/SUBFLOOR | | Foundation: | CONCRETE | Heating: | BASEBOARD ELECTRIC | | Interior Finish: | DRYWALL PAINT | Plumbing Fixture Cnt: | 64 | | Roof Slope: | 5" IN 12" | Roof Structure/Cover: | CJ ASPHALT |
|
| | Type | Description | Class CD | Sub Class CD | Year Built | Area |
| | BAS | BASE/MAIN FLOOR | 3 | 0 | 1976 | 4320.0 |
| | UPS | UPPER STORY | 3 | 0 | 1976 | 4320.0 |
| | OP1 | OPEN PORCH SLAB | 3 | 0 | 1976 | 480.0 |
| | OP3 | OPEN PORCH W/ROOF | 3 | 0 | 1976 | 328.0 |
| | UTY | STORAGE/UTILITY | 3 | 0 | 1976 | 120.0 |
| | OP1 | OPEN PORCH SLAB | 3 | 0 | 1976 | 4350.0 |
Sketch
Property Image
Land
| 1 | 61 | MULTIPLE RESIDENCES | 0.4114 | 17920.58 | 0.00 | 0.00 | 1.00 | $537,617 | $0 |
Roll Value History
| 2026 | N/A | N/A | N/A | N/A | N/A |
| 2025 | $602,842 | $537,617 | $0 | $1,140,459 | $1,140,459 |
| 2024 | $635,376 | $537,617 | $0 | $1,172,993 | $1,172,993 |
| 2023 | $656,707 | $537,617 | $0 | $1,194,324 | $1,194,324 |
| 2022 | $546,176 | $537,617 | $0 | $1,083,793 | $1,083,793 |
| 2021 | $540,892 | $537,617 | $0 | $1,078,509 | $1,078,509 |
| 2020 | $539,932 | $537,617 | $0 | $1,077,549 | $1,077,549 |
| 2019 | $360,205 | $537,617 | $0 | $897,822 | $897,822 |
| 2018 | $360,205 | $465,935 | $0 | $826,140 | $826,140 |
| 2017 | $360,205 | $125,444 | $0 | $485,649 | $485,649 |
| 2016 | $360,205 | $125,444 | $0 | $485,649 | $485,649 |
| 2015 | $373,847 | $107,523 | $0 | $481,370 | $481,370 |
| 2014 | $383,476 | $107,523 | $0 | $490,999 | $490,999 |
| 2013 | $456,890 | $103,398 | $0 | $560,288 | $560,288 |
| 2012 | $456,890 | $103,398 | $0 | $560,288 | $560,288 |
| 2011 | $456,890 | $103,398 | $0 | $560,288 | $560,288 |
| 2010 | $461,231 | $103,398 | $0 | $564,629 | $564,629 |
| 2009 | $467,664 | $110,029 | $0 | $577,693 | $577,693 |
| 2008 | $474,097 | $110,029 | $0 | $584,126 | $584,126 |
| 2007 | $435,497 | $110,029 | $0 | $545,526 | $545,526 |
Deed and Sales History
| 1 | 01/21/2021 | QCD | Quit Claim Deed | BERGHUYS, BELA | SL NORTHWEST PROPERTIES, LLC | | | $0.00 | 46678 | 4509002 |
| 2 | 09/30/2014 | WD | Warranty Deed | B & B GLASGOW RENTALS, LLC | BERGHUYS, BELA | | | $631,500.00 | 17055 | 4366550 |
| 3 | 06/03/2013 | QCD | Quit Claim Deed | GLASGOW, BRUCE | B & B GLASGOW RENTALS, LLC | | | $0.00 | 11608 | 4341753 |
| 4 | 09/30/2011 | WD | Warranty Deed | HARRISON & SHARON LAKE LIVING TRUST | GLASGOW, BRUCE | | | $590,000.00 | 5752 | 4302436 |
| 5 | 03/21/2006 | 5 | DNU - Marriage License/Name Change | LAKE, HARRISON | HARRISON & SHARON LAKE LIVING | | | $0.00 | 61483 | 4166711 |
| 6 | 05/26/2005 | WD | Warranty Deed | SIGLER, BERNARD J | LAKE, HARRISON | | | $650,000.00 | 52592 | 4136581 |
| 7 | 10/26/1999 | QCD | Quit Claim Deed | LYNNWOOD ASSOCIATES, | SIGLER, BERNARD J | | | $0.00 | 94455 | 99024322 |
| 8 | 01/01/1900 | OTHER | Other - Misc. Documents | Unknown | LYNNWOOD ASSOCIATES, | | | $0.00 | 0 | 0 |
Payout Agreement
| No payout information available.. |