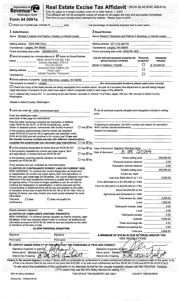
Property
Account |
| Property ID: | 229470 | Abbreviated Legal Description: | CAST HILLS 2 LOT 28 |
| Geographic ID: | S6340-02-00028-0 | Agent Code: | |
| Type: | Real | | |
| Tax Area: | 100 - APPRAISER-OH Schl Dist, in OH | Land Use Code | 11 |
| Open Space: | N | DFL | N |
| Historic Property: | N | Remodel Property: | N |
| Multi-Family Redevelopment: | N | | |
| Township: | | Section: | |
| Range: | |
Location |
| Address: | 981 SW FAIRHAVEN DR OAK HARBOR, WA 98277 | Mapsco: | |
| Neighborhood: | Cycle 1 | Map ID: | 93 |
| Neighborhood CD: | 1 |
Owner |
| Name: | BELLI, WILLIAM J | Owner ID: | 105396 |
| Mailing Address: | 1472 EMERALD COURT PO BOX 2774 OAK HARBOR, WA 98277 | % Ownership: | 100.0000000000% |
| | | Exemptions: | |
Taxes and Assessment Details
Values
| (+) Improvement Homesite Value: | + | $0 | |
| (+) Improvement Non-Homesite Value: | + | $309,359 | |
| (+) Land Homesite Value: | + | $0 | |
| (+) Land Non-Homesite Value: | + | $200,000 | |
| (+) Curr Use (HS): | + | $0 | $0 |
| (+) Curr Use (NHS): | + | $0 | $0 |
| | | -------------------------- | |
| (=) Market Value: | = | $509,359 | |
| (–) Productivity Loss: | – | $0 | |
| | | -------------------------- | |
| (=) Subtotal: | = | $509,359 | |
| (+) Senior Appraised Value: | + | $0 | |
| (+) Non-Senior Appraised Value: | + | $509,359 | |
| | | -------------------------- | |
| (=) Total Appraised Value: | = | $509,359 | |
| (–) Senior Exemption Loss: | – | $0 | |
| (–) Exemption Loss: | – | $0 | |
| | | -------------------------- | |
| (=) Taxable Value: | = | $509,359 | |
Taxing Jurisdiction
| Owner: | BELLI, WILLIAM J | | |
| % Ownership: | 100.0000000000% | | |
| Total Value: | $509,359 | | |
| Tax Area: | 100 - APPRAISER-OH Schl Dist, in OH |
| CF | Conservation Futures | 0.0316035091 | $509,359 | $509,359 | $16.10 | | |
| CEM1 | Cemetery #1 | 0.0040320932 | $509,359 | $509,359 | $2.05 | | |
| COH | City of Oak Harbor | 2.3001546061 | $509,359 | $509,359 | $1,171.60 | | |
| OAKBOND | City of Oak Harbor BOND | 0.1926904192 | $509,359 | $509,359 | $98.15 | | |
| HOBOND | Hospital BOND | 0.1910887512 | $509,359 | $509,359 | $97.33 | | |
| HOGEN | Hospital GEN | 0.3902502903 | $509,359 | $509,359 | $198.78 | | |
| CE | County Current Expense | 0.3708482477 | $509,359 | $509,359 | $188.89 | | |
| ISLANDEMS | Hospital GEN (EMS) | 0.5000000000 | $509,359 | $509,359 | $254.68 | | |
| LIB | Library Sno-Isle GEN | 0.3153421757 | $509,359 | $509,359 | $160.62 | | |
| NWHIDPRMT | P & R N Whidbey GEN | 0.2004466701 | $509,359 | $509,359 | $102.10 | | |
| SCH201MO | School 201 Enrichment | 1.8559231640 | $509,359 | $509,359 | $945.33 | | |
| ST | State School | 1.3035497053 | $509,359 | $509,359 | $663.97 | | |
| ST2 | State School Part 2 | 0.8169543533 | $509,359 | $509,359 | $416.12 | | |
| | Total Tax Rate: | 8.4728839852 | | | | | |
| | | | | Taxes w/Current Exemptions: | $4,315.72 | | |
| | | | | Taxes w/o Exemptions: | $4,315.72 | | |
Improvement / Building
| Improvement #1: | RESIDENTIAL | State Code: | Y | 2568.0 sqft | Value: | $309,359 |
| Bathrooms: | 3 | Bedrooms: | 3 | | Ceiling: | DRY WALL SPRAYED | Exterior Wall/Cover: | WOOD SIDING | | Floor Covering: | CARPET 100% | Floor Structure: | WOOD W/SUBFLOOR | | Foundation: | CONCRETE | Heating: | FHA GAS | | Interior Finish: | DRYWALL PAINT | Plumbing Fixture Cnt: | 12 | | Roof Slope: | 4" IN 12" | Roof Structure/Cover: | CJ ASPHALT |
|
| | Type | Description | Class CD | Sub Class CD | Year Built | Area |
| | BAS | BASE/MAIN FLOOR | 3 | 0 | 1975 | 1562.0 |
| | OP2 | OPEN PORCH W/STEPS | 3 | 0 | 1975 | 36.0 |
| | BIG | BUILT IN GARAGE | 3 | 0 | 1975 | 420.0 |
| | OWP | OPEN WOOD PORCH W/STEPS | 3 | 0 | 1975 | 92.8 |
| | ENP | ENCLOSED PORCH | 3 | 0 | 1975 | 297.0 |
| | DWN | DOWNSTAIRS LIVING AREA | 3 | 0 | 1975 | 1006.0 |
Sketch
Property Image
Land
| 1 | 14 | SQ (08001-12000) | 0.0000 | 0.00 | 0.00 | 0.00 | 1.00 | $200,000 | $0 |
Roll Value History
| 2026 | N/A | N/A | N/A | N/A | N/A |
| 2025 | $309,359 | $200,000 | $0 | $509,359 | $509,359 |
| 2024 | $313,582 | $180,000 | $0 | $493,582 | $493,582 |
| 2023 | $309,359 | $190,000 | $0 | $499,359 | $499,359 |
| 2022 | $283,950 | $180,000 | $0 | $463,950 | $463,950 |
| 2021 | $250,235 | $130,000 | $0 | $380,235 | $380,235 |
| 2020 | $244,495 | $100,000 | $0 | $344,495 | $344,495 |
| 2019 | $190,689 | $150,000 | $0 | $340,689 | $340,689 |
| 2018 | $191,307 | $130,000 | $0 | $321,307 | $321,307 |
| 2017 | $175,870 | $110,000 | $0 | $285,870 | $285,870 |
| 2016 | $178,313 | $90,000 | $0 | $268,313 | $268,313 |
| 2015 | $180,757 | $70,000 | $0 | $250,757 | $250,757 |
| 2014 | $183,199 | $55,000 | $0 | $238,199 | $238,199 |
| 2013 | $185,641 | $55,000 | $0 | $240,641 | $240,641 |
| 2012 | $188,084 | $60,000 | $0 | $248,084 | $248,084 |
| 2011 | $190,990 | $50,000 | $0 | $240,990 | $240,990 |
| 2010 | $200,954 | $50,000 | $0 | $250,954 | $250,954 |
| 2009 | $209,609 | $60,000 | $0 | $269,609 | $269,609 |
| 2008 | $212,199 | $72,000 | $0 | $284,199 | $284,199 |
| 2007 | $214,790 | $72,000 | $0 | $286,790 | $286,790 |
Deed and Sales History
| 1 | 06/01/1979 | WD | Warranty Deed | PURNELL, LOUIS S | BELLI, WILLIAM J | | | $82,400.00 | 93123 | 354735 |
| 2 | 01/01/1900 | OTHER | Other - Misc. Documents | Unknown | PURNELL, LOUIS S | | | $0.00 | 0 | 0 |
Payout Agreement
| No payout information available.. |