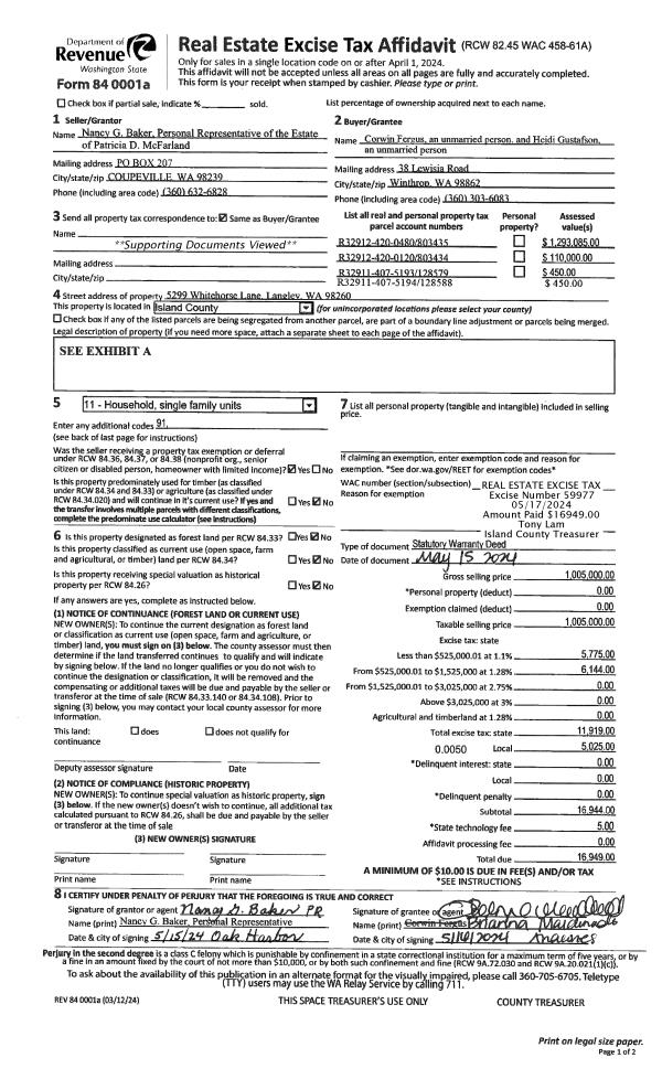
Property
Account |
| Property ID: | 229531 | Abbreviated Legal Description: | CAST HILLS 2 LOT 34 EX E25' BLA SP 9-87 AF#87016187 V2 SP P144 |
| Geographic ID: | S6340-02-00034-0 | Agent Code: | |
| Type: | Real | | |
| Tax Area: | 100 - APPRAISER-OH Schl Dist, in OH | Land Use Code | 11 |
| Open Space: | N | DFL | N |
| Historic Property: | N | Remodel Property: | N |
| Multi-Family Redevelopment: | N | | |
| Township: | | Section: | |
| Range: | |
Location |
| Address: | 898 SW FAIRHAVEN DR OAK HARBOR, WA 98277 | Mapsco: | |
| Neighborhood: | Cycle 1 | Map ID: | 93 |
| Neighborhood CD: | 1 |
Owner |
| Name: | SCHIFFMAN, STEPHEN W | Owner ID: | 75142 |
| Mailing Address: | GRACE R SCHIFFMAN 223 FLINT CREEK DR RICHMOND HILL, GA 31324-3716 | % Ownership: | 100.0000000000% |
| | | Exemptions: | |
Taxes and Assessment Details
Values
| (+) Improvement Homesite Value: | + | $0 | |
| (+) Improvement Non-Homesite Value: | + | $368,469 | |
| (+) Land Homesite Value: | + | $0 | |
| (+) Land Non-Homesite Value: | + | $210,000 | |
| (+) Curr Use (HS): | + | $0 | $0 |
| (+) Curr Use (NHS): | + | $0 | $0 |
| | | -------------------------- | |
| (=) Market Value: | = | $578,469 | |
| (–) Productivity Loss: | – | $0 | |
| | | -------------------------- | |
| (=) Subtotal: | = | $578,469 | |
| (+) Senior Appraised Value: | + | $0 | |
| (+) Non-Senior Appraised Value: | + | $578,469 | |
| | | -------------------------- | |
| (=) Total Appraised Value: | = | $578,469 | |
| (–) Senior Exemption Loss: | – | $0 | |
| (–) Exemption Loss: | – | $0 | |
| | | -------------------------- | |
| (=) Taxable Value: | = | $578,469 | |
Taxing Jurisdiction
| Owner: | SCHIFFMAN, STEPHEN W | | |
| % Ownership: | 100.0000000000% | | |
| Total Value: | $578,469 | | |
| Tax Area: | 100 - APPRAISER-OH Schl Dist, in OH |
| CF | Conservation Futures | 0.0316035091 | $578,469 | $578,469 | $18.28 | | |
| CEM1 | Cemetery #1 | 0.0040320932 | $578,469 | $578,469 | $2.33 | | |
| COH | City of Oak Harbor | 2.3001546061 | $578,469 | $578,469 | $1,330.57 | | |
| OAKBOND | City of Oak Harbor BOND | 0.1926904192 | $578,469 | $578,469 | $111.47 | | |
| HOBOND | Hospital BOND | 0.1910887512 | $578,469 | $578,469 | $110.54 | | |
| HOGEN | Hospital GEN | 0.3902502903 | $578,469 | $578,469 | $225.75 | | |
| CE | County Current Expense | 0.3708482477 | $578,469 | $578,469 | $214.52 | | |
| ISLANDEMS | Hospital GEN (EMS) | 0.5000000000 | $578,469 | $578,469 | $289.23 | | |
| LIB | Library Sno-Isle GEN | 0.3153421757 | $578,469 | $578,469 | $182.42 | | |
| NWHIDPRMT | P & R N Whidbey GEN | 0.2004466701 | $578,469 | $578,469 | $115.95 | | |
| SCH201MO | School 201 Enrichment | 1.8559231640 | $578,469 | $578,469 | $1,073.59 | | |
| ST | State School | 1.3035497053 | $578,469 | $578,469 | $754.06 | | |
| ST2 | State School Part 2 | 0.8169543533 | $578,469 | $578,469 | $472.58 | | |
| | Total Tax Rate: | 8.4728839852 | | | | | |
| | | | | Taxes w/Current Exemptions: | $4,901.29 | | |
| | | | | Taxes w/o Exemptions: | $4,901.29 | | |
Improvement / Building
| Improvement #1: | RESIDENTIAL | State Code: | Y | 3095.0 sqft | Value: | $368,469 |
| Bathrooms: | 3.5 | Bedrooms: | 5 | | Ceiling: | DRYWALL PAINTED | Exterior Wall/Cover: | CEMENT FIBER | | Floor Covering: | CARPET/VINYL 80-20 | Floor Structure: | WOOD W/SUBFLOOR | | Foundation: | CONCRETE | Heating: | FHA GAS | | Interior Finish: | DRYWALL PAINT | Plumbing Fixture Cnt: | 14 | | Roof Slope: | 4" IN 12" | Roof Structure/Cover: | CJ ASPHALT |
|
| | Type | Description | Class CD | Sub Class CD | Year Built | Area |
| | BAS | BASE/MAIN FLOOR | 3 | 0 | 1990 | 1202.0 |
| | OP1 | OPEN PORCH SLAB | 3 | 0 | 1990 | 367.0 |
| | OP3 | OPEN PORCH W/ROOF | 3 | 0 | 1990 | 40.0 |
| | AGR | ATTACHED GARAGE | 3 | 0 | 1990 | 572.0 |
| | UPS | UPPER STORY | 3 | 0 | 1990 | 1155.0 |
| | OWP | OPEN WOOD PORCH W/STEPS | 3 | 0 | 1990 | 396.0 |
| | DWN | DOWNSTAIRS LIVING AREA | 3 | 0 | 1990 | 738.0 |
Sketch
Property Image
Land
| 1 | 15 | SQ (12001-21780) | 0.0000 | 0.00 | 0.00 | 0.00 | 1.00 | $210,000 | $0 |
Roll Value History
| 2026 | N/A | N/A | N/A | N/A | N/A |
| 2025 | $368,469 | $210,000 | $0 | $578,469 | $578,469 |
| 2024 | $373,366 | $210,000 | $0 | $583,366 | $583,366 |
| 2023 | $367,460 | $210,000 | $0 | $577,460 | $577,460 |
| 2022 | $337,187 | $200,000 | $0 | $537,187 | $537,187 |
| 2021 | $297,050 | $150,000 | $0 | $447,050 | $447,050 |
| 2020 | $290,178 | $125,000 | $0 | $415,178 | $415,178 |
| 2019 | $232,788 | $170,000 | $0 | $402,788 | $402,788 |
| 2018 | $233,525 | $150,000 | $0 | $383,525 | $383,525 |
| 2017 | $234,983 | $125,000 | $0 | $359,983 | $359,983 |
| 2016 | $237,920 | $100,000 | $0 | $337,920 | $337,920 |
| 2015 | $240,858 | $75,000 | $0 | $315,858 | $315,858 |
| 2014 | $243,796 | $75,000 | $0 | $318,796 | $318,796 |
| 2013 | $246,733 | $75,000 | $0 | $321,733 | $321,733 |
| 2012 | $249,670 | $75,000 | $0 | $324,670 | $324,670 |
| 2011 | $267,860 | $75,000 | $0 | $342,860 | $342,860 |
| 2010 | $274,769 | $75,000 | $0 | $349,769 | $349,769 |
| 2009 | $286,492 | $85,000 | $0 | $371,492 | $371,492 |
| 2008 | $289,940 | $85,000 | $0 | $374,940 | $374,940 |
| 2007 | $293,336 | $85,000 | $0 | $378,336 | $378,336 |
Deed and Sales History
| 1 | 08/14/2002 | WD | Warranty Deed | COEUILLE, JOHN L | SCHIFFMAN, STEPHEN W | | | $295,000.00 | 23228 | 4028639 |
| 2 | 05/21/2001 | WD | Warranty Deed | MOUW, H G | COEUILLE, JOHN L | | | $285,000.00 | 11827 | 20033034 |
| 3 | 08/01/1993 | WD | Warranty Deed | SALTER, LARRY G | MOUW, H G | | | $242,500.00 | 33259 | 93016951 |
| 4 | 12/01/1989 | WD | Warranty Deed | BODIN, ROBERT C | SALTER, LARRY G | | | $160,990.00 | 96027 | 89019405 |
| 5 | 07/01/1989 | WD | Warranty Deed | O'KELLEY, JANE | BODIN, ROBERT C | | | $39,500.00 | 92941 | 89009883 |
| 6 | 11/01/1988 | OTHER | Other - Misc. Documents | ZYLSTRA, JANE | O'KELLEY, JANE | | | $0.00 | 62929 | 0 |
| 7 | 11/01/1987 | OTHER | Other - Misc. Documents | ZYLSTRA, JANE | ZYLSTRA, JANE | | | $0.00 | 62440 | 87016187 |
| 8 | 05/01/1985 | DECREE | Divorce Decree/Legal Separation | ZYLSTRA, TED D | ZYLSTRA, JANE | | | $0.00 | 51141 | 85004644 |
| 9 | 01/01/1900 | OTHER | Other - Misc. Documents | Unknown | ZYLSTRA, TED D | | | $0.00 | 0 | 0 |
Payout Agreement
| No payout information available.. |