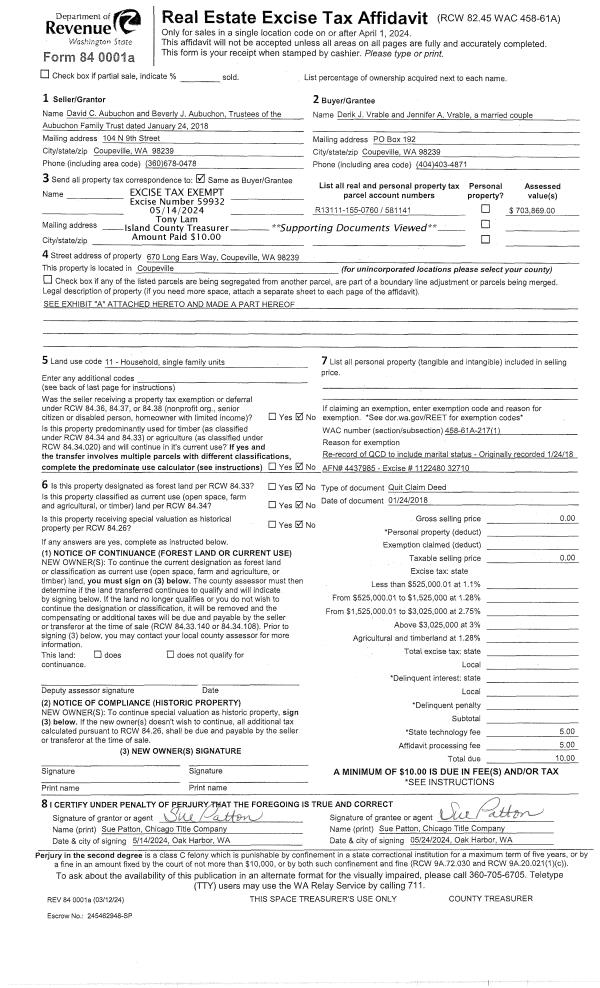
Property
Account |
| Property ID: | 229666 | Abbreviated Legal Description: | CAST HILLS 3 LOT 11 |
| Geographic ID: | S6340-03-00011-0 | Agent Code: | |
| Type: | Real | | |
| Tax Area: | 100 - APPRAISER-OH Schl Dist, in OH | Land Use Code | 11 |
| Open Space: | N | DFL | N |
| Historic Property: | N | Remodel Property: | N |
| Multi-Family Redevelopment: | N | | |
| Township: | | Section: | |
| Range: | |
Location |
| Address: | 927 SW CASTILIAN DR OAK HARBOR, WA 98277 | Mapsco: | |
| Neighborhood: | Cycle 1 | Map ID: | 92 |
| Neighborhood CD: | 1 |
Owner |
| Name: | JANSEN, JOSHUA BYRON | Owner ID: | 301320 |
| Mailing Address: | MEGAN JENEE JAGGER 691 SW BARRINGTON DR OAK HARBOR, WA 98277 | % Ownership: | 100.0000000000% |
| | | Exemptions: | |
Taxes and Assessment Details
Values
| (+) Improvement Homesite Value: | + | $0 | |
| (+) Improvement Non-Homesite Value: | + | $303,306 | |
| (+) Land Homesite Value: | + | $0 | |
| (+) Land Non-Homesite Value: | + | $200,000 | |
| (+) Curr Use (HS): | + | $0 | $0 |
| (+) Curr Use (NHS): | + | $0 | $0 |
| | | -------------------------- | |
| (=) Market Value: | = | $503,306 | |
| (–) Productivity Loss: | – | $0 | |
| | | -------------------------- | |
| (=) Subtotal: | = | $503,306 | |
| (+) Senior Appraised Value: | + | $0 | |
| (+) Non-Senior Appraised Value: | + | $503,306 | |
| | | -------------------------- | |
| (=) Total Appraised Value: | = | $503,306 | |
| (–) Senior Exemption Loss: | – | $0 | |
| (–) Exemption Loss: | – | $0 | |
| | | -------------------------- | |
| (=) Taxable Value: | = | $503,306 | |
Taxing Jurisdiction
| Owner: | JANSEN, JOSHUA BYRON | | |
| % Ownership: | 100.0000000000% | | |
| Total Value: | $503,306 | | |
| Tax Area: | 100 - APPRAISER-OH Schl Dist, in OH |
| CF | Conservation Futures | 0.0316035091 | $503,306 | $503,306 | $15.91 | | |
| CEM1 | Cemetery #1 | 0.0040320932 | $503,306 | $503,306 | $2.03 | | |
| COH | City of Oak Harbor | 2.3001546061 | $503,306 | $503,306 | $1,157.68 | | |
| OAKBOND | City of Oak Harbor BOND | 0.1926904192 | $503,306 | $503,306 | $96.98 | | |
| HOBOND | Hospital BOND | 0.1910887512 | $503,306 | $503,306 | $96.18 | | |
| HOGEN | Hospital GEN | 0.3902502903 | $503,306 | $503,306 | $196.42 | | |
| CE | County Current Expense | 0.3708482477 | $503,306 | $503,306 | $186.65 | | |
| ISLANDEMS | Hospital GEN (EMS) | 0.5000000000 | $503,306 | $503,306 | $251.65 | | |
| LIB | Library Sno-Isle GEN | 0.3153421757 | $503,306 | $503,306 | $158.71 | | |
| NWHIDPRMT | P & R N Whidbey GEN | 0.2004466701 | $503,306 | $503,306 | $100.89 | | |
| SCH201MO | School 201 Enrichment | 1.8559231640 | $503,306 | $503,306 | $934.10 | | |
| ST | State School | 1.3035497053 | $503,306 | $503,306 | $656.08 | | |
| ST2 | State School Part 2 | 0.8169543533 | $503,306 | $503,306 | $411.18 | | |
| | Total Tax Rate: | 8.4728839852 | | | | | |
| | | | | Taxes w/Current Exemptions: | $4,264.46 | | |
| | | | | Taxes w/o Exemptions: | $4,264.46 | | |
Improvement / Building
| Improvement #1: | RESIDENTIAL | State Code: | Y | 2003.5 sqft | Value: | $303,306 |
| Bathrooms: | 2.5 | Bedrooms: | 3 | | Ceiling: | DRYWALL PAINTED | Exterior Wall/Cover: | PLY/HARDBOARD T-111 | | Floor Covering: | CERAMIC TILE/CPT 40-60 | Floor Structure: | WOOD W/SUBFLOOR | | Foundation: | CONCRETE | Heating: | FHA GAS | | Interior Finish: | DRYWALL PAINT | Plumbing Fixture Cnt: | 11 | | Roof Slope: | 6" IN 12" | Roof Structure/Cover: | CJ WOOD SHAKES |
|
| | Type | Description | Class CD | Sub Class CD | Year Built | Area |
| | BAS | BASE/MAIN FLOOR | 3 | 0 | 1976 | 1044.0 |
| | OWP | OPEN WOOD PORCH W/STEPS | 3 | 0 | 1976 | 320.0 |
| | AGR | ATTACHED GARAGE | 3 | 0 | 1976 | 275.0 |
| | BIG | BUILT IN GARAGE | 3 | 0 | 1976 | 362.5 |
| | LOF | LOFT | 3 | 0 | 1976 | 330.0 |
| | OWR | OPEN WOOD PORCH W/STEPS/ROOF | 3 | 0 | 1976 | 35.0 |
| | UPS | UPPER STORY | 3 | 0 | 1976 | 629.5 |
Sketch
Property Image
Land
| 1 | 13 | SQ (06001-08000) | 0.0000 | 0.00 | 0.00 | 0.00 | 1.00 | $200,000 | $0 |
Roll Value History
| 2026 | N/A | N/A | N/A | N/A | N/A |
| 2025 | $303,306 | $200,000 | $0 | $503,306 | $503,306 |
| 2024 | $307,134 | $180,000 | $0 | $487,134 | $487,134 |
| 2023 | $303,306 | $190,000 | $0 | $493,306 | $493,306 |
| 2022 | $278,125 | $180,000 | $0 | $458,125 | $458,125 |
| 2021 | $244,868 | $130,000 | $0 | $374,868 | $374,868 |
| 2020 | $238,866 | $100,000 | $0 | $338,866 | $338,866 |
| 2019 | $182,304 | $150,000 | $0 | $332,304 | $332,304 |
| 2018 | $182,852 | $130,000 | $0 | $312,852 | $312,852 |
| 2017 | $179,555 | $110,000 | $0 | $289,555 | $289,555 |
| 2016 | $181,745 | $90,000 | $0 | $271,745 | $271,745 |
| 2015 | $172,986 | $70,000 | $0 | $242,986 | $242,986 |
| 2014 | $175,178 | $55,000 | $0 | $230,178 | $230,178 |
| 2013 | $177,368 | $55,000 | $0 | $232,368 | $232,368 |
| 2012 | $179,555 | $60,000 | $0 | $239,555 | $239,555 |
| 2011 | $196,826 | $50,000 | $0 | $246,826 | $246,826 |
| 2010 | $205,983 | $50,000 | $0 | $255,983 | $255,983 |
| 2009 | $214,695 | $60,000 | $0 | $274,695 | $274,695 |
| 2008 | $217,168 | $72,000 | $0 | $289,168 | $289,168 |
| 2007 | $219,642 | $72,000 | $0 | $291,642 | $291,642 |
Deed and Sales History
| 1 | 09/21/2021 | WD | Warranty Deed | LYKINS, JAMES THOMAS | JANSEN, JOSHUA BYRON | | | $470,000.00 | 50191 | 4530019 |
| 2 | 12/23/2015 | WD | Warranty Deed | WASINGER, GREGORY D | LYKINS, JAMES THOMAS | | | $299,900.00 | 22779 | 4392285 |
Payout Agreement
| No payout information available.. |