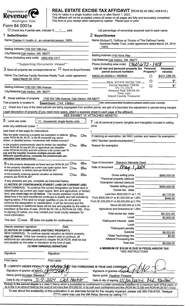
Property
Account |
| Property ID: | 229737 | Abbreviated Legal Description: | CAST HILLS 3 LOT 18 |
| Geographic ID: | S6340-03-00018-0 | Agent Code: | |
| Type: | Real | | |
| Tax Area: | 100 - APPRAISER-OH Schl Dist, in OH | Land Use Code | 11 |
| Open Space: | N | DFL | N |
| Historic Property: | N | Remodel Property: | N |
| Multi-Family Redevelopment: | N | | |
| Township: | | Section: | |
| Range: | |
Location |
| Address: | 968 SW INGLEWOOD LN OAK HARBOR, WA 98277 | Mapsco: | |
| Neighborhood: | Cycle 1 | Map ID: | 92 |
| Neighborhood CD: | 1 |
Owner |
| Name: | THE REVOCABLE LIVING TRUST OF CAROLE RUTH EVANS | Owner ID: | 315417 |
| Mailing Address: | 968 S.W. INGLEWOOD LN OAK HARBOR, WA 98277 | % Ownership: | 100.0000000000% |
| | | Exemptions: | |
Taxes and Assessment Details
Values
| (+) Improvement Homesite Value: | + | $0 | |
| (+) Improvement Non-Homesite Value: | + | $256,541 | |
| (+) Land Homesite Value: | + | $0 | |
| (+) Land Non-Homesite Value: | + | $200,000 | |
| (+) Curr Use (HS): | + | $0 | $0 |
| (+) Curr Use (NHS): | + | $0 | $0 |
| | | -------------------------- | |
| (=) Market Value: | = | $456,541 | |
| (–) Productivity Loss: | – | $0 | |
| | | -------------------------- | |
| (=) Subtotal: | = | $456,541 | |
| (+) Senior Appraised Value: | + | $0 | |
| (+) Non-Senior Appraised Value: | + | $456,541 | |
| | | -------------------------- | |
| (=) Total Appraised Value: | = | $456,541 | |
| (–) Senior Exemption Loss: | – | $0 | |
| (–) Exemption Loss: | – | $0 | |
| | | -------------------------- | |
| (=) Taxable Value: | = | $456,541 | |
Taxing Jurisdiction
| Owner: | THE REVOCABLE LIVING TRUST OF CAROLE RUTH EVANS | | |
| % Ownership: | 100.0000000000% | | |
| Total Value: | $456,541 | | |
| Tax Area: | 100 - APPRAISER-OH Schl Dist, in OH |
| CF | Conservation Futures | 0.0316035091 | $456,541 | $456,541 | $14.43 | | |
| CEM1 | Cemetery #1 | 0.0040320932 | $456,541 | $456,541 | $1.84 | | |
| COH | City of Oak Harbor | 2.3001546061 | $456,541 | $456,541 | $1,050.11 | | |
| OAKBOND | City of Oak Harbor BOND | 0.1926904192 | $456,541 | $456,541 | $87.97 | | |
| HOBOND | Hospital BOND | 0.1910887512 | $456,541 | $456,541 | $87.24 | | |
| HOGEN | Hospital GEN | 0.3902502903 | $456,541 | $456,541 | $178.17 | | |
| CE | County Current Expense | 0.3708482477 | $456,541 | $456,541 | $169.31 | | |
| ISLANDEMS | Hospital GEN (EMS) | 0.5000000000 | $456,541 | $456,541 | $228.27 | | |
| LIB | Library Sno-Isle GEN | 0.3153421757 | $456,541 | $456,541 | $143.97 | | |
| NWHIDPRMT | P & R N Whidbey GEN | 0.2004466701 | $456,541 | $456,541 | $91.51 | | |
| SCH201MO | School 201 Enrichment | 1.8559231640 | $456,541 | $456,541 | $847.31 | | |
| ST | State School | 1.3035497053 | $456,541 | $456,541 | $595.12 | | |
| ST2 | State School Part 2 | 0.8169543533 | $456,541 | $456,541 | $372.97 | | |
| | Total Tax Rate: | 8.4728839852 | | | | | |
| | | | | Taxes w/Current Exemptions: | $3,868.22 | | |
| | | | | Taxes w/o Exemptions: | $3,868.22 | | |
Improvement / Building
| Improvement #1: | RESIDENTIAL | State Code: | Y | 1488.0 sqft | Value: | $256,541 |
| Bathrooms: | 1.5 | Bedrooms: | 3 | | Ceiling: | DRYWALL PAINTED | Exterior Wall/Cover: | WOOD SIDING | | Floor Covering: | CERAMIC TILE/HWD 40/60 | Floor Structure: | WOOD W/SUBFLOOR | | Foundation: | CONCRETE | Heating: | BASEBOARD ELECTRIC | | Interior Finish: | DRYWALL PAINT | Plumbing Fixture Cnt: | 9 | | Roof Slope: | 12" IN 12" | Roof Structure/Cover: | CJ ASPHALT |
|
| | Type | Description | Class CD | Sub Class CD | Year Built | Area |
| | BAS | BASE/MAIN FLOOR | 3 | 0 | 1976 | 816.0 |
| | OP1 | OPEN PORCH SLAB | 3 | 0 | 1976 | 85.0 |
| | AGR | ATTACHED GARAGE | 3 | 0 | 1976 | 400.0 |
| | OWP | OPEN WOOD PORCH W/STEPS | 3 | 0 | 1976 | 478.5 |
| | UPH | HALF STORY | 3 | 0 | 1976 | 672.0 |
| | ENP | ENCLOSED PORCH | 3 | 0 | 1976 | 120.0 |
| | OWP | OPEN WOOD PORCH W/STEPS | 3 | 0 | 1976 | 564.6 |
Sketch
Property Image
Land
| 1 | 13 | SQ (06001-08000) | 0.0000 | 0.00 | 0.00 | 0.00 | 1.00 | $200,000 | $0 |
Roll Value History
| 2026 | N/A | N/A | N/A | N/A | N/A |
| 2025 | $256,541 | $200,000 | $0 | $456,541 | $456,541 |
| 2024 | $264,757 | $180,000 | $0 | $444,757 | $444,757 |
| 2023 | $261,391 | $190,000 | $0 | $451,391 | $451,391 |
| 2022 | $239,876 | $180,000 | $0 | $419,876 | $419,876 |
| 2021 | $211,439 | $130,000 | $0 | $341,439 | $341,439 |
| 2020 | $206,317 | $100,000 | $0 | $306,317 | $306,317 |
| 2019 | $151,174 | $150,000 | $0 | $301,174 | $301,174 |
| 2018 | $151,633 | $130,000 | $0 | $281,633 | $281,633 |
| 2017 | $143,344 | $110,000 | $0 | $253,344 | $253,344 |
| 2016 | $145,186 | $90,000 | $0 | $235,186 | $235,186 |
| 2015 | $147,029 | $70,000 | $0 | $217,029 | $217,029 |
| 2014 | $148,870 | $55,000 | $0 | $203,870 | $203,870 |
| 2013 | $150,712 | $55,000 | $0 | $205,712 | $205,712 |
| 2012 | $152,554 | $60,000 | $0 | $212,554 | $212,554 |
| 2011 | $162,623 | $50,000 | $0 | $212,623 | $212,623 |
| 2010 | $172,642 | $50,000 | $0 | $222,642 | $222,642 |
| 2009 | $179,894 | $60,000 | $0 | $239,894 | $239,894 |
| 2008 | $182,258 | $72,000 | $0 | $254,258 | $254,258 |
| 2007 | $184,666 | $72,000 | $0 | $256,666 | $256,666 |
Deed and Sales History
| 1 | 08/02/2024 | QCD | Quit Claim Deed | EVANS, CAROLE R | THE REVOCABLE LIVING TRUST OF CAROLE RUTH EVANS | | | $0.00 | 62519 | 4582056 |
| 2 | 03/17/2003 | 5 | DNU - Marriage License/Name Change | EVANS, LLOYD D | EVANS, LLOYD D | | | $0.00 | 69744 | 0 |
| 3 | 01/01/1900 | OTHER | Other - Misc. Documents | Unknown | EVANS, LLOYD D | | | $0.00 | 0 | 0 |
Payout Agreement
| No payout information available.. |