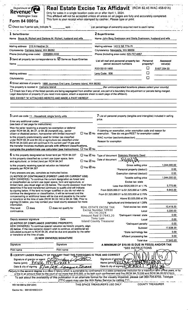
Property
Account |
| Property ID: | 229835 | Abbreviated Legal Description: | CAST HILLS 4 LOT 1 |
| Geographic ID: | S6340-04-00001-0 | Agent Code: | |
| Type: | Real | | |
| Tax Area: | 100 - APPRAISER-OH Schl Dist, in OH | Land Use Code | 11 |
| Open Space: | N | DFL | N |
| Historic Property: | N | Remodel Property: | N |
| Multi-Family Redevelopment: | N | | |
| Township: | | Section: | |
| Range: | |
Location |
| Address: | 842 SW KINGMA CT OAK HARBOR, WA 98277 | Mapsco: | |
| Neighborhood: | Cycle 1 | Map ID: | 92 |
| Neighborhood CD: | 1 |
Owner |
| Name: | HAMMONDS, ROBERT W | Owner ID: | 277429 |
| Mailing Address: | TRACI L KING 842 SW KINGMA COURT OAK HARBOR, WA 98277 | % Ownership: | 100.0000000000% |
| | | Exemptions: | |
Taxes and Assessment Details
Values
| (+) Improvement Homesite Value: | + | $0 | |
| (+) Improvement Non-Homesite Value: | + | $220,966 | |
| (+) Land Homesite Value: | + | $0 | |
| (+) Land Non-Homesite Value: | + | $200,000 | |
| (+) Curr Use (HS): | + | $0 | $0 |
| (+) Curr Use (NHS): | + | $0 | $0 |
| | | -------------------------- | |
| (=) Market Value: | = | $420,966 | |
| (–) Productivity Loss: | – | $0 | |
| | | -------------------------- | |
| (=) Subtotal: | = | $420,966 | |
| (+) Senior Appraised Value: | + | $0 | |
| (+) Non-Senior Appraised Value: | + | $420,966 | |
| | | -------------------------- | |
| (=) Total Appraised Value: | = | $420,966 | |
| (–) Senior Exemption Loss: | – | $0 | |
| (–) Exemption Loss: | – | $0 | |
| | | -------------------------- | |
| (=) Taxable Value: | = | $420,966 | |
Taxing Jurisdiction
| Owner: | HAMMONDS, ROBERT W | | |
| % Ownership: | 100.0000000000% | | |
| Total Value: | $420,966 | | |
| Tax Area: | 100 - APPRAISER-OH Schl Dist, in OH |
| CF | Conservation Futures | 0.0316035091 | $420,966 | $420,966 | $13.30 | | |
| CEM1 | Cemetery #1 | 0.0040320932 | $420,966 | $420,966 | $1.70 | | |
| COH | City of Oak Harbor | 2.3001546061 | $420,966 | $420,966 | $968.29 | | |
| OAKBOND | City of Oak Harbor BOND | 0.1926904192 | $420,966 | $420,966 | $81.12 | | |
| HOBOND | Hospital BOND | 0.1910887512 | $420,966 | $420,966 | $80.44 | | |
| HOGEN | Hospital GEN | 0.3902502903 | $420,966 | $420,966 | $164.28 | | |
| CE | County Current Expense | 0.3708482477 | $420,966 | $420,966 | $156.11 | | |
| ISLANDEMS | Hospital GEN (EMS) | 0.5000000000 | $420,966 | $420,966 | $210.48 | | |
| LIB | Library Sno-Isle GEN | 0.3153421757 | $420,966 | $420,966 | $132.75 | | |
| NWHIDPRMT | P & R N Whidbey GEN | 0.2004466701 | $420,966 | $420,966 | $84.38 | | |
| SCH201MO | School 201 Enrichment | 1.8559231640 | $420,966 | $420,966 | $781.28 | | |
| ST | State School | 1.3035497053 | $420,966 | $420,966 | $548.75 | | |
| ST2 | State School Part 2 | 0.8169543533 | $420,966 | $420,966 | $343.91 | | |
| | Total Tax Rate: | 8.4728839852 | | | | | |
| | | | | Taxes w/Current Exemptions: | $3,566.79 | | |
| | | | | Taxes w/o Exemptions: | $3,566.79 | | |
Improvement / Building
| Improvement #1: | RESIDENTIAL | State Code: | Y | 1288.0 sqft | Value: | $220,966 |
| Bathrooms: | 1.75 | Bedrooms: | 3 | | Ceiling: | DRY WALL SPRAYED | Exterior Wall/Cover: | PLY/HARDBOARD T-111 | | Floor Covering: | VINYL 100% | Floor Structure: | WOOD W/SUBFLOOR | | Foundation: | CONCRETE | Heating: | WALL HEAT ELECTRIC | | Interior Finish: | DRYWALL PAINT | Plumbing Fixture Cnt: | 9 | | Roof Slope: | 4" IN 12" | Roof Structure/Cover: | CJ ASPHALT |
|
| | Type | Description | Class CD | Sub Class CD | Year Built | Area |
| | BAS | BASE/MAIN FLOOR | 3 | 0 | 1977 | 1288.0 |
| | AGR | ATTACHED GARAGE | 3 | 0 | 1977 | 528.0 |
| | OWP | OPEN WOOD PORCH W/STEPS | 3 | 0 | 1977 | 48.0 |
Sketch
Property Image
Land
| 1 | 14 | SQ (08001-12000) | 0.0000 | 0.00 | 0.00 | 0.00 | 1.00 | $200,000 | $0 |
Roll Value History
| 2026 | N/A | N/A | N/A | N/A | N/A |
| 2025 | $220,966 | $200,000 | $0 | $420,966 | $420,966 |
| 2024 | $223,902 | $180,000 | $0 | $403,902 | $403,902 |
| 2023 | $220,966 | $190,000 | $0 | $410,966 | $410,966 |
| 2022 | $202,742 | $180,000 | $0 | $382,742 | $382,742 |
| 2021 | $178,605 | $130,000 | $0 | $308,605 | $308,605 |
| 2020 | $173,925 | $100,000 | $0 | $273,925 | $273,925 |
| 2019 | $124,358 | $150,000 | $0 | $274,358 | $274,358 |
| 2018 | $124,751 | $130,000 | $0 | $254,751 | $254,751 |
| 2017 | $112,399 | $110,000 | $0 | $222,399 | $222,399 |
| 2016 | $105,908 | $90,000 | $0 | $195,908 | $195,908 |
| 2015 | $107,443 | $70,000 | $0 | $177,443 | $177,443 |
| 2014 | $108,978 | $55,000 | $0 | $163,978 | $51,510 |
| 2013 | $110,511 | $55,000 | $0 | $165,511 | $51,510 |
| 2012 | $112,046 | $60,000 | $0 | $172,046 | $51,510 |
| 2011 | $120,289 | $50,000 | $0 | $170,289 | $51,510 |
| 2010 | $127,682 | $50,000 | $0 | $177,682 | $51,510 |
| 2009 | $133,338 | $60,000 | $0 | $193,338 | $51,510 |
| 2008 | $135,119 | $72,000 | $0 | $207,119 | $51,510 |
| 2007 | $136,965 | $72,000 | $0 | $208,965 | $51,510 |
Deed and Sales History
| 1 | 11/02/2016 | WD | Warranty Deed | PYNE, WALTER C | HAMMONDS, ROBERT W | | | $241,000.00 | 26813 | 4410890 |
| 2 | 01/13/2015 | QCD | Quit Claim Deed | PYNE, RUTH M | PYNE, WALTER C | | | $0.00 | 18260 | 4372032 |
| 3 | 05/02/2002 | 5 | DNU - Marriage License/Name Change | PYNE, ARTHUR E | PYNE, RUTH M | | | $0.00 | 69411 | 0 |
| 4 | 04/01/1980 | WD | Warranty Deed | RAUEN, MICHAEL J | PYNE, ARTHUR E | | | $62,500.00 | 1307 | 367770 |
| 5 | 09/01/1979 | WD | Warranty Deed | SCHROEDER, LINDA J | RAUEN, MICHAEL J | | | $56,500.00 | 94746 | 359453 |
| 6 | 08/01/1978 | OTHER | Other - Misc. Documents | Unknown | SCHROEDER, LINDA J | | | $44,500.00 | 841300 | 3387210 |
Payout Agreement
| No payout information available.. |