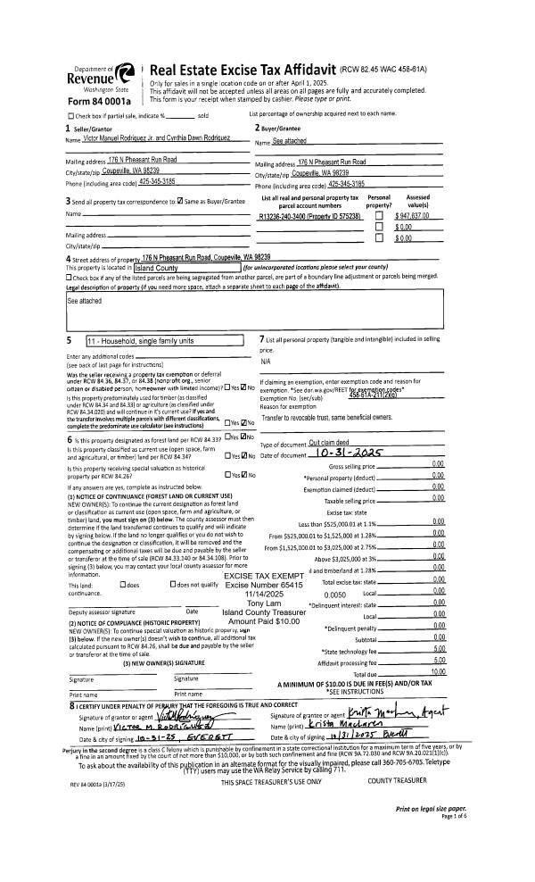
Property
Account |
| Property ID: | 22987 | Abbreviated Legal Description: | 25 - IN SE SW SEC 21 & GL2 SEC 28-32-1E: BG SWCR SEC 21 E1913.50' S1*W TO NLN PENN COVE RD TPB N1*E335' W260' S1*W TO NLN PENN COVE RD E ALG SD RD TPB EX E32 .5' |
| Geographic ID: | R13221-016-1760 | Agent Code: | |
| Type: | Real | | |
| Tax Area: | 332 - APPRAISER-Cpvl Schl Dist, Special Dist, improved, greater than 1 acre | Land Use Code | 11 |
| Open Space: | N | DFL | N |
| Historic Property: | N | Remodel Property: | N |
| Multi-Family Redevelopment: | N | | |
| Township: | 32 | Section: | 21 |
| Range: | R1 |
Location |
| Address: | 1460 PENN COVE RD OAK HARBOR, WA 98277 | Mapsco: | |
| Neighborhood: | Cycle 2 | Map ID: | 149 |
| Neighborhood CD: | 2 |
Owner |
| Name: | HUMPHREY, CARL | Owner ID: | 158617 |
| Mailing Address: | LESLIE HUMPHREY 1460 PENN COVE RD OAK HARBOR, WA 98277-7614 | % Ownership: | 100.0000000000% |
| | | Exemptions: | |
Taxes and Assessment Details
Values
| (+) Improvement Homesite Value: | + | $0 | |
| (+) Improvement Non-Homesite Value: | + | $44,451 | |
| (+) Land Homesite Value: | + | $0 | |
| (+) Land Non-Homesite Value: | + | $283,000 | |
| (+) Curr Use (HS): | + | $0 | $0 |
| (+) Curr Use (NHS): | + | $0 | $0 |
| | | -------------------------- | |
| (=) Market Value: | = | $327,451 | |
| (–) Productivity Loss: | – | $0 | |
| | | -------------------------- | |
| (=) Subtotal: | = | $327,451 | |
| (+) Senior Appraised Value: | + | $0 | |
| (+) Non-Senior Appraised Value: | + | $327,451 | |
| | | -------------------------- | |
| (=) Total Appraised Value: | = | $327,451 | |
| (–) Senior Exemption Loss: | – | $0 | |
| (–) Exemption Loss: | – | $0 | |
| | | -------------------------- | |
| (=) Taxable Value: | = | $327,451 | |
Taxing Jurisdiction
| Owner: | HUMPHREY, CARL | | |
| % Ownership: | 100.0000000000% | | |
| Total Value: | $327,451 | | |
| Tax Area: | 332 - APPRAISER-Cpvl Schl Dist, Special Dist, improved, greater than 1 acre |
| CF | Conservation Futures | 0.0316035091 | $327,451 | $327,451 | $10.35 | | |
| CEM2 | Cemetery #2 | 0.0095056933 | $327,451 | $327,451 | $3.11 | | |
| FIRE2 | Fire & Rescue Dist #2 N Whidbey GEN | 0.5475949600 | $327,451 | $327,451 | $179.31 | | |
| HOBOND | Hospital BOND | 0.1910887512 | $327,451 | $327,451 | $62.57 | | |
| HOGEN | Hospital GEN | 0.3902502903 | $327,451 | $327,451 | $127.79 | | |
| CE | County Current Expense | 0.3708482477 | $327,451 | $327,451 | $121.43 | | |
| CR | County Roads | 0.4584763726 | $327,451 | $327,451 | $150.13 | | |
| ISLANDEMS | Hospital GEN (EMS) | 0.5000000000 | $327,451 | $327,451 | $163.73 | | |
| LIB | Library Sno-Isle GEN | 0.3153421757 | $327,451 | $327,451 | $103.26 | | |
| LIBCAP | Library Sno-Isle BOND (Cap Fac Imp Area) | 0.0543427938 | $327,451 | $327,451 | $17.79 | | |
| POCOUP | Port of Coupeville GEN | 0.1093371703 | $327,451 | $327,451 | $35.80 | | |
| POCOUPIDD | Port of Coupeville IDD | 0.3409740022 | $327,451 | $327,451 | $111.65 | | |
| COUPSDTECH | School 204 CP (TECH) | 0.7545480007 | $327,451 | $327,451 | $247.08 | | |
| SCH204MO | School 204 Enrichment | 0.6716186034 | $327,451 | $327,451 | $219.92 | | |
| ST | State School | 1.3035497053 | $327,451 | $327,451 | $426.85 | | |
| ST2 | State School Part 2 | 0.8169543533 | $327,451 | $327,451 | $267.51 | | |
| | Total Tax Rate: | 6.8660346289 | | | | | |
| | | | | Taxes w/Current Exemptions: | $2,248.28 | | |
| | | | | Taxes w/o Exemptions: | $2,248.28 | | |
Improvement / Building
| Improvement #1: | MANUFACTURED HOME | State Code: | Y | 1440.0 sqft | Value: | $44,451 |
| Bathrooms: | 0 | Bedrooms: | 0 | | Ceiling: | PLASTER PAINTED | Cooling: | EVAP NO DUCT | | Exterior Wall/Cover: | VINYL | Floor Covering: | CARPET 100% | | Floor Structure: | SLAB ON GRADE | Foundation: | SLAB | | Heating: | FHA ELECTRIC | Interior Finish: | PLASTER | | Plumbing Fixture Cnt: | 1 | Roof Slope: | FLAT | | Roof Structure/Cover: | CJ ALUMINIUM HEAVY |   |   |
|
| | Type | Description | Class CD | Sub Class CD | Year Built | Area |
| | BAS | BASE/MAIN FLOOR | 3 | 0 | 1973 | 1440.0 |
| | DGR | DETACHED GARAGE | 3 | 0 | 1973 | 480.0 |
| | UTY | STORAGE/UTILITY | 3 | 0 | 1973 | 144.0 |
Sketch
Property Image
Land
| 1 | HS | HOMESITE | 1.0000 | 43560.00 | 0.00 | 0.00 | 1.00 | $270,000 | $0 |
| 2 | 91 | UNDEVELOPED LAND-METES AND BOUNDS | 0.6500 | 28314.00 | 0.00 | 0.00 | 1.00 | $13,000 | $0 |
Roll Value History
| 2026 | N/A | N/A | N/A | N/A | N/A |
| 2025 | $44,451 | $283,000 | $0 | $327,451 | $327,451 |
| 2024 | $30,134 | $280,000 | $0 | $310,134 | $310,134 |
| 2023 | $30,134 | $290,000 | $0 | $320,134 | $320,134 |
| 2022 | $27,330 | $280,000 | $0 | $307,330 | $307,330 |
| 2021 | $23,835 | $180,000 | $0 | $203,835 | $203,835 |
| 2020 | $25,418 | $180,000 | $0 | $205,418 | $205,418 |
| 2019 | $21,910 | $210,000 | $0 | $231,910 | $231,910 |
| 2018 | $21,175 | $160,000 | $0 | $181,175 | $181,175 |
| 2017 | $22,423 | $150,000 | $0 | $172,423 | $172,423 |
| 2016 | $23,671 | $120,000 | $0 | $143,671 | $143,671 |
| 2015 | $24,294 | $90,000 | $0 | $114,294 | $114,294 |
| 2014 | $25,542 | $90,000 | $0 | $115,542 | $115,542 |
| 2013 | $26,165 | $102,000 | $0 | $128,165 | $128,165 |
| 2012 | $45,693 | $102,000 | $0 | $147,693 | $147,693 |
| 2011 | $46,314 | $120,000 | $0 | $166,314 | $166,314 |
| 2010 | $59,386 | $120,000 | $0 | $179,386 | $179,386 |
| 2009 | $60,943 | $105,000 | $0 | $165,943 | $165,943 |
| 2008 | $61,117 | $136,800 | $0 | $197,917 | $197,917 |
| 2007 | $61,305 | $136,800 | $0 | $198,105 | $198,105 |
Deed and Sales History
| 1 | 05/22/2001 | REC | Real Estate Contract | WALLGREN, EDWARD J | HUMPHREY, CARL | | | $109,900.00 | 11884 | 20033332 |
| 2 | 10/01/1992 | OTHER | Other - Misc. Documents | WALLGREN, EDWARD J | WALLGREN, EDWARD J | | | $19,000.00 | 23918 | 0 |
| 3 | 10/01/1992 | OTHER | Other - Misc. Documents | WALLGREN, EDWARD J | WALLGREN, EDWARD J | | | $14,000.00 | 23909 | 0 |
| 4 | 09/01/1992 | WD | Warranty Deed | O'BRIEN, JOHN | WALLGREN, EDWARD J | | | $37,000.00 | 23910 | 92018990 |
| 5 | 04/01/1983 | OTHER | Other - Misc. Documents | O'BRIEN, JOHN J | O'BRIEN, JOHN | | | $5,000.00 | 31079 | 0 |
| 6 | 04/01/1983 | OTHER | Other - Misc. Documents | O'BRIEN, JOHN | O'BRIEN, JOHN | | | $5,000.00 | 31079 | 0 |
| 7 | 01/01/1900 | OTHER | Other - Misc. Documents | Unknown | O'BRIEN, JOHN J | | | $0.00 | 0 | 0 |
Payout Agreement
| No payout information available.. |