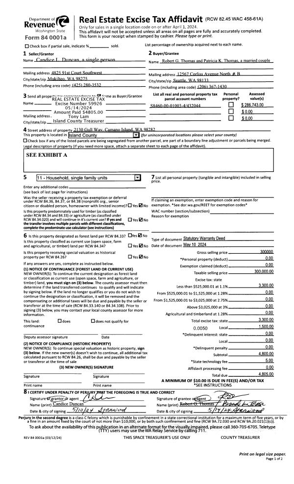
Property
Account |
| Property ID: | 229871 | Abbreviated Legal Description: | CAST HILLS 4 LOT 5 |
| Geographic ID: | S6340-04-00005-0 | Agent Code: | |
| Type: | Real | | |
| Tax Area: | 100 - APPRAISER-OH Schl Dist, in OH | Land Use Code | 11 |
| Open Space: | N | DFL | N |
| Historic Property: | N | Remodel Property: | N |
| Multi-Family Redevelopment: | N | | |
| Township: | | Section: | |
| Range: | |
Location |
| Address: | 888 SW KINGMA CT OAK HARBOR, WA 98277 | Mapsco: | |
| Neighborhood: | Cycle 1 | Map ID: | 92 |
| Neighborhood CD: | 1 |
Owner |
| Name: | MACARTHUR, LAWRENCE S | Owner ID: | 75176 |
| Mailing Address: | ISABEL A MACARTHUR 888 SW KINGMA CT OAK HARBOR, WA 98277-4558 | % Ownership: | 100.0000000000% |
| | | Exemptions: | |
Taxes and Assessment Details
Values
| (+) Improvement Homesite Value: | + | $0 | |
| (+) Improvement Non-Homesite Value: | + | $239,023 | |
| (+) Land Homesite Value: | + | $0 | |
| (+) Land Non-Homesite Value: | + | $200,000 | |
| (+) Curr Use (HS): | + | $0 | $0 |
| (+) Curr Use (NHS): | + | $0 | $0 |
| | | -------------------------- | |
| (=) Market Value: | = | $439,023 | |
| (–) Productivity Loss: | – | $0 | |
| | | -------------------------- | |
| (=) Subtotal: | = | $439,023 | |
| (+) Senior Appraised Value: | + | $0 | |
| (+) Non-Senior Appraised Value: | + | $439,023 | |
| | | -------------------------- | |
| (=) Total Appraised Value: | = | $439,023 | |
| (–) Senior Exemption Loss: | – | $0 | |
| (–) Exemption Loss: | – | $0 | |
| | | -------------------------- | |
| (=) Taxable Value: | = | $439,023 | |
Taxing Jurisdiction
| Owner: | MACARTHUR, LAWRENCE S | | |
| % Ownership: | 100.0000000000% | | |
| Total Value: | $439,023 | | |
| Tax Area: | 100 - APPRAISER-OH Schl Dist, in OH |
| CF | Conservation Futures | 0.0316035091 | $439,023 | $439,023 | $13.87 | | |
| CEM1 | Cemetery #1 | 0.0040320932 | $439,023 | $439,023 | $1.77 | | |
| COH | City of Oak Harbor | 2.3001546061 | $439,023 | $439,023 | $1,009.82 | | |
| OAKBOND | City of Oak Harbor BOND | 0.1926904192 | $439,023 | $439,023 | $84.60 | | |
| HOBOND | Hospital BOND | 0.1910887512 | $439,023 | $439,023 | $83.89 | | |
| HOGEN | Hospital GEN | 0.3902502903 | $439,023 | $439,023 | $171.33 | | |
| CE | County Current Expense | 0.3708482477 | $439,023 | $439,023 | $162.81 | | |
| ISLANDEMS | Hospital GEN (EMS) | 0.5000000000 | $439,023 | $439,023 | $219.51 | | |
| LIB | Library Sno-Isle GEN | 0.3153421757 | $439,023 | $439,023 | $138.44 | | |
| NWHIDPRMT | P & R N Whidbey GEN | 0.2004466701 | $439,023 | $439,023 | $88.00 | | |
| SCH201MO | School 201 Enrichment | 1.8559231640 | $439,023 | $439,023 | $814.79 | | |
| ST | State School | 1.3035497053 | $439,023 | $439,023 | $572.29 | | |
| ST2 | State School Part 2 | 0.8169543533 | $439,023 | $439,023 | $358.66 | | |
| | Total Tax Rate: | 8.4728839852 | | | | | |
| | | | | Taxes w/Current Exemptions: | $3,719.78 | | |
| | | | | Taxes w/o Exemptions: | $3,719.78 | | |
Improvement / Building
| Improvement #1: | RESIDENTIAL | State Code: | Y | 1288.0 sqft | Value: | $239,023 |
| Bathrooms: | 1.75 | Bedrooms: | 3 | | Ceiling: | DRYWALL PAINTED | Cooling: | HEAT PUMP/CONV/V | | Exterior Wall/Cover: | VINYL | Floor Covering: | CARPET/VINYL 80-20 | | Floor Structure: | WOOD W/SUBFLOOR | Foundation: | CONCRETE | | Interior Finish: | DRYWALL PAINT | Plumbing Fixture Cnt: | 9 | | Roof Slope: | 4" IN 12" | Roof Structure/Cover: | CJ ASPHALT |
|
| | Type | Description | Class CD | Sub Class CD | Year Built | Area |
| | BAS | BASE/MAIN FLOOR | 3 | 0 | 1978 | 1288.0 |
| | AGR | ATTACHED GARAGE | 3 | 0 | 1978 | 528.0 |
| | OWP | OPEN WOOD PORCH W/STEPS | 3 | 0 | 1978 | 216.0 |
Sketch
Property Image
Land
| 1 | 14 | SQ (08001-12000) | 0.0000 | 0.00 | 0.00 | 0.00 | 1.00 | $200,000 | $0 |
Roll Value History
| 2026 | N/A | N/A | N/A | N/A | N/A |
| 2025 | $239,023 | $200,000 | $0 | $439,023 | $439,023 |
| 2024 | $242,117 | $180,000 | $0 | $422,117 | $422,117 |
| 2023 | $228,919 | $190,000 | $0 | $418,919 | $418,919 |
| 2022 | $210,044 | $180,000 | $0 | $390,044 | $390,044 |
| 2021 | $185,038 | $130,000 | $0 | $315,038 | $315,038 |
| 2020 | $180,253 | $100,000 | $0 | $280,253 | $280,253 |
| 2019 | $129,033 | $150,000 | $0 | $279,033 | $279,033 |
| 2018 | $129,440 | $130,000 | $0 | $259,440 | $259,440 |
| 2017 | $116,481 | $110,000 | $0 | $226,481 | $226,481 |
| 2016 | $117,263 | $90,000 | $0 | $207,263 | $207,263 |
| 2015 | $118,825 | $70,000 | $0 | $188,825 | $188,825 |
| 2014 | $120,389 | $55,000 | $0 | $175,389 | $175,389 |
| 2013 | $121,952 | $55,000 | $0 | $176,952 | $176,952 |
| 2012 | $123,517 | $60,000 | $0 | $183,517 | $183,517 |
| 2011 | $129,685 | $50,000 | $0 | $179,685 | $179,685 |
| 2010 | $139,010 | $50,000 | $0 | $189,010 | $189,010 |
| 2009 | $145,066 | $60,000 | $0 | $205,066 | $205,066 |
| 2008 | $146,987 | $72,000 | $0 | $218,987 | $218,987 |
| 2007 | $148,908 | $72,000 | $0 | $220,908 | $220,908 |
Deed and Sales History
| 1 | 04/12/2001 | WD | Warranty Deed | MOORE, LAMARCUS J | MACARTHUR, LAWRENCE S | | | $129,000.00 | 11268 | 20029898 |
| 2 | 12/01/1987 | WD | Warranty Deed | BURGIN, JOE C | MOORE, LAMARCUS J | | | $69,900.00 | 73917 | 87017028 |
| 3 | 08/01/1981 | WD | Warranty Deed | HUEBNER, RICHARD H | BURGIN, JOE C | | | $68,500.00 | 12578 | 386968 |
| 4 | 04/01/1980 | WD | Warranty Deed | PHILLIPS, HARLAN W | HUEBNER, RICHARD H | | | $61,000.00 | 1468 | 368231 |
| 5 | 11/01/1978 | OTHER | Other - Misc. Documents | Unknown | PHILLIPS, HARLAN W | | | $44,500.00 | 85522 | 342864 |
Payout Agreement
| No payout information available.. |