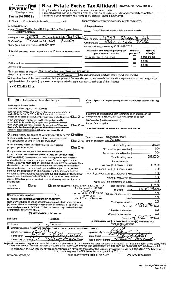
Property
Account |
| Property ID: | 229906 | Abbreviated Legal Description: | CAST HILLS 4 LOT 8 |
| Geographic ID: | S6340-04-00008-0 | Agent Code: | |
| Type: | Real | | |
| Tax Area: | 100 - APPRAISER-OH Schl Dist, in OH | Land Use Code | 11 |
| Open Space: | N | DFL | N |
| Historic Property: | N | Remodel Property: | N |
| Multi-Family Redevelopment: | N | | |
| Township: | | Section: | |
| Range: | |
Location |
| Address: | 998 SW KINGMA CT OAK HARBOR, WA 98277 | Mapsco: | |
| Neighborhood: | Cycle 1 | Map ID: | 92 |
| Neighborhood CD: | 1 |
Owner |
| Name: | LARKIN, MATTHEW JOSEPH | Owner ID: | 310926 |
| Mailing Address: | ELIZABETH LEIGH LARKIN 998 SW KINGMA CT OAK HARBOR, WA 98277 | % Ownership: | 100.0000000000% |
| | | Exemptions: | |
Taxes and Assessment Details
Values
| (+) Improvement Homesite Value: | + | $0 | |
| (+) Improvement Non-Homesite Value: | + | $240,964 | |
| (+) Land Homesite Value: | + | $0 | |
| (+) Land Non-Homesite Value: | + | $200,000 | |
| (+) Curr Use (HS): | + | $0 | $0 |
| (+) Curr Use (NHS): | + | $0 | $0 |
| | | -------------------------- | |
| (=) Market Value: | = | $440,964 | |
| (–) Productivity Loss: | – | $0 | |
| | | -------------------------- | |
| (=) Subtotal: | = | $440,964 | |
| (+) Senior Appraised Value: | + | $0 | |
| (+) Non-Senior Appraised Value: | + | $440,964 | |
| | | -------------------------- | |
| (=) Total Appraised Value: | = | $440,964 | |
| (–) Senior Exemption Loss: | – | $0 | |
| (–) Exemption Loss: | – | $0 | |
| | | -------------------------- | |
| (=) Taxable Value: | = | $440,964 | |
Taxing Jurisdiction
| Owner: | LARKIN, MATTHEW JOSEPH | | |
| % Ownership: | 100.0000000000% | | |
| Total Value: | $440,964 | | |
| Tax Area: | 100 - APPRAISER-OH Schl Dist, in OH |
| CF | Conservation Futures | 0.0316035091 | $440,964 | $440,964 | $13.94 | | |
| CEM1 | Cemetery #1 | 0.0040320932 | $440,964 | $440,964 | $1.78 | | |
| COH | City of Oak Harbor | 2.3001546061 | $440,964 | $440,964 | $1,014.29 | | |
| OAKBOND | City of Oak Harbor BOND | 0.1926904192 | $440,964 | $440,964 | $84.97 | | |
| HOBOND | Hospital BOND | 0.1910887512 | $440,964 | $440,964 | $84.26 | | |
| HOGEN | Hospital GEN | 0.3902502903 | $440,964 | $440,964 | $172.09 | | |
| CE | County Current Expense | 0.3708482477 | $440,964 | $440,964 | $163.53 | | |
| ISLANDEMS | Hospital GEN (EMS) | 0.5000000000 | $440,964 | $440,964 | $220.48 | | |
| LIB | Library Sno-Isle GEN | 0.3153421757 | $440,964 | $440,964 | $139.05 | | |
| NWHIDPRMT | P & R N Whidbey GEN | 0.2004466701 | $440,964 | $440,964 | $88.39 | | |
| SCH201MO | School 201 Enrichment | 1.8559231640 | $440,964 | $440,964 | $818.40 | | |
| ST | State School | 1.3035497053 | $440,964 | $440,964 | $574.82 | | |
| ST2 | State School Part 2 | 0.8169543533 | $440,964 | $440,964 | $360.25 | | |
| | Total Tax Rate: | 8.4728839852 | | | | | |
| | | | | Taxes w/Current Exemptions: | $3,736.25 | | |
| | | | | Taxes w/o Exemptions: | $3,736.25 | | |
Improvement / Building
| Improvement #1: | RESIDENTIAL | State Code: | Y | 2001.3 sqft | Value: | $240,964 |
| Bathrooms: | 1.75 | Bedrooms: | 4 | | Ceiling: | DRYWALL PAINTED | Cooling: | HEAT PUMP/CONV/V | | Exterior Wall/Cover: | WOOD SIDING | Floor Covering: | CARPET/VINYL 80-20 | | Floor Structure: | WOOD W/SUBFLOOR | Foundation: | CONCRETE | | Interior Finish: | DRYWALL PAINT | Plumbing Fixture Cnt: | 9 | | Roof Slope: | 4" IN 12" | Roof Structure/Cover: | CJ ASPHALT |
|
| | Type | Description | Class CD | Sub Class CD | Year Built | Area |
| | BAS | BASE/MAIN FLOOR | 3 | 0 | 1978 | 1171.3 |
| | AGR | ATTACHED GARAGE | 3 | 0 | 1978 | 200.0 |
| | BIG | BUILT IN GARAGE | 3 | 0 | 1978 | 220.0 |
| | OWP | OPEN WOOD PORCH W/STEPS | 3 | 0 | 1978 | 120.0 |
| | OWP | OPEN WOOD PORCH W/STEPS | 3 | 0 | 1978 | 33.0 |
| | OWR | OPEN WOOD PORCH W/STEPS/ROOF | 3 | 0 | 1978 | 12.0 |
| | DWN | DOWNSTAIRS LIVING AREA | 3 | 0 | 1978 | 830.0 |
Sketch
Property Image
Land
| 1 | 14 | SQ (08001-12000) | 0.0000 | 0.00 | 0.00 | 0.00 | 1.00 | $200,000 | $0 |
Roll Value History
| 2026 | N/A | N/A | N/A | N/A | N/A |
| 2025 | $240,964 | $200,000 | $0 | $440,964 | $440,964 |
| 2024 | $244,394 | $180,000 | $0 | $424,394 | $424,394 |
| 2023 | $236,627 | $190,000 | $0 | $426,627 | $426,627 |
| 2022 | $217,308 | $180,000 | $0 | $397,308 | $397,308 |
| 2021 | $205,533 | $130,000 | $0 | $335,533 | $335,533 |
| 2020 | $200,218 | $100,000 | $0 | $300,218 | $300,218 |
| 2019 | $142,070 | $150,000 | $0 | $292,070 | $292,070 |
| 2018 | $142,548 | $130,000 | $0 | $272,548 | $272,548 |
| 2017 | $130,131 | $110,000 | $0 | $240,131 | $240,131 |
| 2016 | $131,988 | $90,000 | $0 | $221,988 | $221,988 |
| 2015 | $133,847 | $70,000 | $0 | $203,847 | $203,847 |
| 2014 | $135,707 | $55,000 | $0 | $190,707 | $190,707 |
| 2013 | $137,565 | $55,000 | $0 | $192,565 | $192,565 |
| 2012 | $139,426 | $60,000 | $0 | $199,426 | $199,426 |
| 2011 | $156,300 | $50,000 | $0 | $206,300 | $206,300 |
| 2010 | $164,194 | $50,000 | $0 | $214,194 | $214,194 |
| 2009 | $171,160 | $60,000 | $0 | $231,160 | $231,160 |
| 2008 | $173,211 | $72,000 | $0 | $245,211 | $245,211 |
| 2007 | $175,261 | $72,000 | $0 | $247,261 | $247,261 |
Deed and Sales History
| 1 | 12/08/2023 | WD | Warranty Deed | VERCELES, BENEDICTO Z | LARKIN, MATTHEW JOSEPH | | | $445,000.00 | 58759 | 4567656 |
| 2 | 03/01/1982 | WD | Warranty Deed | GESSEL, DAVID G | VERCELES, BENEDICTO Z | | | $70,500.00 | 20573 | 394005 |
| 3 | 06/01/1979 | TRUSTEED | Trustee's Deed | DAVIS, & D | GESSEL, DAVID G | | | $52,000.00 | 92962 | 354220 |
| 4 | 01/01/1900 | OTHER | Other - Misc. Documents | Unknown | DAVIS, & D | | | $0.00 | 0 | 0 |
Payout Agreement
| No payout information available.. |