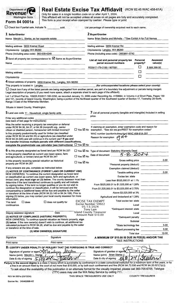
Property
Account |
| Property ID: | 229924 | Abbreviated Legal Description: | CAST HILLS 4 LOT 10 |
| Geographic ID: | S6340-04-00010-0 | Agent Code: | |
| Type: | Real | | |
| Tax Area: | 100 - APPRAISER-OH Schl Dist, in OH | Land Use Code | 11 |
| Open Space: | N | DFL | N |
| Historic Property: | N | Remodel Property: | N |
| Multi-Family Redevelopment: | N | | |
| Township: | | Section: | |
| Range: | |
Location |
| Address: | 985 SW KINGMA CT OAK HARBOR, WA 98277 | Mapsco: | |
| Neighborhood: | Cycle 1 | Map ID: | 92 |
| Neighborhood CD: | 1 |
Owner |
| Name: | HOWSE, ROBERT NORMAN | Owner ID: | 316043 |
| Mailing Address: | PO BOX 1590 FREELAND, WA 98249 | % Ownership: | 100.0000000000% |
| | | Exemptions: | |
Taxes and Assessment Details
Values
| (+) Improvement Homesite Value: | + | $0 | |
| (+) Improvement Non-Homesite Value: | + | $247,874 | |
| (+) Land Homesite Value: | + | $0 | |
| (+) Land Non-Homesite Value: | + | $200,000 | |
| (+) Curr Use (HS): | + | $0 | $0 |
| (+) Curr Use (NHS): | + | $0 | $0 |
| | | -------------------------- | |
| (=) Market Value: | = | $447,874 | |
| (–) Productivity Loss: | – | $0 | |
| | | -------------------------- | |
| (=) Subtotal: | = | $447,874 | |
| (+) Senior Appraised Value: | + | $0 | |
| (+) Non-Senior Appraised Value: | + | $447,874 | |
| | | -------------------------- | |
| (=) Total Appraised Value: | = | $447,874 | |
| (–) Senior Exemption Loss: | – | $0 | |
| (–) Exemption Loss: | – | $0 | |
| | | -------------------------- | |
| (=) Taxable Value: | = | $447,874 | |
Taxing Jurisdiction
| Owner: | HOWSE, ROBERT NORMAN | | |
| % Ownership: | 100.0000000000% | | |
| Total Value: | $447,874 | | |
| Tax Area: | 100 - APPRAISER-OH Schl Dist, in OH |
| CF | Conservation Futures | 0.0316035091 | $447,874 | $447,874 | $14.15 | | |
| CEM1 | Cemetery #1 | 0.0040320932 | $447,874 | $447,874 | $1.81 | | |
| COH | City of Oak Harbor | 2.3001546061 | $447,874 | $447,874 | $1,030.18 | | |
| OAKBOND | City of Oak Harbor BOND | 0.1926904192 | $447,874 | $447,874 | $86.30 | | |
| HOBOND | Hospital BOND | 0.1910887512 | $447,874 | $447,874 | $85.58 | | |
| HOGEN | Hospital GEN | 0.3902502903 | $447,874 | $447,874 | $174.78 | | |
| CE | County Current Expense | 0.3708482477 | $447,874 | $447,874 | $166.09 | | |
| ISLANDEMS | Hospital GEN (EMS) | 0.5000000000 | $447,874 | $447,874 | $223.94 | | |
| LIB | Library Sno-Isle GEN | 0.3153421757 | $447,874 | $447,874 | $141.23 | | |
| NWHIDPRMT | P & R N Whidbey GEN | 0.2004466701 | $447,874 | $447,874 | $89.77 | | |
| SCH201MO | School 201 Enrichment | 1.8559231640 | $447,874 | $447,874 | $831.22 | | |
| ST | State School | 1.3035497053 | $447,874 | $447,874 | $583.83 | | |
| ST2 | State School Part 2 | 0.8169543533 | $447,874 | $447,874 | $365.89 | | |
| | Total Tax Rate: | 8.4728839852 | | | | | |
| | | | | Taxes w/Current Exemptions: | $3,794.77 | | |
| | | | | Taxes w/o Exemptions: | $3,794.77 | | |
Improvement / Building
| Improvement #1: | RESIDENTIAL | State Code: | Y | 1379.5 sqft | Value: | $247,874 |
| Bathrooms: | 1.75 | Bedrooms: | 3 | | Ceiling: | DRY WALL SPRAYED | Cooling: | HEAT PUMP/CONV/V | | Exterior Wall/Cover: | PLY/HARDBOARD T-111 | Floor Covering: | CARPET/VINYL 80-20 | | Floor Structure: | WOOD W/SUBFLOOR | Foundation: | CONCRETE | | Interior Finish: | DRYWALL PAINT | Plumbing Fixture Cnt: | 9 | | Roof Slope: | 5" IN 12" | Roof Structure/Cover: | CJ ASPHALT |
|
| | Type | Description | Class CD | Sub Class CD | Year Built | Area |
| | BAS | BASE/MAIN FLOOR | 3 | 0 | 1978 | 1379.5 |
| | OP3 | OPEN PORCH W/ROOF | 3 | 0 | 1978 | 57.5 |
| | AGR | ATTACHED GARAGE | 3 | 0 | 1978 | 467.0 |
| | OWP | OPEN WOOD PORCH W/STEPS | 3 | 0 | 1978 | 308.0 |
Sketch
Property Image
Land
| 1 | 14 | SQ (08001-12000) | 0.0000 | 0.00 | 0.00 | 0.00 | 1.00 | $200,000 | $0 |
Roll Value History
| 2026 | N/A | N/A | N/A | N/A | N/A |
| 2025 | $247,874 | $200,000 | $0 | $447,874 | $447,874 |
| 2024 | $251,002 | $180,000 | $0 | $431,002 | $431,002 |
| 2023 | $254,130 | $190,000 | $0 | $444,130 | $444,130 |
| 2022 | $232,943 | $180,000 | $0 | $412,943 | $412,943 |
| 2021 | $201,454 | $130,000 | $0 | $331,454 | $331,454 |
| 2020 | $182,156 | $100,000 | $0 | $282,156 | $282,156 |
| 2019 | $131,262 | $150,000 | $0 | $281,262 | $281,262 |
| 2018 | $131,677 | $130,000 | $0 | $261,677 | $261,677 |
| 2017 | $108,282 | $110,000 | $0 | $218,282 | $218,282 |
| 2016 | $109,898 | $90,000 | $0 | $199,898 | $199,898 |
| 2015 | $111,514 | $70,000 | $0 | $181,514 | $181,514 |
| 2014 | $113,131 | $55,000 | $0 | $168,131 | $168,131 |
| 2013 | $114,747 | $55,000 | $0 | $169,747 | $169,747 |
| 2012 | $116,363 | $60,000 | $0 | $176,363 | $176,363 |
| 2011 | $127,786 | $50,000 | $0 | $177,786 | $177,786 |
| 2010 | $138,288 | $50,000 | $0 | $188,288 | $188,288 |
| 2009 | $142,462 | $60,000 | $0 | $202,462 | $202,462 |
| 2008 | $144,246 | $72,000 | $0 | $216,246 | $216,246 |
| 2007 | $146,029 | $72,000 | $0 | $218,029 | $218,029 |
Deed and Sales History
| 1 | 04/03/2025 | QCD | Quit Claim Deed | HOWSE, PATRICIA | HOWSE, ROBERT NORMAN | | | $0.00 | 63025 | 4584061 |
| 2 | 06/20/2024 | WD | Warranty Deed | FABER, ROBERT | HOWSE, PATRICIA | | | $475,000.00 | 60406 | 4573782 |
| 3 | 02/17/2021 | WD | Warranty Deed | RICHTER, JOHN PETER G | FABER, ROBERT | | | $391,000.00 | 47029 | 4511583 |
| 4 | 04/25/2005 | WD | Warranty Deed | SELLERS, KELLY R | RICHTER, JOHN PETER G | | | $184,000.00 | 51761 | 4132391 |
| 5 | 01/22/2001 | WD | Warranty Deed | WELLS, ROBERT G | SELLERS, KELLY R | | | $131,500.00 | 10272 | 20024242 |
| 6 | 05/01/1991 | WD | Warranty Deed | HOFFMAN, CURTIS A | WELLS, ROBERT G | | | $117,500.00 | 11492 | 91006279 |
| 7 | 01/01/1981 | WD | Warranty Deed | KOHLER, JOSEPH G | HOFFMAN, CURTIS A | | | $66,636.00 | 10272 | 378904 |
| 8 | 11/01/1978 | OTHER | Other - Misc. Documents | Unknown | KOHLER, JOSEPH G | | | $48,500.00 | 85521 | 342862 |
Payout Agreement
| No payout information available.. |