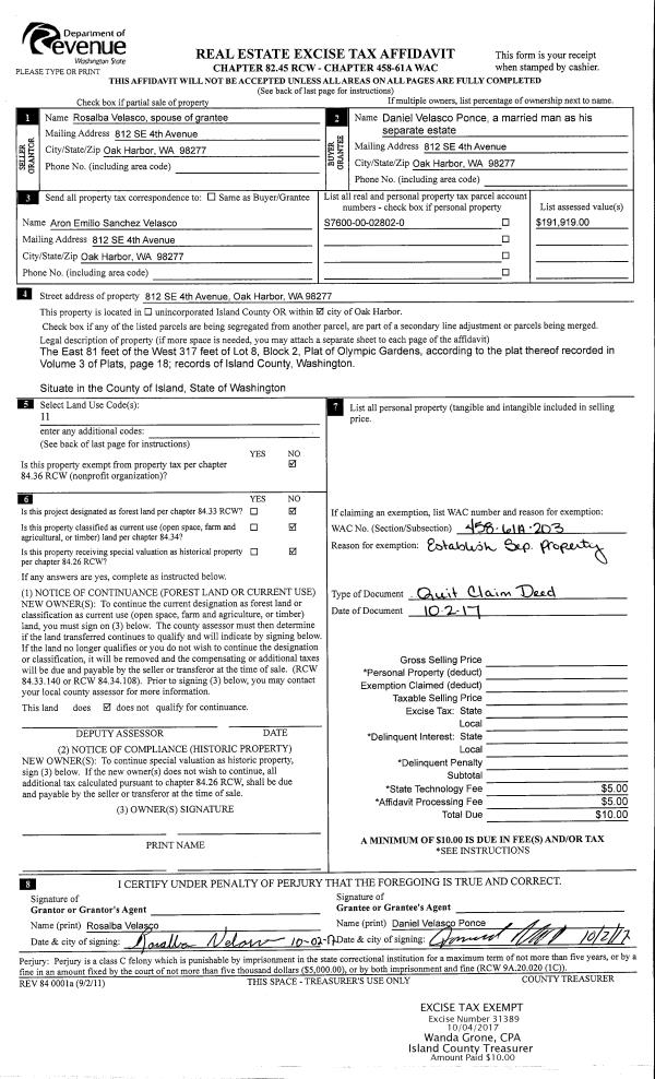
Property
Account |
| Property ID: | 230066 | Abbreviated Legal Description: | CAST HILLS 4 LOT 24 |
| Geographic ID: | S6340-04-00024-0 | Agent Code: | |
| Type: | Real | | |
| Tax Area: | 100 - APPRAISER-OH Schl Dist, in OH | Land Use Code | 11 |
| Open Space: | N | DFL | N |
| Historic Property: | N | Remodel Property: | N |
| Multi-Family Redevelopment: | N | | |
| Township: | | Section: | |
| Range: | |
Location |
| Address: | 796 SW 10TH CT OAK HARBOR, WA 98277 | Mapsco: | |
| Neighborhood: | Cycle 1 | Map ID: | 93 |
| Neighborhood CD: | 1 |
Owner |
| Name: | KOZELISKY, GAYNETTA L | Owner ID: | 291532 |
| Mailing Address: | 796 SW 10TH CT OAK HARBOR, WA 98277 | % Ownership: | 100.0000000000% |
| | | Exemptions: | |
Taxes and Assessment Details
Values
| (+) Improvement Homesite Value: | + | $0 | |
| (+) Improvement Non-Homesite Value: | + | $259,093 | |
| (+) Land Homesite Value: | + | $0 | |
| (+) Land Non-Homesite Value: | + | $200,000 | |
| (+) Curr Use (HS): | + | $0 | $0 |
| (+) Curr Use (NHS): | + | $0 | $0 |
| | | -------------------------- | |
| (=) Market Value: | = | $459,093 | |
| (–) Productivity Loss: | – | $0 | |
| | | -------------------------- | |
| (=) Subtotal: | = | $459,093 | |
| (+) Senior Appraised Value: | + | $0 | |
| (+) Non-Senior Appraised Value: | + | $459,093 | |
| | | -------------------------- | |
| (=) Total Appraised Value: | = | $459,093 | |
| (–) Senior Exemption Loss: | – | $0 | |
| (–) Exemption Loss: | – | $0 | |
| | | -------------------------- | |
| (=) Taxable Value: | = | $459,093 | |
Taxing Jurisdiction
| Owner: | KOZELISKY, GAYNETTA L | | |
| % Ownership: | 100.0000000000% | | |
| Total Value: | $459,093 | | |
| Tax Area: | 100 - APPRAISER-OH Schl Dist, in OH |
| CF | Conservation Futures | 0.0316035091 | $459,093 | $459,093 | $14.51 | | |
| CEM1 | Cemetery #1 | 0.0040320932 | $459,093 | $459,093 | $1.85 | | |
| COH | City of Oak Harbor | 2.3001546061 | $459,093 | $459,093 | $1,055.98 | | |
| OAKBOND | City of Oak Harbor BOND | 0.1926904192 | $459,093 | $459,093 | $88.46 | | |
| HOBOND | Hospital BOND | 0.1910887512 | $459,093 | $459,093 | $87.73 | | |
| HOGEN | Hospital GEN | 0.3902502903 | $459,093 | $459,093 | $179.16 | | |
| CE | County Current Expense | 0.3708482477 | $459,093 | $459,093 | $170.25 | | |
| ISLANDEMS | Hospital GEN (EMS) | 0.5000000000 | $459,093 | $459,093 | $229.55 | | |
| LIB | Library Sno-Isle GEN | 0.3153421757 | $459,093 | $459,093 | $144.77 | | |
| NWHIDPRMT | P & R N Whidbey GEN | 0.2004466701 | $459,093 | $459,093 | $92.02 | | |
| SCH201MO | School 201 Enrichment | 1.8559231640 | $459,093 | $459,093 | $852.04 | | |
| ST | State School | 1.3035497053 | $459,093 | $459,093 | $598.45 | | |
| ST2 | State School Part 2 | 0.8169543533 | $459,093 | $459,093 | $375.06 | | |
| | Total Tax Rate: | 8.4728839852 | | | | | |
| | | | | Taxes w/Current Exemptions: | $3,889.83 | | |
| | | | | Taxes w/o Exemptions: | $3,889.83 | | |
Improvement / Building
| Improvement #1: | RESIDENTIAL | State Code: | Y | 2064.0 sqft | Value: | $259,093 |
| Bathrooms: | 2 | Bedrooms: | 3 | | Ceiling: | DRY WALL SPRAYED | Exterior Wall/Cover: | PLY/HARDBOARD T-111 | | Floor Covering: | VINYL 100% | Floor Structure: | WOOD W/SUBFLOOR | | Foundation: | CONCRETE | Heating: | BASEBOARD ELECTRIC | | Interior Finish: | DRYWALL PAINT | Plumbing Fixture Cnt: | 9 | | Roof Slope: | 4" IN 12" | Roof Structure/Cover: | CJ ASPHALT |
|
| | Type | Description | Class CD | Sub Class CD | Year Built | Area |
| | BAS | BASE/MAIN FLOOR | 3 | 0 | 1978 | 1032.0 |
| | OP4 | OPEN PORCH W/CEILING-ROOF | 3 | 0 | 1978 | 30.0 |
| | AGR | ATTACHED GARAGE | 3 | 0 | 1978 | 586.0 |
| | UPS | UPPER STORY | 3 | 0 | 1978 | 1032.0 |
| | OWP | OPEN WOOD PORCH W/STEPS | 3 | 0 | 1978 | 244.0 |
Sketch
Property Image
Land
| 1 | 14 | SQ (08001-12000) | 0.0000 | 0.00 | 0.00 | 0.00 | 1.00 | $200,000 | $0 |
Roll Value History
| 2026 | N/A | N/A | N/A | N/A | N/A |
| 2025 | $259,093 | $200,000 | $0 | $459,093 | $459,093 |
| 2024 | $268,396 | $180,000 | $0 | $448,396 | $448,396 |
| 2023 | $278,181 | $190,000 | $0 | $468,181 | $468,181 |
| 2022 | $255,231 | $180,000 | $0 | $435,231 | $435,231 |
| 2021 | $224,863 | $130,000 | $0 | $354,863 | $354,863 |
| 2020 | $219,743 | $100,000 | $0 | $319,743 | $319,743 |
| 2019 | $169,348 | $150,000 | $0 | $319,348 | $319,348 |
| 2018 | $169,884 | $130,000 | $0 | $299,884 | $299,884 |
| 2017 | $172,602 | $110,000 | $0 | $282,602 | $282,602 |
| 2016 | $174,758 | $90,000 | $0 | $264,758 | $264,758 |
| 2015 | $160,449 | $70,000 | $0 | $230,449 | $230,449 |
| 2014 | $162,560 | $55,000 | $0 | $217,560 | $217,560 |
| 2013 | $164,671 | $55,000 | $0 | $219,671 | $219,671 |
| 2012 | $166,783 | $60,000 | $0 | $226,783 | $226,783 |
| 2011 | $167,717 | $50,000 | $0 | $217,717 | $217,717 |
| 2010 | $174,327 | $50,000 | $0 | $224,327 | $224,327 |
| 2009 | $181,854 | $60,000 | $0 | $241,854 | $241,854 |
| 2008 | $184,183 | $72,000 | $0 | $256,183 | $256,183 |
| 2007 | $186,537 | $72,000 | $0 | $258,537 | $258,537 |
Deed and Sales History
| 1 | 08/24/2019 | WD | Warranty Deed | BROWN, JAMES A | KOZELISKY, GAYNETTA L | | | $0.00 | 40227 | 4471219 |
| 2 | 08/24/2019 | WD | Warranty Deed | BROWN, JAMES A | KOZELISKY, GAYNETTA L | | | $338,000.00 | 40013 | 4470206 |
| 3 | 06/30/2015 | WD | Warranty Deed | LOLLEY, STEPHEN R | BROWN, JAMES A | | | $263,700.00 | 20294 | 4381368 |
| 4 | 07/01/1981 | WD | Warranty Deed | GUISINGER, L B | LOLLEY, STEPHEN R | | | $85,000.00 | 11990 | 384803 |
| 5 | 01/01/1900 | OTHER | Other - Misc. Documents | Unknown | GUISINGER, L B | | | $0.00 | 0 | 0 |
Payout Agreement
| No payout information available.. |