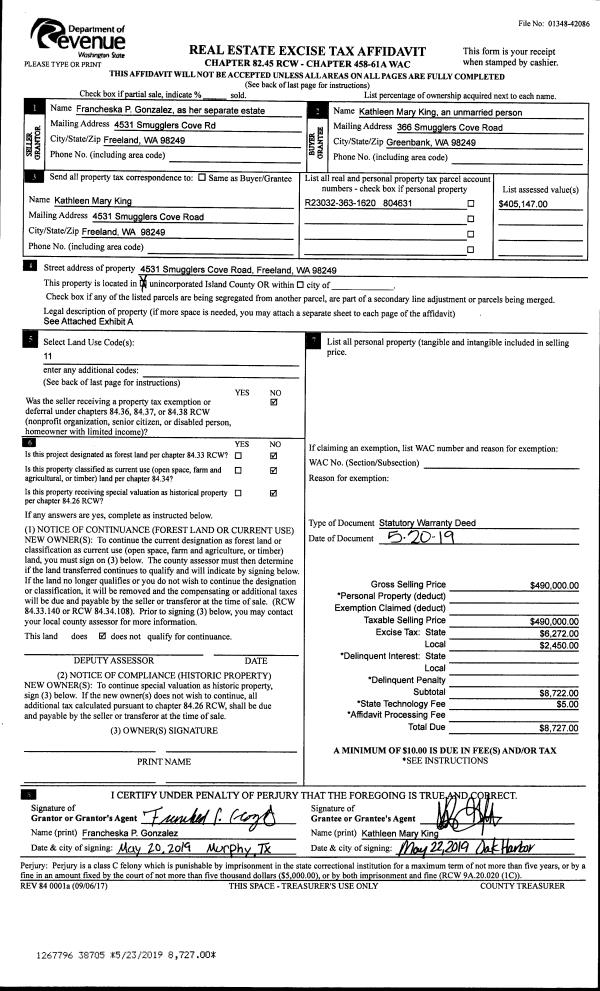
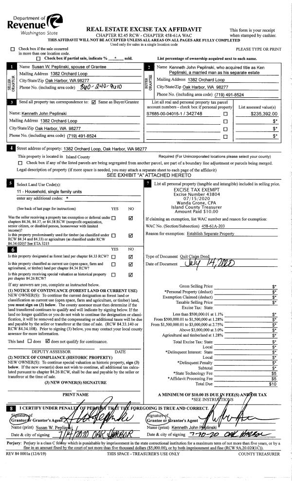
Property
Account |
| Property ID: | 230422 | Abbreviated Legal Description: | CAVALERO BCH LOTS 19, 20 & 21 BLK 2 (19&20 B2 COMB 12/81 L21 B2 COMB 6/86) |
| Geographic ID: | S6345-00-02019-0 | Agent Code: | |
| Type: | Real | | |
| Tax Area: | 510 - APPRAISER-Stan/Cam Schl Dist, improved & 1 acre or less | Land Use Code | 11 |
| Open Space: | N | DFL | N |
| Historic Property: | N | Remodel Property: | N |
| Multi-Family Redevelopment: | N | | |
| Township: | | Section: | |
| Range: | |
Location |
| Address: | 1095 CAVALERO RD CAMANO ISLAND, WA 98282 | Mapsco: | |
| Neighborhood: | Cycle 5 | Map ID: | 927 |
| Neighborhood CD: | 5 |
Owner |
| Name: | DUNIETZ, JERRY J | Owner ID: | 303836 |
| Mailing Address: | LAURIE H MINSK 439 MCGILVRA BLVD E SEATTLE, WA 98112 | % Ownership: | 100.0000000000% |
| | | Exemptions: | |
Taxes and Assessment Details
Values
| (+) Improvement Homesite Value: | + | $0 | |
| (+) Improvement Non-Homesite Value: | + | $485,846 | |
| (+) Land Homesite Value: | + | $0 | |
| (+) Land Non-Homesite Value: | + | $700,000 | |
| (+) Curr Use (HS): | + | $0 | $0 |
| (+) Curr Use (NHS): | + | $0 | $0 |
| | | -------------------------- | |
| (=) Market Value: | = | $1,185,846 | |
| (–) Productivity Loss: | – | $0 | |
| | | -------------------------- | |
| (=) Subtotal: | = | $1,185,846 | |
| (+) Senior Appraised Value: | + | $0 | |
| (+) Non-Senior Appraised Value: | + | $1,185,846 | |
| | | -------------------------- | |
| (=) Total Appraised Value: | = | $1,185,846 | |
| (–) Senior Exemption Loss: | – | $0 | |
| (–) Exemption Loss: | – | $0 | |
| | | -------------------------- | |
| (=) Taxable Value: | = | $1,185,846 | |
Taxing Jurisdiction
| Owner: | DUNIETZ, JERRY J | | |
| % Ownership: | 100.0000000000% | | |
| Total Value: | $1,185,846 | | |
| Tax Area: | 510 - APPRAISER-Stan/Cam Schl Dist, improved & 1 acre or less |
| CF | Conservation Futures | 0.0316035091 | $1,185,846 | $1,185,846 | $37.48 | | |
| EMS1 | Fire & Rescue Dist #1 Camano GEN (EMS) | 0.3677864386 | $1,185,846 | $1,185,846 | $436.14 | | |
| FIRE1 | Fire & Rescue Dist #1 Camano GEN | 1.2502910536 | $1,185,846 | $1,185,846 | $1,482.65 | | |
| FIRE1BOND | Fire & Rescue Dist #1 Camano BOND | 0.1570001679 | $1,185,846 | $1,185,846 | $186.18 | | |
| CE | County Current Expense | 0.3708482477 | $1,185,846 | $1,185,846 | $439.77 | | |
| CR | County Roads | 0.4584763726 | $1,185,846 | $1,185,846 | $543.68 | | |
| LCIB | Library Sno-Isle BOND (Camano Island) | 0.0396325772 | $1,185,846 | $1,185,846 | $47.00 | | |
| LIB | Library Sno-Isle GEN | 0.3153421757 | $1,185,846 | $1,185,846 | $373.95 | | |
| SCH205_401 | School 205-401 Enrichment | 1.2698420524 | $1,185,846 | $1,185,846 | $1,505.84 | | |
| SCH205BOND | School 205-401 BOND | 0.9396497583 | $1,185,846 | $1,185,846 | $1,114.28 | | |
| ST | State School | 1.3035497053 | $1,185,846 | $1,185,846 | $1,545.81 | | |
| ST2 | State School Part 2 | 0.8169543533 | $1,185,846 | $1,185,846 | $968.78 | | |
| | Total Tax Rate: | 7.3209764117 | | | | | |
| | | | | Taxes w/Current Exemptions: | $8,681.56 | | |
| | | | | Taxes w/o Exemptions: | $8,681.56 | | |
Improvement / Building
| Improvement #1: | RESIDENTIAL | State Code: | Y | 3262.0 sqft | Value: | $402,459 |
| Bathrooms: | 4 | Bedrooms: | 3 | | Ceiling: | DRYWALL PAINTED | Cooling: | HEAT PUMP/CONV/V | | Exterior Wall/Cover: | WOOD SIDING | Floor Covering: | VINYL TILE/CARP 20-80 | | Floor Structure: | WOOD W/SUBFLOOR | Foundation: | CONCRETE | | Interior Finish: | DRYWALL PAINT | Plumbing Fixture Cnt: | 16 | | Roof Slope: | 6" IN 12" | Roof Structure/Cover: | CJ CONCRETE TILE |
|
| | Type | Description | Class CD | Sub Class CD | Year Built | Area |
| | BAS | BASE/MAIN FLOOR | 5 | 0 | 1984 | 2144.0 |
| | UPS | UPPER STORY | 5 | 0 | 1984 | 1118.0 |
| | OWP | OPEN WOOD PORCH W/STEPS | 5 | 0 | 1984 | 667.0 |
| | OWR | OPEN WOOD PORCH W/STEPS/ROOF | 5 | 0 | 1984 | 104.0 |
| | OWP | OPEN WOOD PORCH W/STEPS | 5 | 0 | 1984 | 1350.0 |
| | UTY | STORAGE/UTILITY | 5 | 0 | 1984 | 600.0 |
| Improvement #2: | RESIDENTIAL | State Code: | Y | 0.0 sqft | Value: | $83,387 |
| Bathrooms: | 1 | Bedrooms: | 0 | | Ceiling: | DRYWALL PAINTED | Cooling: | HEAT PUMP/CONV/V | | Exterior Wall/Cover: | CEMENT FIBER | Floor Covering: | VINYL 100% | | Floor Structure: | WOOD W/SUBFLOOR | Foundation: | CONCRETE | | Interior Finish: | DRYWALL PAINT | Plumbing Fixture Cnt: | 5 | | Roof Slope: | FLAT | Roof Structure/Cover: | CJ ALUMINIUM HEAVY |
|
| | Type | Description | Class CD | Sub Class CD | Year Built | Area |
| | BAS | BASE/MAIN FLOOR | 5 | 0 | 2024 | 0.0 |
| | BIG | BUILT IN GARAGE | 5 | 0 | 2024 | 302.6 |
| | OWP | OPEN WOOD PORCH W/STEPS | 5 | 0 | 2024 | 252.0 |
| | BAW | BALCONY WOOD RAIL | 5 | 0 | 2024 | 138.2 |
| | UTY | STORAGE/UTILITY | 5 | 0 | 2024 | 586.9 |
| | UTY | STORAGE/UTILITY | 5 | 0 | 2024 | 399.0 |
Sketch
Property Image
Land
| 1 | HB | HIGH BLUFF | 0.0000 | 0.00 | 150.00 | 0.00 | 1.00 | $700,000 | $0 |
Roll Value History
| 2026 | N/A | N/A | N/A | N/A | N/A |
| 2025 | $485,846 | $700,000 | $0 | $1,185,846 | $1,185,846 |
| 2024 | $678,634 | $700,000 | $0 | $1,378,634 | $1,378,634 |
| 2023 | $686,502 | $700,000 | $0 | $1,386,502 | $1,386,502 |
| 2022 | $485,634 | $475,000 | $0 | $960,634 | $960,634 |
| 2021 | $400,709 | $375,000 | $0 | $775,709 | $775,709 |
| 2020 | $391,486 | $350,000 | $0 | $741,486 | $741,486 |
| 2019 | $276,110 | $400,000 | $0 | $676,110 | $676,110 |
| 2018 | $277,121 | $350,000 | $0 | $627,121 | $627,121 |
| 2017 | $279,144 | $350,000 | $0 | $629,144 | $629,144 |
| 2016 | $283,191 | $350,000 | $0 | $633,191 | $633,191 |
| 2015 | $269,570 | $350,000 | $0 | $619,570 | $619,570 |
| 2014 | $273,332 | $350,000 | $0 | $623,332 | $623,332 |
| 2013 | $277,094 | $466,905 | $0 | $743,999 | $743,999 |
| 2012 | $280,856 | $466,905 | $0 | $747,761 | $747,761 |
| 2011 | $284,617 | $466,905 | $0 | $751,522 | $751,522 |
| 2010 | $303,412 | $466,905 | $0 | $770,317 | $770,317 |
| 2009 | $321,837 | $571,035 | $0 | $892,872 | $892,872 |
| 2008 | $332,424 | $371,173 | $0 | $703,597 | $703,597 |
| 2007 | $337,000 | $371,173 | $0 | $708,173 | $708,173 |
Deed and Sales History
| 1 | 04/12/2022 | WD | Warranty Deed | BACKBEAT, LLC | DUNIETZ, JERRY J | | | $1,710,000.00 | 52758 | 4543572 |
| 2 | 02/03/2020 | QCD | Quit Claim Deed | MASCHMEIER, WILLIAM HENRY | BACKBEAT, LLC | | | $0.00 | 42005 | 4480689 |
| 3 | 05/21/2019 | WD | Warranty Deed | DAVIES, PETE | MASCHMEIER, WILLIAM HENRY | | | $750,000.00 | 38719 | 4464255 |
| 4 | 06/01/1986 | OTHER | Other - Misc. Documents | DAVIES, PETE | DAVIES, PETE | | | $0.00 | 61658 | 86001715 |
| 5 | 12/01/1981 | OTHER | Other - Misc. Documents | Unknown | DAVIES, PETE | | | $0.00 | 59308 | 0 |
Payout Agreement
| No payout information available.. |