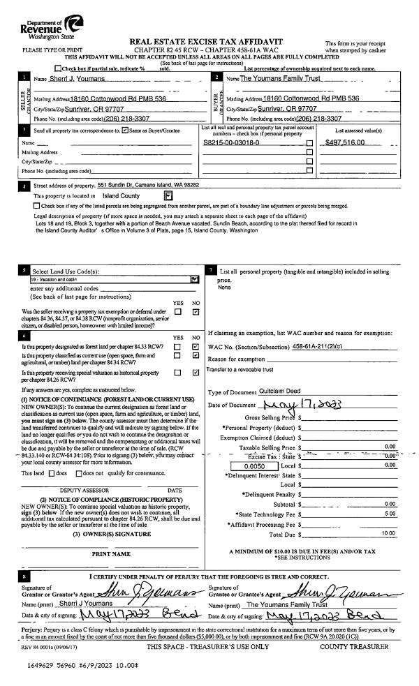
Property
Account |
| Property ID: | 230529 | Abbreviated Legal Description: | CEDARHEARTH LOT 7 |
| Geographic ID: | S6355-00-00007-0 | Agent Code: | |
| Type: | Real | | |
| Tax Area: | 110 - APPRAISER-OH Schl Dist, outside OH, improved & 1 acre or less | Land Use Code | 11 |
| Open Space: | N | DFL | N |
| Historic Property: | N | Remodel Property: | N |
| Multi-Family Redevelopment: | N | | |
| Township: | | Section: | |
| Range: | |
Location |
| Address: | 4175 HEARTH CT OAK HARBOR, WA 98277 | Mapsco: | |
| Neighborhood: | Cycle 6 | Map ID: | 592 |
| Neighborhood CD: | 6 |
Owner |
| Name: | ANDERSON, MATTHEW L | Owner ID: | 201005 |
| Mailing Address: | REBECCA L ANDERSON 4175 HEARTH CT OAK HARBOR, WA 98277 | % Ownership: | 100.0000000000% |
| | | Exemptions: | |
Taxes and Assessment Details
Values
| (+) Improvement Homesite Value: | + | $0 | |
| (+) Improvement Non-Homesite Value: | + | $194,877 | |
| (+) Land Homesite Value: | + | $0 | |
| (+) Land Non-Homesite Value: | + | $200,000 | |
| (+) Curr Use (HS): | + | $0 | $0 |
| (+) Curr Use (NHS): | + | $0 | $0 |
| | | -------------------------- | |
| (=) Market Value: | = | $394,877 | |
| (–) Productivity Loss: | – | $0 | |
| | | -------------------------- | |
| (=) Subtotal: | = | $394,877 | |
| (+) Senior Appraised Value: | + | $0 | |
| (+) Non-Senior Appraised Value: | + | $394,877 | |
| | | -------------------------- | |
| (=) Total Appraised Value: | = | $394,877 | |
| (–) Senior Exemption Loss: | – | $0 | |
| (–) Exemption Loss: | – | $0 | |
| | | -------------------------- | |
| (=) Taxable Value: | = | $394,877 | |
Taxing Jurisdiction
| Owner: | ANDERSON, MATTHEW L | | |
| % Ownership: | 100.0000000000% | | |
| Total Value: | $394,877 | | |
| Tax Area: | 110 - APPRAISER-OH Schl Dist, outside OH, improved & 1 acre or less |
| CF | Conservation Futures | 0.0316035091 | $394,877 | $394,877 | $12.48 | | |
| CEM1 | Cemetery #1 | 0.0040320932 | $394,877 | $394,877 | $1.59 | | |
| FIRE2 | Fire & Rescue Dist #2 N Whidbey GEN | 0.5475949600 | $394,877 | $394,877 | $216.23 | | |
| HOBOND | Hospital BOND | 0.1910887512 | $394,877 | $394,877 | $75.46 | | |
| HOGEN | Hospital GEN | 0.3902502903 | $394,877 | $394,877 | $154.10 | | |
| CE | County Current Expense | 0.3708482477 | $394,877 | $394,877 | $146.44 | | |
| CR | County Roads | 0.4584763726 | $394,877 | $394,877 | $181.04 | | |
| ISLANDEMS | Hospital GEN (EMS) | 0.5000000000 | $394,877 | $394,877 | $197.44 | | |
| LIB | Library Sno-Isle GEN | 0.3153421757 | $394,877 | $394,877 | $124.52 | | |
| NWHIDPRMT | P & R N Whidbey GEN | 0.2004466701 | $394,877 | $394,877 | $79.15 | | |
| SCH201MO | School 201 Enrichment | 1.8559231640 | $394,877 | $394,877 | $732.86 | | |
| ST | State School | 1.3035497053 | $394,877 | $394,877 | $514.74 | | |
| ST2 | State School Part 2 | 0.8169543533 | $394,877 | $394,877 | $322.60 | | |
| | Total Tax Rate: | 6.9861102925 | | | | | |
| | | | | Taxes w/Current Exemptions: | $2,758.65 | | |
| | | | | Taxes w/o Exemptions: | $2,758.65 | | |
Improvement / Building
| Improvement #1: | RESIDENTIAL | State Code: | Y | 1394.0 sqft | Value: | $194,877 |
| Bathrooms: | 2 | Bedrooms: | 3 | | Ceiling: | DRYWALL PAINTED | Exterior Wall/Cover: | PLY/HARDBOARD T-111 | | Floor Covering: | CARPET/VINYL 80-20 | Floor Structure: | WOOD W/SUBFLOOR | | Foundation: | CONCRETE | Heating: | BASEBOARD ELECTRIC | | Interior Finish: | DRYWALL PAINT | Plumbing Fixture Cnt: | 9 | | Roof Slope: | 4" IN 12" | Roof Structure/Cover: | CJ ASPHALT |
|
| | Type | Description | Class CD | Sub Class CD | Year Built | Area |
| | BAS | BASE/MAIN FLOOR | 3 | 0 | 1976 | 1394.0 |
| | OP1 | OPEN PORCH SLAB | 3 | 0 | 1976 | 250.0 |
| | AGR | ATTACHED GARAGE | 3 | 0 | 1976 | 528.0 |
Sketch
Property Image
Land
| 1 | 15 | SQ (12001-21780) | 0.6982 | 30413.59 | 0.00 | 0.00 | 1.00 | $200,000 | $0 |
Roll Value History
| 2026 | N/A | N/A | N/A | N/A | N/A |
| 2025 | $194,877 | $200,000 | $0 | $394,877 | $394,877 |
| 2024 | $202,083 | $200,000 | $0 | $402,083 | $402,083 |
| 2023 | $205,133 | $200,000 | $0 | $405,133 | $405,133 |
| 2022 | $199,553 | $200,000 | $0 | $399,553 | $399,553 |
| 2021 | $175,933 | $125,000 | $0 | $300,933 | $300,933 |
| 2020 | $171,574 | $110,000 | $0 | $281,574 | $281,574 |
| 2019 | $123,853 | $160,000 | $0 | $283,853 | $283,853 |
| 2018 | $124,265 | $140,000 | $0 | $264,265 | $264,265 |
| 2017 | $125,087 | $125,000 | $0 | $250,087 | $250,087 |
| 2016 | $105,090 | $90,000 | $0 | $195,090 | $195,090 |
| 2015 | $106,785 | $85,000 | $0 | $191,785 | $191,785 |
| 2014 | $108,480 | $80,000 | $0 | $188,480 | $188,480 |
| 2013 | $110,175 | $63,750 | $0 | $173,925 | $173,925 |
| 2012 | $111,870 | $63,750 | $0 | $175,620 | $175,620 |
| 2011 | $113,565 | $75,000 | $0 | $188,565 | $188,565 |
| 2010 | $126,286 | $75,000 | $0 | $201,286 | $201,286 |
| 2009 | $131,798 | $85,000 | $0 | $216,798 | $216,798 |
| 2008 | $133,560 | $85,000 | $0 | $218,560 | $218,560 |
| 2007 | $135,321 | $70,000 | $0 | $205,321 | $205,321 |
Deed and Sales History
| 1 | 02/26/2009 | WD | Warranty Deed | DELBROUCK, JERRY D | ANDERSON, MATTHEW L | | | $195,000.00 | 90397 | 4245367 |
| 2 | 09/22/1999 | WD | Warranty Deed | KILLION, MARK A | DELBROUCK, JERRY D | | | $130,000.00 | 94056 | 99022430 |
| 3 | 03/01/1993 | WD | Warranty Deed | TROTTER, STEVEN B | KILLION, MARK A | | | $112,000.00 | 31027 | 93005344 |
| 4 | 10/01/1990 | WD | Warranty Deed | YALE, KENNETH W | TROTTER, STEVEN B | | | $96,500.00 | 5754 | 90019402 |
| 5 | 10/01/1989 | WD | Warranty Deed | MARTIN, CLIFTON C | YALE, KENNETH W | | | $81,500.00 | 94765 | 89015483 |
| 6 | 01/01/1900 | OTHER | Other - Misc. Documents | Unknown | MARTIN, CLIFTON C | | | $0.00 | 0 | 0 |
Payout Agreement
| No payout information available.. |