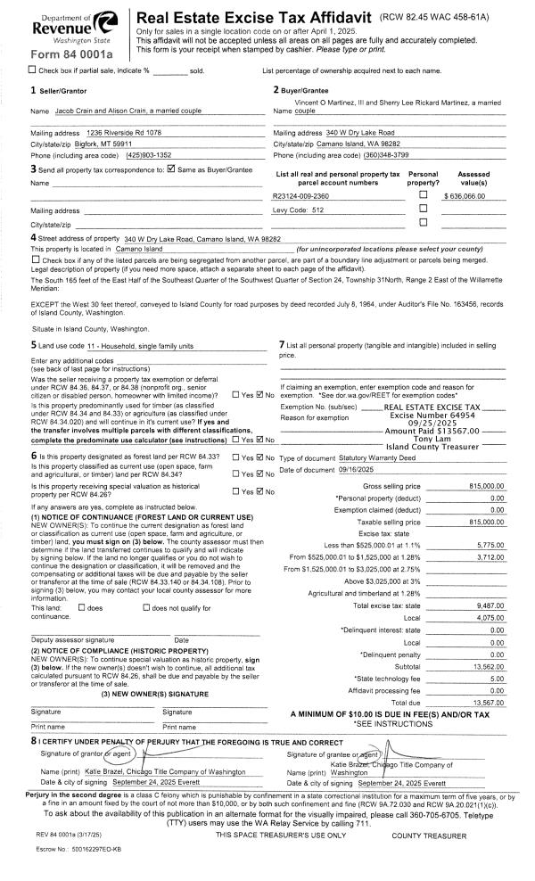
Property
Account |
| Property ID: | 23076 | Abbreviated Legal Description: | 37 - IN GL2:BG NW CR PENN COVE MAN S88*E961.39' N1* E146.52' TPB S88*E135.87' N2*E527.16' N88*W270.01' S2*W507.73' S79*E135.51' TPB TGW EZ |
| Geographic ID: | R13221-041-3110 | Agent Code: | |
| Type: | Real | | |
| Tax Area: | 332 - APPRAISER-Cpvl Schl Dist, Special Dist, improved, greater than 1 acre | Land Use Code | 11 |
| Open Space: | N | DFL | N |
| Historic Property: | N | Remodel Property: | N |
| Multi-Family Redevelopment: | N | | |
| Township: | 32 | Section: | 21 |
| Range: | R1 |
Location |
| Address: | 828 SKYLARK PL OAK HARBOR, WA 98277 | Mapsco: | |
| Neighborhood: | Cycle 2 | Map ID: | 150 |
| Neighborhood CD: | 2 |
Owner |
| Name: | RODIEK, JON E | Owner ID: | 272557 |
| Mailing Address: | SUSAN D RODIEK 1587 PENN COVE RD OAK HARBOR, WA 98277 | % Ownership: | 100.0000000000% |
| | | Exemptions: | |
Taxes and Assessment Details
Values
| (+) Improvement Homesite Value: | + | $0 | |
| (+) Improvement Non-Homesite Value: | + | $425,542 | |
| (+) Land Homesite Value: | + | $0 | |
| (+) Land Non-Homesite Value: | + | $320,128 | |
| (+) Curr Use (HS): | + | $0 | $0 |
| (+) Curr Use (NHS): | + | $0 | $0 |
| | | -------------------------- | |
| (=) Market Value: | = | $745,670 | |
| (–) Productivity Loss: | – | $0 | |
| | | -------------------------- | |
| (=) Subtotal: | = | $745,670 | |
| (+) Senior Appraised Value: | + | $0 | |
| (+) Non-Senior Appraised Value: | + | $745,670 | |
| | | -------------------------- | |
| (=) Total Appraised Value: | = | $745,670 | |
| (–) Senior Exemption Loss: | – | $0 | |
| (–) Exemption Loss: | – | $0 | |
| | | -------------------------- | |
| (=) Taxable Value: | = | $745,670 | |
Taxing Jurisdiction
| Owner: | RODIEK, JON E | | |
| % Ownership: | 100.0000000000% | | |
| Total Value: | $745,670 | | |
| Tax Area: | 332 - APPRAISER-Cpvl Schl Dist, Special Dist, improved, greater than 1 acre |
| CF | Conservation Futures | 0.0316035091 | $745,670 | $745,670 | $23.57 | | |
| CEM2 | Cemetery #2 | 0.0095056933 | $745,670 | $745,670 | $7.09 | | |
| FIRE2 | Fire & Rescue Dist #2 N Whidbey GEN | 0.5475949600 | $745,670 | $745,670 | $408.33 | | |
| HOBOND | Hospital BOND | 0.1910887512 | $745,670 | $745,670 | $142.49 | | |
| HOGEN | Hospital GEN | 0.3902502903 | $745,670 | $745,670 | $291.00 | | |
| CE | County Current Expense | 0.3708482477 | $745,670 | $745,670 | $276.53 | | |
| CR | County Roads | 0.4584763726 | $745,670 | $745,670 | $341.87 | | |
| ISLANDEMS | Hospital GEN (EMS) | 0.5000000000 | $745,670 | $745,670 | $372.84 | | |
| LIB | Library Sno-Isle GEN | 0.3153421757 | $745,670 | $745,670 | $235.14 | | |
| LIBCAP | Library Sno-Isle BOND (Cap Fac Imp Area) | 0.0543427938 | $745,670 | $745,670 | $40.52 | | |
| POCOUP | Port of Coupeville GEN | 0.1093371703 | $745,670 | $745,670 | $81.53 | | |
| POCOUPIDD | Port of Coupeville IDD | 0.3409740022 | $745,670 | $745,670 | $254.25 | | |
| COUPSDTECH | School 204 CP (TECH) | 0.7545480007 | $745,670 | $745,670 | $562.64 | | |
| SCH204MO | School 204 Enrichment | 0.6716186034 | $745,670 | $745,670 | $500.81 | | |
| ST | State School | 1.3035497053 | $745,670 | $745,670 | $972.02 | | |
| ST2 | State School Part 2 | 0.8169543533 | $745,670 | $745,670 | $609.18 | | |
| | Total Tax Rate: | 6.8660346289 | | | | | |
| | | | | Taxes w/Current Exemptions: | $5,119.81 | | |
| | | | | Taxes w/o Exemptions: | $5,119.81 | | |
Improvement / Building
| Improvement #1: | RESIDENTIAL | State Code: | Y | 2260.0 sqft | Value: | $425,542 |
| Bathrooms: | 2 | Bedrooms: | 3 | | Ceiling: | DRYWALL PAINTED | Cooling: | HEAT PUMP/CONV/V | | Exterior Wall/Cover: | CEMENT FIBER | Floor Covering: | VINYL 100% | | Floor Structure: | WOOD W/SUBFLOOR | Foundation: | CONCRETE | | Interior Finish: | DRYWALL PAINT | Plumbing Fixture Cnt: | 12 | | Roof Slope: | 5" IN 12" | Roof Structure/Cover: | CJ ASPHALT |
|
| | Type | Description | Class CD | Sub Class CD | Year Built | Area |
| | BAS | BASE/MAIN FLOOR | 3 | 0 | 2020 | 2260.0 |
| | AGR | ATTACHED GARAGE | 3 | 0 | 2020 | 576.0 |
| | OP1 | OPEN PORCH SLAB | 3 | 0 | 2020 | 620.0 |
| | OP1 | OPEN PORCH SLAB | 3 | 0 | 2020 | 336.0 |
Sketch
| No sketches available for this property. |
Property Image
Land
| 1 | HS | HOMESITE | 1.0000 | 43560.00 | 0.00 | 0.00 | 1.00 | $220,000 | $0 |
| 2 | 91 | UNDEVELOPED LAND-METES AND BOUNDS | 2.2400 | 97574.40 | 0.00 | 0.00 | 1.00 | $100,128 | $0 |
Roll Value History
| 2026 | N/A | N/A | N/A | N/A | N/A |
| 2025 | $425,542 | $320,128 | $0 | $745,670 | $745,670 |
| 2024 | $498,971 | $300,000 | $0 | $798,971 | $798,971 |
| 2023 | $502,932 | $280,000 | $0 | $782,932 | $782,932 |
| 2022 | $460,169 | $260,000 | $0 | $720,169 | $720,169 |
| 2021 | $407,444 | $170,000 | $0 | $577,444 | $577,444 |
| 2020 | $400,490 | $170,000 | $0 | $570,490 | $570,490 |
| 2019 | $6,100 | $100,000 | $0 | $106,100 | $106,100 |
| 2018 | $6,100 | $170,000 | $0 | $176,100 | $176,100 |
| 2017 | $6,100 | $170,000 | $0 | $176,100 | $176,100 |
| 2016 | $6,100 | $130,000 | $0 | $136,100 | $136,100 |
| 2015 | $6,100 | $100,000 | $0 | $106,100 | $106,100 |
| 2014 | $6,100 | $100,000 | $0 | $106,100 | $106,100 |
| 2013 | $6,100 | $77,760 | $0 | $83,860 | $83,860 |
| 2012 | $0 | $12,800 | $0 | $12,800 | $12,800 |
| 2011 | $0 | $12,800 | $0 | $12,800 | $12,800 |
| 2010 | $0 | $12,800 | $0 | $12,800 | $12,800 |
| 2009 | $0 | $18,400 | $0 | $18,400 | $18,400 |
| 2008 | $0 | $29,124 | $0 | $29,124 | $29,124 |
| 2007 | $0 | $109,408 | $0 | $109,408 | $109,408 |
Deed and Sales History
| 1 | 10/21/2015 | WD | Warranty Deed | LONGLEY, CHARLES GUY | RODIEK, JON E | | | $142,000.00 | 21888 | 4388283 |
| 2 | 12/03/2013 | WD | Warranty Deed | GARDEN, CHRISTOPHER ALEXANDER | LONGLEY, CHARLES GUY | | | $125,000.00 | 13617 | 4352188 |
| 3 | 10/09/2008 | PRD | Personal Representatives Deed | GARDEN, J S S | GARDEN ET AL, CHRISTOPHER ALE | | | $0.00 | 82692 | 4238332 |
| 4 | 01/01/1900 | OTHER | Other - Misc. Documents | Unknown | GARDEN, J S S | | | $0.00 | 0 | 0 |
Payout Agreement
| No payout information available.. |