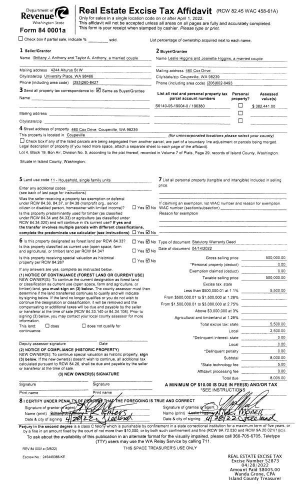
Property
Account |
| Property ID: | 231644 | Abbreviated Legal Description: | CLINTON LOT 25 BLK 2 TGW ADJ VAC ALLEY |
| Geographic ID: | S6380-00-02025-0 | Agent Code: | |
| Type: | Real | | |
| Tax Area: | 720 - APPRAISER-S Whid Schl Dist, Special District, improved & less than 1 acre | Land Use Code | 11 |
| Open Space: | N | DFL | N |
| Historic Property: | N | Remodel Property: | N |
| Multi-Family Redevelopment: | N | | |
| Township: | | Section: | |
| Range: | |
Location |
| Address: | 6513 CENTRAL AVE CLINTON, WA 98236 | Mapsco: | |
| Neighborhood: | Cycle 4 | Map ID: | 815 |
| Neighborhood CD: | 4 |
Owner |
| Name: | TRAUTMAN, TIMOTHY ALAN | Owner ID: | 302526 |
| Mailing Address: | 6513 CENTRAL AVE CLINTON, WA 98236 | % Ownership: | 100.0000000000% |
| | | Exemptions: | |
Taxes and Assessment Details
Values
| (+) Improvement Homesite Value: | + | $0 | |
| (+) Improvement Non-Homesite Value: | + | $290,534 | |
| (+) Land Homesite Value: | + | $0 | |
| (+) Land Non-Homesite Value: | + | $240,000 | |
| (+) Curr Use (HS): | + | $0 | $0 |
| (+) Curr Use (NHS): | + | $0 | $0 |
| | | -------------------------- | |
| (=) Market Value: | = | $530,534 | |
| (–) Productivity Loss: | – | $0 | |
| | | -------------------------- | |
| (=) Subtotal: | = | $530,534 | |
| (+) Senior Appraised Value: | + | $0 | |
| (+) Non-Senior Appraised Value: | + | $530,534 | |
| | | -------------------------- | |
| (=) Total Appraised Value: | = | $530,534 | |
| (–) Senior Exemption Loss: | – | $0 | |
| (–) Exemption Loss: | – | $0 | |
| | | -------------------------- | |
| (=) Taxable Value: | = | $530,534 | |
Taxing Jurisdiction
| Owner: | TRAUTMAN, TIMOTHY ALAN | | |
| % Ownership: | 100.0000000000% | | |
| Total Value: | $530,534 | | |
| Tax Area: | 720 - APPRAISER-S Whid Schl Dist, Special District, improved & less than 1 acre |
| CF | Conservation Futures | 0.0316035091 | $530,534 | $530,534 | $16.77 | | |
| FIRE3 | Fire & Rescue Dist #3 S Whidbey GEN | 1.2004855531 | $530,534 | $530,534 | $636.90 | | |
| HOBOND | Hospital BOND | 0.1910887512 | $530,534 | $530,534 | $101.38 | | |
| HOGEN | Hospital GEN | 0.3902502903 | $530,534 | $530,534 | $207.04 | | |
| CE | County Current Expense | 0.3708482477 | $530,534 | $530,534 | $196.75 | | |
| CR | County Roads | 0.4584763726 | $530,534 | $530,534 | $243.24 | | |
| ISLANDEMS | Hospital GEN (EMS) | 0.5000000000 | $530,534 | $530,534 | $265.27 | | |
| LIB | Library Sno-Isle GEN | 0.3153421757 | $530,534 | $530,534 | $167.30 | | |
| PORTWHID | Port of S Whidbey GEN | 0.1094540357 | $530,534 | $530,534 | $58.07 | | |
| SCH206BOND | School 206 BOND | 0.3161759235 | $530,534 | $530,534 | $167.74 | | |
| SCH206MO | School 206 Enrichment | 0.4547169547 | $530,534 | $530,534 | $241.24 | | |
| ST | State School | 1.3035497053 | $530,534 | $530,534 | $691.58 | | |
| ST2 | State School Part 2 | 0.8169543533 | $530,534 | $530,534 | $433.42 | | |
| SWHIDPRBD | P & R S Whidbey BOND | 0.0152817568 | $530,534 | $530,534 | $8.11 | | |
| SWHIDPRBD2 | P & R S Whidbey BOND2 | 0.0138911264 | $530,534 | $530,534 | $7.37 | | |
| SWHIDPRMT | P & R S Whidbey GEN | 0.2053334452 | $530,534 | $530,534 | $108.94 | | |
| | Total Tax Rate: | 6.6934522006 | | | | | |
| | | | | Taxes w/Current Exemptions: | $3,551.12 | | |
| | | | | Taxes w/o Exemptions: | $3,551.12 | | |
Improvement / Building
| Improvement #1: | RESIDENTIAL | State Code: | Y | 1869.0 sqft | Value: | $290,534 |
| Bathrooms: | 2 | Bedrooms: | 2 | | Ceiling: | DRYWALL PAINTED | Cooling: | HEAT PUMP/CONV/V | | Exterior Wall/Cover: | PLY/HARDBOARD T-111 | Floor Covering: | CARPET/VINYL 80-20 | | Floor Structure: | WOOD W/SUBFLOOR | Foundation: | CONCRETE | | Interior Finish: | DRYWALL PAINT | Plumbing Fixture Cnt: | 9 | | Roof Slope: | 12" IN 12" | Roof Structure/Cover: | CJ ASPHALT |
|
| | Type | Description | Class CD | Sub Class CD | Year Built | Area |
| | BAS | BASE/MAIN FLOOR | 3 | 0 | 1992 | 960.0 |
| | BIG | BUILT IN GARAGE | 3 | 0 | 1992 | 417.0 |
| | OWP | OPEN WOOD PORCH W/STEPS | 3 | 0 | 1992 | 162.0 |
| | UPH | HALF STORY | 3 | 0 | 1992 | 444.0 |
| | OWP | OPEN WOOD PORCH W/STEPS | 3 | 0 | 1992 | 32.0 |
| | OWP | OPEN WOOD PORCH W/STEPS | 3 | 0 | 1992 | 304.8 |
| | DWN | DOWNSTAIRS LIVING AREA | 3 | 0 | 1992 | 465.0 |
Sketch
Property Image
Land
| 1 | 13 | SQ (06001-08000) | 0.1800 | 7840.80 | 0.00 | 0.00 | 1.00 | $240,000 | $0 |
Roll Value History
| 2026 | N/A | N/A | N/A | N/A | N/A |
| 2025 | $290,534 | $240,000 | $0 | $530,534 | $530,534 |
| 2024 | $294,245 | $230,000 | $0 | $524,245 | $524,245 |
| 2023 | $297,958 | $230,000 | $0 | $527,958 | $527,958 |
| 2022 | $273,167 | $210,000 | $0 | $483,167 | $483,167 |
| 2021 | $240,452 | $150,000 | $0 | $390,452 | $390,452 |
| 2020 | $203,637 | $130,000 | $0 | $333,637 | $333,637 |
| 2019 | $147,152 | $150,000 | $0 | $297,152 | $297,152 |
| 2018 | $147,604 | $130,000 | $0 | $277,604 | $277,604 |
| 2017 | $148,510 | $110,000 | $0 | $258,510 | $258,510 |
| 2016 | $150,320 | $85,000 | $0 | $235,320 | $235,320 |
| 2015 | $152,132 | $85,000 | $0 | $237,132 | $237,132 |
| 2014 | $148,023 | $85,000 | $0 | $233,023 | $233,023 |
| 2013 | $149,880 | $85,000 | $0 | $234,880 | $234,880 |
| 2012 | $151,738 | $76,000 | $0 | $227,738 | $227,738 |
| 2011 | $153,596 | $85,000 | $0 | $238,596 | $238,596 |
| 2010 | $159,864 | $85,000 | $0 | $244,864 | $244,864 |
| 2009 | $166,860 | $100,000 | $0 | $266,860 | $266,860 |
| 2008 | $142,190 | $100,000 | $0 | $242,190 | $242,190 |
| 2007 | $144,128 | $100,000 | $0 | $244,128 | $244,128 |
Deed and Sales History
| 1 | 12/17/2021 | WD | Warranty Deed | WUEST, JENNIFER LEIGH | TRAUTMAN, TIMOTHY ALAN | | | $477,000.00 | 51527 | 4536927 |
| 2 | 08/27/2019 | WD | Warranty Deed | PINCH, NICHOLAS J | WUEST, JENNIFER LEIGH | | | $327,450.00 | 40025 | 4470302 |
| 3 | 09/30/2009 | WD | Warranty Deed | COCKERILL TRUSTEE, PEGGY A | PINCH, NICHOLAS J | | | $192,000.00 | 92332 | 4261044 |
| 4 | 02/15/2006 | 5 | DNU - Marriage License/Name Change | COCKERILL, PEGGY A | COCKERILL TRUSTEE, PEGGY A | | | $0.00 | 63219 | 4177155 |
| 5 | 02/15/2006 | QCD | Quit Claim Deed | COCKERILL, PEGGY A | COCKERILL, PEGGY A | | | $0.00 | 63218 | 4177154 |
| 6 | 09/24/2004 | WD | Warranty Deed | STROUSS, C A | COCKERILL, PEGGY A | | | $166,000.00 | 44547 | 4114095 |
| 7 | 05/01/1996 | WD | Warranty Deed | STANDINGER, MICHAEL C | STROUSS, C A | | | $125,000.00 | 61697 | 96008396 |
| 8 | 10/01/1991 | WD | Warranty Deed | STANDINGER, MICHAEL C | STANDINGER, MICHAEL C | | | $4,100.00 | 13862 | 91016490 |
| 9 | 10/01/1991 | WD | Warranty Deed | JEVNE, PAUL R | STANDINGER, MICHAEL C | | | $0.00 | 20068 | 92000219 |
| 10 | 01/01/1900 | OTHER | Other - Misc. Documents | Unknown | JEVNE, PAUL R | | | $0.00 | 0 | 0 |
Payout Agreement
| No payout information available.. |