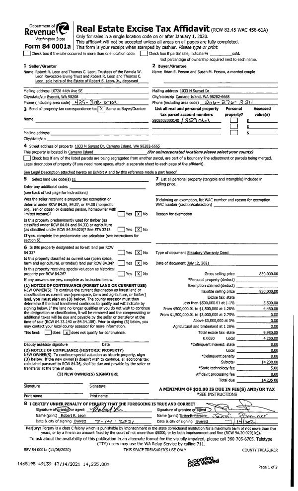
Property
Account |
| Property ID: | 231822 | Abbreviated Legal Description: | CLINTON N/2 LOT 3 & ALL LOT 4 & S37.50' OF LOT 5 BLK 5 TGW ADJ E/2 VAC ALLEY |
| Geographic ID: | S6380-00-05004-0 | Agent Code: | |
| Type: | Real | | |
| Tax Area: | 720 - APPRAISER-S Whid Schl Dist, Special District, improved & less than 1 acre | Land Use Code | 11 |
| Open Space: | N | DFL | N |
| Historic Property: | N | Remodel Property: | N |
| Multi-Family Redevelopment: | N | | |
| Township: | | Section: | |
| Range: | |
Location |
| Address: | 6508 CENTRAL AVE CLINTON, WA 98236 | Mapsco: | |
| Neighborhood: | Cycle 4 | Map ID: | 815 |
| Neighborhood CD: | 4 |
Owner |
| Name: | LEWARNE, KARYN E | Owner ID: | 96377 |
| Mailing Address: | 6508 CENTRAL AVE CLINTON, WA 98236-9699 | % Ownership: | 100.0000000000% |
| | | Exemptions: | |
Taxes and Assessment Details
Values
| (+) Improvement Homesite Value: | + | $0 | |
| (+) Improvement Non-Homesite Value: | + | $320,109 | |
| (+) Land Homesite Value: | + | $0 | |
| (+) Land Non-Homesite Value: | + | $240,000 | |
| (+) Curr Use (HS): | + | $0 | $0 |
| (+) Curr Use (NHS): | + | $0 | $0 |
| | | -------------------------- | |
| (=) Market Value: | = | $560,109 | |
| (–) Productivity Loss: | – | $0 | |
| | | -------------------------- | |
| (=) Subtotal: | = | $560,109 | |
| (+) Senior Appraised Value: | + | $0 | |
| (+) Non-Senior Appraised Value: | + | $560,109 | |
| | | -------------------------- | |
| (=) Total Appraised Value: | = | $560,109 | |
| (–) Senior Exemption Loss: | – | $0 | |
| (–) Exemption Loss: | – | $0 | |
| | | -------------------------- | |
| (=) Taxable Value: | = | $560,109 | |
Taxing Jurisdiction
| Owner: | LEWARNE, KARYN E | | |
| % Ownership: | 100.0000000000% | | |
| Total Value: | $560,109 | | |
| Tax Area: | 720 - APPRAISER-S Whid Schl Dist, Special District, improved & less than 1 acre |
| CF | Conservation Futures | 0.0316035091 | $560,109 | $560,109 | $17.70 | | |
| FIRE3 | Fire & Rescue Dist #3 S Whidbey GEN | 1.2004855531 | $560,109 | $560,109 | $672.40 | | |
| HOBOND | Hospital BOND | 0.1910887512 | $560,109 | $560,109 | $107.03 | | |
| HOGEN | Hospital GEN | 0.3902502903 | $560,109 | $560,109 | $218.58 | | |
| CE | County Current Expense | 0.3708482477 | $560,109 | $560,109 | $207.72 | | |
| CR | County Roads | 0.4584763726 | $560,109 | $560,109 | $256.80 | | |
| ISLANDEMS | Hospital GEN (EMS) | 0.5000000000 | $560,109 | $560,109 | $280.05 | | |
| LIB | Library Sno-Isle GEN | 0.3153421757 | $560,109 | $560,109 | $176.63 | | |
| PORTWHID | Port of S Whidbey GEN | 0.1094540357 | $560,109 | $560,109 | $61.31 | | |
| SCH206BOND | School 206 BOND | 0.3161759235 | $560,109 | $560,109 | $177.09 | | |
| SCH206MO | School 206 Enrichment | 0.4547169547 | $560,109 | $560,109 | $254.69 | | |
| ST | State School | 1.3035497053 | $560,109 | $560,109 | $730.13 | | |
| ST2 | State School Part 2 | 0.8169543533 | $560,109 | $560,109 | $457.58 | | |
| SWHIDPRBD | P & R S Whidbey BOND | 0.0152817568 | $560,109 | $560,109 | $8.56 | | |
| SWHIDPRBD2 | P & R S Whidbey BOND2 | 0.0138911264 | $560,109 | $560,109 | $7.78 | | |
| SWHIDPRMT | P & R S Whidbey GEN | 0.2053334452 | $560,109 | $560,109 | $115.01 | | |
| | Total Tax Rate: | 6.6934522006 | | | | | |
| | | | | Taxes w/Current Exemptions: | $3,749.06 | | |
| | | | | Taxes w/o Exemptions: | $3,749.06 | | |
Improvement / Building
| Improvement #1: | RESIDENTIAL | State Code: | Y | 1799.0 sqft | Value: | $320,109 |
| Bathrooms: | 1.5 | Bedrooms: | 3 | | Ceiling: | PLASTER PAINTED | Cooling: | HEAT PUMP/CONV/V | | Exterior Wall/Cover: | COMMON BRICK VENEER | Floor Covering: | VINYL/HARDWOOD 20-80 | | Floor Structure: | WOOD W/SUBFLOOR | Foundation: | CONCRETE | | Interior Finish: | DRYWALL PAINT | Plumbing Fixture Cnt: | 8 | | Roof Slope: | 8" IN 12" | Roof Structure/Cover: | CJ ASPHALT |
|
| | Type | Description | Class CD | Sub Class CD | Year Built | Area |
| | BAS | BASE/MAIN FLOOR | 4 | 0 | 1951 | 1088.0 |
| | UB6 | BASEMENT UNFINISHED 6" | 4 | 0 | 1951 | 1088.0 |
| | OP2 | OPEN PORCH W/STEPS | 4 | 0 | 1951 | 20.0 |
| | OP4 | OPEN PORCH W/CEILING-ROOF | 4 | 0 | 1951 | 32.0 |
| | OWP | OPEN WOOD PORCH W/STEPS | 4 | 0 | 1951 | 238.0 |
| | UPH | HALF STORY | 4 | 0 | 1951 | 711.0 |
Sketch
Property Image
Land
| 1 | 15 | SQ (12001-21780) | 0.0000 | 0.00 | 0.00 | 0.00 | 1.00 | $240,000 | $0 |
Roll Value History
| 2026 | N/A | N/A | N/A | N/A | N/A |
| 2025 | $320,109 | $240,000 | $0 | $560,109 | $560,109 |
| 2024 | $324,870 | $230,000 | $0 | $554,870 | $554,870 |
| 2023 | $325,993 | $230,000 | $0 | $555,993 | $555,993 |
| 2022 | $299,446 | $210,000 | $0 | $509,446 | $509,446 |
| 2021 | $264,099 | $150,000 | $0 | $414,099 | $414,099 |
| 2020 | $251,282 | $130,000 | $0 | $381,282 | $381,282 |
| 2019 | $188,142 | $150,000 | $0 | $338,142 | $338,142 |
| 2018 | $188,800 | $130,000 | $0 | $318,800 | $318,800 |
| 2017 | $190,122 | $110,000 | $0 | $300,122 | $300,122 |
| 2016 | $192,762 | $85,000 | $0 | $277,762 | $277,762 |
| 2015 | $195,403 | $85,000 | $0 | $280,403 | $280,403 |
| 2014 | $174,418 | $85,000 | $0 | $259,418 | $259,418 |
| 2013 | $176,796 | $85,000 | $0 | $261,796 | $261,796 |
| 2012 | $179,174 | $76,000 | $0 | $255,174 | $255,174 |
| 2011 | $181,552 | $85,000 | $0 | $266,552 | $266,552 |
| 2010 | $193,061 | $85,000 | $0 | $278,061 | $278,061 |
| 2009 | $183,215 | $100,000 | $0 | $283,215 | $283,215 |
| 2008 | $156,093 | $100,000 | $0 | $256,093 | $256,093 |
| 2007 | $158,543 | $100,000 | $0 | $258,543 | $258,543 |
Deed and Sales History
| 1 | 11/15/2006 | DECREE | Divorce Decree/Legal Separation | LEWARNE, CHARLES N | LEWARNE, KARYN E | | | $0.00 | 70455 | 4193923 |
| 2 | 08/01/1994 | WD | Warranty Deed | DUKER, LORENZ M | LEWARNE, CHARLES N | | | $137,000.00 | 43577 | 94018889 |
| 3 | 02/01/1990 | WD | Warranty Deed | GRIESER, CHARLES M | DUKER, LORENZ M | | | $112,950.00 | 1070 | 90003486 |
| 4 | 02/01/1986 | WD | Warranty Deed | INTERWEST, SAVINGS B | GRIESER, CHARLES M | | | $67,000.00 | 60420 | 86002158 |
| 5 | 06/01/1985 | QCD | Quit Claim Deed | BOND, BRIAN C | INTERWEST, SAVINGS B | | | $0.00 | 52012 | 85007934 |
| 6 | 04/01/1982 | TRUSTEED | Trustee's Deed | CAMPBELL, FRANCIS G | BOND, BRIAN C | | | $85,000.00 | 20916 | 395442 |
| 7 | 12/01/1980 | EXECUTORD | Executor Deed | SIMMONS, CARL | CAMPBELL, FRANCIS G | | | $67,500.00 | 4028 | 377036 |
| 8 | 01/01/1900 | OTHER | Other - Misc. Documents | Unknown | SIMMONS, CARL | | | $0.00 | 0 | 0 |
Payout Agreement
| No payout information available.. |