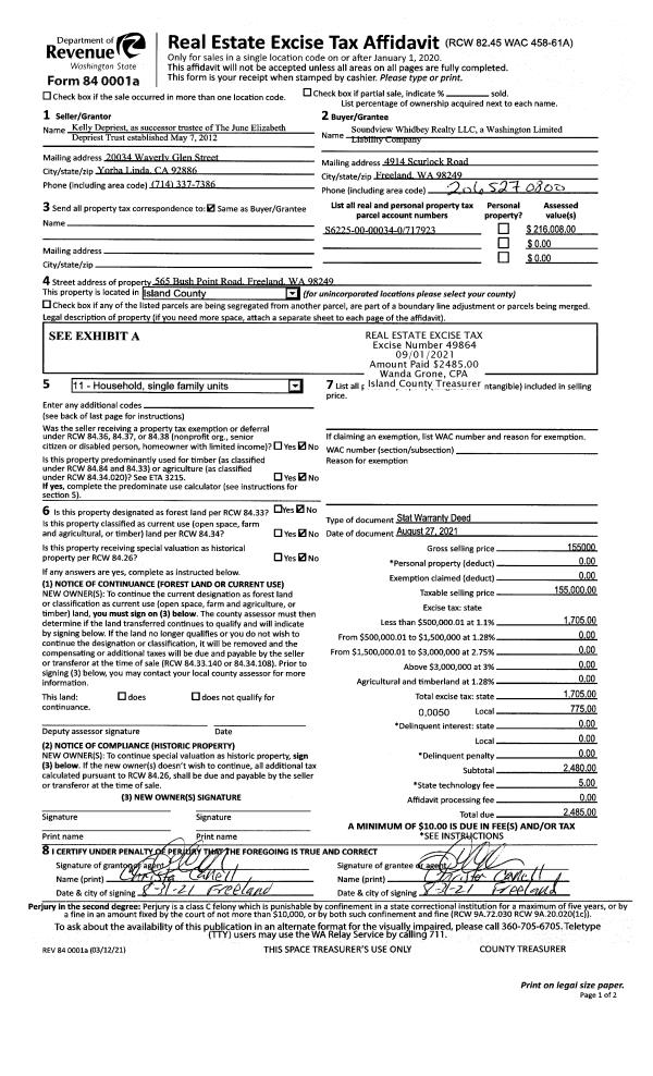
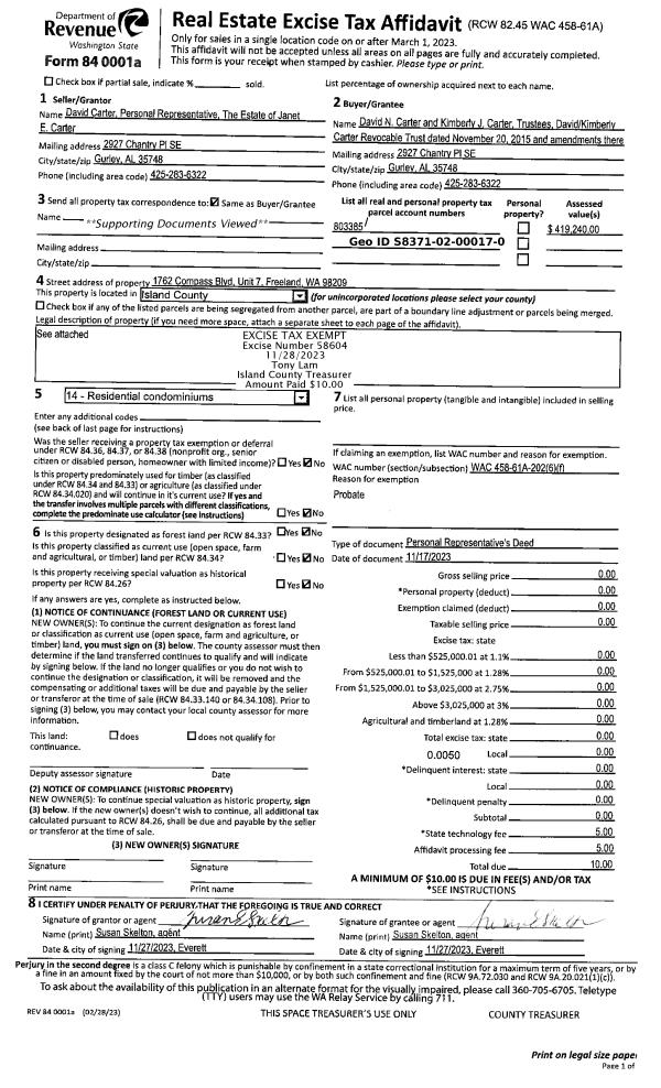
Property
Account |
| Property ID: | 231895 | Abbreviated Legal Description: | CLINTON LOT 14 BLK 5 TGW PT ADJ |
| Geographic ID: | S6380-00-05014-0 | Agent Code: | |
| Type: | Real | | |
| Tax Area: | 720 - APPRAISER-S Whid Schl Dist, Special District, improved & less than 1 acre | Land Use Code | 11 |
| Open Space: | N | DFL | N |
| Historic Property: | N | Remodel Property: | N |
| Multi-Family Redevelopment: | N | | |
| Township: | | Section: | |
| Range: | |
Location |
| Address: | 6461 HARDING AVE CLINTON, WA 98236 | Mapsco: | |
| Neighborhood: | Cycle 4 | Map ID: | 815 |
| Neighborhood CD: | 4 |
Owner |
| Name: | BENDER, TRACY LEE | Owner ID: | 309981 |
| Mailing Address: | JEFFREY KENNETH RUNNFELDT PO BOX 1147 LANGLEY, WA 98260 | % Ownership: | 100.0000000000% |
| | | Exemptions: | |
Taxes and Assessment Details
Values
| (+) Improvement Homesite Value: | + | $0 | |
| (+) Improvement Non-Homesite Value: | + | $130,587 | |
| (+) Land Homesite Value: | + | $0 | |
| (+) Land Non-Homesite Value: | + | $240,000 | |
| (+) Curr Use (HS): | + | $0 | $0 |
| (+) Curr Use (NHS): | + | $0 | $0 |
| | | -------------------------- | |
| (=) Market Value: | = | $370,587 | |
| (–) Productivity Loss: | – | $0 | |
| | | -------------------------- | |
| (=) Subtotal: | = | $370,587 | |
| (+) Senior Appraised Value: | + | $0 | |
| (+) Non-Senior Appraised Value: | + | $370,587 | |
| | | -------------------------- | |
| (=) Total Appraised Value: | = | $370,587 | |
| (–) Senior Exemption Loss: | – | $0 | |
| (–) Exemption Loss: | – | $0 | |
| | | -------------------------- | |
| (=) Taxable Value: | = | $370,587 | |
Taxing Jurisdiction
| Owner: | BENDER, TRACY LEE | | |
| % Ownership: | 100.0000000000% | | |
| Total Value: | $370,587 | | |
| Tax Area: | 720 - APPRAISER-S Whid Schl Dist, Special District, improved & less than 1 acre |
| CF | Conservation Futures | 0.0316035091 | $370,587 | $370,587 | $11.71 | | |
| FIRE3 | Fire & Rescue Dist #3 S Whidbey GEN | 1.2004855531 | $370,587 | $370,587 | $444.88 | | |
| HOBOND | Hospital BOND | 0.1910887512 | $370,587 | $370,587 | $70.82 | | |
| HOGEN | Hospital GEN | 0.3902502903 | $370,587 | $370,587 | $144.62 | | |
| CE | County Current Expense | 0.3708482477 | $370,587 | $370,587 | $137.43 | | |
| CR | County Roads | 0.4584763726 | $370,587 | $370,587 | $169.91 | | |
| ISLANDEMS | Hospital GEN (EMS) | 0.5000000000 | $370,587 | $370,587 | $185.29 | | |
| LIB | Library Sno-Isle GEN | 0.3153421757 | $370,587 | $370,587 | $116.86 | | |
| PORTWHID | Port of S Whidbey GEN | 0.1094540357 | $370,587 | $370,587 | $40.56 | | |
| SCH206BOND | School 206 BOND | 0.3161759235 | $370,587 | $370,587 | $117.17 | | |
| SCH206MO | School 206 Enrichment | 0.4547169547 | $370,587 | $370,587 | $168.51 | | |
| ST | State School | 1.3035497053 | $370,587 | $370,587 | $483.08 | | |
| ST2 | State School Part 2 | 0.8169543533 | $370,587 | $370,587 | $302.75 | | |
| SWHIDPRBD | P & R S Whidbey BOND | 0.0152817568 | $370,587 | $370,587 | $5.66 | | |
| SWHIDPRBD2 | P & R S Whidbey BOND2 | 0.0138911264 | $370,587 | $370,587 | $5.15 | | |
| SWHIDPRMT | P & R S Whidbey GEN | 0.2053334452 | $370,587 | $370,587 | $76.09 | | |
| | Total Tax Rate: | 6.6934522006 | | | | | |
| | | | | Taxes w/Current Exemptions: | $2,480.49 | | |
| | | | | Taxes w/o Exemptions: | $2,480.49 | | |
Improvement / Building
| Improvement #1: | MANUFACTURED HOME | State Code: | Y | 1296.0 sqft | Value: | $130,587 |
| Bathrooms: | 0 | Bedrooms: | 0 | | Ceiling: | PLASTER PAINTED | Cooling: | EVAP NO DUCT | | Exterior Wall/Cover: | VINYL | Floor Covering: | CARPET 100% | | Floor Structure: | SLAB ON GRADE | Foundation: | SLAB | | Heating: | FHA ELECTRIC | Interior Finish: | PLASTER | | Plumbing Fixture Cnt: | 1 | Roof Slope: | FLAT | | Roof Structure/Cover: | CJ ALUMINIUM HEAVY |   |   |
|
| | Type | Description | Class CD | Sub Class CD | Year Built | Area |
| | BAS | BASE/MAIN FLOOR | 4 | 0 | 1998 | 1296.0 |
| | oOBD | Out Buildings | 3 | 0 | 1998 | 640.0 |
Sketch
Property Image
Land
| 1 | 14 | SQ (08001-12000) | 0.0000 | 0.00 | 0.00 | 0.00 | 1.00 | $240,000 | $0 |
Roll Value History
| 2026 | N/A | N/A | N/A | N/A | N/A |
| 2025 | $130,587 | $240,000 | $0 | $370,587 | $370,587 |
| 2024 | $133,802 | $230,000 | $0 | $363,802 | $363,802 |
| 2023 | $88,299 | $230,000 | $0 | $318,299 | $318,299 |
| 2022 | $83,116 | $210,000 | $0 | $293,116 | $293,116 |
| 2021 | $75,506 | $150,000 | $0 | $225,506 | $59,510 |
| 2020 | $71,723 | $130,000 | $0 | $201,723 | $59,510 |
| 2019 | $60,092 | $150,000 | $0 | $210,092 | $59,510 |
| 2018 | $61,566 | $130,000 | $0 | $191,566 | $59,510 |
| 2017 | $63,039 | $110,000 | $0 | $173,039 | $59,510 |
| 2016 | $63,775 | $85,000 | $0 | $148,775 | $59,510 |
| 2015 | $65,249 | $85,000 | $0 | $150,249 | $150,249 |
| 2014 | $57,029 | $85,000 | $0 | $142,029 | $142,029 |
| 2013 | $58,345 | $85,000 | $0 | $143,345 | $143,345 |
| 2012 | $59,660 | $76,000 | $0 | $135,660 | $135,660 |
| 2011 | $60,976 | $85,000 | $0 | $145,976 | $145,976 |
| 2010 | $62,553 | $85,000 | $0 | $147,553 | $147,553 |
| 2009 | $65,832 | $100,000 | $0 | $165,832 | $165,832 |
| 2008 | $63,625 | $100,000 | $0 | $163,625 | $163,625 |
| 2007 | $65,079 | $100,000 | $0 | $165,079 | $165,079 |
Deed and Sales History
| 1 | 08/31/2023 | WD | Warranty Deed | HARDAWAY, MELISSA | BENDER, TRACY LEE | | | $410,000.00 | 57900 | 4564409 |
| 2 | 09/02/2021 | TOD | Transfer On Death Deed | MONTGOMERY, KEITH | HARDAWAY, MELISSA | | | $0.00 | 54685 | 4551816 |
| 3 | 09/28/2022 | MANHOME | Manufactured Home | MONTGOMERY, KEITH | HARDAWAY, MELISSA | | | $0.00 | 54686 | |
| 4 | 01/08/2015 | OTHER | Other - Misc. Documents | SPURGEON, MARY E | MONTGOMERY, KEITH | | | $0.00 | 20514 | 4382357 |
| 5 | 09/15/2015 | TOD | Transfer On Death Deed | SPURGEON, LARRY G & MARY E | SPURGEON, MARY E | | | | 87212 | |
| 6 | 02/08/1999 | PACD | Purchaser's Assignment | SPURGEON, LARRY G | SPURGEON, LARRY G | | | $42,995.00 | 0 | 0 |
| 7 | 02/01/1991 | WD | Warranty Deed | Unknown | SPURGEON, LARRY G | | | $22,000.00 | 10448 | 91002020 |
Payout Agreement
| No payout information available.. |