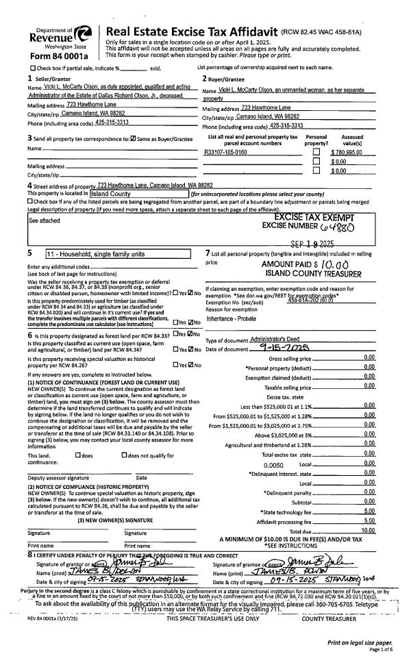
Property
Account |
| Property ID: | 231948 | Abbreviated Legal Description: | CLINTON LOT 4 BLK 6 & E/2 ADJ VAC ALLEY AF#344420 FINAL SITE PLAN 18/90 AF# 91005291 |
| Geographic ID: | S6380-00-06004-0 | Agent Code: | |
| Type: | Real | | |
| Tax Area: | 720 - APPRAISER-S Whid Schl Dist, Special District, improved & less than 1 acre | Land Use Code | 65 |
| Open Space: | N | DFL | N |
| Historic Property: | N | Remodel Property: | N |
| Multi-Family Redevelopment: | N | | |
| Township: | | Section: | |
| Range: | |
Location |
| Address: | 6442 CENTRAL AVE CLINTON, WA 98236 | Mapsco: | |
| Neighborhood: | 44cCL-central ave | Map ID: | 815 |
| Neighborhood CD: | 44cCLcentr |
Owner |
| Name: | MANGONE, WENDY ADAIR | Owner ID: | 317410 |
| Mailing Address: | ERIC BLANCHARD HOFFLER 966 CHELHAM WAY MONTECITO, CA 93108 | % Ownership: | 100.0000000000% |
| | | Exemptions: | |
Taxes and Assessment Details
Values
| (+) Improvement Homesite Value: | + | $0 | |
| (+) Improvement Non-Homesite Value: | + | $158,932 | |
| (+) Land Homesite Value: | + | $0 | |
| (+) Land Non-Homesite Value: | + | $240,000 | |
| (+) Curr Use (HS): | + | $0 | $0 |
| (+) Curr Use (NHS): | + | $0 | $0 |
| | | -------------------------- | |
| (=) Market Value: | = | $398,932 | |
| (–) Productivity Loss: | – | $0 | |
| | | -------------------------- | |
| (=) Subtotal: | = | $398,932 | |
| (+) Senior Appraised Value: | + | $0 | |
| (+) Non-Senior Appraised Value: | + | $398,932 | |
| | | -------------------------- | |
| (=) Total Appraised Value: | = | $398,932 | |
| (–) Senior Exemption Loss: | – | $0 | |
| (–) Exemption Loss: | – | $0 | |
| | | -------------------------- | |
| (=) Taxable Value: | = | $398,932 | |
Taxing Jurisdiction
| Owner: | MANGONE, WENDY ADAIR | | |
| % Ownership: | 100.0000000000% | | |
| Total Value: | $398,932 | | |
| Tax Area: | 720 - APPRAISER-S Whid Schl Dist, Special District, improved & less than 1 acre |
| CF | Conservation Futures | 0.0316035091 | $398,932 | $398,932 | $12.61 | | |
| FIRE3 | Fire & Rescue Dist #3 S Whidbey GEN | 1.2004855531 | $398,932 | $398,932 | $478.91 | | |
| HOBOND | Hospital BOND | 0.1910887512 | $398,932 | $398,932 | $76.23 | | |
| HOGEN | Hospital GEN | 0.3902502903 | $398,932 | $398,932 | $155.68 | | |
| CE | County Current Expense | 0.3708482477 | $398,932 | $398,932 | $147.94 | | |
| CR | County Roads | 0.4584763726 | $398,932 | $398,932 | $182.90 | | |
| ISLANDEMS | Hospital GEN (EMS) | 0.5000000000 | $398,932 | $398,932 | $199.47 | | |
| LIB | Library Sno-Isle GEN | 0.3153421757 | $398,932 | $398,932 | $125.80 | | |
| PORTWHID | Port of S Whidbey GEN | 0.1094540357 | $398,932 | $398,932 | $43.66 | | |
| SCH206BOND | School 206 BOND | 0.3161759235 | $398,932 | $398,932 | $126.13 | | |
| SCH206MO | School 206 Enrichment | 0.4547169547 | $398,932 | $398,932 | $181.40 | | |
| ST | State School | 1.3035497053 | $398,932 | $398,932 | $520.03 | | |
| ST2 | State School Part 2 | 0.8169543533 | $398,932 | $398,932 | $325.91 | | |
| SWHIDPRBD | P & R S Whidbey BOND | 0.0152817568 | $398,932 | $398,932 | $6.10 | | |
| SWHIDPRBD2 | P & R S Whidbey BOND2 | 0.0138911264 | $398,932 | $398,932 | $5.54 | | |
| SWHIDPRMT | P & R S Whidbey GEN | 0.2053334452 | $398,932 | $398,932 | $81.91 | | |
| | Total Tax Rate: | 6.6934522006 | | | | | |
| | | | | Taxes w/Current Exemptions: | $2,670.22 | | |
| | | | | Taxes w/o Exemptions: | $2,670.22 | | |
Improvement / Building
| Improvement #1: | COMMERCIAL | State Code: | A1 | 1996.0 sqft | Value: | $158,932 |
| Bathrooms: | 0 | Bedrooms: | 0 | | Ceiling: | DRYWALL PAINTED | Exterior Wall/Cover: | WD/WD OR STEEL STUDS | | Floor Covering: | CARPET 100% | Floor Structure: | CONCRETE ON GROUND | | Foundation: | SLAB | Heating: | WALL HEAT ELECTRIC | | Interior Finish: | OFFICE | Plumbing Fixture Cnt: | 1 | | Roof Structure/Cover: | COMP OPEN WOOD |   |   |
|
| | Type | Description | Class CD | Sub Class CD | Year Built | Area |
| | BAS | BASE/MAIN FLOOR | 3 | 0 | 1992 | 1116.0 |
| | OP1 | OPEN PORCH SLAB | 3 | 0 | 1992 | 60.0 |
| | OP1 | OPEN PORCH SLAB | 3 | 0 | 1992 | 60.0 |
| | OP3 | OPEN PORCH W/ROOF | 3 | 0 | 1992 | 108.0 |
| | BAW | BALCONY WOOD RAIL | 3 | 0 | 1992 | 32.0 |
| | BAW | BALCONY WOOD RAIL | 3 | 0 | 1992 | 24.0 |
| | OWC | OPEN WOOD PORCH W/STEPS/ROOF/C | 3 | 0 | 1992 | 188.0 |
| | UPS | UPPER STORY | 3 | 0 | 1992 | 880.0 |
Sketch
Property Image
Land
| 1 | 14 | SQ (08001-12000) | 0.1791 | 7801.60 | 0.00 | 0.00 | 1.00 | $240,000 | $0 |
Roll Value History
| 2026 | N/A | N/A | N/A | N/A | N/A |
| 2025 | $158,932 | $240,000 | $0 | $398,932 | $398,932 |
| 2024 | $168,422 | $230,000 | $0 | $398,422 | $398,422 |
| 2023 | $174,816 | $210,000 | $0 | $384,816 | $384,816 |
| 2022 | $146,335 | $150,000 | $0 | $296,335 | $296,335 |
| 2021 | $144,844 | $150,000 | $0 | $294,844 | $294,844 |
| 2020 | $143,550 | $130,000 | $0 | $273,550 | $273,550 |
| 2019 | $145,672 | $150,000 | $0 | $295,672 | $295,672 |
| 2018 | $145,694 | $130,000 | $0 | $275,694 | $275,694 |
| 2017 | $145,740 | $78,016 | $0 | $223,756 | $223,756 |
| 2016 | $145,830 | $78,016 | $0 | $223,846 | $223,846 |
| 2015 | $149,940 | $78,016 | $0 | $227,956 | $227,956 |
| 2014 | $110,469 | $78,858 | $0 | $189,327 | $189,327 |
| 2013 | $110,469 | $78,858 | $0 | $189,327 | $189,327 |
| 2012 | $110,469 | $78,858 | $0 | $189,327 | $189,327 |
| 2011 | $110,469 | $78,858 | $0 | $189,327 | $189,327 |
| 2010 | $154,892 | $78,858 | $0 | $233,750 | $233,750 |
| 2009 | $159,193 | $86,658 | $0 | $245,851 | $245,851 |
| 2008 | $170,434 | $86,658 | $0 | $257,092 | $257,092 |
| 2007 | $177,222 | $86,658 | $0 | $263,880 | $263,880 |
Deed and Sales History
| 1 | 07/14/2025 | WD | Warranty Deed | HOFFLER, DONALD W | MANGONE, WENDY ADAIR | | | $0.00 | 64186 | 4588421 |
| 2 | 07/02/2021 | SPWARDEED | Special Warranty Deed | HOFFLER, DON | HOFFLER, DONALD W | | | $0.00 | 49218 | 4524742 |
| 3 | 04/01/1991 | OTHER | Other - Misc. Documents | HOFFLER, DONALD W | HOFFLER, DONALD W | | | $0.00 | 64158 | 0 |
| 4 | 03/01/1989 | WD | Warranty Deed | MILLS, GEORGE U | HOFFLER, DONALD W | | | $21,000.00 | 90995 | 89003485 |
| 5 | 01/01/1900 | OTHER | Other - Misc. Documents | Unknown | MILLS, GEORGE U | | | $0.00 | 0 | 0 |
Payout Agreement
| No payout information available.. |