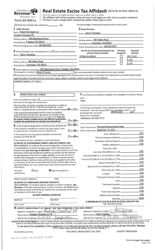
Property
Account |
| Property ID: | 231957 | Abbreviated Legal Description: | CLINTON LOT 5 BLK 6 & E/2 ADJ VAC ALLEY AF#344420 |
| Geographic ID: | S6380-00-06005-0 | Agent Code: | |
| Type: | Real | | |
| Tax Area: | 720 - APPRAISER-S Whid Schl Dist, Special District, improved & less than 1 acre | Land Use Code | 69 |
| Open Space: | N | DFL | N |
| Historic Property: | N | Remodel Property: | N |
| Multi-Family Redevelopment: | N | | |
| Township: | | Section: | |
| Range: | |
Location |
| Address: | 6438 CENTRAL AVE CLINTON, WA 98236 | Mapsco: | |
| Neighborhood: | 44cCL-central ave | Map ID: | 815 |
| Neighborhood CD: | 44cCLcentr |
Owner |
| Name: | MANGONE, WENDY ADAIR | Owner ID: | 317410 |
| Mailing Address: | ERIC BLANCHARD HOFFLER 966 CHELHAM WAY MONTECITO, CA 93108 | % Ownership: | 100.0000000000% |
| | | Exemptions: | |
Taxes and Assessment Details
Values
| (+) Improvement Homesite Value: | + | $0 | |
| (+) Improvement Non-Homesite Value: | + | $58,440 | |
| (+) Land Homesite Value: | + | $0 | |
| (+) Land Non-Homesite Value: | + | $250,000 | |
| (+) Curr Use (HS): | + | $0 | $0 |
| (+) Curr Use (NHS): | + | $0 | $0 |
| | | -------------------------- | |
| (=) Market Value: | = | $308,440 | |
| (–) Productivity Loss: | – | $0 | |
| | | -------------------------- | |
| (=) Subtotal: | = | $308,440 | |
| (+) Senior Appraised Value: | + | $0 | |
| (+) Non-Senior Appraised Value: | + | $308,440 | |
| | | -------------------------- | |
| (=) Total Appraised Value: | = | $308,440 | |
| (–) Senior Exemption Loss: | – | $0 | |
| (–) Exemption Loss: | – | $0 | |
| | | -------------------------- | |
| (=) Taxable Value: | = | $308,440 | |
Taxing Jurisdiction
| Owner: | MANGONE, WENDY ADAIR | | |
| % Ownership: | 100.0000000000% | | |
| Total Value: | $308,440 | | |
| Tax Area: | 720 - APPRAISER-S Whid Schl Dist, Special District, improved & less than 1 acre |
| CF | Conservation Futures | 0.0316035091 | $308,440 | $308,440 | $9.75 | | |
| FIRE3 | Fire & Rescue Dist #3 S Whidbey GEN | 1.2004855531 | $308,440 | $308,440 | $370.28 | | |
| HOBOND | Hospital BOND | 0.1910887512 | $308,440 | $308,440 | $58.94 | | |
| HOGEN | Hospital GEN | 0.3902502903 | $308,440 | $308,440 | $120.37 | | |
| CE | County Current Expense | 0.3708482477 | $308,440 | $308,440 | $114.38 | | |
| CR | County Roads | 0.4584763726 | $308,440 | $308,440 | $141.41 | | |
| ISLANDEMS | Hospital GEN (EMS) | 0.5000000000 | $308,440 | $308,440 | $154.22 | | |
| LIB | Library Sno-Isle GEN | 0.3153421757 | $308,440 | $308,440 | $97.26 | | |
| PORTWHID | Port of S Whidbey GEN | 0.1094540357 | $308,440 | $308,440 | $33.76 | | |
| SCH206BOND | School 206 BOND | 0.3161759235 | $308,440 | $308,440 | $97.52 | | |
| SCH206MO | School 206 Enrichment | 0.4547169547 | $308,440 | $308,440 | $140.25 | | |
| ST | State School | 1.3035497053 | $308,440 | $308,440 | $402.07 | | |
| ST2 | State School Part 2 | 0.8169543533 | $308,440 | $308,440 | $251.98 | | |
| SWHIDPRBD | P & R S Whidbey BOND | 0.0152817568 | $308,440 | $308,440 | $4.71 | | |
| SWHIDPRBD2 | P & R S Whidbey BOND2 | 0.0138911264 | $308,440 | $308,440 | $4.28 | | |
| SWHIDPRMT | P & R S Whidbey GEN | 0.2053334452 | $308,440 | $308,440 | $63.33 | | |
| | Total Tax Rate: | 6.6934522006 | | | | | |
| | | | | Taxes w/Current Exemptions: | $2,064.51 | | |
| | | | | Taxes w/o Exemptions: | $2,064.51 | | |
Improvement / Building
| Improvement #1: | COMMERCIAL | State Code: | F1 | 2864.0 sqft | Value: | $58,440 |
| Bathrooms: | 0 | Bedrooms: | 0 | | Ceiling: | DRYWALL PAINTED | Exterior Wall/Cover: | PLYWD/WD OR ST STUDS | | Floor Covering: | CONCRETE SEALER | Floor Structure: | CONCRETE ON GROUND | | Foundation: | SLAB | Heating: | SPACE HEATERS | | Interior Finish: | WAREHOUSE DISTRIBUTE | Plumbing Fixture Cnt: | 1 | | Roof Structure/Cover: | COMP OPEN WOOD |   |   |
|
Sketch
Property Image
Land
| 1 | 14 | SQ (08001-12000) | 0.1791 | 7800.00 | 0.00 | 0.00 | 1.00 | $250,000 | $0 |
Roll Value History
| 2026 | N/A | N/A | N/A | N/A | N/A |
| 2025 | $58,440 | $250,000 | $0 | $308,440 | $308,440 |
| 2024 | $60,874 | $230,000 | $0 | $290,874 | $290,874 |
| 2023 | $63,310 | $210,000 | $0 | $273,310 | $273,310 |
| 2022 | $56,629 | $150,000 | $0 | $206,629 | $206,629 |
| 2021 | $56,629 | $150,000 | $0 | $206,629 | $206,629 |
| 2020 | $39,530 | $130,000 | $0 | $169,530 | $169,530 |
| 2019 | $43,665 | $150,000 | $0 | $193,665 | $193,665 |
| 2018 | $43,665 | $130,000 | $0 | $173,665 | $173,665 |
| 2017 | $43,665 | $78,000 | $0 | $121,665 | $121,665 |
| 2016 | $43,665 | $78,000 | $0 | $121,665 | $121,665 |
| 2015 | $49,902 | $78,000 | $0 | $127,902 | $127,902 |
| 2014 | $69,395 | $78,858 | $0 | $148,253 | $148,253 |
| 2013 | $68,899 | $78,858 | $0 | $147,757 | $147,757 |
| 2012 | $67,784 | $78,858 | $0 | $146,642 | $146,642 |
| 2011 | $63,429 | $78,858 | $0 | $142,287 | $142,287 |
| 2010 | $82,020 | $78,858 | $0 | $160,878 | $160,878 |
| 2009 | $85,003 | $86,658 | $0 | $171,661 | $171,661 |
| 2008 | $87,572 | $86,658 | $0 | $174,230 | $174,230 |
| 2007 | $90,729 | $86,658 | $0 | $177,387 | $177,387 |
Deed and Sales History
| 1 | 07/14/2025 | WD | Warranty Deed | HOFFLER, DONALD W | MANGONE, WENDY ADAIR | | | $0.00 | 64188 | 4588423 |
| 2 | 07/02/2021 | SPWARDEED | Special Warranty Deed | HOFFLER, D W | HOFFLER, DONALD W | | | $0.00 | 49218 | 4524742 |
| 3 | 01/01/1900 | OTHER | Other - Misc. Documents | Unknown | HOFFLER, DONALD W | | | $0.00 | 0 | 0 |
Payout Agreement
| No payout information available.. |